1007 Baseball And Boardwalk Court Kissimmee, FL 34746
For Sale MLS# S5140259
2 beds 2 baths 1,052 sq ft Townhouse/Twinhome
Details for 1007 Baseball And Boardwalk Court
MLS# S5140259
Description for 1007 Baseball And Boardwalk Court, Kissimmee, FL, 34746
1% lender credit (based on loan amount) toward closing costs or rate buy-down with seller’s preferred lender. Welcome to this fully furnished, turnkey end-unit villa located in a desirable resort-style community, just minutes from Walt Disney World and major area attractions. This well-maintained two-story villa offers a comfortable and convenient lifestyle with easy access to community amenities, all within a short walking distance. The villa features an open and functional layout filled with natural light, central air conditioning, and an in-unit washer and dryer. Window blinds are installed throughout for added comfort and privacy. The end-unit location enhances light and overall livability. Community amenities include a resort-style pool, lazy river, water slides, lap pool, fitness center, and business center. Additional recreational amenities include tennis, pickleball, and basketball courts, mini golf, batting cage, playground, and arcade. Outdoor common areas offer charcoal and gas grills with picnic tables. A fenced dog park, ample free parking, and electric vehicle charging stations are also available for resident and guest convenience. The homeowners association provides exterior painting, roof maintenance, lawn care, high-speed internet, TV service, and access to community amenities, offering a low-maintenance ownership experience. This property is suitable for a primary residence, second home, or as part of a short-term rental program, subject to association and local regulations. Schedule your private showing today to learn more about this well-appointed property and its community offerings.
Listing Information
Property Type: Residential, Townhouse
Status: Active
Bedrooms: 2
Bathrooms: 2
Lot Size: 0.02 Acres
Square Feet: 1,052 sq ft
Year Built: 1983
Stories: 2 Story
Construction: Stucco
Subdivision: Fantasyworld Club Villas Unit 1
Foundation: Block,Slab
County: Osceola
School Information
Elementary: Reedy Creek Elem (K 5)
Middle: Kissimmee Middle
High: Celebration High
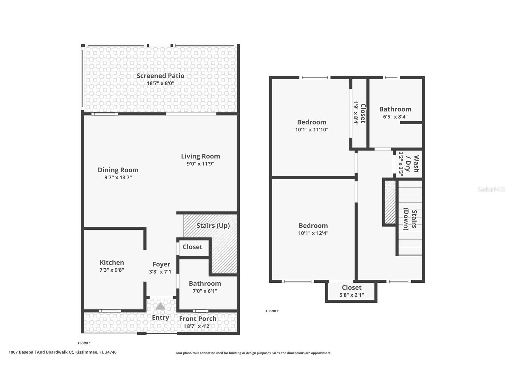
Room Information
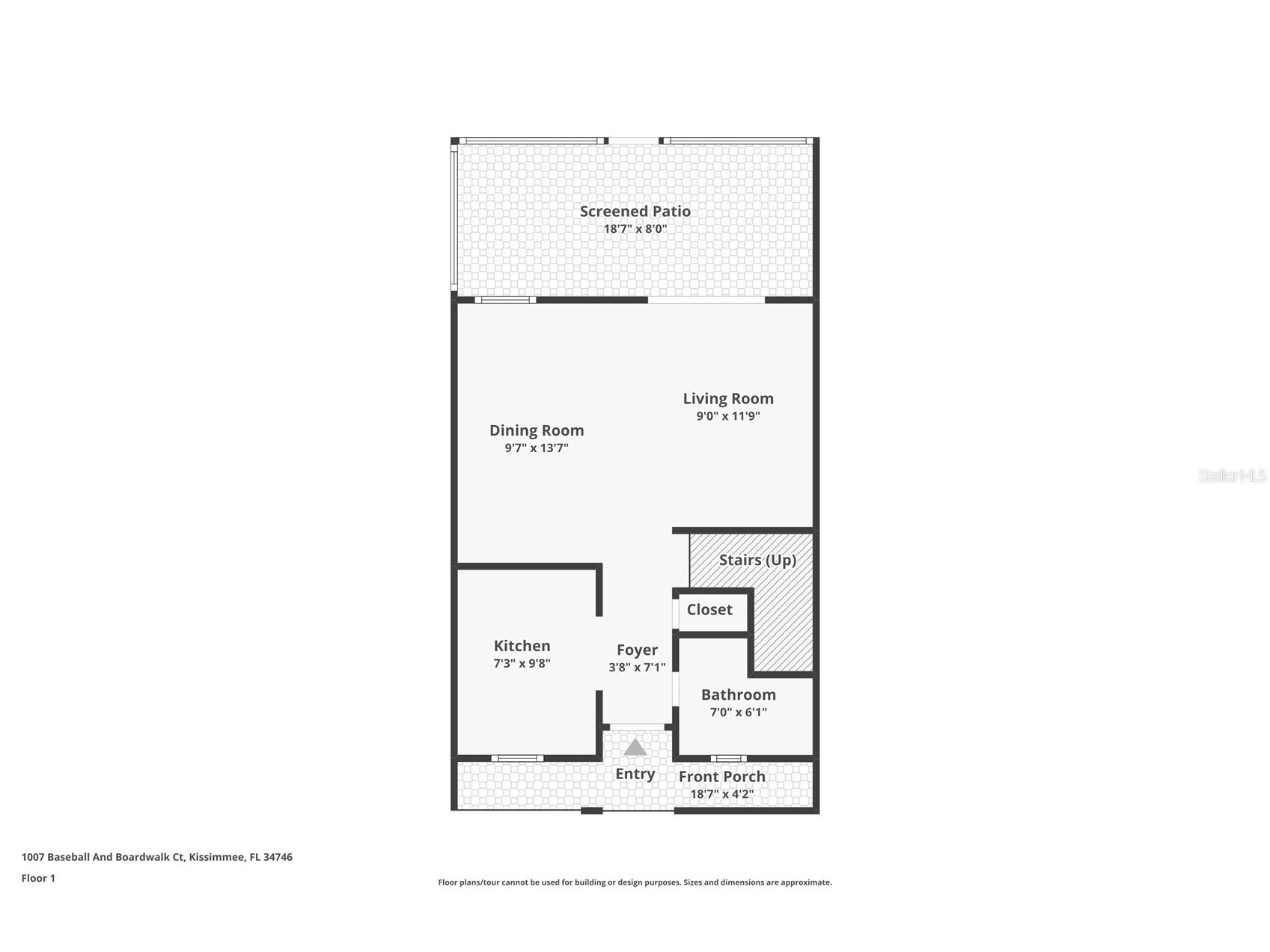
Main Floor
Porch:
Bathroom 1:
Living Room:
Kitchen:
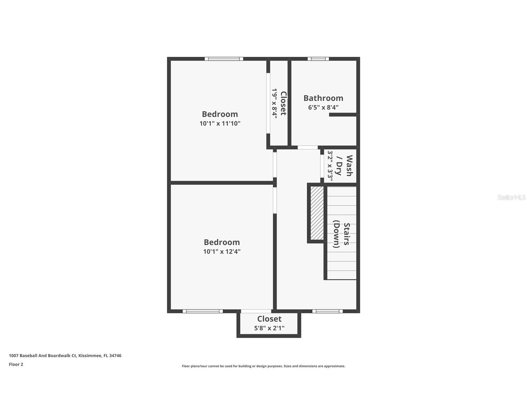
Upper Floor
Laundry:
Bathroom 2:
Bedroom 2:
Primary Bedroom:
Bathrooms
Full Baths: 2
Additonal Room Information
Laundry: Laundry Room, Inside
Interior Features
Appliances: Washer, Cooktop, Dryer, Microwave
Flooring: Carpet,Ceramic Tile
Additional Interior Features: Living/Dining Room, Upper Level Primary
Utilities
Water: Public
Sewer: Public Sewer
Other Utilities: Cable Connected,Electricity Connected,Municipal Utilities,Water Available
Cooling: Central Air
Heating: Electric, Central
Exterior / Lot Features
Roof: Tile
Pool: Association, Community
Additional Exterior/Lot Features: Sprinkler/Irrigation, Outdoor Grill, Tennis Court(s), Dog Run, Patio, Screened
Community Features
Community Features: Sidewalks, Pool, Tennis Court(s), Playground, Dog Park, Fitness
Association Amenities: Shuffleboard Court, Fitness Center, Basketball Court, Playground, Tennis Court(s), Pool, Pickleball
HOA Dues Include: Association Management, Maintenance Structure, Pool(s), Maintenance Grounds
Homeowners Association: Yes
HOA Dues: $901 / Monthly
Driving Directions
From US-192, turn onto Kyngs Heath Road. Turn right onto Hart Avenue, then left onto Bamboo Lane. Continue and turn left onto Baseball and Boardwalk Court.
Financial Considerations
Terms: Cash,Conventional,FHA,VA Loan
Tax/Property ID: 02-25-28-3102-0001-0070
Tax Amount: 2499
Tax Year: 2025
A broker reciprocity listing courtesy: ROBERT MICHAEL & COMPANY INC.
Based on information provided by Stellar MLS as distributed by the MLS GRID. Information from the Internet Data Exchange is provided exclusively for consumers’ personal, non-commercial use, and such information may not be used for any purpose other than to identify prospective properties consumers may be interested in purchasing. This data is deemed reliable but is not guaranteed to be accurate by Edina Realty, Inc., or by the MLS. Edina Realty, Inc., is not a multiple listing service (MLS), nor does it offer MLS access.
Copyright 2026 Stellar MLS as distributed by the MLS GRID. All Rights Reserved.
Payment Calculator
Interest rate and annual percentage rate (APR) are based on current market conditions, are for informational purposes only, are subject to change without notice and may be subject to pricing add-ons related to property type, loan amount, loan-to-value, credit score and other variables. Estimated closing costs used in the APR calculation are assumed to be paid by the borrower at closing. If the closing costs are financed, the loan, APR and payment amounts will be higher. If the down payment is less than 20%, mortgage insurance may be required and could increase the monthly payment and APR. Contact us for details. Additional loan programs may be available. Accuracy is not guaranteed, and all products may not be available in all borrower's geographical areas and are based on their individual situation. This is not a credit decision or a commitment to lend.
Sales History & Tax Summary for 1007 Baseball And Boardwalk Court
Sales History
| Date | Price | |
|---|---|---|
| Currently not available. | ||
Tax Summary
| Tax Year | Estimated Market Value | Total Tax |
|---|---|---|
| Currently not available. | ||
Data powered by ATTOM Data Solutions. Copyright© 2026. Information deemed reliable but not guaranteed.
Schools
Schools nearby 1007 Baseball And Boardwalk Court
| Schools in attendance boundaries | Grades | Distance | Rating |
|---|---|---|---|
| Loading... | |||
| Schools nearby | Grades | Distance | Rating |
|---|---|---|---|
| Loading... | |||
Data powered by ATTOM Data Solutions. Copyright© 2026. Information deemed reliable but not guaranteed.
The schools shown represent both the assigned schools and schools by distance based on local school and district attendance boundaries. Attendance boundaries change based on various factors and proximity does not guarantee enrollment eligibility. Please consult your real estate agent and/or the school district to confirm the schools this property is zoned to attend. Information is deemed reliable but not guaranteed.
SchoolDigger ® Rating
The SchoolDigger rating system is a 1-5 scale with 5 as the highest rating. SchoolDigger ranks schools based on test scores supplied by each state's Department of Education. They calculate an average standard score by normalizing and averaging each school's test scores across all tests and grades.
Coming soon properties will soon be on the market, but are not yet available for showings.