1007 Gulf Drive N #213 Bradenton Beach, FL 34217
For Sale MLS# A4670788
2 beds 3 baths 1,259 sq ft Condo
Details for 1007 Gulf Drive N #213
MLS# A4670788
Description for 1007 Gulf Drive N #213, Bradenton Beach, FL, 34217
UNBELIEVABLE OPPORTUNITY FROM GULF TO BAY WITH BREATHTAKING BAY Views, 2 Bedroom /2.5 Bath, UPDATED & TURNKEY END Unit Condo with DIRECT BEACH ACCESS in the Highly Sought After Summer Sands Community! MONTHLY RENTALS!! Literally walk across the street to the beach and TIKI BAR! Golf CART through the entire Island!! Enjoy everything Bradenton Beach has to offer, walking distance to Historic Bridge Street, On Site Pool, Day Dock perfect for drop and load, daily access and of course all the Bay fishing your heart desires! Experience island living at its finest in this beautifully updated coastal-chic condo offering breathtaking panoramic Bay view's day or night and direct access to the stunning white sand Gulf beaches just across the street. Step inside to find an open living space that flows to a wall of windows overlooking the Bay, creating the perfect backdrop for morning coffee, evening cocktails or simply soaking in the beauty of island life. This desirable end unit offers extra windows that bathe the interior in beautiful natural light throughout the day. With 2 primary bedrooms you can choose whether the first level ensuite bedroom or the 2nd level loft style bedroom with ensuite is for you! Enjoy the convenience of a full-size washer and dryer, 2024 HVAC, shiplap ceiling, hurricane windows, updated kitchen and baths! Offered TURNKEY FURNISHED, the unit allows for an effortless, quick move-in and immediate enjoyment of island living. Perfectly positioned in one of the rare Gulf-to-Bay communities on Bradenton Beach, this residence delivers on the ultimate island lifestyle with deeded access to both the Gulf and the Intracoastal Waterway, plus a sparkling community pool and private dock for boating, kayaking, fishing or simply taking in the sunrise. Experience truly effortless living with two assigned covered parking spaces and easy elevator access. Summer Sands owns the vacant Gulf front parcel, which protects the unobstructed BEACH VIEWS of this fantastic complex. Located just a short stroll to the iconic Bridge Street, your moments from Anna Maria Island’s favorite restaurants, boutique shops, live entertainment and vibrant nightlife. Whether you’re searching for a full-time residence, seasonal escape or high-demand rental opportunity (monthly rentals 4x/yr), this location offers unmatched convenience and charm.
Listing Information
Property Type: Residential, Condominium
Status: Active
Bedrooms: 2
Bathrooms: 3
Square Feet: 1,259 sq ft
Year Built: 1982
Stories: 2 Story
Construction: Stucco
Subdivision: Summer Sands
Foundation: Slab
County: Manatee
School Information
Elementary: Anna Maria Elementary
Middle: Martha B. King Middle
High: Bayshore High
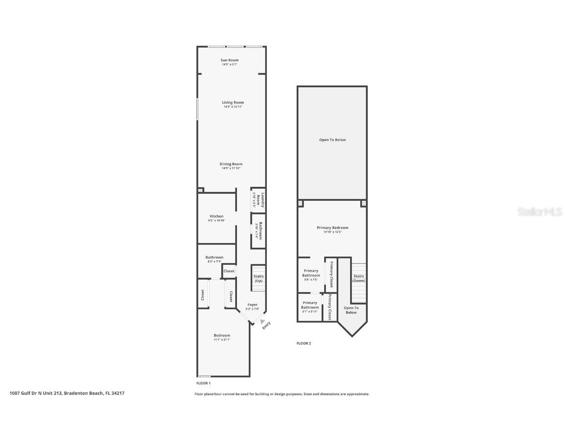
Room Information
Main Floor
Primary Bathroom: 14x6
Primary Bedroom: 12x15
Living Room: 14x15
Dining Room: 12x15
Kitchen: 11x8
Upper Floor
Bedroom 2:
Bathrooms
Full Baths: 2
1/2 Baths: 1
Additonal Room Information
Laundry: Laundry Closet
Interior Features
Appliances: Dishwasher, Microwave, Range, Refrigerator
Flooring: Carpet
Fireplaces: Electric, Living Room
Additional Interior Features: Split Bedrooms, Living/Dining Room, Ceiling Fan(s), Vaulted Ceiling(s), Main Level Primary, High Ceilings, Solid Surface Counters, Stone Counters
Utilities
Water: Public
Sewer: Public Sewer
Other Utilities: Electricity Connected
Cooling: Ceiling Fan(s), Central Air
Heating: Central, Electric
Exterior / Lot Features
Roof: Other
Pool: Community, Association
Lot View: Bay,Intercoastal,Water
Additional Exterior/Lot Features: Outdoor Shower, Lighting, Storage, Near Public Transit, City Lot
Waterfront Details
Water Front Features: Bay Access, Beach Access
Community Features
Community Features: Pool, Dock, Sidewalks, Golf Carts OK, Water Access
Security Features: Key Card Entry
Association Amenities: Pool, Spa/Hot Tub
HOA Dues Include: Taxes, Water, Cable TV, Pool(s), Insurance, Common Areas
Driving Directions
From I75 take Rte 64 to the island. Turn left on Gulf Dr S. and the community is on the right.
Financial Considerations
Terms: Cash,Conventional,FHA
Tax/Property ID: 7703801303
Tax Amount: 8297
Tax Year: 2024
A broker reciprocity listing courtesy: KW COASTAL LIVING III
Based on information provided by Stellar MLS as distributed by the MLS GRID. Information from the Internet Data Exchange is provided exclusively for consumers’ personal, non-commercial use, and such information may not be used for any purpose other than to identify prospective properties consumers may be interested in purchasing. This data is deemed reliable but is not guaranteed to be accurate by Edina Realty, Inc., or by the MLS. Edina Realty, Inc., is not a multiple listing service (MLS), nor does it offer MLS access.
Copyright 2026 Stellar MLS as distributed by the MLS GRID. All Rights Reserved.
Payment Calculator
Interest rate and annual percentage rate (APR) are based on current market conditions, are for informational purposes only, are subject to change without notice and may be subject to pricing add-ons related to property type, loan amount, loan-to-value, credit score and other variables. Estimated closing costs used in the APR calculation are assumed to be paid by the borrower at closing. If the closing costs are financed, the loan, APR and payment amounts will be higher. If the down payment is less than 20%, mortgage insurance may be required and could increase the monthly payment and APR. Contact us for details. Additional loan programs may be available. Accuracy is not guaranteed, and all products may not be available in all borrower's geographical areas and are based on their individual situation. This is not a credit decision or a commitment to lend.
Sales History & Tax Summary for 1007 Gulf Drive N #213
Sales History
| Date | Price | |
|---|---|---|
| Currently not available. | ||
Tax Summary
| Tax Year | Estimated Market Value | Total Tax |
|---|---|---|
| Currently not available. | ||
Data powered by ATTOM Data Solutions. Copyright© 2026. Information deemed reliable but not guaranteed.
Schools
Schools nearby 1007 Gulf Drive N #213
| Schools in attendance boundaries | Grades | Distance | Rating |
|---|---|---|---|
| Loading... | |||
| Schools nearby | Grades | Distance | Rating |
|---|---|---|---|
| Loading... | |||
Data powered by ATTOM Data Solutions. Copyright© 2026. Information deemed reliable but not guaranteed.
The schools shown represent both the assigned schools and schools by distance based on local school and district attendance boundaries. Attendance boundaries change based on various factors and proximity does not guarantee enrollment eligibility. Please consult your real estate agent and/or the school district to confirm the schools this property is zoned to attend. Information is deemed reliable but not guaranteed.
SchoolDigger ® Rating
The SchoolDigger rating system is a 1-5 scale with 5 as the highest rating. SchoolDigger ranks schools based on test scores supplied by each state's Department of Education. They calculate an average standard score by normalizing and averaging each school's test scores across all tests and grades.
Coming soon properties will soon be on the market, but are not yet available for showings.