$899,900
10079 Lebanon Drive Port Charlotte, FL 33981 - STAUNTON WATERWAY
For Sale MLS# D6142816
3 beds 2 baths 2,131 sq ft Single Family
Details for 10079 Lebanon Drive
MLS# D6142816
Description for 10079 Lebanon Drive, Port Charlotte, FL, 33981 - STAUNTON WATERWAY
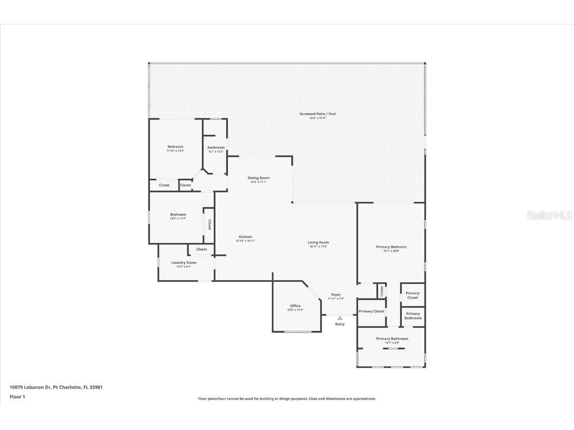
Prime location, luxury, and lifestyle come together beautifully in this gorgeous 3-bedroom, 2-bath coastal retreat in the highly sought-after waterfront community of South Gulf Cove. Situated on an oversized half-tip lot with 145 feet of rip-rapped waterfront and southwest exposure, you’ll enjoy breathtaking sunsets and serene water views every evening. A boater’s paradise, this property offers quick access to open water with only one bridge and a 2-minute ride to fast water. The 10,000 lb. boat lift with canopy, water, and electric sits alongside a maintenance-free 8' x 30' composite dock, making your waterfront adventures seamless and stress-free. This home is loaded with high-end upgrades and thoughtful design throughout. The screened front porch welcomes in the Florida breeze, while impact-resistant windows and doors provide peace of mind and storm protection. As you enter through the double front doors, you’re greeted by an airy, open-concept living area filled with natural light, zero-corner sliders, and dramatic 14-foot tray ceilings in the living room. A custom stone entertainment wall with built-in decor cubbies and an electric fireplace adds a cozy and upscale touch. The chef’s kitchen is both functional and beautiful, offering soft-close cabinetry, extra pull-outs, Level 4 granite countertops, an oversized island, and a striking stone-and-marble backsplash. Top-of-the-line Samsung Black Stainless appliances include a double-door convection oven and French door refrigerator. The laundry room is equipped with a Samsung washer and dryer and features a built-in pantry for additional storage. A split-bedroom floor plan ensures privacy, with the main suite tucked away on one side of the home. The spacious primary bedroom features dual walk-in closets and a luxurious bathroom with two separate vanities, a private water closet, and a walk-through tiled shower complete with a rain shower head and handheld wand for both convenience and relaxation. The guest wing includes two well-appointed bedrooms—one with sliding door access to the lanai—and a beautifully tiled bathroom with walk-in shower and pool access. Step outside to a backyard oasis where upgraded St. Augustine grass enhances the lush landscaping and curb appeal. The expansive lanai is perfect for entertaining or unwinding, featuring a built-in bar area with a bar fridge and wet sink, and an electric fireplace that adds ambiance and warmth on a cool Florida evening. An electric roll-down hurricane screen transforms the space into a comfortable indoor-outdoor retreat, protected from the elements yet open to the view. Enjoy the inviting pool with a large sundeck and wide steps, framed by four picture-window screens for unobstructed waterfront views. For even more relaxation, soak in the above-ground Vita Spa hot tub with 52 jets and let the stress of the day melt away. Additional features include a spacious 3-car garage with built-in overhead shelving and a utility sink, sliding screens on the double garage door, full irrigation system with a new pump, blown insulation throughout the entire roof area, a 30-amp generator outlet, and a paver walkway from the garage to the dock for safety and convenience. Located just minutes from Boca Grande beaches, top-rated golf courses, world-class fishing, and boating access to waterfront dining, this South Gulf Cove gem offers the ultimate Florida lifestyle. Don’t miss your opportunity to own this exceptional waterfront home!
Listing Information
Property Type: Residential, Single Family Residence
Status: Active
Bedrooms: 3
Bathrooms: 2
Lot Size: 0.34 Acres
Square Feet: 2,131 sq ft
Year Built: 2021
Garage: Yes
Stories: 1 Story
Construction: Block,Stucco
Subdivision: Port Charlotte Sec 081
Builder: DM DEAN INC. Custom Homes
Foundation: Block,Slab,Stem Wall
County: Charlotte
School Information
Elementary: Myakka River Elementary
Middle: L.A. Ainger Middle
High: Lemon Bay High
Room Information
Main Floor
Den: 10x11
Great Room: 17x19
Foyer: 7x8
Laundry: 8x12.5
Bathroom 2: 12x5
Bedroom 3: 11x12
Bedroom 2: 11.5x13.5
Primary Bathroom: 10x15
Primary Bedroom: 16x17
Kitchen: 13x17
Bathrooms
Full Baths: 2
Additonal Room Information
Laundry: Laundry Room
Interior Features
Appliances: Exhaust Fan, Bar Fridge, Convection Oven, Range Hood, Electric Water Heater, Washer, Dishwasher, Disposal, Dryer, Microwave, Refrigerator
Flooring: Ceramic Tile
Doors/Windows: Window Treatments
Fireplaces: Outside, Electric, Living Room, Insert
Additional Interior Features: Eat-In Kitchen, Ceiling Fan(s), Window Treatments, High Ceilings, Walk-In Closet(s), Tray Ceiling(s), Crown Molding, Open Floorplan, Coffered Ceiling(s), Main Level Primary
Utilities
Water: Public
Sewer: Public Sewer
Other Utilities: Electricity Connected,High Speed Internet Available,Sewer Connected,Water Connected
Cooling: Ceiling Fan(s), Central Air
Heating: Electric, Central
Exterior / Lot Features
Attached Garage: Attached Garage
Garage Spaces: 3
Roof: Shingle
Pool: Screen Enclosure, Tile, In Ground
Lot View: Canal,Water
Lot Dimensions: 60x125x155x172
Additional Exterior/Lot Features: Sprinkler/Irrigation, Rain Gutters, Storm/Security Shutters, Lighting, Landscaped, Oversized Lot
Waterfront Details
Standard Water Body: STAUNTON WATERWAY
Water Front Features: Canal Access
Community Features
Community Features: Park, Boat Facilities, Waterfront, Sidewalks, Playground, Clubhouse, Fishing, Water Access
Homeowners Association: Yes
HOA Dues: $120 / Annually
Driving Directions
From S. McCall Rd (776)...turn on to Gasparilla Rd (771)...turn (Left) on Ingraham Blvd... turn (Right) on St. Paul Dr.... turn (Right) on Lebanon Dr.... home on the Left
Financial Considerations
Terms: Cash,Conventional,FHA,VA Loan
Tax/Property ID: 412127229009
Tax Amount: 7814.34
Tax Year: 2024
A broker reciprocity listing courtesy: PARADISE EXCLUSIVE INC
Based on information provided by Stellar MLS as distributed by the MLS GRID. Information from the Internet Data Exchange is provided exclusively for consumers’ personal, non-commercial use, and such information may not be used for any purpose other than to identify prospective properties consumers may be interested in purchasing. This data is deemed reliable but is not guaranteed to be accurate by Edina Realty, Inc., or by the MLS. Edina Realty, Inc., is not a multiple listing service (MLS), nor does it offer MLS access.
Copyright 2025 Stellar MLS as distributed by the MLS GRID. All Rights Reserved.
Payment Calculator
Interest rate and annual percentage rate (APR) are based on current market conditions, are for informational purposes only, are subject to change without notice and may be subject to pricing add-ons related to property type, loan amount, loan-to-value, credit score and other variables. Estimated closing costs used in the APR calculation are assumed to be paid by the borrower at closing. If the closing costs are financed, the loan, APR and payment amounts will be higher. If the down payment is less than 20%, mortgage insurance may be required and could increase the monthly payment and APR. Contact us for details. Additional loan programs may be available. Accuracy is not guaranteed, and all products may not be available in all borrower's geographical areas and are based on their individual situation. This is not a credit decision or a commitment to lend.
Sales History & Tax Summary for 10079 Lebanon Drive
Sales History
| Date | Price | Change |
|---|---|---|
| Currently not available. | ||
Tax Summary
| Tax Year | Estimated Market Value | Total Tax |
|---|---|---|
| Currently not available. | ||
Data powered by ATTOM Data Solutions. Copyright© 2025. Information deemed reliable but not guaranteed.
Schools
Schools nearby 10079 Lebanon Drive
| Schools in attendance boundaries | Grades | Distance | Rating |
|---|---|---|---|
| Loading... | |||
| Schools nearby | Grades | Distance | Rating |
|---|---|---|---|
| Loading... | |||
Data powered by ATTOM Data Solutions. Copyright© 2025. Information deemed reliable but not guaranteed.
The schools shown represent both the assigned schools and schools by distance based on local school and district attendance boundaries. Attendance boundaries change based on various factors and proximity does not guarantee enrollment eligibility. Please consult your real estate agent and/or the school district to confirm the schools this property is zoned to attend. Information is deemed reliable but not guaranteed.
SchoolDigger ® Rating
The SchoolDigger rating system is a 1-5 scale with 5 as the highest rating. SchoolDigger ranks schools based on test scores supplied by each state's Department of Education. They calculate an average standard score by normalizing and averaging each school's test scores across all tests and grades.
Coming soon properties will soon be on the market, but are not yet available for showings.