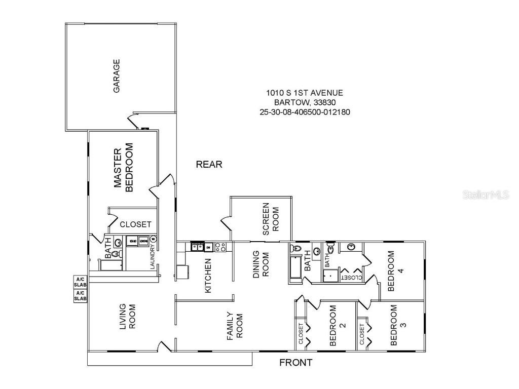
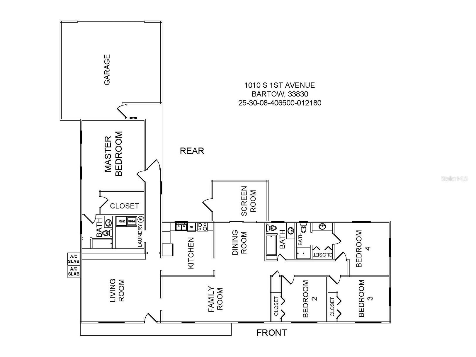
1010 S 1st Avenue Bartow, FL 33830
For Sale MLS# L4956815
4 beds 3 baths 2,352 sq ft Single Family
Details for 1010 S 1st Avenue
MLS# L4956815
Description for 1010 S 1st Avenue, Bartow, FL, 33830
Welcome home to this beautifully renovated 4-bedroom, 3-bath residence located just minutes from Downtown Bartow, the Bartow Golf Course, Hack Lake, and Nye Jordan Park, which offers tennis, basketball, pickleball, and a playground! This home has been thoughtfully updated to provide a move-in ready experience that provides peace of mind. Inside, you’ll find a bright and spacious floor plan featuring new luxury vinyl plank flooring, plush new carpet in the bedrooms, stylish new tile in each bathroom, and all new ceiling fans and light fixtures throughout. The brand-new kitchen is perfect for everyday life and entertaining, boasting stainless steel appliances, quartz countertops, new cabinetry, and room to add an island for additional storage or seating. A designated laundry room off the kitchen provides added convenience. This home features two spacious master suites with beautifully renovated attached bathrooms, and one of the suites includes a large walk-in closet. Major updates include new windows, a new roof, a new electric water heater, one brand-new A/C system along with an existing system in great condition, and fresh landscaping around the property. Enjoy the outdoors with a fenced-in backyard and a screened-in porch, ideal for relaxing or hanging out with friends and family. The oversized two-car garage and driveway offer additional storage space and ample parking for the property. With its multiple upgrades and unbeatable location near Bartow’s best recreation and amenities, this home won’t last long!
Listing Information
Property Type: Residential, Single Family Residence
Status: Active
Bedrooms: 4
Bathrooms: 3
Lot Size: 0.29 Acres
Square Feet: 2,352 sq ft
Year Built: 1965
Garage: Yes
Stories: 1 Story
Construction: Block
Subdivision: Hacklake
Foundation: Slab
County: Polk
Room Information
Main Floor
Kitchen:
Living Room:
Primary Bedroom:
Bathrooms
Full Baths: 3
Additonal Room Information
Laundry: Inside, Laundry Room
Interior Features
Appliances: Electric Water Heater, Dishwasher, Range, Refrigerator, Microwave
Flooring: Carpet,Luxury Vinyl,Tile
Additional Interior Features: Walk-In Closet(s), Ceiling Fan(s)
Utilities
Water: Public
Sewer: Public Sewer
Other Utilities: Electricity Connected,Municipal Utilities,Sewer Connected,Water Connected
Cooling: Ceiling Fan(s), Central Air
Heating: Central
Exterior / Lot Features
Attached Garage: Attached Garage
Garage Spaces: 2
Roof: Shingle
Lot Dimensions: 100x140
Fencing: Wood
Additional Exterior/Lot Features: Other, Porch, Covered, Screened, Rear Porch, Irregular Lot, Landscaped
Driving Directions
Main Street to south on Orange Ave. Take a left at Lillian Street, home will be at the end of the street.
Financial Considerations
Terms: Cash,Conventional,VA Loan
Tax/Property ID: 25-30-08-406500-012180
Tax Amount: 3815
Tax Year: 2025
A broker reciprocity listing courtesy: PORCHLIGHT HOMES LLC
Based on information provided by Stellar MLS as distributed by the MLS GRID. Information from the Internet Data Exchange is provided exclusively for consumers’ personal, non-commercial use, and such information may not be used for any purpose other than to identify prospective properties consumers may be interested in purchasing. This data is deemed reliable but is not guaranteed to be accurate by Edina Realty, Inc., or by the MLS. Edina Realty, Inc., is not a multiple listing service (MLS), nor does it offer MLS access.
Copyright 2025 Stellar MLS as distributed by the MLS GRID. All Rights Reserved.
Payment Calculator
Interest rate and annual percentage rate (APR) are based on current market conditions, are for informational purposes only, are subject to change without notice and may be subject to pricing add-ons related to property type, loan amount, loan-to-value, credit score and other variables. Estimated closing costs used in the APR calculation are assumed to be paid by the borrower at closing. If the closing costs are financed, the loan, APR and payment amounts will be higher. If the down payment is less than 20%, mortgage insurance may be required and could increase the monthly payment and APR. Contact us for details. Additional loan programs may be available. Accuracy is not guaranteed, and all products may not be available in all borrower's geographical areas and are based on their individual situation. This is not a credit decision or a commitment to lend.
Sales History & Tax Summary for 1010 S 1st Avenue
Sales History
| Date | Price | Change |
|---|---|---|
| Currently not available. | ||
Tax Summary
| Tax Year | Estimated Market Value | Total Tax |
|---|---|---|
| Currently not available. | ||
Data powered by ATTOM Data Solutions. Copyright© 2025. Information deemed reliable but not guaranteed.
Schools
Schools nearby 1010 S 1st Avenue
| Schools in attendance boundaries | Grades | Distance | Rating |
|---|---|---|---|
| Loading... | |||
| Schools nearby | Grades | Distance | Rating |
|---|---|---|---|
| Loading... | |||
Data powered by ATTOM Data Solutions. Copyright© 2025. Information deemed reliable but not guaranteed.
The schools shown represent both the assigned schools and schools by distance based on local school and district attendance boundaries. Attendance boundaries change based on various factors and proximity does not guarantee enrollment eligibility. Please consult your real estate agent and/or the school district to confirm the schools this property is zoned to attend. Information is deemed reliable but not guaranteed.
SchoolDigger ® Rating
The SchoolDigger rating system is a 1-5 scale with 5 as the highest rating. SchoolDigger ranks schools based on test scores supplied by each state's Department of Education. They calculate an average standard score by normalizing and averaging each school's test scores across all tests and grades.
Coming soon properties will soon be on the market, but are not yet available for showings.