1012 Irene Avenue Largo, FL 33771
For Sale MLS# TB8416724
4 beds 2 baths 1,846 sq ft Single Family
Details for 1012 Irene Avenue
MLS# TB8416724
Description for 1012 Irene Avenue, Largo, FL, 33771
Welcome to 1012 Irene Avenue! Live the beach lifestyle without the beach-area price tag. Set on a quiet, mature street in a friendly, well-kept neighborhood, this thoughtfully updated 4-bed, 2-bath home pairs everyday comfort with true coastal convenience. In minutes you can be on the Causeway headed to India Rocks, Belleair, and Sand Key Park, with Clearwater Beach and Pier 60 close by for sunset strolls. Weekends write themselves with Largo Central Park, the Florida Botanical Gardens, Eagle Lake Park, and the Pinellas Trail nearby; shopping and dining are a breeze at Largo Mall, Clearwater Mall, and the cafés of Downtown Largo and Belleair Bluffs. A new 2025 roof delivers peace of mind, while the new concrete/paver patio extends living outdoors—perfect for morning coffee, weekend cookouts, and cozy winter evenings around the fire. Inside, bright, easy-flow spaces invite entertaining, and the split floorplan features a stand-alone primary bedroom for privacy. Each bedroom is incredibly spacious, offering maximum comfort and flexibility for guests, work, or play. Out back, the yard’s perimeter is lined with hibiscus, adding color, privacy, and that unmistakable Florida feel. Move-in-ready finishes complete a welcoming retreat close to everything.
Listing Information
Property Type: Residential, Single Family Residence
Status: Active
Bedrooms: 4
Bathrooms: 2
Lot Size: 0.19 Acres
Square Feet: 1,846 sq ft
Year Built: 1964
Garage: Yes
Stories: 1 Story
Construction: Block
Construction Display: New Construction
Subdivision: Keene Groves
Foundation: Slab
County: Pinellas
Construction Status: New Construction
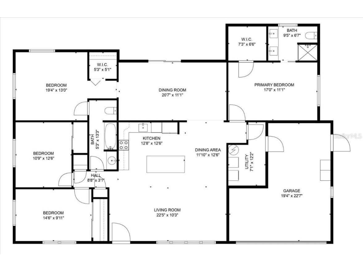
Room Information
Main Floor
Laundry: 12.2x7.1
Dinette: 12.6x11.1
Bedroom 4: 9.11x14.6
Bedroom 3: 12.6x10.9
Bedroom 2: 13x19.4
Primary Bedroom: 11.1x17
Dining Room: 11.1x20.7
Kitchen: 12.6x12.8
Living Room: 10.3x22.5
Bathrooms
Full Baths: 2
Additonal Room Information
Laundry: In Garage, Laundry Room
Interior Features
Appliances: Exhaust Fan, Dishwasher, Disposal, Dryer, Microwave, Range, Refrigerator, Washer, Range Hood
Flooring: Laminate
Additional Interior Features: Ceiling Fan(s), Split Bedrooms, Walk-In Closet(s), Eat-In Kitchen, Separate/Formal Dining Room, Open Floorplan, Solid Surface Counters, Stone Counters
Utilities
Sewer: Public Sewer
Other Utilities: Cable Connected,Electricity Connected,Municipal Utilities,Sewer Connected,Water Connected,Water Not Available
Cooling: Ceiling Fan(s), Central Air
Heating: Central
Exterior / Lot Features
Attached Garage: Attached Garage
Garage Spaces: 2
Parking Description: driveway
Roof: Shingle
Lot Dimensions: 75x105
Additional Exterior/Lot Features: Garden
Driving Directions
I-275 ? Exit 30 to FL-686 W (Roosevelt/East Bay) ? R on Keene Rd ? R on Roberta St ? 3rd L on Irene Ave; home on left.
Financial Considerations
Terms: Cash,Conventional,FHA,VA Loan
Tax/Property ID: 25-29-15-45378-000-0780
Tax Amount: 7725.68
Tax Year: 2024
A broker reciprocity listing courtesy: HOMESMART
Based on information provided by Stellar MLS as distributed by the MLS GRID. Information from the Internet Data Exchange is provided exclusively for consumers’ personal, non-commercial use, and such information may not be used for any purpose other than to identify prospective properties consumers may be interested in purchasing. This data is deemed reliable but is not guaranteed to be accurate by Edina Realty, Inc., or by the MLS. Edina Realty, Inc., is not a multiple listing service (MLS), nor does it offer MLS access.
Copyright 2025 Stellar MLS as distributed by the MLS GRID. All Rights Reserved.
Payment Calculator
Interest rate and annual percentage rate (APR) are based on current market conditions, are for informational purposes only, are subject to change without notice and may be subject to pricing add-ons related to property type, loan amount, loan-to-value, credit score and other variables. Estimated closing costs used in the APR calculation are assumed to be paid by the borrower at closing. If the closing costs are financed, the loan, APR and payment amounts will be higher. If the down payment is less than 20%, mortgage insurance may be required and could increase the monthly payment and APR. Contact us for details. Additional loan programs may be available. Accuracy is not guaranteed, and all products may not be available in all borrower's geographical areas and are based on their individual situation. This is not a credit decision or a commitment to lend.
Sales History & Tax Summary for 1012 Irene Avenue
Sales History
| Date | Price | Change |
|---|---|---|
| Currently not available. | ||
Tax Summary
| Tax Year | Estimated Market Value | Total Tax |
|---|---|---|
| Currently not available. | ||
Data powered by ATTOM Data Solutions. Copyright© 2025. Information deemed reliable but not guaranteed.
Schools
Schools nearby 1012 Irene Avenue
| Schools in attendance boundaries | Grades | Distance | Rating |
|---|---|---|---|
| Loading... | |||
| Schools nearby | Grades | Distance | Rating |
|---|---|---|---|
| Loading... | |||
Data powered by ATTOM Data Solutions. Copyright© 2025. Information deemed reliable but not guaranteed.
The schools shown represent both the assigned schools and schools by distance based on local school and district attendance boundaries. Attendance boundaries change based on various factors and proximity does not guarantee enrollment eligibility. Please consult your real estate agent and/or the school district to confirm the schools this property is zoned to attend. Information is deemed reliable but not guaranteed.
SchoolDigger ® Rating
The SchoolDigger rating system is a 1-5 scale with 5 as the highest rating. SchoolDigger ranks schools based on test scores supplied by each state's Department of Education. They calculate an average standard score by normalizing and averaging each school's test scores across all tests and grades.
Coming soon properties will soon be on the market, but are not yet available for showings.