$649,000
Off-Market Date: 03/03/202610211 Quails Landing Avenue Tampa, FL 33647
Pending MLS# TB8433090
4 beds 4 baths 3,312 sq ft Single Family
Details for 10211 Quails Landing Avenue
MLS# TB8433090
Description for 10211 Quails Landing Avenue, Tampa, FL, 33647
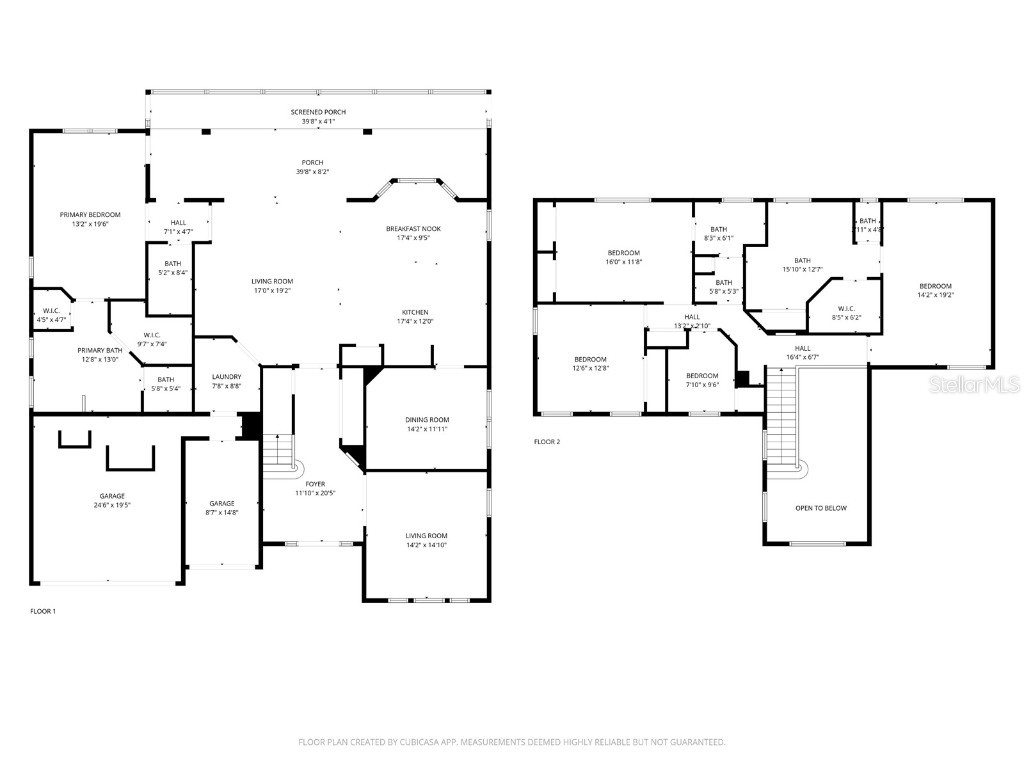
Under contract-accepting backup offers. Executive home in Quail’s Landing of Arbor Greene, perfectly positioned on a waterfront lot and offering one of the best values in the community. At over 3,300 sq. ft., this is the best-priced large home in Arbor Greene. A rare find with dual master suites—one upstairs and one downstairs—this layout is ideal for multi-generational living or flexible use. The home features 4 bedrooms, 4 bathrooms, A downstairs flex room/office, an upstairs office, and a 3-car garage. Spacious living areas filled with natural light and water views. The dramatic two-story foyer opens to a formal living room with plantation shutters and custom millwork, leading into the open-concept main living space with 12-foot sliding doors to the screened lanai. Outside, enjoy an outdoor kitchen, spa, and pavered patio overlooking the water. The kitchen is finished with solid marble countertops, a center island, double ovens, 5-burner gas range, and stainless-steel appliances. Off the kitchen, you will find a large flex room that can be used as a downstairs office, play room, or private reading room. The first-floor primary suite has floor-to-ceiling windows with water views, a soaking tub, walk-in shower, dual vanities, and large closet. Upstairs includes a second master suite with vaulted ceiling and a spacious ensuite, plus two additional bedrooms and a home office with built-in desk and cabinetry. Roof replaced in 2016. Arbor Greene offers 24/7 manned gates, clubhouse with event space, fitness center, Olympic-sized and resort-style pools, tennis courts, pickleball courts, playgrounds, and miles of walking paths and nature trails. Conveniently located minutes from I-75 with quick access to shopping, restaurants, hospitals, USF, and downtown Tampa. This home offers both space and value in one of New Tampa’s most established communities.
Listing Information
Property Type: Residential, Single Family Residence
Status: Pending
Bedrooms: 4
Bathrooms: 4
Lot Size: 0.18 Acres
Square Feet: 3,312 sq ft
Year Built: 1999
Garage: Yes
Stories: 2 Story
Construction: Block,Stucco,Wood Frame
Construction Display: New Construction
Subdivision: Arbor Greene Ph 2 Units 1 A
Foundation: Slab
County: Hillsborough
Construction Status: New Construction
School Information
Elementary: Hunter's Green-Hb
Middle: Benito-Hb
High: Wharton-Hb
Room Information
Main Floor
Dining Room: 12.2x13.2
Dinette: 9.2x16.1
Kitchen: 11.1x16.1
Family Room: 18.7x23.2
Living Room: 15.4x1.2
Foyer: 10.1x11.11
Bathroom 2: 8.7x5.1
Primary Bathroom: 13x12.1
Primary Bedroom: 19.9x12.11
Upper Floor
Bathroom 4: 5.2x5.5
Office: 9.5x7.11
Bedroom 4: 12.11x12.1
Bedroom 3: 11.1x16.1
Bathroom 3: 12.4x15.11
Primary Bedroom: 19x14.3
Bathrooms
Full Baths: 4
Additonal Room Information
Laundry: Laundry Chute, Laundry Room
Interior Features
Appliances: Dishwasher, Disposal, Microwave, Range, Refrigerator
Flooring: Carpet,Ceramic Tile
Doors/Windows: Blinds, Shutters
Additional Interior Features: Eat-In Kitchen, Vaulted Ceiling(s), Walk-In Closet(s), High Ceilings, Main Level Primary, Upper Level Primary, Kitchen/Family Room Combo, Open Floorplan, Separate/Formal Living Room, Stone Counters
Utilities
Water: Public
Sewer: Public Sewer
Other Utilities: Cable Available,Electricity Connected,Fiber Optic Available,Natural Gas Connected,Sewer Connected,Water Connected
Cooling: Central Air
Heating: Central, Electric
Exterior / Lot Features
Attached Garage: Attached Garage
Garage Spaces: 3
Parking Description: Garage Door Opener, Garage, driveway
Roof: Shingle
Pool: Community, Association
Lot View: Pond,Trees/Woods,Water
Lot Dimensions: 68x115
Additional Exterior/Lot Features: Outdoor Kitchen, Lighting, Screened, Rear Porch, Landscaped, City Lot
Waterfront Details
Water Front Features: Pond
Community Features
Community Features: Clubhouse, Street Lights, Pool, Sidewalks, Tennis Court(s), Gated, Fitness
Security Features: Gated Community, Gated with Guard, Fire Hydrant(s), Smoke Detector(s)
Association Amenities: Gated, Fitness Center, Clubhouse, Tennis Court(s), Pool
Homeowners Association: Yes
HOA Dues: $110 / Annually
Driving Directions
I75, exit Bruce B Downs N, R on Cross Creek Blvd, R into Arbor Greene (just after Benito Middle School), through gate, straight to stop sign at clubhouse, L on Arbor Wind Drive, follow to traffic circle, first right on Quails Landing. House on Right.
Financial Considerations
Terms: Cash,Conventional,FHA,VA Loan
Tax/Property ID: A-16-27-20-22J-000006-00084.0
Tax Amount: 7427.35
Tax Year: 2024
A broker reciprocity listing courtesy: CORNERSTONE PROP.INTERNATIONAL
Based on information provided by Stellar MLS as distributed by the MLS GRID. Information from the Internet Data Exchange is provided exclusively for consumers’ personal, non-commercial use, and such information may not be used for any purpose other than to identify prospective properties consumers may be interested in purchasing. This data is deemed reliable but is not guaranteed to be accurate by Edina Realty, Inc., or by the MLS. Edina Realty, Inc., is not a multiple listing service (MLS), nor does it offer MLS access.
Copyright 2026 Stellar MLS as distributed by the MLS GRID. All Rights Reserved.
Sales History & Tax Summary for 10211 Quails Landing Avenue
Sales History
| Date | Price | |
|---|---|---|
| Currently not available. | ||
Tax Summary
| Tax Year | Estimated Market Value | Total Tax |
|---|---|---|
| Currently not available. | ||
Data powered by ATTOM Data Solutions. Copyright© 2026. Information deemed reliable but not guaranteed.
Schools
Schools nearby 10211 Quails Landing Avenue
| Schools in attendance boundaries | Grades | Distance | Rating |
|---|---|---|---|
| Loading... | |||
| Schools nearby | Grades | Distance | Rating |
|---|---|---|---|
| Loading... | |||
Data powered by ATTOM Data Solutions. Copyright© 2026. Information deemed reliable but not guaranteed.
The schools shown represent both the assigned schools and schools by distance based on local school and district attendance boundaries. Attendance boundaries change based on various factors and proximity does not guarantee enrollment eligibility. Please consult your real estate agent and/or the school district to confirm the schools this property is zoned to attend. Information is deemed reliable but not guaranteed.
SchoolDigger ® Rating
The SchoolDigger rating system is a 1-5 scale with 5 as the highest rating. SchoolDigger ranks schools based on test scores supplied by each state's Department of Education. They calculate an average standard score by normalizing and averaging each school's test scores across all tests and grades.
Coming soon properties will soon be on the market, but are not yet available for showings.