10216 46th Avenue W Bradenton, FL 34210
For Sale MLS# A4666175
6 beds 9 baths 6,455 sq ft Single Family
Details for 10216 46th Avenue W
MLS# A4666175
Description for 10216 46th Avenue W, Bradenton, FL, 34210
Nestled behind custom gates on nearly 0.83 acres of lushly landscaped tropical grounds, this one-of-a-kind, gated bayfront estate blends secluded serenity with unrivaled luxury. Moments by boat from the Gulf of Mexico, the property welcomes you via a sweeping drive lined with palms, revealing a motor court that provides access to the main residence, a charming cottage, a guest apartment, and the poetic “Owl’s Nest.” Inside the main home, you’ll find an entertainer’s dream a grand great room with a gas fireplace opens to sweeping bay views, accompanied by a chef’s kitchen outfitted with Wolf and Sub-Zero appliances, dramatic built-in wine storage, and a stunning Forno Bravo pizza oven. Custom stone and wood finishes, soaring arches, and elegant moldings underscore the craftsman-level quality throughout. The primary suite is a tranquil retreat with a cozy fireplace and steam shower, while additional guest suites offer comfort and privacy. Outdoors, the property shines with a tiki hut, resort-style freeform heated pool, and a fully equipped outdoor kitchen and living area that beckons relaxing evenings by the bay. Water access here is sublime with approximately 100 feet of protected water frontage, a covered boat lift, expansive dock with charging, all positioned to enjoy daily visits from dolphins and manatees against the backdrop of breathtaking sunsets. Located minutes from upscale shopping, fine dining, and Gulf beaches, this unparalleled compound is not just a home it’s a peaceful, private paradise designed for lavish entertaining, family memories, and luxurious coastal living.
Listing Information
Property Type: Residential, Single Family Residence
Status: Active
Bedrooms: 6
Bathrooms: 9
Lot Size: 0.83 Acres
Square Feet: 6,455 sq ft
Year Built: 2017
Garage: Yes
Stories: 3 Story
Construction: Block,Concrete,Stucco,Wood Frame
Construction Display: New Construction
Subdivision: Bay Beach
Foundation: Pillar/Post/Pier,Stem Wall
County: Manatee
Construction Status: New Construction
School Information
Elementary: Sea Breeze Elementary
Middle: W.D. Sugg Middle
High: Bayshore High
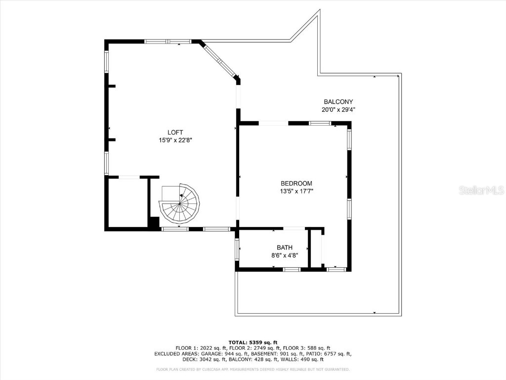
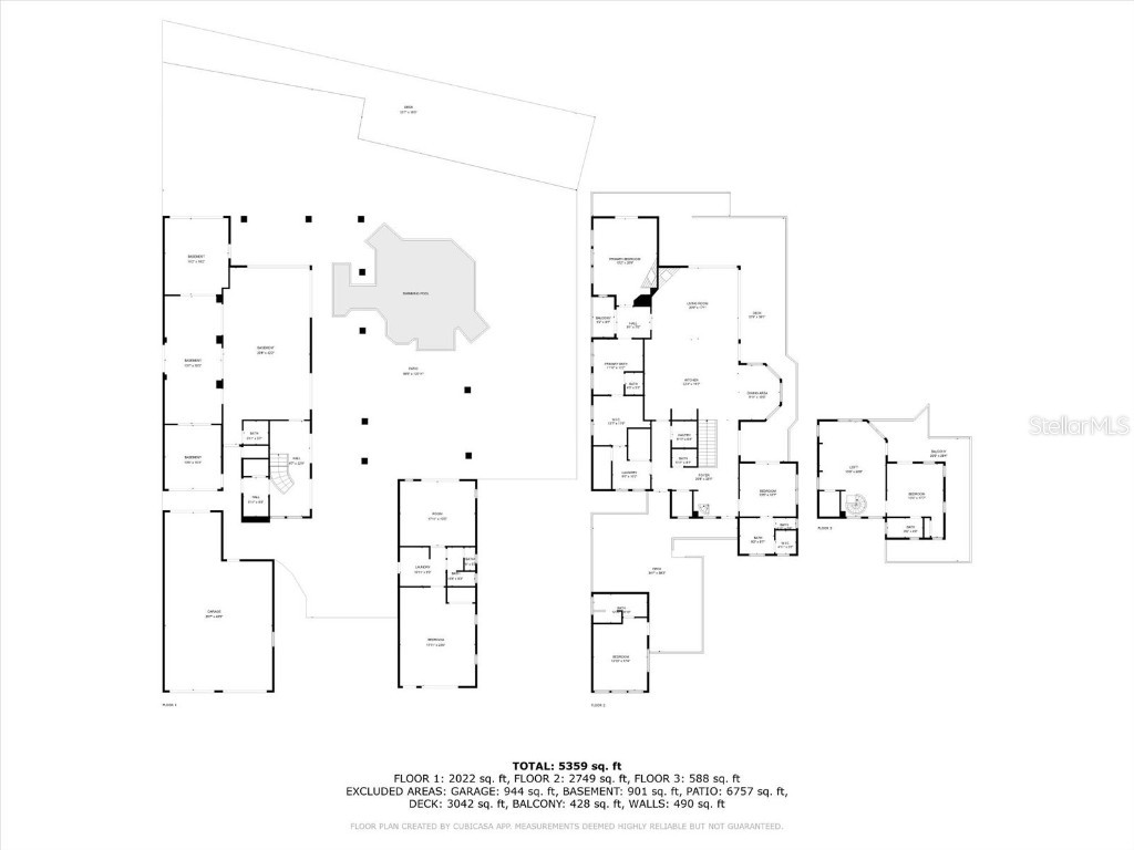
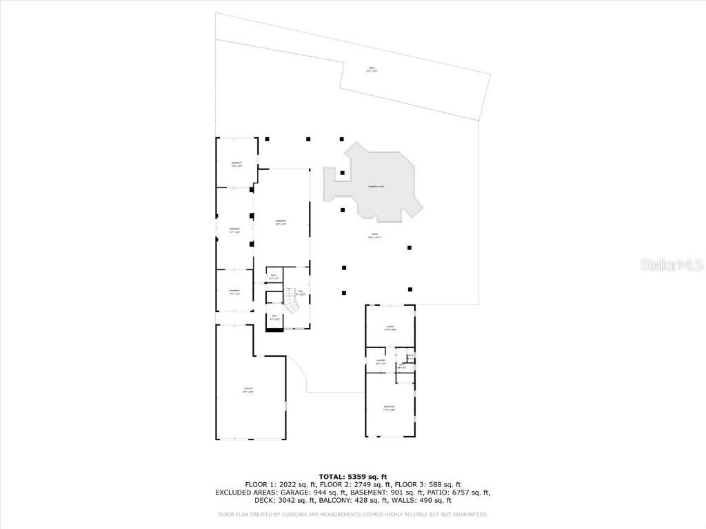
Room Information
Main Floor
Workshop: 23x12.5
Game Room: 14x12.5
Bedroom 5: 23x17.5
Upper Floor
Primary Bedroom: 21x18
Kitchen: 36.5x22
Great Room: 23.5x22
Den: 35x33
Bedroom 4: 16.5x12
Bathroom 3: 15x13
Bedroom 2: 14x12.5
Bedroom 1: 14x12
Primary Bathroom: 20x11.5
Bathrooms
Full Baths: 7
1/2 Baths: 2
Additonal Room Information
Laundry: Inside, Laundry Room, Upper Level, Other
Interior Features
Appliances: Refrigerator, Washer, Microwave, Cooktop, Freezer, Dishwasher, Disposal, Dryer, Tankless Water Heater, Gas Water Heater, Ice Maker, Built-In Oven, Range Hood, Wine Refrigerator, Water Purifier, Exhaust Fan, Bar Fridge, Convection Oven
Flooring: Brick,Ceramic Tile,Engineered Hardwood,Slate
Doors/Windows: Window Treatments, Blinds
Fireplaces: Gas, Family Room, Wood Burning, Primary Bedroom
Additional Interior Features: Ceiling Fan(s), Central Vacuum, Elevator, Other, Vaulted Ceiling(s), Split Bedrooms, Walk-In Closet(s), Wet Bar, Eat-In Kitchen, High Ceilings, Built-in Features, Window Treatments, Open Floorplan, Kitchen/Family Room Combo, Stone Counters, Crown Molding, Living/Dining Room, Smart Home
Utilities
Water: Public, Well
Sewer: Public Sewer
Other Utilities: Cable Available,Cable Connected,Electricity Connected,Fiber Optic Available,High Speed Internet Available,Propane,Municipal Utilities,Phone Available,Sewer Connected,Underground Utilities,Water Connected
Cooling: Zoned, Central Air, Ceiling Fan(s)
Heating: Heat Pump, Electric, Central, Zoned
Exterior / Lot Features
Attached Garage: Attached Garage
Garage Spaces: 6
Parking Description: Oversized, driveway, Garage, Circular Driveway, Golf Cart Garage, Garage Door Opener, Tandem
Roof: Built-Up, Metal
Pool: Tile, Heated, Gunite, Pool Sweep, Salt Water, In Ground, Lap, Outside Bath Access
Lot View: Bay,Intercoastal,Pool,Water
Lot Dimensions: 100x361
Additional Exterior/Lot Features: Sprinkler/Irrigation, Outdoor Grill, Outdoor Shower, French Patio Doors, Storm/Security Shutters, Rain Gutters, Outdoor Kitchen, Storage, Lighting, Dog Run, Patio, Porch, Covered, Deck, Rear Porch, Side Porch, Wrap Around, Front Porch, Flat, Level, Landscaped, Cleared, Near Public Transit, Dead End, Oversized Lot, Outside City Limits, Drainage
Out Buildings: Workshop, Guest House, Outdoor Kitchen, Shed(s), Kennel/Dog Run, Storage, Cabana
Waterfront Details
Water Front Features: Bay Access
Community Features
Community Features: Street Lights
Driving Directions
Starting from Cortez Road in Bradenton, head east along Cortez Road (SR-684) until you reach the turn for 46th Avenue West. Turn onto 46th Avenue West and continue driving through the neighborhood until you arrive at 12016 46th Avenue West. The property will be located on your route, nestled just off the bayfront. This route keeps you on main roads for easy access before guiding you into the residential area where the home is located.
Financial Considerations
Terms: Cash,Conventional
Tax/Property ID: 7623800005
Tax Amount: 57102.9
Tax Year: 2024
A broker reciprocity listing courtesy: COMPASS FLORIDA LLC
Based on information provided by Stellar MLS as distributed by the MLS GRID. Information from the Internet Data Exchange is provided exclusively for consumers’ personal, non-commercial use, and such information may not be used for any purpose other than to identify prospective properties consumers may be interested in purchasing. This data is deemed reliable but is not guaranteed to be accurate by Edina Realty, Inc., or by the MLS. Edina Realty, Inc., is not a multiple listing service (MLS), nor does it offer MLS access.
Copyright 2026 Stellar MLS as distributed by the MLS GRID. All Rights Reserved.
Payment Calculator
Interest rate and annual percentage rate (APR) are based on current market conditions, are for informational purposes only, are subject to change without notice and may be subject to pricing add-ons related to property type, loan amount, loan-to-value, credit score and other variables. Estimated closing costs used in the APR calculation are assumed to be paid by the borrower at closing. If the closing costs are financed, the loan, APR and payment amounts will be higher. If the down payment is less than 20%, mortgage insurance may be required and could increase the monthly payment and APR. Contact us for details. Additional loan programs may be available. Accuracy is not guaranteed, and all products may not be available in all borrower's geographical areas and are based on their individual situation. This is not a credit decision or a commitment to lend.
Sales History & Tax Summary for 10216 46th Avenue W
Sales History
| Date | Price | |
|---|---|---|
| Currently not available. | ||
Tax Summary
| Tax Year | Estimated Market Value | Total Tax |
|---|---|---|
| Currently not available. | ||
Data powered by ATTOM Data Solutions. Copyright© 2026. Information deemed reliable but not guaranteed.
Schools
Schools nearby 10216 46th Avenue W
| Schools in attendance boundaries | Grades | Distance | Rating |
|---|---|---|---|
| Loading... | |||
| Schools nearby | Grades | Distance | Rating |
|---|---|---|---|
| Loading... | |||
Data powered by ATTOM Data Solutions. Copyright© 2026. Information deemed reliable but not guaranteed.
The schools shown represent both the assigned schools and schools by distance based on local school and district attendance boundaries. Attendance boundaries change based on various factors and proximity does not guarantee enrollment eligibility. Please consult your real estate agent and/or the school district to confirm the schools this property is zoned to attend. Information is deemed reliable but not guaranteed.
SchoolDigger ® Rating
The SchoolDigger rating system is a 1-5 scale with 5 as the highest rating. SchoolDigger ranks schools based on test scores supplied by each state's Department of Education. They calculate an average standard score by normalizing and averaging each school's test scores across all tests and grades.
Coming soon properties will soon be on the market, but are not yet available for showings.