1022 Bellasol Way #5302 Apollo Beach, FL 33572 - BAL HARBOUR
For Sale MLS# T3515733
3 beds 3 baths 1,974 sq ft Condo
Details for 1022 Bellasol Way #5302
MLS# T3515733
Description for 1022 Bellasol Way #5302, Apollo Beach, FL, 33572 - BAL HARBOUR
A beautiful Gated WATERFRONT resort style condominium with spectacular views of Bal Harbor, oversized resort pool, and pond with picturesque fountain. The condominium is located on deep water, five minutes by boat to Tampa Bay. The Gulf of Mexico is 40 minutes away. A first class deeded boat slip, with 8,000# lift, is INCLUDED with the sale of the unit. The home was finished in 2015 and has all of the upgraded features you would expect. Large hurricane rated picture windows, crown moldings, tile and laminated wood floors throughout. Oversize car garage. Bellasol is a maintenance free community. The HOA fees include flood insurance, water, trash, high speed internet, maintenance of common grounds, elevator, building exterior and roof. Click on the 3D virtual video tour link!
Listing Information
Property Type: Residential, Condominium
Status: Active
Bedrooms: 3
Bathrooms: 3
Square Feet: 1,974 sq ft
Year Built: 2015
Garage: Yes
Stories: 1 Story
Construction: Block,Stucco
Subdivision: Bellasol Waterfront Villas A Condo Ph 02
Foundation: Slab
County: Hillsborough
School Information
Elementary: Apollo Beach-Hb
Middle: Eisenhower-Hb
High: East Bay-Hb
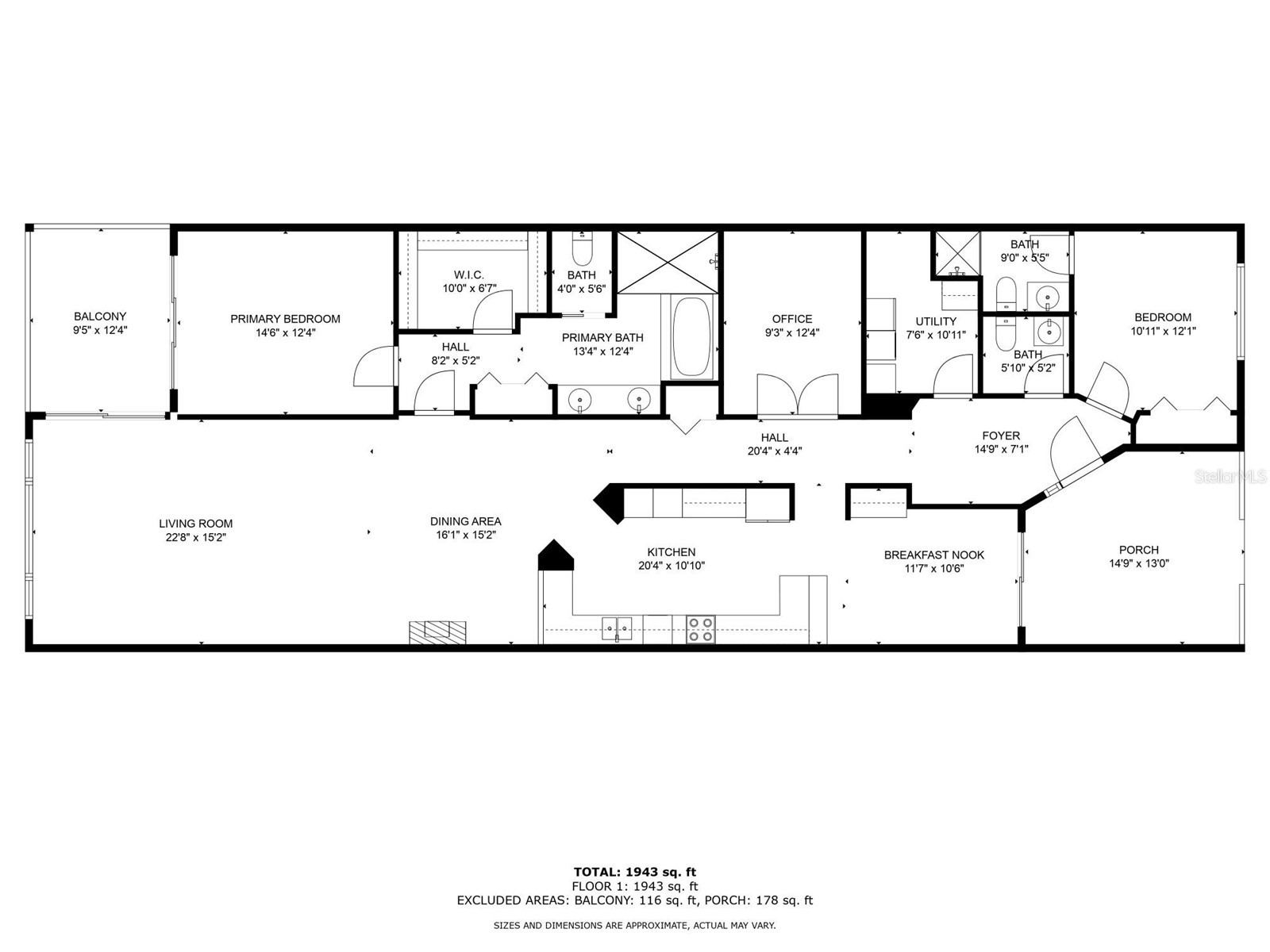
Room Information
Main Floor
Office: 10x12
Primary Bedroom: 15x13
Bedroom 3:
Living Room: 22x15
Kitchen: 17x10
Dining Room: 13x12
Bedroom 2: 11x12
Bathrooms
Full Baths: 2
1/2 Baths: 1
Additonal Room Information
Laundry: Laundry Room
Interior Features
Appliances: Wine Refrigerator, Range, Refrigerator, Microwave, Dishwasher, Disposal, Dryer, Washer, Water Softener, Electric Water Heater
Flooring: Ceramic Tile,Engineered Hardwood
Doors/Windows: Drapes, Storm Window(s), Blinds, Window Treatments
Additional Interior Features: Wet Bar, Window Treatments, Split Bedrooms, Walk-In Closet(s), Ceiling Fan(s), Open Floorplan, Kitchen/Family Room Combo, Solid Surface Counters, Stone Counters, Wood Cabinets, Tray Ceiling(s), Built-in Features, Crown Molding, High Ceilings, Living/Dining Room
Utilities
Water: Public
Sewer: Public Sewer
Other Utilities: Cable Available,Electricity Connected,High Speed Internet Available
Cooling: Ceiling Fan(s), Central Air
Heating: Central
Exterior / Lot Features
Garage Spaces: 2
Parking Description: Oversized, Garage, Garage Door Opener
Roof: Tile
Pool: Gunite, Community, In Ground
Lot View: Bay,Canal,Pond,Pool,Water
Additional Exterior/Lot Features: Balcony, Balcony, Covered, Deck, Patio, Porch, Rear Porch, Front Porch, Landscaped
Waterfront Details
Standard Water Body: BAL HARBOUR
Water Front Features: Bay Access
Community Features
Community Features: Pool, Sidewalks, Gated, Fishing, Fitness, Recreation Area
Security Features: Gated Community, Secured Garage/Parking, Smoke Detector(s)
Association Amenities: Fitness Center, Gated, Spa/Hot Tub
HOA Dues Include: Maintenance Grounds, Pool(s), Maintenance Structure, Reserve Fund, Trash, Sewer, Water, Cable TV
Homeowners Association: Yes
HOA Dues: $1,233 / Monthly
Driving Directions
From I-75 Take Apollo Beach/ Big Bend Exit 246 - To HWY 41 Turn onto Apollo Beach Blvd, MAKE a U-turn at Dolphin Cove Dr, turn right onto Bellasol into community press gate code "to be provided by listing agent " to open right side gate you can park at the parking lot on left side 1022 Bellasol building is next to this parking lot. If no spaces available use gate code " to be provided by listing agent " to open the left side gate there are more parking spaces, there too.
Financial Considerations
Terms: Cash,Conventional
Tax/Property ID: U-17-31-19-974-000000-05302.0
Tax Amount: 2527.12
Tax Year: 2023
A broker reciprocity listing courtesy: DALTON WADE INC
Based on information provided by Stellar MLS as distributed by the MLS GRID. Information from the Internet Data Exchange is provided exclusively for consumers’ personal, non-commercial use, and such information may not be used for any purpose other than to identify prospective properties consumers may be interested in purchasing. This data is deemed reliable but is not guaranteed to be accurate by Edina Realty, Inc., or by the MLS. Edina Realty, Inc., is not a multiple listing service (MLS), nor does it offer MLS access.
Copyright 2026 Stellar MLS as distributed by the MLS GRID. All Rights Reserved.
Payment Calculator
Interest rate and annual percentage rate (APR) are based on current market conditions, are for informational purposes only, are subject to change without notice and may be subject to pricing add-ons related to property type, loan amount, loan-to-value, credit score and other variables. Estimated closing costs used in the APR calculation are assumed to be paid by the borrower at closing. If the closing costs are financed, the loan, APR and payment amounts will be higher. If the down payment is less than 20%, mortgage insurance may be required and could increase the monthly payment and APR. Contact us for details. Additional loan programs may be available. Accuracy is not guaranteed, and all products may not be available in all borrower's geographical areas and are based on their individual situation. This is not a credit decision or a commitment to lend.
Sales History & Tax Summary for 1022 Bellasol Way #5302
Sales History
| Date | Price | |
|---|---|---|
| Currently not available. | ||
Tax Summary
| Tax Year | Estimated Market Value | Total Tax |
|---|---|---|
| Currently not available. | ||
Data powered by ATTOM Data Solutions. Copyright© 2026. Information deemed reliable but not guaranteed.
Schools
Schools nearby 1022 Bellasol Way #5302
| Schools in attendance boundaries | Grades | Distance | Rating |
|---|---|---|---|
| Loading... | |||
| Schools nearby | Grades | Distance | Rating |
|---|---|---|---|
| Loading... | |||
Data powered by ATTOM Data Solutions. Copyright© 2026. Information deemed reliable but not guaranteed.
The schools shown represent both the assigned schools and schools by distance based on local school and district attendance boundaries. Attendance boundaries change based on various factors and proximity does not guarantee enrollment eligibility. Please consult your real estate agent and/or the school district to confirm the schools this property is zoned to attend. Information is deemed reliable but not guaranteed.
SchoolDigger ® Rating
The SchoolDigger rating system is a 1-5 scale with 5 as the highest rating. SchoolDigger ranks schools based on test scores supplied by each state's Department of Education. They calculate an average standard score by normalizing and averaging each school's test scores across all tests and grades.
Coming soon properties will soon be on the market, but are not yet available for showings.