10279 Upper 196th Way W Lakeville, MN 55044
For Sale MLS# 6760583
6 beds 2 baths 2,557 sq ft Single Family
Details for 10279 Upper 196th Way W
MLS# 6760583
Description for 10279 Upper 196th Way W, Lakeville, MN, 55044
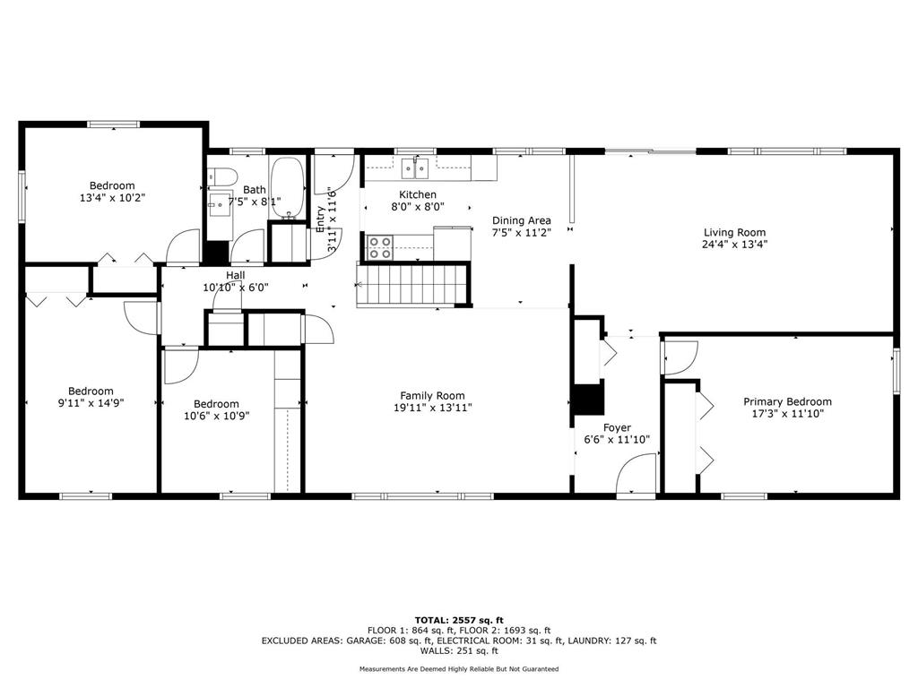
Hard to find 6 bedroom, (yes we said 6 bedroom), home in a well established Lakeville neighborhood, steps away from Lake Marion. This home is easily sub-dividable, to offer 2 separate living areas. Perfect for multi-generational families, families in need of a teen retreat, possible rental income. Four bedrooms on the upper level with 2 large gathering areas, eat in kitchen, walk out to backyard. Two bedrooms on the lower level with second kitchen, family room and a roll in shower. This home has original hardwood floors, new carpet and new interior paint. Location couldn't be better as you have easy walking or biking to the beach, parks, schools and shopping. Enjoy your private backyard on this oversized lot with mature trees and a storage shed.
Listing Information
Property Type: Residential, Single Family
Status: Active
Bedrooms: 6
Bathrooms: 2
Lot Size: 0.61 Acres
Square Feet: 2,557 sq ft
Year Built: 1960
Foundation: 1,693 sq ft
Garage: Yes
Stories: 1 Story
Subdivision: Antlers Park
County: Dakota
Days On Market: 143
Construction Status: Previously Owned
School Information
District: 194 - Lakeville
Room Information
Main Floor
Bedroom 1: 17x12
Bedroom 2: 13x10
Bedroom 3: 15x10
Bedroom 4: 11x11
Dining Room: 11x8
Family Room: 20x14
Kitchen: 8x8
Living Room: 24x13
Lower Floor
Bedroom 5: 13x13
Family Room: 19x13
Second Kitchen: 13x13
Sixth (6th) Bedroom: 10x13
Bathrooms
Full Baths: 1
3/4 Baths: 1
Additonal Room Information
Family: 2 or More,Family Room,Lower Level,Main Level
Dining: Eat In Kitchen,Kitchen/Dining Room
Laundry: In Basement, Washer Hookup, Laundry Room
Bath Description: 3/4 Basement,Main Floor Full Bath
Interior Features
Square Footage above: 1,693 sq ft
Square Footage below: 864 sq ft
Appliances: Range, Refrigerator, Washer, Gas Water Heater, Dishwasher, Disposal, Dryer, Freezer
Basement: Concrete Block, Full, Finished (Livable), Egress Windows, Walkout, Storage Space, Daylight/Lookout Windows, Tile Shower
Facilities: Easily Divided, Formerly Subdivided, Existing In-Law w/Kitchen
Fireplaces: Other
Accessibility: Other, Grab Bars In Bathroom, Elevator
Additional Interior Features: Natural Woodwork, Kitchen Window, Washer/Dryer Hookup, Tile Floors, 4 BR on One Level, Main Floor Bedroom, Security System, Hardwood Floors, Divided Bdr Flr Plan, Main Floor Primary
Utilities
Water: City Water/Connected
Sewer: City Sewer/Connected
Cooling: Central
Heating: Baseboard, Electric, Hot Water, Natural Gas
Exterior / Lot Features
Attached Garage: Attached Garage
Garage Spaces: 2
Open Parking: 2
Parking Description: Garage Door Opener, Driveway - Asphalt, Electric, Attached Garage, Storage, Garage Dimensions - 27x26, Garage Door Height - 7, Garage Door Width - 9, Garage Sq Ft - 624.0
Exterior: Fiber Board
Roof: Pitched, Age 8 Years or Less, Asphalt Shingles
Lot Dimensions: 87x58x201x94x257
Zoning: Residential-Single Family
Additional Exterior/Lot Features: Deck, Tree Coverage - Medium, Road Frontage - City
Out Buildings: Shed - Storage
Driving Directions
Kenwood Trail to Jaguar Ave, right onto Upper 196th Way W, home on right.
Financial Considerations
Tax/Property ID: 221150018050
Tax Amount: 4698
Tax Year: 2024
HomeStead Description: Homesteaded
A broker reciprocity listing courtesy: Re/Max Advantage Plus
The data relating to real estate for sale on this web site comes in part from the Broker Reciprocity℠ Program of the Regional Multiple Listing Service of Minnesota, Inc. Real estate listings held by brokerage firms other than Edina Realty, Inc. are marked with the Broker Reciprocity℠ logo or the Broker Reciprocity℠ thumbnail and detailed information about them includes the name of the listing brokers. Edina Realty, Inc. is not a Multiple Listing Service (MLS), nor does it offer MLS access. This website is a service of Edina Realty, Inc., a broker Participant of the Regional Multiple Listing Service of Minnesota, Inc. IDX information is provided exclusively for consumers personal, non-commercial use and may not be used for any purpose other than to identify prospective properties consumers may be interested in purchasing. Open House information is subject to change without notice. Information deemed reliable but not guaranteed.
Copyright 2025 Regional Multiple Listing Service of Minnesota, Inc. All Rights Reserved.
Payment Calculator
Interest rate and annual percentage rate (APR) are based on current market conditions, are for informational purposes only, are subject to change without notice and may be subject to pricing add-ons related to property type, loan amount, loan-to-value, credit score and other variables. Estimated closing costs used in the APR calculation are assumed to be paid by the borrower at closing. If the closing costs are financed, the loan, APR and payment amounts will be higher. If the down payment is less than 20%, mortgage insurance may be required and could increase the monthly payment and APR. Contact us for details. Additional loan programs may be available. Accuracy is not guaranteed, and all products may not be available in all borrower's geographical areas and are based on their individual situation. This is not a credit decision or a commitment to lend.
Sales History & Tax Summary for 10279 Upper 196th Way W
Sales History
| Date | Price | Change |
|---|---|---|
| Currently not available. | ||
Tax Summary
| Tax Year | Estimated Market Value | Total Tax |
|---|---|---|
| Currently not available. | ||
Data powered by ATTOM Data Solutions. Copyright© 2025. Information deemed reliable but not guaranteed.
Schools
Schools nearby 10279 Upper 196th Way W
| Schools in attendance boundaries | Grades | Distance | Rating |
|---|---|---|---|
| Loading... | |||
| Schools nearby | Grades | Distance | Rating |
|---|---|---|---|
| Loading... | |||
Data powered by ATTOM Data Solutions. Copyright© 2025. Information deemed reliable but not guaranteed.
The schools shown represent both the assigned schools and schools by distance based on local school and district attendance boundaries. Attendance boundaries change based on various factors and proximity does not guarantee enrollment eligibility. Please consult your real estate agent and/or the school district to confirm the schools this property is zoned to attend. Information is deemed reliable but not guaranteed.
SchoolDigger ® Rating
The SchoolDigger rating system is a 1-5 scale with 5 as the highest rating. SchoolDigger ranks schools based on test scores supplied by each state's Department of Education. They calculate an average standard score by normalizing and averaging each school's test scores across all tests and grades.
Coming soon properties will soon be on the market, but are not yet available for showings.