10299 Willmington Boulevard Englewood, FL 34224
For Sale MLS# D6141330
2 beds 2 baths 1,432 sq ft Single Family
Details for 10299 Willmington Boulevard
MLS# D6141330
Description for 10299 Willmington Boulevard, Englewood, FL, 34224
Charming 2-Bedroom Home in East Englewood – Close to Beaches & Shopping! Discover this beautifully maintained 2-bedroom, 2-bath home in the heart of East Englewood, offering a split-bedroom floor plan for added privacy. The home features a formal living room and a cozy den, providing versatile living spaces. Stylish angled tile flooring flows throughout the living areas, den, and kitchen. Enjoy Florida living on the screened lanai, perfect for relaxing or entertaining. Recent updates include a new roof, hurricane-impact windows and sliders, and an electric panel ready for a whole-house generator. The InstaHot water heater ensures on-demand hot water. Situated on an oversized lot, this home offers ample outdoor space, with some photos virtually staged to highlight its potential. Located near schools, shopping, and just minutes from the beach, this is an ideal home for full-time residents, seasonal visitors, or investors. Schedule your showing today!
Listing Information
Property Type: Residential, Single Family Residence
Status: Active
Bedrooms: 2
Bathrooms: 2
Lot Size: 0.23 Acres
Square Feet: 1,432 sq ft
Year Built: 1987
Garage: Yes
Stories: 1 Story
Construction: Block,Stucco
Subdivision: Port Charlotte Sec 062
Foundation: Slab
County: Charlotte
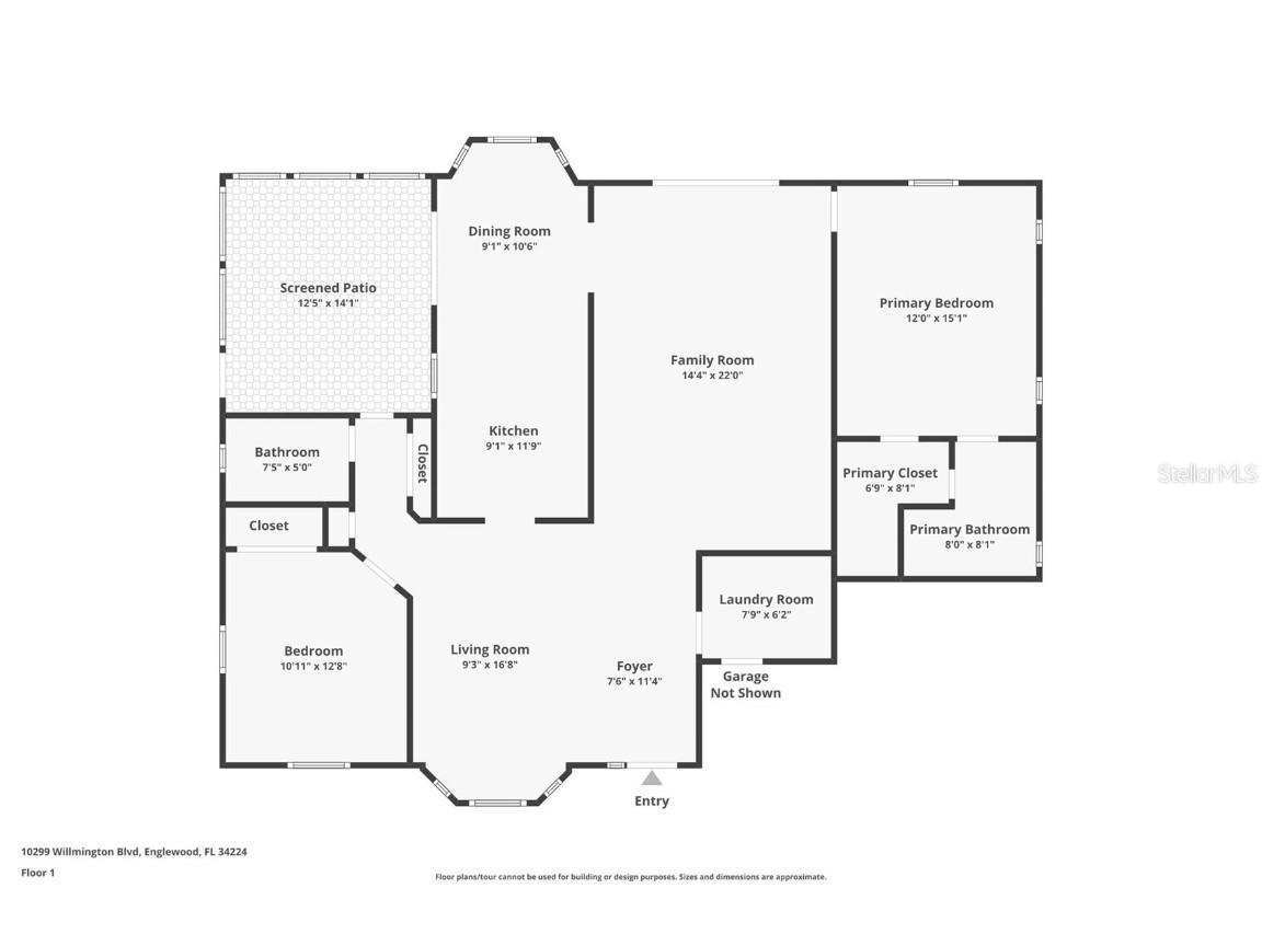
Room Information
Main Floor
Porch: 13x13
Bedroom 2: 11x10
Primary Bedroom: 11x13
Dining Room: 11x14
Kitchen: 9x12
Living Room: 14x19
Bathrooms
Full Baths: 2
Additonal Room Information
Laundry: Inside
Interior Features
Appliances: Microwave, Range, Refrigerator, Washer, Dishwasher, Dryer
Flooring: Carpet,Ceramic Tile
Doors/Windows: Storm Window(s)
Additional Interior Features: Eat-In Kitchen, Ceiling Fan(s), Living/Dining Room
Utilities
Water: Public
Sewer: Septic Tank
Other Utilities: Electricity Connected,High Speed Internet Available,Water Connected
Cooling: Ceiling Fan(s), Central Air
Heating: Central, Electric
Exterior / Lot Features
Garage Spaces: 2
Parking Description: Garage, Garage Door Opener, driveway
Roof: Shingle
Lot View: Trees/Woods
Lot Dimensions: 80x125x80x125
Fencing: Wood
Additional Exterior/Lot Features: Enclosed, Outside City Limits
Driving Directions
776 W, Rt on Wilmington
Financial Considerations
Terms: Cash,Conventional
Tax/Property ID: 412002204004
Tax Amount: 4282.11
Tax Year: 2024
A broker reciprocity listing courtesy: MICHAEL SAUNDERS & CO. - BOCA
Based on information provided by Stellar MLS as distributed by the MLS GRID. Information from the Internet Data Exchange is provided exclusively for consumers’ personal, non-commercial use, and such information may not be used for any purpose other than to identify prospective properties consumers may be interested in purchasing. This data is deemed reliable but is not guaranteed to be accurate by Edina Realty, Inc., or by the MLS. Edina Realty, Inc., is not a multiple listing service (MLS), nor does it offer MLS access.
Copyright 2025 Stellar MLS as distributed by the MLS GRID. All Rights Reserved.
Payment Calculator
Interest rate and annual percentage rate (APR) are based on current market conditions, are for informational purposes only, are subject to change without notice and may be subject to pricing add-ons related to property type, loan amount, loan-to-value, credit score and other variables. Estimated closing costs used in the APR calculation are assumed to be paid by the borrower at closing. If the closing costs are financed, the loan, APR and payment amounts will be higher. If the down payment is less than 20%, mortgage insurance may be required and could increase the monthly payment and APR. Contact us for details. Additional loan programs may be available. Accuracy is not guaranteed, and all products may not be available in all borrower's geographical areas and are based on their individual situation. This is not a credit decision or a commitment to lend.
Sales History & Tax Summary for 10299 Willmington Boulevard
Sales History
| Date | Price | Change |
|---|---|---|
| Currently not available. | ||
Tax Summary
| Tax Year | Estimated Market Value | Total Tax |
|---|---|---|
| Currently not available. | ||
Data powered by ATTOM Data Solutions. Copyright© 2025. Information deemed reliable but not guaranteed.
Schools
Schools nearby 10299 Willmington Boulevard
| Schools in attendance boundaries | Grades | Distance | Rating |
|---|---|---|---|
| Loading... | |||
| Schools nearby | Grades | Distance | Rating |
|---|---|---|---|
| Loading... | |||
Data powered by ATTOM Data Solutions. Copyright© 2025. Information deemed reliable but not guaranteed.
The schools shown represent both the assigned schools and schools by distance based on local school and district attendance boundaries. Attendance boundaries change based on various factors and proximity does not guarantee enrollment eligibility. Please consult your real estate agent and/or the school district to confirm the schools this property is zoned to attend. Information is deemed reliable but not guaranteed.
SchoolDigger ® Rating
The SchoolDigger rating system is a 1-5 scale with 5 as the highest rating. SchoolDigger ranks schools based on test scores supplied by each state's Department of Education. They calculate an average standard score by normalizing and averaging each school's test scores across all tests and grades.
Coming soon properties will soon be on the market, but are not yet available for showings.