10306 Green Grove Place Tampa, FL 33624
For Sale MLS# TB8362588
3 beds 2 baths 1,422 sq ft Single Family
Details for 10306 Green Grove Place
MLS# TB8362588
Description for 10306 Green Grove Place, Tampa, FL, 33624
****BACK on MARKET ~ NO FAULT of the HOME ~ BUYER’S FINANCING FELL THROUGH ~ SOLID, SOLID HOME! LITERALLY, MOVE-IN READY!!**** Beautifully RENOVATED and AMAZINGLY AFFORDABLE home in highly sought-after Carrollwood is ready for YOU! This BRIGHT & CHEERY - 3-bedroom, 2-bathroom home with its FULLY-FENCED YARD is located on an oversized CUL-DE-SAC! There will be no through-traffic here as this CUL-DE-SAC street is lined with only 6 homes on each side! Upon entering your home, you are greeted with your OPEN and BRIGHT family room and kitchen combo! Its TWO SLIDING GLASS DOORS and LARGE WINDOW offer SO MUCH NATURAL LIGHT! There are SO MANY CLASSY, TRENDY upgrades in this home… LUXURY VINYL FLOORING throughout the home – INCLUDING the stairs! NO carpet! Your OPEN kitchen…simply gorgeous – with its white SHAKER cabinets, QUARTZ countertops, farmhouse sink, ALL STAINLESS STEEL APPLIANCES are INCLUDED refrigerator, microwave, dishwasher, and smoothtop/slide-in range! Your spacious PRIMARY BEDROOM has a big walk-in closet and ENSUITE BATHROOM! Your second and third bedrooms are also spacious and both are located upstairs, along with your second bathroom and a LARGE STORAGE CLOSET at the top of the stairs. BOTH BATHROOMS have been UPDATED beautifully! WASHER & DRYER INCLUDED and located on the first floor! You’ll have plenty of room for your tools and “toys” in your STORAGE SHED! ~ The Plantation of Carrollwood consists of 119 acres of common areas throughout the community: 55 acres of lakes and 64 acres for recreation activities which include their clubhouse, 2 tennis courts, baseball, volleyball and soccer fields; 2 swimming pools, handball courts and playgrounds; walking trails and ponds for fishing. ~ LIVING HERE, YOU WILL BE within 8 miles (11mins) to Tampa International Airport, 4miles to Upper Tampa Bay Trail, less than 15mins to 3 MALLS – Citrus Park, Westshore Plaza, International Plaza, 35mins to Clearwater Beach, 17miles to MacDill AFB (30mins), 12miles to Downtown Tampa, 1.7miles to Veterans Expressway, 5miles to I-275. Minutes away from too many restaurants and shops to name! YOU WILL LITERALLY BE CLOSE TO EVERYTHING HERE! EVERYTHING! ~~ ROOF 10/2019 ~ NOT in a FLOOD ZONE! ~~ This home is truly “MOVE-IN” READY!
Listing Information
Property Type: Residential, Single Family Residence
Status: Active
Bedrooms: 3
Bathrooms: 2
Lot Size: 0.07 Acres
Square Feet: 1,422 sq ft
Year Built: 1978
Stories: 2 Story
Construction: Block,Stucco
Subdivision: Rosemount Village Unit Iii
Foundation: Slab
County: Hillsborough
School Information
Elementary: Cannella-Hb
Middle: Pierce-Hb
High: Leto-Hb
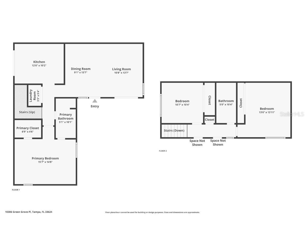
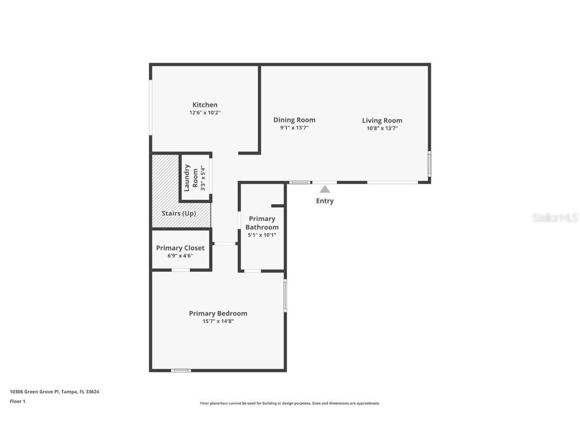
Room Information
Main Floor
Laundry:
Primary Bathroom:
Primary Bedroom:
Great Room:
Kitchen:
Upper Floor
Bedroom 2:
Bathroom 2:
Bedroom 1:
Bathrooms
Full Baths: 2
Additonal Room Information
Laundry: Laundry Closet
Interior Features
Appliances: Electric Water Heater, Washer, Microwave, Range, Refrigerator, Dishwasher, Dryer
Flooring: Luxury Vinyl
Additional Interior Features: Ceiling Fan(s), Walk-In Closet(s), Open Floorplan, Main Level Primary
Utilities
Water: Public
Sewer: Public Sewer
Other Utilities: Cable Available,Electricity Connected,Fiber Optic Available,High Speed Internet Available,Municipal Utilities,Sewer Connected,Water Connected
Cooling: Ceiling Fan(s), Central Air
Heating: Electric, Central
Exterior / Lot Features
Roof: Shingle
Pool: Community, Association
Lot Dimensions: 45'x65'
Additional Exterior/Lot Features: Storage
Community Features
Community Features: Sidewalks, Pool, Tennis Court(s), Playground, Clubhouse, Street Lights, Park, Racquetball
Association Amenities: Park, Trail(s), Basketball Court, Pool
HOA Dues Include: Recreation Facilities, Maintenance Grounds, Pool(s)
Homeowners Association: Yes
HOA Dues: $80 / Monthly
Driving Directions
From Gunn Hwy, turn into the Plantation of Carrollwood community via Plantation Blvd. Turn left at stop sign - on to Plantation Blvd. In one mile, turn right onto Rosemount Dr. Make first left onto Glenaire Ct. Turn left at Green Grove Dr. (Waze spells it Greengrove)
Financial Considerations
Terms: Cash,Conventional,FHA,VA Loan
Tax/Property ID: U-17-28-18-13A-000000-00003.0
Tax Amount: 3693
Tax Year: 2024
A broker reciprocity listing courtesy: AGILE GROUP REALTY
Based on information provided by Stellar MLS as distributed by the MLS GRID. Information from the Internet Data Exchange is provided exclusively for consumers’ personal, non-commercial use, and such information may not be used for any purpose other than to identify prospective properties consumers may be interested in purchasing. This data is deemed reliable but is not guaranteed to be accurate by Edina Realty, Inc., or by the MLS. Edina Realty, Inc., is not a multiple listing service (MLS), nor does it offer MLS access.
Copyright 2025 Stellar MLS as distributed by the MLS GRID. All Rights Reserved.
Payment Calculator
Interest rate and annual percentage rate (APR) are based on current market conditions, are for informational purposes only, are subject to change without notice and may be subject to pricing add-ons related to property type, loan amount, loan-to-value, credit score and other variables. Estimated closing costs used in the APR calculation are assumed to be paid by the borrower at closing. If the closing costs are financed, the loan, APR and payment amounts will be higher. If the down payment is less than 20%, mortgage insurance may be required and could increase the monthly payment and APR. Contact us for details. Additional loan programs may be available. Accuracy is not guaranteed, and all products may not be available in all borrower's geographical areas and are based on their individual situation. This is not a credit decision or a commitment to lend.
Sales History & Tax Summary for 10306 Green Grove Place
Sales History
| Date | Price | Change |
|---|---|---|
| Currently not available. | ||
Tax Summary
| Tax Year | Estimated Market Value | Total Tax |
|---|---|---|
| Currently not available. | ||
Data powered by ATTOM Data Solutions. Copyright© 2025. Information deemed reliable but not guaranteed.
Schools
Schools nearby 10306 Green Grove Place
| Schools in attendance boundaries | Grades | Distance | Rating |
|---|---|---|---|
| Loading... | |||
| Schools nearby | Grades | Distance | Rating |
|---|---|---|---|
| Loading... | |||
Data powered by ATTOM Data Solutions. Copyright© 2025. Information deemed reliable but not guaranteed.
The schools shown represent both the assigned schools and schools by distance based on local school and district attendance boundaries. Attendance boundaries change based on various factors and proximity does not guarantee enrollment eligibility. Please consult your real estate agent and/or the school district to confirm the schools this property is zoned to attend. Information is deemed reliable but not guaranteed.
SchoolDigger ® Rating
The SchoolDigger rating system is a 1-5 scale with 5 as the highest rating. SchoolDigger ranks schools based on test scores supplied by each state's Department of Education. They calculate an average standard score by normalizing and averaging each school's test scores across all tests and grades.
Coming soon properties will soon be on the market, but are not yet available for showings.