10314 Lamson Road Dade City, FL 33525
For Sale MLS# TB8441139
4 beds 3 baths 2,691 sq ft Single Family
Details for 10314 Lamson Road
MLS# TB8441139
Description for 10314 Lamson Road, Dade City, FL, 33525
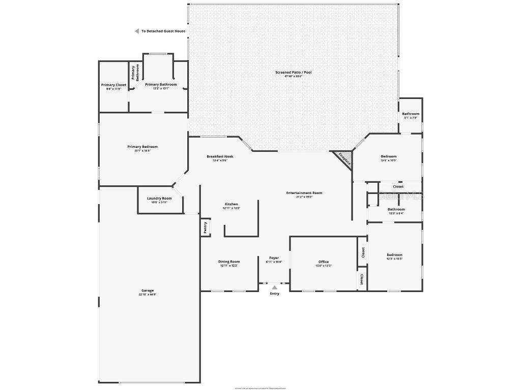
One or more photo(s) has been virtually staged. ACREAGE, HOUSE, DETACHED IN-LAW & ZONED AGRICULTRUAL!!!! Everything you need on this 2.59 acres. Lets start with the main house featuring 2691 sq feet of heated and cooled living space and 4 generously sized bedrooms and 3 full bathrooms. Features such as split bedroom floor plan, high ceilings, a great room with fireplace and am OVERSIZED 4 car garage. That's not all, the screen enclosed "SOLAR HEATED" pool offers tons of space for outdoor entertaining and once you open the pocket sliding glass doors of the house the entertainment space spills into the home. The Primary bedroom features hardwood floors, high ceilings, private entrance out to the pool and a huge bathroom with a walk-in shower that was just re-tiled, jetted soaking tub and HUGE walk-in closet. The oversized utility/laundry room has lots of cabinet space, counter space and a wash tub and is located right off the garage. The DETACED IN_LAW APARTMENT features high ceilings, HUGE living room and an OVERSIZED bedroom & Bathroom plus a 1 car garage along with its own fenced in yard. This property is zoned agriculture and allows for chickens, cows, horses, sheep, goats and farm animals and gardening. Situated in the rolling hills of Dade City and all the quaint shops & eateries of downtown Dade City or just a short drive to Zephyrhills, Wesley Chapel or Tampa. of the
Listing Information
Property Type: Residential, Single Family Residence
Status: Active
Bedrooms: 4
Bathrooms: 3
Lot Size: 2.59 Acres
Square Feet: 2,691 sq ft
Year Built: 2003
Garage: Yes
Stories: 1 Story
Construction: Stucco
Subdivision: Zephyrhills Colony Co
Foundation: Slab
County: Pasco
School Information
Elementary: Centennial Elementary-Po
Middle: Centennial Middle-Po
Room Information
Main Floor
Bedroom 4:
Bathroom 1:
Living Room:
Primary Bathroom:
Primary Bedroom:
Utility Room:
Kitchen:
Bathroom 2:
Bedroom 1:
Dining Room:
Bathrooms
Full Baths: 3
Additonal Room Information
Laundry: Laundry Room, Inside
Interior Features
Appliances: Electric Water Heater, Dishwasher, Range, Refrigerator, Microwave
Flooring: Tile,Wood
Fireplaces: Family Room
Additional Interior Features: Eat-In Kitchen, Cathedral Ceiling(s), Open Floorplan, Ceiling Fan(s), Solid Surface Counters
Utilities
Water: Well
Sewer: Septic Tank
Other Utilities: Cable Available,Electricity Connected,High Speed Internet Available
Cooling: Ceiling Fan(s), Central Air
Heating: Central, Electric
Exterior / Lot Features
Attached Garage: Attached Garage
Garage Spaces: 4
Parking Description: Garage Door Opener, driveway, Garage, Garage Faces Side, Oversized
Roof: Shingle
Pool: Heated, Other, In Ground, Screen Enclosure, Gunite
Lot View: Pool
Fencing: Wood, Vinyl, Chain Link
Additional Exterior/Lot Features: Patio, Front Porch, Screened, Landscaped, Outside City Limits
Community Features
Community Features: Sidewalks
Driving Directions
US WHY 301 to Townsend Rd, to Right on Lamson follow to house, see directional signs.
Financial Considerations
Terms: Cash,Conventional,FHA,VA Loan
Tax/Property ID: 14-25-21-0010-09300-0010
Tax Amount: 4319.54
Tax Year: 2024
A broker reciprocity listing courtesy: ELITE BROKERS, LLC
Based on information provided by Stellar MLS as distributed by the MLS GRID. Information from the Internet Data Exchange is provided exclusively for consumers’ personal, non-commercial use, and such information may not be used for any purpose other than to identify prospective properties consumers may be interested in purchasing. This data is deemed reliable but is not guaranteed to be accurate by Edina Realty, Inc., or by the MLS. Edina Realty, Inc., is not a multiple listing service (MLS), nor does it offer MLS access.
Copyright 2025 Stellar MLS as distributed by the MLS GRID. All Rights Reserved.
Payment Calculator
Interest rate and annual percentage rate (APR) are based on current market conditions, are for informational purposes only, are subject to change without notice and may be subject to pricing add-ons related to property type, loan amount, loan-to-value, credit score and other variables. Estimated closing costs used in the APR calculation are assumed to be paid by the borrower at closing. If the closing costs are financed, the loan, APR and payment amounts will be higher. If the down payment is less than 20%, mortgage insurance may be required and could increase the monthly payment and APR. Contact us for details. Additional loan programs may be available. Accuracy is not guaranteed, and all products may not be available in all borrower's geographical areas and are based on their individual situation. This is not a credit decision or a commitment to lend.
Sales History & Tax Summary for 10314 Lamson Road
Sales History
| Date | Price | Change |
|---|---|---|
| Currently not available. | ||
Tax Summary
| Tax Year | Estimated Market Value | Total Tax |
|---|---|---|
| Currently not available. | ||
Data powered by ATTOM Data Solutions. Copyright© 2025. Information deemed reliable but not guaranteed.
Schools
Schools nearby 10314 Lamson Road
| Schools in attendance boundaries | Grades | Distance | Rating |
|---|---|---|---|
| Loading... | |||
| Schools nearby | Grades | Distance | Rating |
|---|---|---|---|
| Loading... | |||
Data powered by ATTOM Data Solutions. Copyright© 2025. Information deemed reliable but not guaranteed.
The schools shown represent both the assigned schools and schools by distance based on local school and district attendance boundaries. Attendance boundaries change based on various factors and proximity does not guarantee enrollment eligibility. Please consult your real estate agent and/or the school district to confirm the schools this property is zoned to attend. Information is deemed reliable but not guaranteed.
SchoolDigger ® Rating
The SchoolDigger rating system is a 1-5 scale with 5 as the highest rating. SchoolDigger ranks schools based on test scores supplied by each state's Department of Education. They calculate an average standard score by normalizing and averaging each school's test scores across all tests and grades.
Coming soon properties will soon be on the market, but are not yet available for showings.