$324,990
1038 Spotted Egret Loop Ruskin, FL 33570
For Sale MLS# TB8448442
3 beds 2 baths 1,302 sq ft Single Family
Details for 1038 Spotted Egret Loop
MLS# TB8448442
Description for 1038 Spotted Egret Loop, Ruskin, FL, 33570
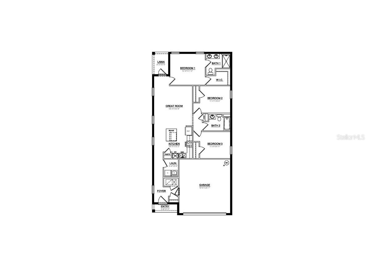
Under Construction. The builder is offering buyers up to $25,000 towards closing costs with the use of a preferred lender and title company. Ruskin Reserve is NO CDD community that offers a mix of single-family homes and townhomes designed for modern living. Conveniently located near US-41 and I-75, the community provides easy access to Tampa, Apollo Beach, and Sun City Center. Enjoy nearby outdoor attractions like EG Simmons Regional Park and Little Manatee River State Park, along with a variety of shopping, dining, and entertainment options. Homes in Ruskin Reserve feature D.R. Horton’s signature Smart Home System, durable concrete block construction, and energy-efficient designs, making this community ideal for families and professionals alike. Pictures, photographs, colors, features, and sizes are for illustration purposes only and will vary from the homes as built. Home and community information, including pricing, included features, terms, availability, and amenities, are subject to change and prior sale at any time without notice or obligation. Materials may vary based on availability. D.R. Horton Reserves all Rights.
Listing Information
Property Type: Residential, Single Family Residence
Status: Active
Bedrooms: 3
Bathrooms: 2
Lot Size: 0.11 Acres
Square Feet: 1,302 sq ft
Year Built: 2025
Garage: Yes
Stories: 1 Story
Construction: Block,Stucco
Construction Display: New Construction
Subdivision: Ruskin Reserve
Builder: D.R. Horton
Foundation: Slab
County: Hillsborough
Construction Status: Under Construction
School Information
Elementary: Thompson Elementary
Middle: Shields-Hb
High: Lennard-Hb
Room Information
Main Floor
Kitchen: 8x10
Primary Bedroom: 12x14
Great Room: 14x14
Bathrooms
Full Baths: 2
Additonal Room Information
Laundry: Laundry Room
Interior Features
Appliances: Dishwasher, Dryer, Microwave, Range, Refrigerator, Washer
Flooring: Carpet,Luxury Vinyl
Doors/Windows: Blinds, Low-Emissivity Windows
Additional Interior Features: Open Floorplan
Utilities
Water: Public
Sewer: Public Sewer
Other Utilities: Municipal Utilities,Underground Utilities
Cooling: Central Air
Heating: Heat Pump, Central
Exterior / Lot Features
Attached Garage: Attached Garage
Garage Spaces: 2
Parking Description: Parking Pad
Roof: Shingle
Additional Exterior/Lot Features: Sprinkler/Irrigation
Community Features
Community Features: Park
HOA Dues Include: Other
Homeowners Association: Yes
HOA Dues: $83 / Monthly
Driving Directions
From I-75, take exit 240B to merge onto FL-674 W/ College Ave toward Ruskin. Turn Right on to 12th Street SE and left on 3rd Ave, Right on Royal Spoonbill Dr.
Financial Considerations
Tax/Property ID: U 08 32 19 D79 000000 00038.0
Tax Year: 2025
A broker reciprocity listing courtesy: D R HORTON REALTY OF TAMPA LLC
Based on information provided by Stellar MLS as distributed by the MLS GRID. Information from the Internet Data Exchange is provided exclusively for consumers’ personal, non-commercial use, and such information may not be used for any purpose other than to identify prospective properties consumers may be interested in purchasing. This data is deemed reliable but is not guaranteed to be accurate by Edina Realty, Inc., or by the MLS. Edina Realty, Inc., is not a multiple listing service (MLS), nor does it offer MLS access.
Copyright 2025 Stellar MLS as distributed by the MLS GRID. All Rights Reserved.
Payment Calculator
Interest rate and annual percentage rate (APR) are based on current market conditions, are for informational purposes only, are subject to change without notice and may be subject to pricing add-ons related to property type, loan amount, loan-to-value, credit score and other variables. Estimated closing costs used in the APR calculation are assumed to be paid by the borrower at closing. If the closing costs are financed, the loan, APR and payment amounts will be higher. If the down payment is less than 20%, mortgage insurance may be required and could increase the monthly payment and APR. Contact us for details. Additional loan programs may be available. Accuracy is not guaranteed, and all products may not be available in all borrower's geographical areas and are based on their individual situation. This is not a credit decision or a commitment to lend.
Sales History & Tax Summary for 1038 Spotted Egret Loop
Sales History
| Date | Price | Change |
|---|---|---|
| Currently not available. | ||
Tax Summary
| Tax Year | Estimated Market Value | Total Tax |
|---|---|---|
| Currently not available. | ||
Data powered by ATTOM Data Solutions. Copyright© 2025. Information deemed reliable but not guaranteed.
Schools
Schools nearby 1038 Spotted Egret Loop
| Schools in attendance boundaries | Grades | Distance | Rating |
|---|---|---|---|
| Loading... | |||
| Schools nearby | Grades | Distance | Rating |
|---|---|---|---|
| Loading... | |||
Data powered by ATTOM Data Solutions. Copyright© 2025. Information deemed reliable but not guaranteed.
The schools shown represent both the assigned schools and schools by distance based on local school and district attendance boundaries. Attendance boundaries change based on various factors and proximity does not guarantee enrollment eligibility. Please consult your real estate agent and/or the school district to confirm the schools this property is zoned to attend. Information is deemed reliable but not guaranteed.
SchoolDigger ® Rating
The SchoolDigger rating system is a 1-5 scale with 5 as the highest rating. SchoolDigger ranks schools based on test scores supplied by each state's Department of Education. They calculate an average standard score by normalizing and averaging each school's test scores across all tests and grades.
Coming soon properties will soon be on the market, but are not yet available for showings.