$1,790,000
104 Palmera Boulevard NE Saint Petersburg, FL 33704
For Sale MLS# TB8469818
5 beds 5 baths 4,289 sq ft Single Family
Details for 104 Palmera Boulevard NE
MLS# TB8469818
Description for 104 Palmera Boulevard NE, Saint Petersburg, FL, 33704
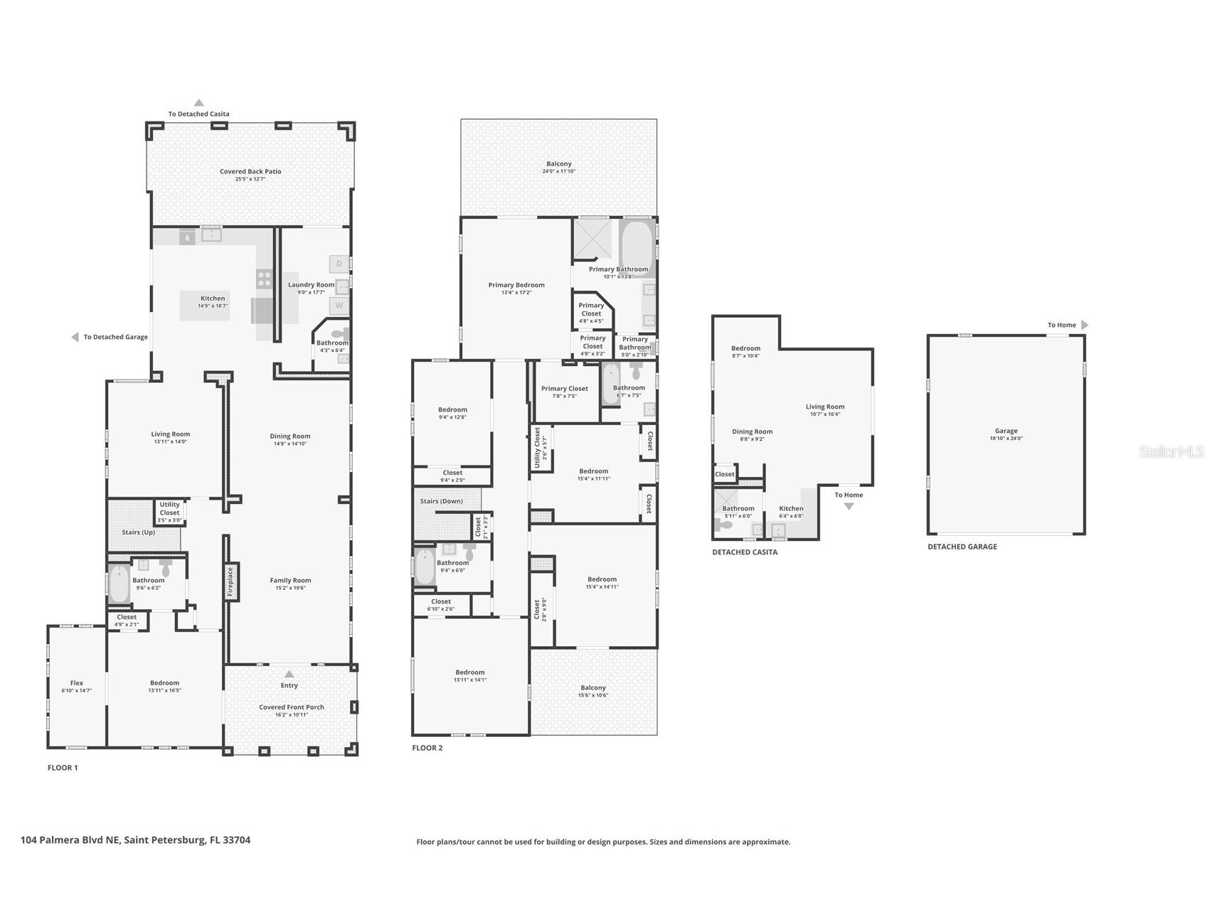
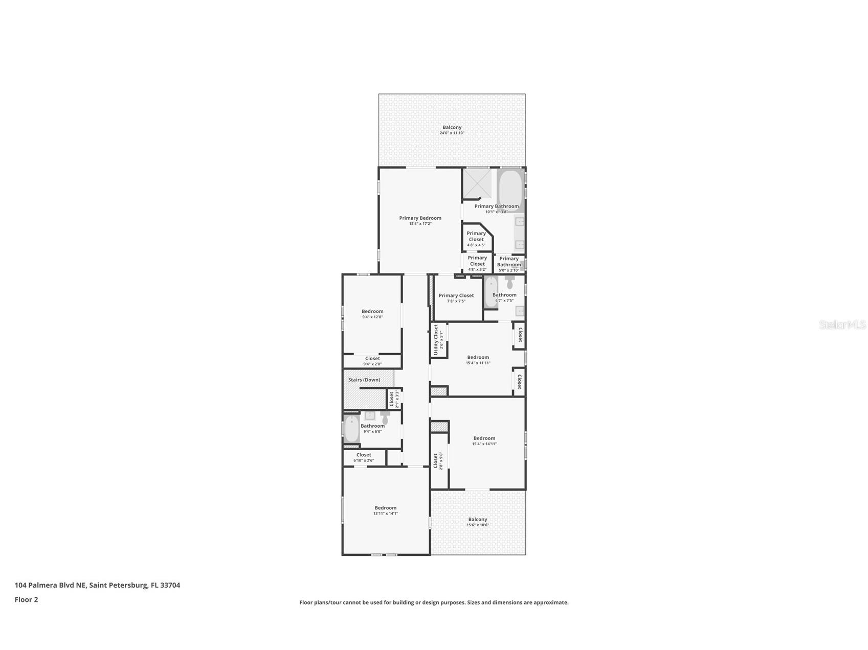
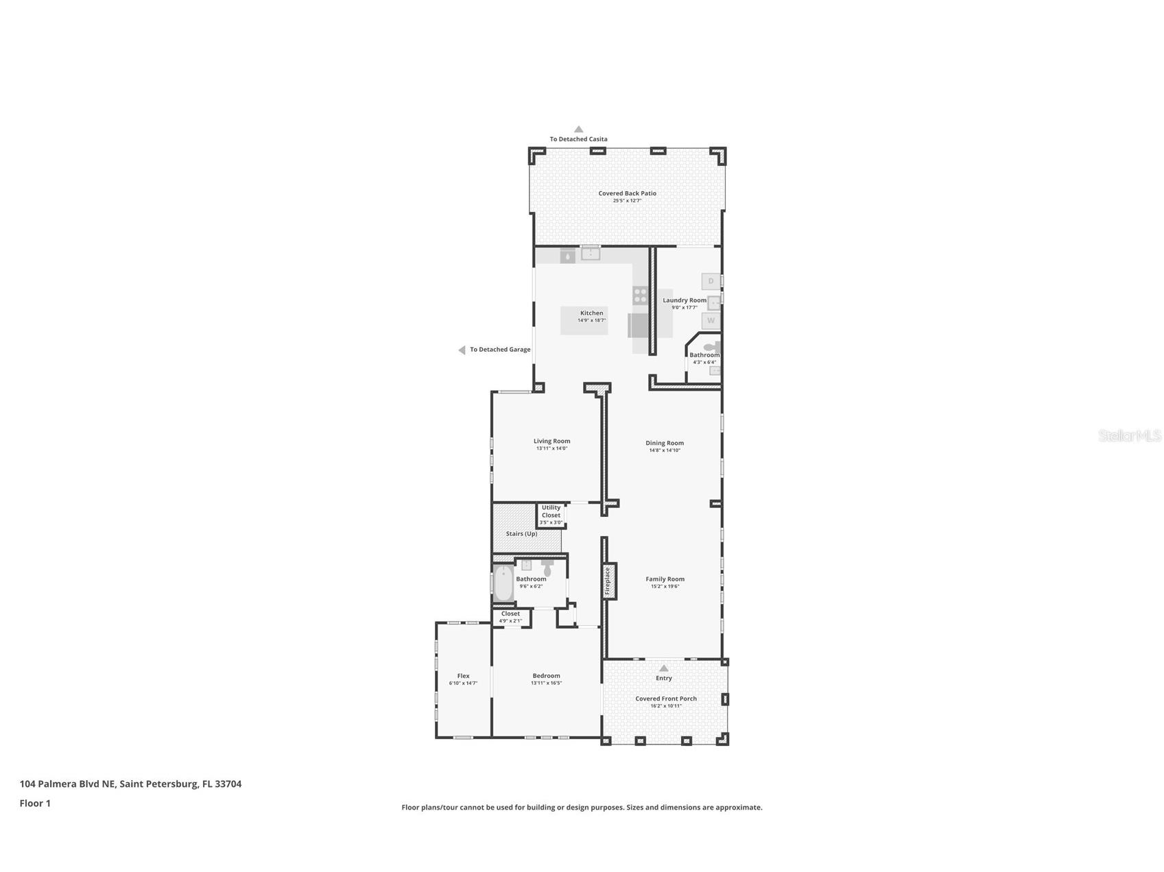
Built in 1926, 104 Palmera is the original and most distinguished estate on coveted Snell Isle, offering a rare opportunity to own a true piece of St. Petersburg history directly across from the signature 9th fairway of the Renaissance Vinoy Golf Course. Lovingly restored over the past decade, this 5- or 6-bedroom, 4.5-bath residence blends timeless architectural character with thoughtful modern updates, including a beautifully renovated kitchen featuring stainless steel appliances and hardwood flooring that adds warmth and continuity throughout the home. The property has also been updated with impact-rated windows and doors, providing peace of mind while helping to reduce insurance premiums and improve energy efficiency. An inviting open-air front porch sets the tone, leading into a formal living room anchored by a stunning carved stone fireplace dating back to 1926. Crown molding, spacious hallways, and original hardwood floors upstairs preserve the home’s historic charm, while the flexible floor plan offers functionality for today’s lifestyle. The main level also includes a large family room with office area, a separate laundry room, and a convenient half bath. Upstairs, the expansive primary suite serves as a private retreat, complete with French doors opening to a balcony overlooking the pool and lush landscaping, along with a spa-inspired bath featuring a jacuzzi tub, separate shower, dual vanities, and generous walk-in closets. Four additional bedrooms provide ample space for family, guests, or work-from-home needs while maintaining privacy and comfort. Outdoors, the brick-paver pool and entertaining area create a true backyard sanctuary with a covered patio, astroturf lawn, basketball court, and mature landscaping. A separate 600-square-foot pool house or apartment with full bath and kitchen hookup offers ideal accommodations for guests, extended family, or potential rental income. Additional highlights include a new two-car garage, abundant storage, and classic brick pavers enhancing the driveway, entry, and patio areas. As the original Perry Snell family estate, this remarkable property places you within one of St. Petersburg’s most prestigious communities, with access to the Vinoy Golf Course and Country Club, the St. Petersburg Yacht Club Snell Isle Marina, and the St. Petersburg Women’s Club just moments away. Downtown St. Petersburg is less than a mile away, offering world-class dining, shopping, and cultural attractions, with convenient access to 4th Street and Tampa International Airport within 30 minutes. 104 Palmera is more than a home—it is a legacy property offering historic significance, modern comfort, and an unmatched Snell Isle lifestyle.
Listing Information
Property Type: Residential, Single Family Residence
Status: Active
Bedrooms: 5
Bathrooms: 5
Lot Size: 0.27 Acres
Square Feet: 4,289 sq ft
Year Built: 1926
Garage: Yes
Stories: 2 Story
Construction: Block
Subdivision: Snell Isle Rev Rep Brightsides Unit 5
Foundation: Slab
County: Pinellas
Room Information
Main Floor
Living Room: 18x23
Kitchen: 18x15
Upper Floor
Primary Bedroom: 14x18
Bathrooms
Full Baths: 4
1/2 Baths: 1
Additonal Room Information
Laundry: Inside, Laundry Room
Interior Features
Appliances: Dishwasher, Range, Refrigerator, Microwave
Flooring: Wood
Fireplaces: Wood Burning
Additional Interior Features: Ceiling Fan(s), Walk-In Closet(s), Built-in Features, Stone Counters, Wood Cabinets, Crown Molding
Utilities
Water: Public
Sewer: Public Sewer
Other Utilities: Electricity Connected,Sewer Connected,Water Connected
Cooling: Central Air, Ceiling Fan(s)
Heating: Central
Exterior / Lot Features
Attached Garage: Attached Garage
Garage Spaces: 2
Roof: Tile
Pool: In Ground
Lot View: Golf Course
Lot Dimensions: 78x153
Additional Exterior/Lot Features: French Patio Doors, Lighting, Sprinkler/Irrigation, Outdoor Shower, Balcony, Balcony, Patio, Porch, Covered, Rear Porch, Flat, Level, Landscaped, Cleared, City Lot, Outside City Limits
Driving Directions
22nd Ave N to Coffee Pot Bayou , North on Snell Isle bridge, Snell Isle Blvd to Palmera Blvd.
Financial Considerations
Terms: Cash,Conventional,VA Loan
Tax/Property ID: 08-31-17-83628-000-5970
Tax Amount: 12127.53
Tax Year: 2024
A broker reciprocity listing courtesy: RE/MAX ACTION FIRST OF FLORIDA
Based on information provided by Stellar MLS as distributed by the MLS GRID. Information from the Internet Data Exchange is provided exclusively for consumers’ personal, non-commercial use, and such information may not be used for any purpose other than to identify prospective properties consumers may be interested in purchasing. This data is deemed reliable but is not guaranteed to be accurate by Edina Realty, Inc., or by the MLS. Edina Realty, Inc., is not a multiple listing service (MLS), nor does it offer MLS access.
Copyright 2026 Stellar MLS as distributed by the MLS GRID. All Rights Reserved.
Payment Calculator
Interest rate and annual percentage rate (APR) are based on current market conditions, are for informational purposes only, are subject to change without notice and may be subject to pricing add-ons related to property type, loan amount, loan-to-value, credit score and other variables. Estimated closing costs used in the APR calculation are assumed to be paid by the borrower at closing. If the closing costs are financed, the loan, APR and payment amounts will be higher. If the down payment is less than 20%, mortgage insurance may be required and could increase the monthly payment and APR. Contact us for details. Additional loan programs may be available. Accuracy is not guaranteed, and all products may not be available in all borrower's geographical areas and are based on their individual situation. This is not a credit decision or a commitment to lend.
Sales History & Tax Summary for 104 Palmera Boulevard NE
Sales History
| Date | Price | |
|---|---|---|
| Currently not available. | ||
Tax Summary
| Tax Year | Estimated Market Value | Total Tax |
|---|---|---|
| Currently not available. | ||
Data powered by ATTOM Data Solutions. Copyright© 2026. Information deemed reliable but not guaranteed.
Schools
Schools nearby 104 Palmera Boulevard NE
| Schools in attendance boundaries | Grades | Distance | Rating |
|---|---|---|---|
| Loading... | |||
| Schools nearby | Grades | Distance | Rating |
|---|---|---|---|
| Loading... | |||
Data powered by ATTOM Data Solutions. Copyright© 2026. Information deemed reliable but not guaranteed.
The schools shown represent both the assigned schools and schools by distance based on local school and district attendance boundaries. Attendance boundaries change based on various factors and proximity does not guarantee enrollment eligibility. Please consult your real estate agent and/or the school district to confirm the schools this property is zoned to attend. Information is deemed reliable but not guaranteed.
SchoolDigger ® Rating
The SchoolDigger rating system is a 1-5 scale with 5 as the highest rating. SchoolDigger ranks schools based on test scores supplied by each state's Department of Education. They calculate an average standard score by normalizing and averaging each school's test scores across all tests and grades.
Coming soon properties will soon be on the market, but are not yet available for showings.