10404 Westpark Preserve Boulevard Tampa, FL 33625
For Sale MLS# TB8418804
2 beds 3 baths 1,248 sq ft Townhouse/Twinhome
Details for 10404 Westpark Preserve Boulevard
MLS# TB8418804
Description for 10404 Westpark Preserve Boulevard, Tampa, FL, 33625
Amazing Opportunity PRICE ADJUSTMENT...Charming Townhouse in Prime Tampa Location - Gated Community Living Welcome to 10404 Westpark Preserve Boulevard, a beautifully maintained 2-bedroom, 2.5-bathroom townhouse in the desirable gated community of Westpark Preserve. This move-in ready home offers comfort, functionality, and an unbeatable location in Tampa’s Citrus Park area. Step inside to discover an open and airy layout designed for everyday living and entertaining. The well-appointed kitchen features ample counter space, generous storage, and all the appliances you need. The spacious living and dining areas flow seamlessly together, creating a warm and inviting atmosphere. Upstairs, both bedrooms have private en-suite bathrooms, providing a rare level of comfort and privacy. A convenient half-bath is located on the main level for guests. Enjoy access to the community pool just steps away from your front door—ideal for relaxing or socializing. The gated community provides added peace of mind and a sense of privacy, while the location places you close to everything. Just minutes from Citrus Park Town Center Mall, Upper Tampa Bay Trail, and a variety of dining and shopping options, this home is also conveniently near the Veterans Expressway for quick access to Downtown Tampa, Westshore, and Tampa International Airport. You’re never far from weekend fun with ZooTampa, Busch Gardens, Hyde Park Village, and the Gulf beaches all within easy reach. Whether you're looking for a low-maintenance primary residence or a smart investment opportunity, this townhouse delivers on lifestyle and location. Schedule your private tour today and experience the best of Tampa living.
Listing Information
Property Type: Residential, Townhouse
Status: Active
Bedrooms: 2
Bathrooms: 3
Lot Size: 0.03 Acres
Square Feet: 1,248 sq ft
Year Built: 2007
Stories: 2 Story
Construction: Wood Frame
Construction Display: New Construction
Subdivision: Westpark Preserve
Foundation: Slab
County: Hillsborough
Construction Status: New Construction
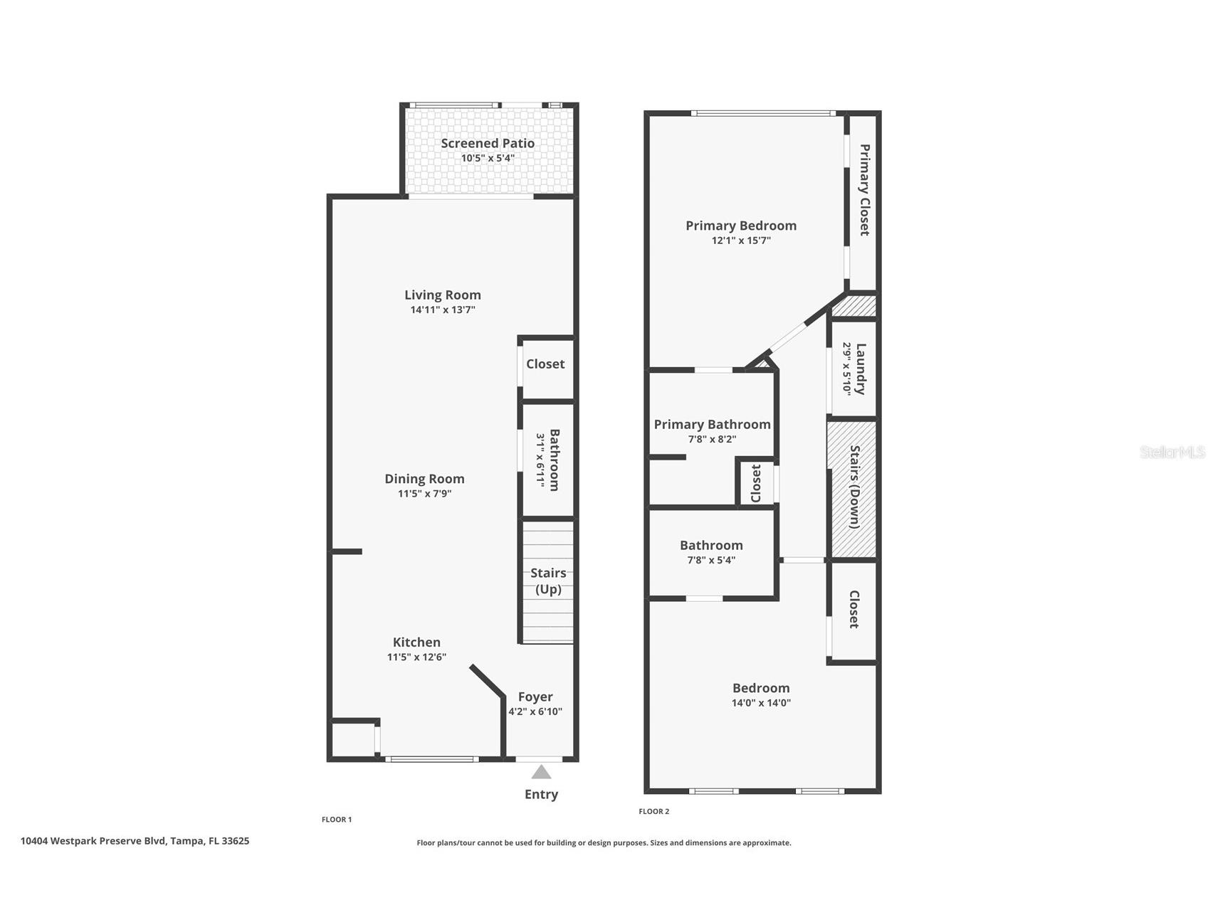
Room Information
Main Floor
Porch: 5x10
Dining Room: 7x11
Kitchen: 12x11
Living Room: 13x14
Upper Floor
Laundry: 5x2
Bathroom 2: 5x7
Primary Bathroom: 8x7
Bedroom 2: 14x14
Primary Bedroom: 15x12
Bathrooms
Full Baths: 2
1/2 Baths: 1
Additonal Room Information
Laundry: Laundry Room
Interior Features
Appliances: Range, Refrigerator, Dishwasher, Microwave
Flooring: Carpet,Tile
Additional Interior Features: Walk-In Closet(s), Open Floorplan, Kitchen/Family Room Combo, Living/Dining Room
Utilities
Water: Public
Sewer: Public Sewer
Other Utilities: Cable Available,Electricity Available,High Speed Internet Available,Phone Available,Sewer Available,Water Available
Cooling: Central Air
Heating: Central
Exterior / Lot Features
Parking Description: Off Street, Parking Pad
Roof: Shingle
Pool: Community
Additional Exterior/Lot Features: Courtyard, Lighting, Rear Porch, Screened, Patio, Landscaped
Community Features
Community Features: Pool, Sidewalks, Gated
Security Features: Gated Community
HOA Dues Include: Maintenance Grounds, Road Maintenance, Maintenance Structure, Pool(s), Cable TV, Trash, Water, Sewer
Homeowners Association: Yes
HOA Dues: $522 / Monthly
Driving Directions
Head south on FL-589 S, take Exit 8 for Wilsky Blvd toward Linebaugh Ave, turn left onto Wilsky Blvd, then left onto W Linebaugh Ave, left again onto Westpark Preserve Blvd. Home will be on the left.
Financial Considerations
Terms: Cash,Conventional,FHA,VA Loan
Tax/Property ID: U-13-28-17-97L-000023-00001.0
Tax Amount: 942.69
Tax Year: 2024
A broker reciprocity listing courtesy: LPT REALTY, LLC
Based on information provided by Stellar MLS as distributed by the MLS GRID. Information from the Internet Data Exchange is provided exclusively for consumers’ personal, non-commercial use, and such information may not be used for any purpose other than to identify prospective properties consumers may be interested in purchasing. This data is deemed reliable but is not guaranteed to be accurate by Edina Realty, Inc., or by the MLS. Edina Realty, Inc., is not a multiple listing service (MLS), nor does it offer MLS access.
Copyright 2026 Stellar MLS as distributed by the MLS GRID. All Rights Reserved.
Payment Calculator
Interest rate and annual percentage rate (APR) are based on current market conditions, are for informational purposes only, are subject to change without notice and may be subject to pricing add-ons related to property type, loan amount, loan-to-value, credit score and other variables. Estimated closing costs used in the APR calculation are assumed to be paid by the borrower at closing. If the closing costs are financed, the loan, APR and payment amounts will be higher. If the down payment is less than 20%, mortgage insurance may be required and could increase the monthly payment and APR. Contact us for details. Additional loan programs may be available. Accuracy is not guaranteed, and all products may not be available in all borrower's geographical areas and are based on their individual situation. This is not a credit decision or a commitment to lend.
Sales History & Tax Summary for 10404 Westpark Preserve Boulevard
Sales History
| Date | Price | |
|---|---|---|
| Currently not available. | ||
Tax Summary
| Tax Year | Estimated Market Value | Total Tax |
|---|---|---|
| Currently not available. | ||
Data powered by ATTOM Data Solutions. Copyright© 2026. Information deemed reliable but not guaranteed.
Schools
Schools nearby 10404 Westpark Preserve Boulevard
| Schools in attendance boundaries | Grades | Distance | Rating |
|---|---|---|---|
| Loading... | |||
| Schools nearby | Grades | Distance | Rating |
|---|---|---|---|
| Loading... | |||
Data powered by ATTOM Data Solutions. Copyright© 2026. Information deemed reliable but not guaranteed.
The schools shown represent both the assigned schools and schools by distance based on local school and district attendance boundaries. Attendance boundaries change based on various factors and proximity does not guarantee enrollment eligibility. Please consult your real estate agent and/or the school district to confirm the schools this property is zoned to attend. Information is deemed reliable but not guaranteed.
SchoolDigger ® Rating
The SchoolDigger rating system is a 1-5 scale with 5 as the highest rating. SchoolDigger ranks schools based on test scores supplied by each state's Department of Education. They calculate an average standard score by normalizing and averaging each school's test scores across all tests and grades.
Coming soon properties will soon be on the market, but are not yet available for showings.