1041 Park Ridge Circle Kissimmee, FL 34746
Pending MLS# O6304327
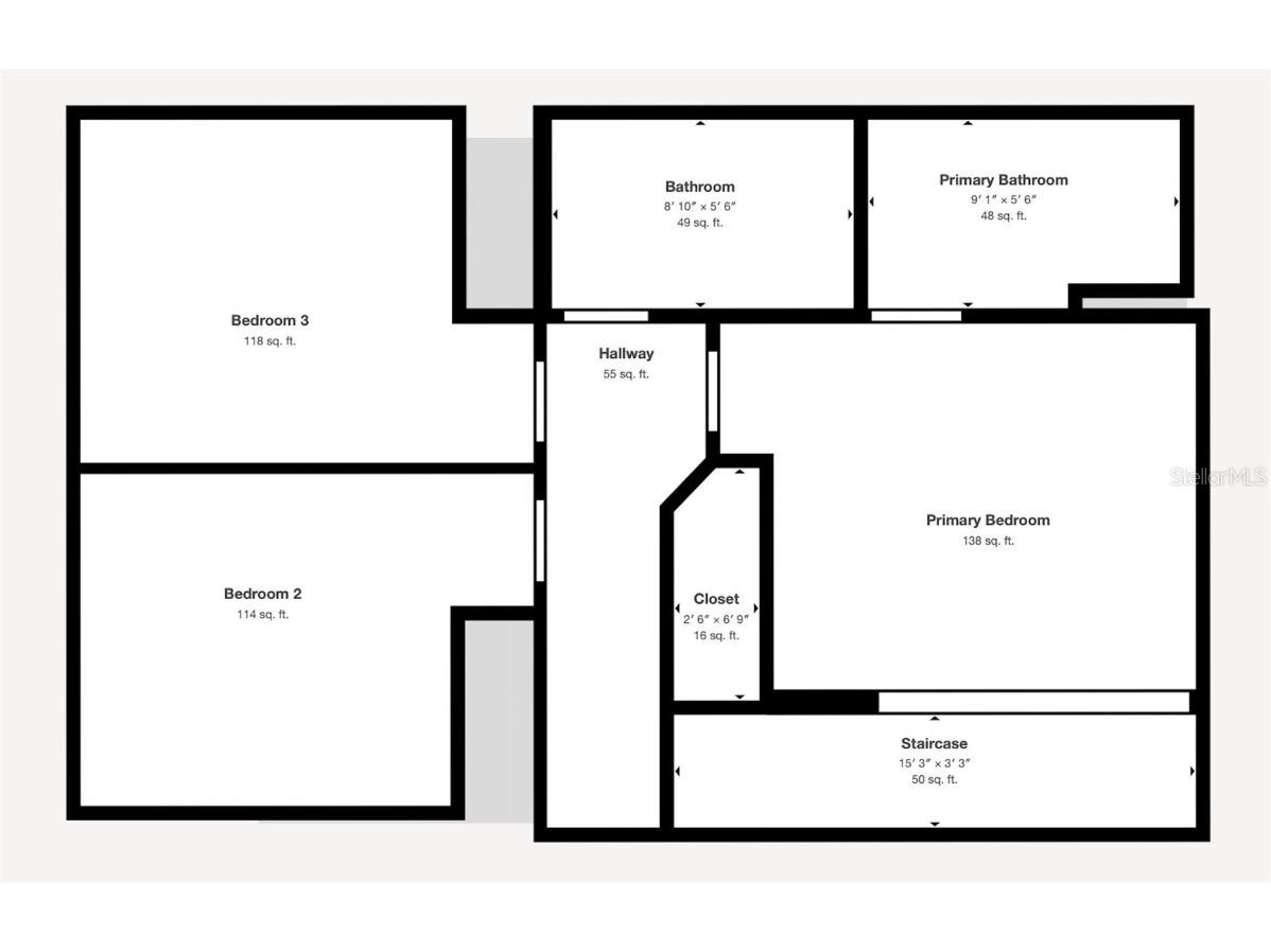
3 beds 3 baths 1,291 sq ft Townhouse/Twinhome
Details for 1041 Park Ridge Circle
MLS# O6304327
Description for 1041 Park Ridge Circle, Kissimmee, FL, 34746
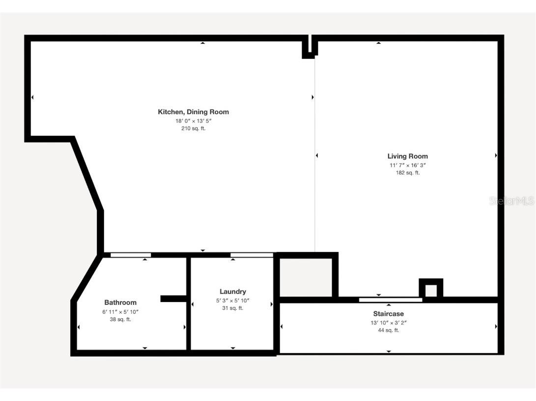
Under contract-accepting backup offers. Mortgage savings may be available for buyers of this listing. This property qualifies for a preferred lender incentive. A Lake Berkeley fresh and renovated Townhouse in Kissimmee, just 10 miles away from Disney Spring. New updates include: New carpet flooring throughout the second floor, including the staircase; fresh painted kitchen & bathroom cabinets, all new appliances: Stove, Microwave, Dishwasher and Refrigerator. Washer & Dryer are included in the sale price. Don't miss this great opportunity to own this beautiful, fully furnished primary home or vacation/investment home located in the highly desirable gated community of Lake Berkeley. This short-term rental, AirBNB approved community is located minutes from major shopping and dining areas. It is a short drive to the Disney parks and other great Orlando tourist attractions. This townhome has 3 bedrooms & 2 1/2 baths, an open floor kitchen overlooking the family room, a full size laundry room with a washer & dryer, a second floor balcony located in the master bedroom and two assigned parking spaces. This Townhome is very conveniently located just across from one of the Clubhouses and Community pools. Outside of the two pools, there is also a water play area, two playgrounds, a Lake-Beach area, Tennis & Basketball court, sandy Volleyball court, Picnic & BBQ area, Nature Trail & Catch and Release Fishing area. This is the perfect vacation home for you to enjoy with your family and to also use as an income property or even as your primary home. Tour this home before it is gone!
Listing Information
Property Type: Residential, Townhouse
Status: Pending
Bedrooms: 3
Bathrooms: 3
Lot Size: 0.03 Acres
Square Feet: 1,291 sq ft
Year Built: 2002
Stories: 2 Story
Construction: Block
Subdivision: Lake Berkley Resort Villas Ph 2
Foundation: Slab
County: Osceola
School Information
Elementary: Central Avenue Elem
Middle: Kissimmee Middle
High: Poinciana High School
Room Information
Main Floor
Kitchen:
Living Room:
Upper Floor
Primary Bedroom:
Bathrooms
Full Baths: 2
1/2 Baths: 1
Additonal Room Information
Laundry: Inside
Interior Features
Appliances: Built-In Oven, Washer, Dishwasher, Dryer, Microwave, Range, Refrigerator
Flooring: Carpet,Tile
Additional Interior Features: High Ceilings, Open Floorplan, Living/Dining Room, Ceiling Fan(s), Upper Level Primary
Utilities
Water: Public
Sewer: Public Sewer
Other Utilities: Cable Available,Cable Connected,Electricity Connected,Municipal Utilities,Water Connected
Cooling: Ceiling Fan(s), Central Air
Heating: Central
Exterior / Lot Features
Roof: Tile
Pool: Community
Lot View: Trees/Woods
Additional Exterior/Lot Features: Balcony, Balcony, Landscaped, Conservation Area
Community Features
Community Features: Fitness, Playground, Street Lights, Pool, Tennis Court(s), Sidewalks, Clubhouse
HOA Dues Include: Trash, Recreation Facilities, Security, Maintenance Grounds, Maintenance Structure, Pool(s)
Homeowners Association: Yes
HOA Dues: $460 / Monthly
Driving Directions
From W Osceola Parkway Use the right lane to take the Poinciana Blvd ramp to FL-535/US-192 Turn right onto N Poinciana Blvd Keep right to stay on N Poinciana Blvd Turn left onto Oren Brown Rd Turn right onto N Roma Way Turn right onto Ormskirt Blvd Turn right onto Park Ridge Cir
Financial Considerations
Terms: Cash,Conventional,FHA,VA Loan
Tax/Property ID: 24-25-28-3759-0004-0040
Tax Amount: 3935.65
Tax Year: 2024
A broker reciprocity listing courtesy: REDFIN CORPORATION
Based on information provided by Stellar MLS as distributed by the MLS GRID. Information from the Internet Data Exchange is provided exclusively for consumers’ personal, non-commercial use, and such information may not be used for any purpose other than to identify prospective properties consumers may be interested in purchasing. This data is deemed reliable but is not guaranteed to be accurate by Edina Realty, Inc., or by the MLS. Edina Realty, Inc., is not a multiple listing service (MLS), nor does it offer MLS access.
Copyright 2025 Stellar MLS as distributed by the MLS GRID. All Rights Reserved.
Sales History & Tax Summary for 1041 Park Ridge Circle
Sales History
| Date | Price | Change |
|---|---|---|
| Currently not available. | ||
Tax Summary
| Tax Year | Estimated Market Value | Total Tax |
|---|---|---|
| Currently not available. | ||
Data powered by ATTOM Data Solutions. Copyright© 2025. Information deemed reliable but not guaranteed.
Schools
Schools nearby 1041 Park Ridge Circle
| Schools in attendance boundaries | Grades | Distance | Rating |
|---|---|---|---|
| Loading... | |||
| Schools nearby | Grades | Distance | Rating |
|---|---|---|---|
| Loading... | |||
Data powered by ATTOM Data Solutions. Copyright© 2025. Information deemed reliable but not guaranteed.
The schools shown represent both the assigned schools and schools by distance based on local school and district attendance boundaries. Attendance boundaries change based on various factors and proximity does not guarantee enrollment eligibility. Please consult your real estate agent and/or the school district to confirm the schools this property is zoned to attend. Information is deemed reliable but not guaranteed.
SchoolDigger ® Rating
The SchoolDigger rating system is a 1-5 scale with 5 as the highest rating. SchoolDigger ranks schools based on test scores supplied by each state's Department of Education. They calculate an average standard score by normalizing and averaging each school's test scores across all tests and grades.
Coming soon properties will soon be on the market, but are not yet available for showings.