1048 Ashbury Lane NE Hanover, MN 55341
For Sale MLS# 6819415
4 beds 3 baths 2,185 sq ft Single Family
Details for 1048 Ashbury Lane NE
MLS# 6819415
Description for 1048 Ashbury Lane NE, Hanover, MN, 55341
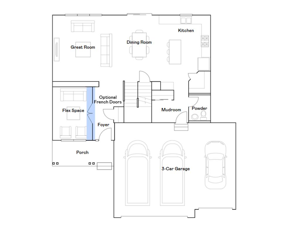
Experience the ultimate in flexible, modern living with this stunning 2,186 square foot two-story home, perfectly designed for today’s busy families. Step inside and discover the warm glow of an electric fireplace in the open great room, seamlessly connected to the dining area and kitchen for effortless entertaining. The showstopping flex room is highlighted by elegant glass French doors—ideal for a home office, studio or guest space tailored to your lifestyle. Upstairs, an inviting owner’s suite offers generous proportions, complemented by three additional bedrooms that provide room for everyone. With a spacious 3-car garage for all your vehicles and storage needs, this home is as functional as it is stylish. Homes like this—with standout features and exceptional details—are in high demand, so don’t miss your chance to make it yours!Ask about how to qualify for $5,000 with the use of the Seller's Preferred Lender! This home is completed and move-in ready!
Listing Information
Property Type: Residential, Single Family
Status: Active
Bedrooms: 4
Bathrooms: 3
Lot Size: 0.23 Acres
Square Feet: 2,185 sq ft
Year Built: 2025
Foundation: 1,107 sq ft
Garage: Yes
Stories: 2 Stories
Date Available: 11/22/2025
Construction Display: New Construction
Completion date: 2025-11-22T06:00:00Z
Subdivision: Crow River Heights
Builder: LENNAR
County: Wright
Days On Market: 22
Construction Status: Completed New Construction
School Information
District: 877 - Buffalo-Hanover-Montrose
Room Information
Main Floor
Family Room: 15x16
Flex Room: 9x13
Informal Dining Room: 10x16
Kitchen: 12x16
Upper Floor
Bedroom 1: 14x17
Bedroom 2: 10x11
Bedroom 3: 11x12
Bedroom 4: 11x10
Bathrooms
Full Baths: 2
1/2 Baths: 1
Additonal Room Information
Family: Great Room,Main Level
Dining: Eat In Kitchen,Informal Dining Room
Laundry: Washer Hookup, Laundry Room, Upper Level, Gas Dryer Hookup
Bath Description: Full Primary,Main Floor 1/2 Bath,Private Primary,Upper Level Full Bath
Interior Features
Square Footage above: 2,185 sq ft
Appliances: Range, Refrigerator, Tankless Water Heater, Air-To-Air Exchanger, Dishwasher, Disposal, Furnace Humidifier, Microwave
Basement: Walkout, Unfinished
Fireplaces: 1, Stone, Gas Burning, Family Room
Additional Interior Features: Natural Woodwork, Kitchen Window, 3 BR on One Level, 4 BR on One Level, Washer/Dryer Hookup, Kitchen Center Island, French Doors, Paneled Doors, 2nd Floor Laundry
Utilities
Water: City Water/Connected
Sewer: City Sewer/Connected
Cooling: Central
Heating: Natural Gas, Forced Air
Exterior / Lot Features
Attached Garage: Attached Garage
Garage Spaces: 3
Parking Description: Garage Door Opener, Driveway - Asphalt, Attached Garage, Garage Door Height - 8, Garage Sq Ft - 671.0
Exterior: Vinyl
Roof: Asphalt Shingles, Age 8 Years or Less, Pitched
Lot Dimensions: TBD
Zoning: Residential-Single Family
Additional Exterior/Lot Features: Sod Included in Price
Driving Directions
Take I-494 N, I-94 W, 109th Ave N and County Rd 19
Financial Considerations
Tax/Property ID: 108055004120
Tax Year: 2025
HomeStead Description: Non-Homesteaded
A broker reciprocity listing courtesy: Lennar Sales Corp
The data relating to real estate for sale on this web site comes in part from the Broker Reciprocity℠ Program of the Regional Multiple Listing Service of Minnesota, Inc. Real estate listings held by brokerage firms other than Edina Realty, Inc. are marked with the Broker Reciprocity℠ logo or the Broker Reciprocity℠ thumbnail and detailed information about them includes the name of the listing brokers. Edina Realty, Inc. is not a Multiple Listing Service (MLS), nor does it offer MLS access. This website is a service of Edina Realty, Inc., a broker Participant of the Regional Multiple Listing Service of Minnesota, Inc. IDX information is provided exclusively for consumers personal, non-commercial use and may not be used for any purpose other than to identify prospective properties consumers may be interested in purchasing. Open House information is subject to change without notice. Information deemed reliable but not guaranteed.
Copyright 2025 Regional Multiple Listing Service of Minnesota, Inc. All Rights Reserved.
Payment Calculator
Interest rate and annual percentage rate (APR) are based on current market conditions, are for informational purposes only, are subject to change without notice and may be subject to pricing add-ons related to property type, loan amount, loan-to-value, credit score and other variables. Estimated closing costs used in the APR calculation are assumed to be paid by the borrower at closing. If the closing costs are financed, the loan, APR and payment amounts will be higher. If the down payment is less than 20%, mortgage insurance may be required and could increase the monthly payment and APR. Contact us for details. Additional loan programs may be available. Accuracy is not guaranteed, and all products may not be available in all borrower's geographical areas and are based on their individual situation. This is not a credit decision or a commitment to lend.
Sales History & Tax Summary for 1048 Ashbury Lane NE
Sales History
| Date | Price | Change |
|---|---|---|
| Currently not available. | ||
Tax Summary
| Tax Year | Estimated Market Value | Total Tax |
|---|---|---|
| Currently not available. | ||
Data powered by ATTOM Data Solutions. Copyright© 2025. Information deemed reliable but not guaranteed.
Schools
Schools nearby 1048 Ashbury Lane NE
| Schools in attendance boundaries | Grades | Distance | Rating |
|---|---|---|---|
| Loading... | |||
| Schools nearby | Grades | Distance | Rating |
|---|---|---|---|
| Loading... | |||
Data powered by ATTOM Data Solutions. Copyright© 2025. Information deemed reliable but not guaranteed.
The schools shown represent both the assigned schools and schools by distance based on local school and district attendance boundaries. Attendance boundaries change based on various factors and proximity does not guarantee enrollment eligibility. Please consult your real estate agent and/or the school district to confirm the schools this property is zoned to attend. Information is deemed reliable but not guaranteed.
SchoolDigger ® Rating
The SchoolDigger rating system is a 1-5 scale with 5 as the highest rating. SchoolDigger ranks schools based on test scores supplied by each state's Department of Education. They calculate an average standard score by normalizing and averaging each school's test scores across all tests and grades.
Coming soon properties will soon be on the market, but are not yet available for showings.