10506 Down Lakeview Circle Windermere, FL 34786
Pending MLS# S5130322
4 beds 3 baths 3,888 sq ft Single Family
Details for 10506 Down Lakeview Circle
MLS# S5130322
Description for 10506 Down Lakeview Circle, Windermere, FL, 34786
Under contract-accepting backup offers. Welcome Home to “The Lakes” — Windermere’s Hidden Gem Tucked away in the ultra-private The Lakes community of Windermere, this beautiful residence sits on a rare 1-acre lot with breathtaking views of Lake Down, part of the renowned Butler Chain of Lakes. With just 60 homes in the entire neighborhood, exclusivity and serenity come standard. Picture morning strolls through quiet, oak-lined streets, where friendly neighbors wave hello and safety is paramount. And while the HOA is surprisingly low, it generously includes unlimited access to your private tennis courts, fishing pier, and boat ramp—a rare perk in this area. Location is everything, and this one delivers. The private tennis courts are just two houses away. No driving, no waiting—just grab your racquet and walk a few steps to start your match. Next to the courts, you’ll find the private gated dock and boat ramp with direct access to Lake Down, one of Central Florida’s most desirable lakes. Bring your boat—there’s plenty of parking space right at the house. The home itself is a true sanctuary. From the newly installed majestic circular driveway to the lush, private backyard oasis, every detail has been thoughtfully designed for comfort, elegance, and unforgettable entertaining. Enjoy 4th of July fireworks and New Year’s Eve gatherings around the outdoor gas firepit, or unwind with a glass of wine in your covered travertine lanai by the pool. Inside, elegance meets comfort in every corner of this 4-bedroom + office home. The open-concept floor plan is bathed in natural light from every direction, highlighting luxurious finishes and creating a warm, inviting atmosphere. The dedicated office is ideal for remote work, complete with a stunning stone fireplace as your Zoom call backdrop and beautiful natural light streaming through the windows. The owner’s suite is a true retreat, with direct access to the pool and a luxury spa-like bathroom you have to see to believe. Relax in the jetted soaking tub with bubble massage and self-drying features, or enjoy the custom steam shower designed to melt the stress of the day away. With abundant built-ins and drawers, it’s like having your own personal spa at home. This home is not just a place to live—it’s a place to thrive. A place to create lasting memories, raise a family, entertain friends, or simply enjoy the peace and prestige of Windermere living. Schedule your private showing today—opportunities like this in The Lakes don’t come often.
Listing Information
Property Type: Residential, Single Family Residence
Status: Pending
Bedrooms: 4
Bathrooms: 3
Lot Size: 1 Acres
Square Feet: 3,888 sq ft
Year Built: 1985
Garage: Yes
Stories: 1 Story
Construction: Stucco
Subdivision: Lakes
Foundation: Block,Slab
County: Orange
School Information
Elementary: Thornebrooke Elem
Middle: Gotha Middle
High: Olympia High
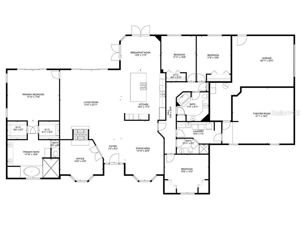
Room Information
Main Floor
Kitchen:
Bedroom 2:
Bedroom 4:
Primary Bedroom:
Bathroom 3:
Bathroom 2:
Bathroom 1:
Bedroom 1:
Dining Room:
Living Room:
Bedroom 3:
Bathrooms
Full Baths: 3
Additonal Room Information
Laundry: Inside
Interior Features
Appliances: Microwave, Range, Refrigerator, Dishwasher, Dryer, Convection Oven
Flooring: Carpet,Engineered Hardwood,Tile
Doors/Windows: Blinds
Fireplaces: Family Room, Gas, Living Room
Additional Interior Features: Ceiling Fan(s), Main Level Primary
Utilities
Water: Well
Sewer: Septic Tank
Other Utilities: Cable Available,Electricity Available,High Speed Internet Available,Phone Available,Sewer Available,Water Connected
Cooling: Ceiling Fan(s), Other, Central Air
Heating: Electric, Central
Exterior / Lot Features
Attached Garage: Attached Garage
Garage Spaces: 1
Parking Description: Garage, driveway, Circular Driveway, Guest, Garage Door Opener, Converted Garage, Electric Vehicle Charging Station(s), Boat, Garage Faces Side
Roof: Shingle, Shake
Pool: In Ground, Other
Lot View: Lake,Pool,Water
Additional Exterior/Lot Features: Garden, Sprinkler/Irrigation, Enclosed, Covered, Landscaped, Oversized Lot, Private
Community Features
Community Features: Dock, Boat Slip, Fishing, Golf Carts OK, Boat Facilities, Tennis Court(s), Waterfront
Association Amenities: Tennis Court(s)
Homeowners Association: Yes
HOA Dues: $1,070 / Annually
Driving Directions
Main street to a right on Parkridge Gotha Road. Right into The Lakes. Left onto Down Lakeview Circle and the home is on your left.
Financial Considerations
Terms: Cash,Conventional
Tax/Property ID: 05-23-28-4818-00-520
Tax Amount: 9314
Tax Year: 2024
A broker reciprocity listing courtesy: LA ROSA REALTY LLC
Based on information provided by Stellar MLS as distributed by the MLS GRID. Information from the Internet Data Exchange is provided exclusively for consumers’ personal, non-commercial use, and such information may not be used for any purpose other than to identify prospective properties consumers may be interested in purchasing. This data is deemed reliable but is not guaranteed to be accurate by Edina Realty, Inc., or by the MLS. Edina Realty, Inc., is not a multiple listing service (MLS), nor does it offer MLS access.
Copyright 2026 Stellar MLS as distributed by the MLS GRID. All Rights Reserved.
Sales History & Tax Summary for 10506 Down Lakeview Circle
Sales History
| Date | Price | |
|---|---|---|
| Currently not available. | ||
Tax Summary
| Tax Year | Estimated Market Value | Total Tax |
|---|---|---|
| Currently not available. | ||
Data powered by ATTOM Data Solutions. Copyright© 2026. Information deemed reliable but not guaranteed.
Schools
Schools nearby 10506 Down Lakeview Circle
| Schools in attendance boundaries | Grades | Distance | Rating |
|---|---|---|---|
| Loading... | |||
| Schools nearby | Grades | Distance | Rating |
|---|---|---|---|
| Loading... | |||
Data powered by ATTOM Data Solutions. Copyright© 2026. Information deemed reliable but not guaranteed.
The schools shown represent both the assigned schools and schools by distance based on local school and district attendance boundaries. Attendance boundaries change based on various factors and proximity does not guarantee enrollment eligibility. Please consult your real estate agent and/or the school district to confirm the schools this property is zoned to attend. Information is deemed reliable but not guaranteed.
SchoolDigger ® Rating
The SchoolDigger rating system is a 1-5 scale with 5 as the highest rating. SchoolDigger ranks schools based on test scores supplied by each state's Department of Education. They calculate an average standard score by normalizing and averaging each school's test scores across all tests and grades.
Coming soon properties will soon be on the market, but are not yet available for showings.