$1,300,000
1056 Reynolds Road De Leon Springs, FL 32130
For Sale MLS# V4942965
4 beds 4 baths 3,017 sq ft Single Family
Details for 1056 Reynolds Road
MLS# V4942965
Description for 1056 Reynolds Road, De Leon Springs, FL, 32130
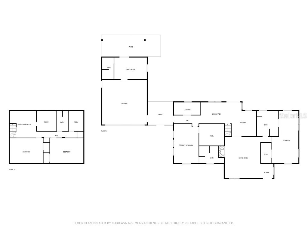
TWO PARCELS – OVER 20 ACRES – INCOME-PRODUCING GRAPE FARM WITH RESIDENCE, RETAIL SHOP & AGRICULTURAL EXEMPTION A rare opportunity to own land, residence and ESTABLISHED YOU-PICK BUSINESS AND VINYARD in De Leon Springs—1056 & 980 Reynolds Rd—offering residential comfort, active farming, and retail potential in one unique package. ----1056 REYNOLDS RD – 7.25 Acres (Set Back from Road)----: Privately tucked away from the street, this updated ranch-style home features 4 bedrooms and 4 bathrooms, including a fully FINISHED BASEMENT with two bedrooms, a bathroom, and a living room. Upstairs offers a spacious living room with high ceilings and a classic wood-burning BRICK FIREPLACE, two bedrooms, two bathrooms, kitchen, dining area, and laundry. Step outside to a wood deck overlooking a 9.5-ft deep inground POOL. The property includes multiple outbuildings—a POLE BARN, DIESEL GENERATOR, WORKSHOP, diesel generator shed—and a detached garage with its own bathroom and a finished MAN CAVE WITH BAR. The lot is oversized, level, and fully fenced, with a dedicated dog run. The house has double-pane insulated windows for energy efficiency. Built in 1973, the home has been modernized over the years while maintaining its rural charm. ----980 REYNOLDS RD – 13.18 Acres (Frontage on Reynolds Rd)----: Positioned with direct street frontage, this parcel operates as the public-facing side of the grape farm, complete with a nostalgic retail and tasting shop where customers can check out after picking grapes, and enjoy home-made grape jelly and popsicles. A large pole barn, workshop, and carport provide ample storage and workspace. Approximately five acres are fenced and used for cattle, supporting the agricultural exemption. The entire lot is high and dry (not in a flood zone) and fully fenced for security. COMBINED PROPERTY FEATURES: ** Total of 20.43 acres (7.25 + 13.18) ** Two parcels sold together—live on one, operate on the other ** Fully fenced, gated, and agriculturally exempt ** Updated 4BR/4BA home with pool, fireplace, and basement ** Income-producing grape farm with retail/tasting operation ** Multiple barns, sheds, workshops, and storage buildings ** Private living with road-front visibility for business ** Zoned for agricultural use and farm animals and hobby farming This is a versatile and truly special offering—ideal for anyone seeking space, privacy, and business potential in a peaceful rural setting.
Listing Information
Property Type: Residential, Single Family Residence
Status: Active
Bedrooms: 4
Bathrooms: 4
Lot Size: 20.43 Acres
Square Feet: 3,017 sq ft
Year Built: 1973
Garage: Yes
Stories: 1 Story
Construction: Brick,HardiPlank Type,Wood Frame
Construction Display: New Construction
Subdivision: N/A
Foundation: Basement,Block,Slab
County: Volusia
Construction Status: New Construction
School Information
Elementary: Louise S. Mcinnis Elem
Middle: T. Dewitt Taylor Middle-High
High: T. Dewitt Taylor Middle-High
Room Information
Main Floor
Family Room: 23x20
Dining Room:
Kitchen: 11x10
Bedroom 2: 29x14
Primary Bedroom: 29x14
Lower Floor
Living Room: 14x14
Bedroom 4: 19x14
Bedroom 3: 19x14
Bathrooms
Full Baths: 4
Additonal Room Information
Laundry: Electric Dryer Hookup, Laundry Closet, Laundry Room, Washer Hookup
Interior Features
Appliances: Ice Maker, Convection Oven, Exhaust Fan, Built-In Oven, Range Hood, Tankless Water Heater, Electric Water Heater, Dishwasher, Disposal, Range, Refrigerator, Trash Compactor, Microwave
Flooring: Concrete,Laminate,Porcelain Tile,Tile,Wood
Basement: Finished, Exterior Entry, Interior Entry, Bath/Stubbed
Doors/Windows: Double Pane Windows, Insulated Windows, Wood Frames, Aluminum Frames
Fireplaces: Wood Burning, Decorative, Living Room, Stone, Masonry
Additional Interior Features: Attic, Built-in Features, High Ceilings, Walk-In Closet(s), Main Level Primary, Upper Level Primary, Split Bedrooms, Ceiling Fan(s), Wood Cabinets
Utilities
Water: Well
Sewer: Septic Tank
Other Utilities: Cable Available,Electricity Connected
Cooling: Ceiling Fan(s), Central Air, Ductless
Heating: Central, Electric
Exterior / Lot Features
Attached Garage: Attached Garage
Garage Spaces: 2
Parking Description: Bath In Garage, driveway, Garage Door Opener, Covered, Garage
Roof: Metal
Pool: Pool Alarm, Pool Sweep, Outside Bath Access, Gunite, In Ground, Tile
Lot View: Trees/Woods
Fencing: Wire, Chain Link, Barbed Wire
Additional Exterior/Lot Features: French Patio Doors, Outdoor Grill, Front Porch, Covered, Deck, Porch, Rear Porch, Flat, Level, Landscaped, Cleared, Farm, Pasture, Oversized Lot, Rolling Slope
Out Buildings: Workshop, Barn(s), Kennel/Dog Run
Community Features
Security Features: Fire Alarm, Security System, Closed Circuit Camera(s), Secured Garage/Parking, Security System Owned, Smoke Detector(s)
Driving Directions
Start North on 17 to East on Reynolds Rd to Lennon Fernery on Left. Property to right, first turn off of main drive
Financial Considerations
Terms: Cash,Conventional
Tax/Property ID: 6007-00-00-0280
Tax Amount: 1571.61
Tax Year: 2024
A broker reciprocity listing courtesy: BEE REALTY CORP
Based on information provided by Stellar MLS as distributed by the MLS GRID. Information from the Internet Data Exchange is provided exclusively for consumers’ personal, non-commercial use, and such information may not be used for any purpose other than to identify prospective properties consumers may be interested in purchasing. This data is deemed reliable but is not guaranteed to be accurate by Edina Realty, Inc., or by the MLS. Edina Realty, Inc., is not a multiple listing service (MLS), nor does it offer MLS access.
Copyright 2025 Stellar MLS as distributed by the MLS GRID. All Rights Reserved.
Payment Calculator
Interest rate and annual percentage rate (APR) are based on current market conditions, are for informational purposes only, are subject to change without notice and may be subject to pricing add-ons related to property type, loan amount, loan-to-value, credit score and other variables. Estimated closing costs used in the APR calculation are assumed to be paid by the borrower at closing. If the closing costs are financed, the loan, APR and payment amounts will be higher. If the down payment is less than 20%, mortgage insurance may be required and could increase the monthly payment and APR. Contact us for details. Additional loan programs may be available. Accuracy is not guaranteed, and all products may not be available in all borrower's geographical areas and are based on their individual situation. This is not a credit decision or a commitment to lend.
Sales History & Tax Summary for 1056 Reynolds Road
Sales History
| Date | Price | Change |
|---|---|---|
| Currently not available. | ||
Tax Summary
| Tax Year | Estimated Market Value | Total Tax |
|---|---|---|
| Currently not available. | ||
Data powered by ATTOM Data Solutions. Copyright© 2025. Information deemed reliable but not guaranteed.
Schools
Schools nearby 1056 Reynolds Road
| Schools in attendance boundaries | Grades | Distance | Rating |
|---|---|---|---|
| Loading... | |||
| Schools nearby | Grades | Distance | Rating |
|---|---|---|---|
| Loading... | |||
Data powered by ATTOM Data Solutions. Copyright© 2025. Information deemed reliable but not guaranteed.
The schools shown represent both the assigned schools and schools by distance based on local school and district attendance boundaries. Attendance boundaries change based on various factors and proximity does not guarantee enrollment eligibility. Please consult your real estate agent and/or the school district to confirm the schools this property is zoned to attend. Information is deemed reliable but not guaranteed.
SchoolDigger ® Rating
The SchoolDigger rating system is a 1-5 scale with 5 as the highest rating. SchoolDigger ranks schools based on test scores supplied by each state's Department of Education. They calculate an average standard score by normalizing and averaging each school's test scores across all tests and grades.
Coming soon properties will soon be on the market, but are not yet available for showings.