$1,249,900
10561 NE 104th Circle Oxford, FL 34484
For Sale MLS# OM714193
4 beds 3 baths 3,088 sq ft Single Family
Details for 10561 NE 104th Circle
MLS# OM714193
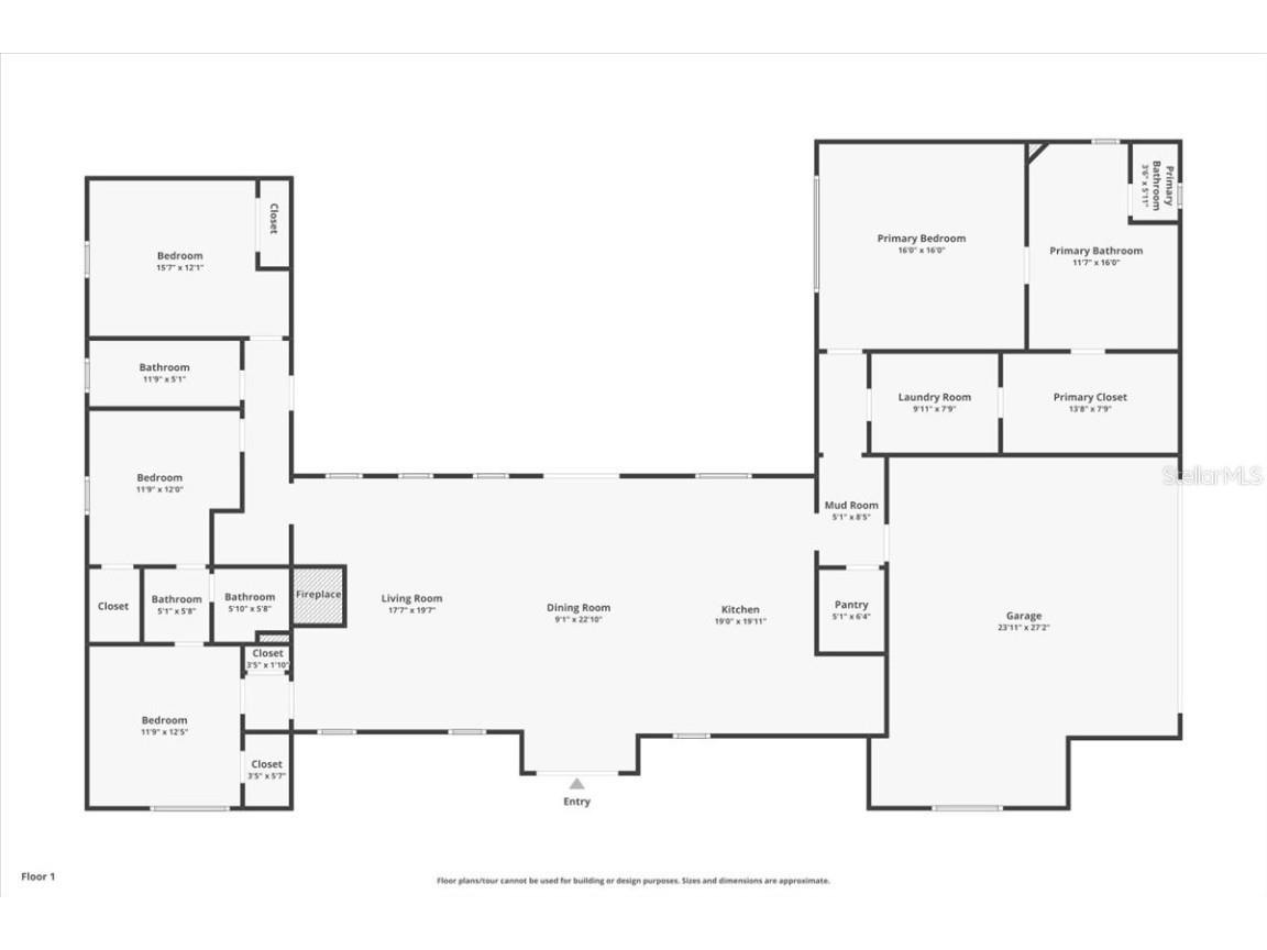
Description for 10561 NE 104th Circle, Oxford, FL, 34484
Welcome to this exceptional custom-built block home set on 5.12 acres in the gated community of Sumter Crossing. Completed in 2023 and offering 3,088 sq ft of living space, this residence blends quality construction, modern efficiency, and thoughtful custom design—perfect for buyers seeking privacy, acreage, and refined living. Inside, the home features 10 ft ceilings, 8 ft doors, LVP flooring, custom cabinetry, and an open layout centered around a beautiful brick wood-burning fireplace with a gas starter. The chef’s kitchen includes quartz countertops, a 48-inch gas range, large island, wine bar, custom cabinetry, and a walk-in pantry with integrated coffee bar. The primary suite offers a custom-designed walk-in closet with exceptional organization. Outdoor living is enhanced by a full summer kitchen on the covered back porch, finished with brick pavers that complement the home’s design. The front porch also features its own brick paver finish, creating a welcoming entry. The property is fully fenced (2023) and allows pets including equine and bovine, offering flexibility for recreation, livestock, or creating a private retreat. Designed for high efficiency and long-term performance, the home features Icynene spray-foam insulation throughout the attic, block construction with injected foam insulation on the front elevation, dual gas tankless water heaters, and a Generac 24-KW whole-home generator supported by a 1,000-gallon buried propane tank near the garage and well. Together, these features contribute to a remarkably low electric bill and superior year-round comfort. The home also includes a salt-filtration water softener system and operates on well and septic for added independence. The oversized 2.5-car garage offers epoxy flooring and is pre-wired for two EV charging ports, one on each side. Above the garage is a dedicated mechanical room that keeps major systems accessible without occupying attic space. A second attic access is located on the opposite end of the house. The electrical panel includes an extra 100-amp junction box, ideal for adding a barn, workshop, or future guest house. Additional upgrades include a custom mudroom bench, custom cabinets in the kitchen and baths, custom built-in bookshelves, smart-home systems (doorbell, thermostats, locks, garage controls, smoke and carbon monoxide detectors), and an AC system with 3 zones and a 5-ton unit. This extraordinary property combines acreage, luxury finishes, modern efficiency, and endless lifestyle possibilities—all within a peaceful gated setting. A rare opportunity to own a refined, move-in-ready estate crafted with exceptional detail. (Up to 2% of the loan amount available as a credit to the buyer toward closing costs, pre-paids, or rate buy-down when using preferred lender. Buyer may choose any lender of their preference.)
Listing Information
Property Type: Residential, Single Family Residence
Status: Active
Bedrooms: 4
Bathrooms: 3
Lot Size: 5.12 Acres
Square Feet: 3,088 sq ft
Year Built: 2023
Garage: Yes
Stories: 1 Story
Construction: Block
Subdivision: Sumter Xing
Foundation: Slab
County: Sumter
Room Information
Main Floor
Kitchen:
Living Room:
Primary Bedroom:
Bathrooms
Full Baths: 3
Additonal Room Information
Laundry: Electric Dryer Hookup, Common On Floor, Inside, Washer Hookup, Laundry Room
Interior Features
Appliances: Water Purifier, Wine Refrigerator, Tankless Water Heater, Washer, Microwave, Range, Refrigerator, Cooktop, Dishwasher, Disposal, Dryer
Flooring: Carpet,Luxury Vinyl
Doors/Windows: Window Treatments
Fireplaces: Gas, Living Room, Wood Burning
Additional Interior Features: Eat-In Kitchen, Split Bedrooms, Walk-In Closet(s), Ceiling Fan(s), Vaulted Ceiling(s), High Ceilings, Built-in Features, Cathedral Ceiling(s), Smart Home, Living/Dining Room, Open Floorplan, Main Level Primary
Utilities
Water: Well
Sewer: Septic Tank
Other Utilities: Cable Connected,Electricity Connected,Water Connected
Cooling: Ceiling Fan(s), Central Air
Heating: Central, Electric
Exterior / Lot Features
Attached Garage: Attached Garage
Garage Spaces: 2
Parking Description: driveway, Circular Driveway, Golf Cart Garage, Garage Faces Side, Garage Door Opener, Garage
Roof: Shingle
Fencing: Wood, fenced
Additional Exterior/Lot Features: French Patio Doors, Sprinkler/Irrigation, Private Entrance, Outdoor Kitchen, Covered, Rear Porch, Front Porch, Landscaped, Farm, Pasture, Outside City Limits
Out Buildings: Outdoor Kitchen
Community Features
Community Features: Sidewalks
Security Features: Smoke Detector(s)
Homeowners Association: Yes
HOA Dues: $1,100 / Annually
Driving Directions
From The Villages – Lake Sumter Landing, head north on Old Mill Run and turn left onto Arnold Palmer Blvd. Continue to Buena Vista Blvd and turn right. Drive north for several miles, then turn left onto County Road 466A. Continue west, then turn right onto US-301 N. After about 1 mile, turn right onto NE 104th Trail into Sumter Crossing. Follow the road to NE 104th Circle and the home will be on your right.
Financial Considerations
Terms: Cash,Conventional,FHA,Other
Tax/Property ID: C24B010
Tax Amount: 5161.28
Tax Year: 2025
A broker reciprocity listing courtesy: PROFESSIONAL REALTY OF OCALA
Based on information provided by Stellar MLS as distributed by the MLS GRID. Information from the Internet Data Exchange is provided exclusively for consumers’ personal, non-commercial use, and such information may not be used for any purpose other than to identify prospective properties consumers may be interested in purchasing. This data is deemed reliable but is not guaranteed to be accurate by Edina Realty, Inc., or by the MLS. Edina Realty, Inc., is not a multiple listing service (MLS), nor does it offer MLS access.
Copyright 2025 Stellar MLS as distributed by the MLS GRID. All Rights Reserved.
Payment Calculator
Interest rate and annual percentage rate (APR) are based on current market conditions, are for informational purposes only, are subject to change without notice and may be subject to pricing add-ons related to property type, loan amount, loan-to-value, credit score and other variables. Estimated closing costs used in the APR calculation are assumed to be paid by the borrower at closing. If the closing costs are financed, the loan, APR and payment amounts will be higher. If the down payment is less than 20%, mortgage insurance may be required and could increase the monthly payment and APR. Contact us for details. Additional loan programs may be available. Accuracy is not guaranteed, and all products may not be available in all borrower's geographical areas and are based on their individual situation. This is not a credit decision or a commitment to lend.
Sales History & Tax Summary for 10561 NE 104th Circle
Sales History
| Date | Price | Change |
|---|---|---|
| Currently not available. | ||
Tax Summary
| Tax Year | Estimated Market Value | Total Tax |
|---|---|---|
| Currently not available. | ||
Data powered by ATTOM Data Solutions. Copyright© 2025. Information deemed reliable but not guaranteed.
Schools
Schools nearby 10561 NE 104th Circle
| Schools in attendance boundaries | Grades | Distance | Rating |
|---|---|---|---|
| Loading... | |||
| Schools nearby | Grades | Distance | Rating |
|---|---|---|---|
| Loading... | |||
Data powered by ATTOM Data Solutions. Copyright© 2025. Information deemed reliable but not guaranteed.
The schools shown represent both the assigned schools and schools by distance based on local school and district attendance boundaries. Attendance boundaries change based on various factors and proximity does not guarantee enrollment eligibility. Please consult your real estate agent and/or the school district to confirm the schools this property is zoned to attend. Information is deemed reliable but not guaranteed.
SchoolDigger ® Rating
The SchoolDigger rating system is a 1-5 scale with 5 as the highest rating. SchoolDigger ranks schools based on test scores supplied by each state's Department of Education. They calculate an average standard score by normalizing and averaging each school's test scores across all tests and grades.
Coming soon properties will soon be on the market, but are not yet available for showings.