106 Saddlebag Trail Lake Wales, FL 33898 - SADDLEBAG LAKE
For Sale MLS# K4903089
2 beds 2 baths 864 sq ft Single Family
Details for 106 Saddlebag Trail
MLS# K4903089
Description for 106 Saddlebag Trail, Lake Wales, FL, 33898 - SADDLEBAG LAKE
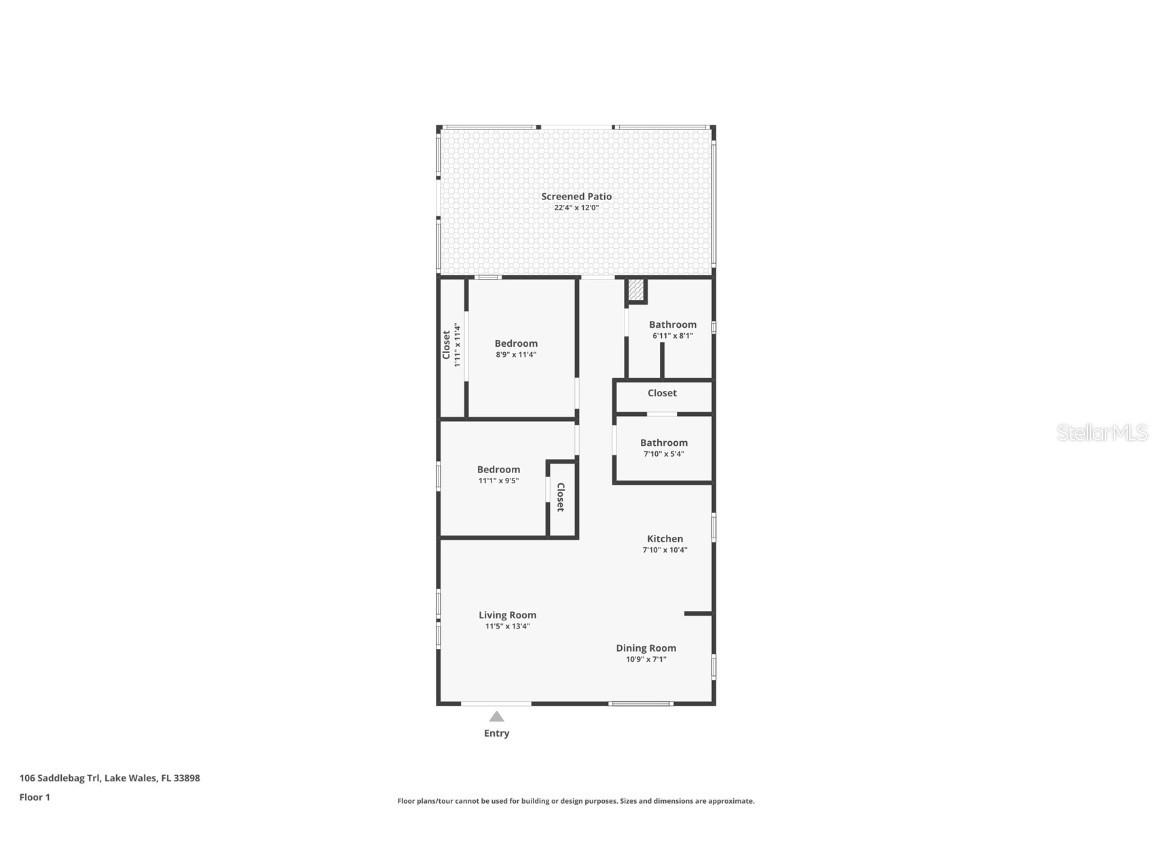
Step into resort-style living at its finest in the beautiful, gated 55+ community of Saddlebag Lake Resort in Lake Wales. This charming 864 sq. ft. furnished home is bursting with comfort and character, offering a cozy retreat with modern upgrades and thoughtful details throughout. From the moment you arrive, the inviting two-car carport with an exterior flooring extends your living space outdoors. The shed adds extra storage and personality, while there's also a screened-in outdoor space at the back of the house with a mounted television to enjoy the evenings. Inside, a bright and open living room and dining area create the perfect backdrop for both quiet mornings and evenings of entertaining. The kitchen’s two-seat sit-in bar makes an ideal spot for coffee, conversation, or casual meals. This home has been carefully updated with a NEW ROOF, NEW WATER HEATER, and a NEW REFRIGERATOR— giving you peace of mind and worry-free living. There are even two generators included (one is solar)! Best of all, it comes fully furnished, so you can move right in and start enjoying all that Saddlebag Lake Resort has to offer — from fishing on the lake and lounging by the pool to social gatherings and tennis matches with friends. Whether you’re looking for a seasonal retreat or a year-round haven, this home delivers the perfect balance of charm, convenience, and community.
Listing Information
Property Type: Residential, Manufactured Home
Status: Active
Bedrooms: 2
Bathrooms: 2
Lot Size: 0.13 Acres
Square Feet: 864 sq ft
Year Built: 2001
Stories: 1 Story
Construction: Vinyl Siding
Subdivision: Saddlebag Lake
Foundation: Crawlspace
County: Polk
Room Information
Main Floor
Dining Room: 16x10
Living Room: 16x10
Kitchen: 8x8
Bathroom 2:
Bedroom 2: 8x8
Bathroom 1: 6x8
Primary Bedroom: 10x8
Bathrooms
Full Baths: 2
Additonal Room Information
Laundry: Washer Hookup, Electric Dryer Hookup
Interior Features
Appliances: Refrigerator, Washer, Dishwasher, Dryer, Range Hood, Electric Water Heater
Flooring: Carpet,Ceramic Tile,Laminate
Basement: Crawl Space
Doors/Windows: Insulated Windows
Additional Interior Features: Ceiling Fan(s), Living/Dining Room, Kitchen/Family Room Combo
Utilities
Water: Private
Sewer: Private Sewer
Other Utilities: Cable Available,Electricity Available,Sewer Connected,Water Connected
Cooling: Ceiling Fan(s), Central Air
Heating: Heat Pump, Central
Exterior / Lot Features
Roof: Metal
Pool: Association
Additional Exterior/Lot Features: Rain Gutters
Waterfront Details
Standard Water Body: SADDLEBAG LAKE
Water Front Features: Lake Privileges
Community Features
Community Features: Boat Facilities, Gated, Fishing, Golf Carts OK, Dog Park
Security Features: Gated Community
Association Amenities: Pool, Tennis Court(s), Recreation Facilities, Storage, Sauna, Clubhouse, Fitness Center, Security, Shuffleboard Court, Pickleball, Spa/Hot Tub
HOA Dues Include: Trash, Sewer, Water
Homeowners Association: Yes
HOA Dues: $680 / Quarterly
Driving Directions
Route 60 East 4 miles from Walmart. Left on Saddlebag Trl. Left and go 1 mile down property on the left.
Financial Considerations
Terms: Cash,Conventional,FHA,VA Loan
Tax/Property ID: 28-30-01-939020-053040
Tax Amount: 1948.94
Tax Year: 2024
A broker reciprocity listing courtesy: BENDER REALTY, LLC
Based on information provided by Stellar MLS as distributed by the MLS GRID. Information from the Internet Data Exchange is provided exclusively for consumers’ personal, non-commercial use, and such information may not be used for any purpose other than to identify prospective properties consumers may be interested in purchasing. This data is deemed reliable but is not guaranteed to be accurate by Edina Realty, Inc., or by the MLS. Edina Realty, Inc., is not a multiple listing service (MLS), nor does it offer MLS access.
Copyright 2025 Stellar MLS as distributed by the MLS GRID. All Rights Reserved.
Payment Calculator
Interest rate and annual percentage rate (APR) are based on current market conditions, are for informational purposes only, are subject to change without notice and may be subject to pricing add-ons related to property type, loan amount, loan-to-value, credit score and other variables. Estimated closing costs used in the APR calculation are assumed to be paid by the borrower at closing. If the closing costs are financed, the loan, APR and payment amounts will be higher. If the down payment is less than 20%, mortgage insurance may be required and could increase the monthly payment and APR. Contact us for details. Additional loan programs may be available. Accuracy is not guaranteed, and all products may not be available in all borrower's geographical areas and are based on their individual situation. This is not a credit decision or a commitment to lend.
Sales History & Tax Summary for 106 Saddlebag Trail
Sales History
| Date | Price | Change |
|---|---|---|
| Currently not available. | ||
Tax Summary
| Tax Year | Estimated Market Value | Total Tax |
|---|---|---|
| Currently not available. | ||
Data powered by ATTOM Data Solutions. Copyright© 2025. Information deemed reliable but not guaranteed.
Schools
Schools nearby 106 Saddlebag Trail
| Schools in attendance boundaries | Grades | Distance | Rating |
|---|---|---|---|
| Loading... | |||
| Schools nearby | Grades | Distance | Rating |
|---|---|---|---|
| Loading... | |||
Data powered by ATTOM Data Solutions. Copyright© 2025. Information deemed reliable but not guaranteed.
The schools shown represent both the assigned schools and schools by distance based on local school and district attendance boundaries. Attendance boundaries change based on various factors and proximity does not guarantee enrollment eligibility. Please consult your real estate agent and/or the school district to confirm the schools this property is zoned to attend. Information is deemed reliable but not guaranteed.
SchoolDigger ® Rating
The SchoolDigger rating system is a 1-5 scale with 5 as the highest rating. SchoolDigger ranks schools based on test scores supplied by each state's Department of Education. They calculate an average standard score by normalizing and averaging each school's test scores across all tests and grades.
Coming soon properties will soon be on the market, but are not yet available for showings.