$925,000
Off-Market Date: 03/12/20261066 Clarellen Drive Fort Myers, FL 33919
Pending MLS# 2026001619
3 beds 2 baths 1,789 sq ft Single Family
Details for 1066 Clarellen Drive
MLS# 2026001619
Description for 1066 Clarellen Drive, Fort Myers, FL, 33919
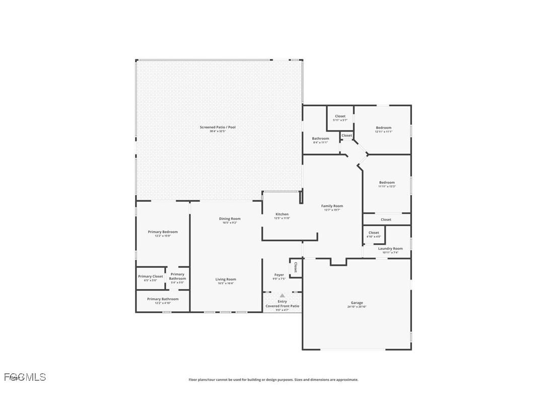
Nestled in the highly sought-after Town and River Estates, this exceptional waterfront home offers sailboat access to the Caloosahatchee River with quick access to the Gulf. Positioned on two sides of water, the property boasts multiple dockage opportunities, complete with a boat lift and wraparound wooden dock. The recently remodeled 3-bedroom, 2-bath home features an open living and dining area, a spacious family room, and a separate laundry room. Step outside to a screened-in swimming pool ideal for waterfront living. The home has been upgraded with a brand-new kitchen and baths featuring shaker-style cabinetry, new countertops, and updated vanities. A 2-car garage completes this outstanding waterfront retreat.
Listing Information
Property Type: Residential, Single Family Residence
Status: Pending-Inspection
Bedrooms: 3
Bathrooms: 2
Lot Size: 0.27 Acres
Square Feet: 1,789 sq ft
Year Built: 1978
Garage: Yes
Stories: 1 Story
Construction: Block,Concrete,Stucco
Subdivision: Town And River
Furnished: Yes
County: Lee
Days On Market: 56
Construction Status: Resale
Room Information
Bathrooms
Full Baths: 2
Additonal Room Information
Laundry: Washer Hookup, Inside, Laundry Tub, Dryer Hookup
Interior Features
Appliances: Dishwasher, Disposal, Dryer, Microwave, Range, Refrigerator, Washer, Self Cleaning Oven
Flooring: Carpet,Tile
Doors/Windows: Single Hung, Window Coverings
Additional Interior Features: Split Bedrooms, Living/Dining Room, Pantry, Walk-In Pantry, Main Level Primary, Window Treatments, Bedroom on Main Level, Separate Shower, Shower Only, Dual Sinks
Utilities
Water: Public
Sewer: Public Sewer
Other Utilities: Cable Available,High Speed Internet Available,Underground Utilities
Cooling: Electric, Central Air
Heating: Central, Electric
Exterior / Lot Features
Attached Garage: Attached Garage
Garage Spaces: 2
Parking Description: Attached, Paved, Garage Door Opener, driveway, Garage
Roof: Shingle
Pool: Outside Bath Access, Pool Equipment, In Ground, Concrete, Screen Enclosure
Lot View: Canal,Water
Zoning: C-2
Additional Exterior/Lot Features: Lanai, Porch, Screened, Irregular Lot, Cul-de-Sac, Dead End
Waterfront Details
Water Front Features: Navigable Water, Canal Access, Seawall
Community Features
Community Features: Boat Facilities
Security Features: Smoke Detector(s)
Homeowners Association: Yes
HOA Dues: $120 / Annually
Driving Directions
McGregor Blvd, west on Cypress Lake Dr left on Clarellen Dr
Financial Considerations
Terms: All Financing Considered,Cash
Tax/Property ID: 21-45-24-09-00000.1530
Tax Amount: 4216.44
Tax Year: 2025
A broker reciprocity listing courtesy: VIP Realty Group Inc
Based on information provided by FGCMLS. Internet Data Exchange information is provided exclusively for consumers’ personal, non-commercial use, and such information may not be used for any purpose other than to identify prospective properties consumers may be interested in purchasing. This data is deemed reliable but is not guaranteed to be accurate by Edina Realty, Inc., or by the MLS. Edina Realty, Inc., is not a multiple listing service (MLS), nor does it offer MLS access.
Copyright 2026 FGCMLS. All Rights Reserved.
Sales History & Tax Summary for 1066 Clarellen Drive
Sales History
| Date | Price | |
|---|---|---|
| Currently not available. | ||
Tax Summary
| Tax Year | Estimated Market Value | Total Tax |
|---|---|---|
| Currently not available. | ||
Data powered by ATTOM Data Solutions. Copyright© 2026. Information deemed reliable but not guaranteed.
Schools
Schools nearby 1066 Clarellen Drive
| Schools in attendance boundaries | Grades | Distance | Rating |
|---|---|---|---|
| Loading... | |||
| Schools nearby | Grades | Distance | Rating |
|---|---|---|---|
| Loading... | |||
Data powered by ATTOM Data Solutions. Copyright© 2026. Information deemed reliable but not guaranteed.
The schools shown represent both the assigned schools and schools by distance based on local school and district attendance boundaries. Attendance boundaries change based on various factors and proximity does not guarantee enrollment eligibility. Please consult your real estate agent and/or the school district to confirm the schools this property is zoned to attend. Information is deemed reliable but not guaranteed.
SchoolDigger ® Rating
The SchoolDigger rating system is a 1-5 scale with 5 as the highest rating. SchoolDigger ranks schools based on test scores supplied by each state's Department of Education. They calculate an average standard score by normalizing and averaging each school's test scores across all tests and grades.
Coming soon properties will soon be on the market, but are not yet available for showings.