$569,000
108 Oceans Circle Daytona Beach, FL 32118
For Sale MLS# FC316407
3 beds 3 baths 1,296 sq ft Townhouse/Twinhome
Details for 108 Oceans Circle
MLS# FC316407
Description for 108 Oceans Circle, Daytona Beach, FL, 32118
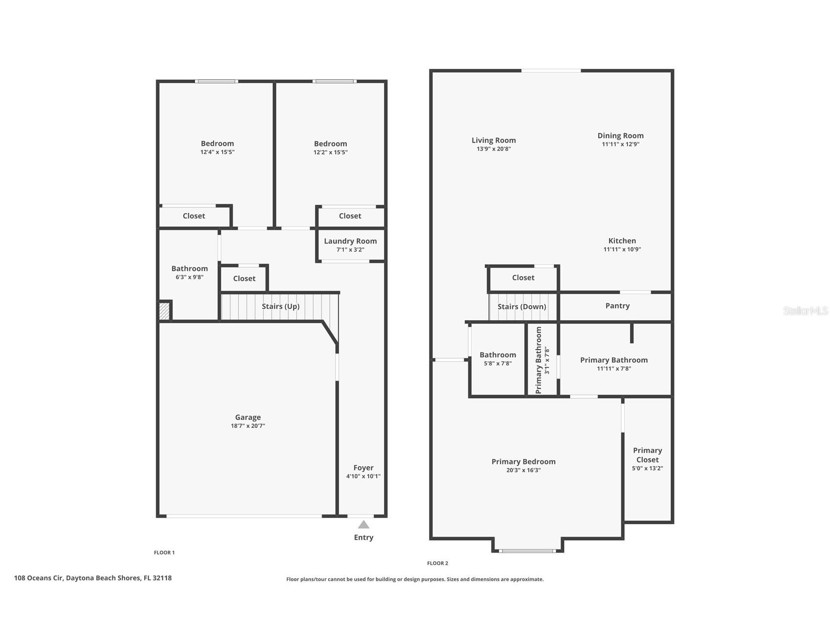
Coastal living with beach access. New townhome community with spacious living, 3 bedrooms, 2 1/2 baths and 2 car garage. Across the street is a county beach access walkover. enter the unit on ground floor next to garage. Two guest bedrooms, bath and utility room on ground floor. Second floor is an expansive, open space for kitchen dining and great room. Small balcony provides breezes and peaks at the ocean and county beach access. Spacious living, large master bedroom and closet with contemporary bathroom. Perfect for year-round living in a coastal lifestyle or second home. Short term rentals allowed. Unit comes fully furnished so take advantage of this opportunity. Avoid high cost HOA's and condos. Live in this contemporary styled townhome.
Listing Information
Property Type: Residential, Townhouse
Status: Active
Bedrooms: 3
Bathrooms: 3
Lot Size: 0.05 Acres
Square Feet: 1,296 sq ft
Year Built: 2022
Garage: Yes
Stories: 2 Story
Construction: Concrete,Wood Frame
Subdivision: Oceans 25
Foundation: Other
County: Volusia
Room Information
Upper Floor
Kitchen:
Primary Bathroom:
Living Room:
Primary Bedroom:
Bathrooms
Full Baths: 2
1/2 Baths: 1
Additonal Room Information
Laundry: Inside
Interior Features
Appliances: Electric Water Heater, Refrigerator, Microwave, Dishwasher, Disposal, Convection Oven
Flooring: Carpet,Ceramic Tile,Laminate
Additional Interior Features: Eat-In Kitchen, Open Floorplan
Utilities
Water: Public
Sewer: Public Sewer
Other Utilities: Electricity Connected
Cooling: Central Air
Heating: Central, Electric
Exterior / Lot Features
Attached Garage: Attached Garage
Garage Spaces: 2
Roof: Shingle
Additional Exterior/Lot Features: Balcony, Balcony
Community Features
HOA Dues Include: Other
Homeowners Association: Yes
HOA Dues: $240 / Monthly
Driving Directions
I-95 to exit 256 (Port Orange). Head east on Dunlawton Avenue across ICW to Atlantic Avenue. Take left at light onto S. Atlantic Avenue. North 1-2 miles. For access, turn left by sign (Oceans Circle Golf Club), then turn immediate right into Oceans Circle. #'108 on right side down towards end of building. Parking in front of garage or guest parking by mail station
Financial Considerations
Terms: Cash,Conventional,FHA,VA Loan
Tax/Property ID: 5327-24-00-0080
Tax Amount: 7413
Tax Year: 2025
A broker reciprocity listing courtesy: LPT REALTY, LLC
Based on information provided by Stellar MLS as distributed by the MLS GRID. Information from the Internet Data Exchange is provided exclusively for consumers’ personal, non-commercial use, and such information may not be used for any purpose other than to identify prospective properties consumers may be interested in purchasing. This data is deemed reliable but is not guaranteed to be accurate by Edina Realty, Inc., or by the MLS. Edina Realty, Inc., is not a multiple listing service (MLS), nor does it offer MLS access.
Copyright 2026 Stellar MLS as distributed by the MLS GRID. All Rights Reserved.
Payment Calculator
Interest rate and annual percentage rate (APR) are based on current market conditions, are for informational purposes only, are subject to change without notice and may be subject to pricing add-ons related to property type, loan amount, loan-to-value, credit score and other variables. Estimated closing costs used in the APR calculation are assumed to be paid by the borrower at closing. If the closing costs are financed, the loan, APR and payment amounts will be higher. If the down payment is less than 20%, mortgage insurance may be required and could increase the monthly payment and APR. Contact us for details. Additional loan programs may be available. Accuracy is not guaranteed, and all products may not be available in all borrower's geographical areas and are based on their individual situation. This is not a credit decision or a commitment to lend.
Sales History & Tax Summary for 108 Oceans Circle
Sales History
| Date | Price | |
|---|---|---|
| Currently not available. | ||
Tax Summary
| Tax Year | Estimated Market Value | Total Tax |
|---|---|---|
| Currently not available. | ||
Data powered by ATTOM Data Solutions. Copyright© 2026. Information deemed reliable but not guaranteed.
Schools
Schools nearby 108 Oceans Circle
| Schools in attendance boundaries | Grades | Distance | Rating |
|---|---|---|---|
| Loading... | |||
| Schools nearby | Grades | Distance | Rating |
|---|---|---|---|
| Loading... | |||
Data powered by ATTOM Data Solutions. Copyright© 2026. Information deemed reliable but not guaranteed.
The schools shown represent both the assigned schools and schools by distance based on local school and district attendance boundaries. Attendance boundaries change based on various factors and proximity does not guarantee enrollment eligibility. Please consult your real estate agent and/or the school district to confirm the schools this property is zoned to attend. Information is deemed reliable but not guaranteed.
SchoolDigger ® Rating
The SchoolDigger rating system is a 1-5 scale with 5 as the highest rating. SchoolDigger ranks schools based on test scores supplied by each state's Department of Education. They calculate an average standard score by normalizing and averaging each school's test scores across all tests and grades.
Coming soon properties will soon be on the market, but are not yet available for showings.