$1,300,000
10832 Whisk Fern Drive Venice, FL 34293
For Sale MLS# A4687882
4 beds 4 baths 3,079 sq ft Single Family
Details for 10832 Whisk Fern Drive
MLS# A4687882
Description for 10832 Whisk Fern Drive, Venice, FL, 34293
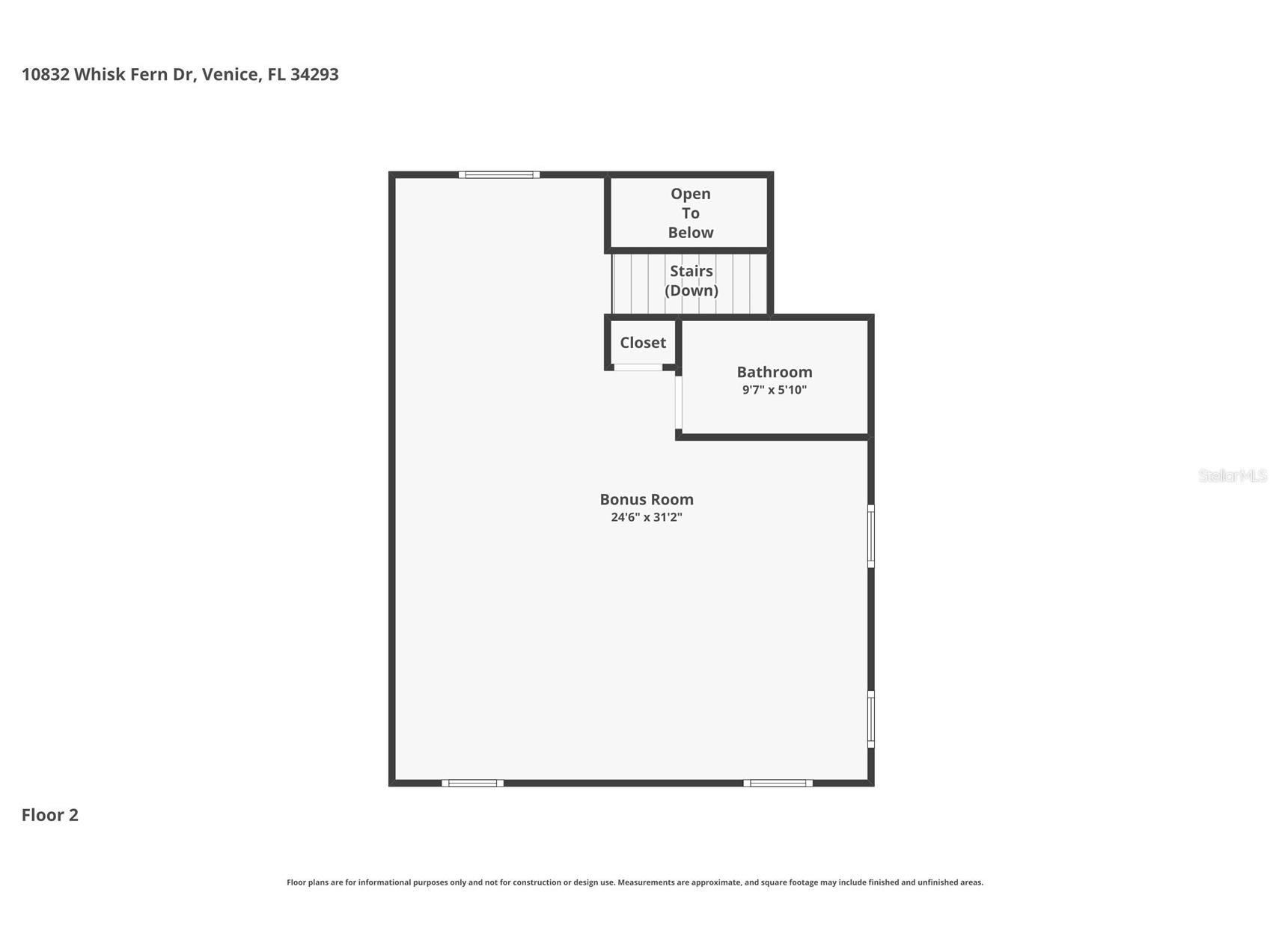
Welcome to one of the most desirable homes in Sarasota National’s estate section—where refined design, breathtaking golf course views, and effortless indoor-outdoor living come together in perfect harmony. Ideally positioned mid-street on a quiet cul-de-sac, this Napoli Grande residence with pool and spa captures sweeping long fairway views of the 2nd hole, paired with coveted southwestern exposure. The result is a home filled with warm, natural light by day and unforgettable sunset evenings that unfold over your private pool and spa—an ever-changing backdrop of color and calm. Inside, every detail has been thoughtfully elevated. Custom trim work and coffered ceilings bring architectural richness and warmth to the main living spaces, while the open-concept design creates a natural flow that feels both inviting and expansive. The kitchen and great room transition seamlessly to the lanai, blurring the lines between indoors and out—perfect for entertaining or simply enjoying the rhythm of everyday living. Designed to truly embrace Florida’s indoor-outdoor lifestyle, disappearing sliding glass doors—along with additional access from the breakfast nook and primary suite—open to a spectacular screened lanai. Here, a sparkling pool and spa are surrounded by a serene tropical setting, all enhanced by those sought-after southwestern sunset views that elevate every moment. The outdoor space has been beautifully reimagined with a light, modern stone pool deck, offering a clean, sophisticated aesthetic that complements the natural surroundings. A covered lanai with wood ceiling detail creates the ideal setting for morning coffee, relaxed afternoons, or evenings spent gathering with friends as the sun dips below the fairway. Upstairs, a spacious bonus suite with a full bath, bar area, sink, and wine refrigerator offers incredible flexibility—whether as a private guest retreat, media room, or an elevated entertaining space. Additional features include hurricane-rated windows and doors, Storm Smart protection for the lanai, and a 3-car garage—blending peace of mind with everyday convenience. This home also includes a coveted golf membership, offering immediate access to Sarasota National’s championship course—an exceptional value and lifestyle advantage. As a resident, you’ll enjoy resort-style amenities including golf, dining, fitness, and a vibrant, connected social atmosphere. The golf course is currently undergoing a renovation to bring you a new and improved golfing experience. Perfectly located near multiple golf courses and just minutes from Wellen Park, with easy access to Englewood Beach, Venice Beach, Siesta Key, and the natural beauty of Myakka River State Park. This is more than a home—it’s a lifestyle defined by comfort, elegance, optional activities and connection. Come see, come sigh… and make this extraordinary residence your own.
Listing Information
Property Type: Residential, Single Family Residence
Status: Active
Bedrooms: 4
Bathrooms: 4
Lot Size: 0.26 Acres
Square Feet: 3,079 sq ft
Year Built: 2019
Garage: Yes
Stories: 2 Story
Construction: Block,Stone,Stucco
Subdivision: Sarasota National Ph 8
Foundation: Slab
County: Sarasota
School Information
Elementary: Taylor Ranch Elementary
Middle: Venice Area Middle
High: Venice Senior High
Room Information
Main Floor
Living Room: 18x22
Bathroom 2: 5x7
Bedroom 4: 15x11
Bedroom 3: 13x11
Bedroom 2: 15x10
Primary Bathroom: 19x12
Primary Bedroom: 21x14
Kitchen: 12x11
Upper Floor
Bathroom 3: 6x10
Bonus Room: 31x24
Bathrooms
Full Baths: 3
1/2 Baths: 1
Additonal Room Information
Laundry: Laundry Room, Inside
Interior Features
Appliances: Range Hood, Built-In Oven, Refrigerator, Cooktop, Dishwasher, Microwave
Flooring: Carpet,Ceramic Tile
Doors/Windows: Window Treatments
Additional Interior Features: Split Bedrooms, Walk-In Closet(s), Window Treatments, Ceiling Fan(s), Eat-In Kitchen, Kitchen/Family Room Combo, Open Floorplan, Stone Counters, Coffered Ceiling(s), Main Level Primary, Crown Molding
Utilities
Water: Public
Sewer: Public Sewer
Other Utilities: Municipal Utilities
Cooling: Ceiling Fan(s), Central Air
Heating: Central, Electric
Exterior / Lot Features
Attached Garage: Attached Garage
Garage Spaces: 3
Parking Description: Garage Faces Side
Roof: Tile
Pool: In Ground, Screen Enclosure, Community, Gunite, Association
Lot View: Lake,Water
Additional Exterior/Lot Features: Sprinkler/Irrigation, Private Yard, Rain Gutters, Lighting, On Golf Course
Waterfront Details
Water Front Features: Lake Front
Community Features
Community Features: Sidewalks, Pool, Tennis Court(s), Golf, Gated, Restaurant
Security Features: Gated Community, Gated with Guard
Association Amenities: Gated, Clubhouse, Fitness Center, Tennis Court(s), Pool
HOA Dues Include: Road Maintenance
Homeowners Association: Yes
HOA Dues: $3,601 / Quarterly
Driving Directions
From US 41 South, turn right on to to National Blvd to Guard Gate. Check in with guard. Proceed straight on National Boulevard. Turn left on Ironbridge, then right on Waverly Circle. Turn right on Spartina Drive and follow it to Whisk Fern Drive.
Financial Considerations
Terms: Cash,Conventional,VA Loan
Tax/Property ID: 0466080709
Tax Amount: 8667.52
Tax Year: 2025
A broker reciprocity listing courtesy: KELLER WILLIAMS ON THE WATER S
Based on information provided by Stellar MLS as distributed by the MLS GRID. Information from the Internet Data Exchange is provided exclusively for consumers’ personal, non-commercial use, and such information may not be used for any purpose other than to identify prospective properties consumers may be interested in purchasing. This data is deemed reliable but is not guaranteed to be accurate by Edina Realty, Inc., or by the MLS. Edina Realty, Inc., is not a multiple listing service (MLS), nor does it offer MLS access.
Copyright 2026 Stellar MLS as distributed by the MLS GRID. All Rights Reserved.
Payment Calculator
Interest rate and annual percentage rate (APR) are based on current market conditions, are for informational purposes only, are subject to change without notice and may be subject to pricing add-ons related to property type, loan amount, loan-to-value, credit score and other variables. Estimated closing costs used in the APR calculation are assumed to be paid by the borrower at closing. If the closing costs are financed, the loan, APR and payment amounts will be higher. If the down payment is less than 20%, mortgage insurance may be required and could increase the monthly payment and APR. Contact us for details. Additional loan programs may be available. Accuracy is not guaranteed, and all products may not be available in all borrower's geographical areas and are based on their individual situation. This is not a credit decision or a commitment to lend.
Sales History & Tax Summary for 10832 Whisk Fern Drive
Sales History
| Date | Price | |
|---|---|---|
| Currently not available. | ||
Tax Summary
| Tax Year | Estimated Market Value | Total Tax |
|---|---|---|
| Currently not available. | ||
Data powered by ATTOM Data Solutions. Copyright© 2026. Information deemed reliable but not guaranteed.
Schools
Schools nearby 10832 Whisk Fern Drive
| Schools in attendance boundaries | Grades | Distance | Rating |
|---|---|---|---|
| Loading... | |||
| Schools nearby | Grades | Distance | Rating |
|---|---|---|---|
| Loading... | |||
Data powered by ATTOM Data Solutions. Copyright© 2026. Information deemed reliable but not guaranteed.
The schools shown represent both the assigned schools and schools by distance based on local school and district attendance boundaries. Attendance boundaries change based on various factors and proximity does not guarantee enrollment eligibility. Please consult your real estate agent and/or the school district to confirm the schools this property is zoned to attend. Information is deemed reliable but not guaranteed.
SchoolDigger ® Rating
The SchoolDigger rating system is a 1-5 scale with 5 as the highest rating. SchoolDigger ranks schools based on test scores supplied by each state's Department of Education. They calculate an average standard score by normalizing and averaging each school's test scores across all tests and grades.
Coming soon properties will soon be on the market, but are not yet available for showings.