$242,000
1086 Park Ridge Circle Kissimmee, FL 34746
For Sale MLS# O6375057
3 beds 3 baths 1,291 sq ft Townhouse/Twinhome
Details for 1086 Park Ridge Circle
MLS# O6375057
Description for 1086 Park Ridge Circle, Kissimmee, FL, 34746
RESORT-STYLE LIVING AWAITS! This stunning 3-bedroom, 2.5-bathroom townhome is perfectly situated in the guard-gated Lake Berkley Resort Villa community. Meticulously maintained and in excellent condition, this home offers peace of mind for buyers seeking a move-in ready property. NEW ROOF coming Soon! Fully furnished, equipped, and enhanced with smart home devices throughout, it’s ideal for hassle-free living or starting a turnkey short-term rental operation. The open-concept main floor flows seamlessly from the kitchen to living and dining areas—perfect for entertaining or unwinding after magical days at nearby Disney World. A convenient half bathroom and laundry room with washer and dryer complete the main level, while sliding glass doors lead to your private patio oasis under the Florida sun. Upstairs, the spacious primary suite features a private balcony with sunrise views and a large en-suite bathroom with a stand-alone shower. Two additional bedrooms and a full guest bathroom provide ample space for family, visitors, or maximizing rental income potential in this highly sought-after vacation market. Residents of Lake Berkley Resort enjoy resort-style amenities including 24/7 guard-gated security, a sparkling community pool and clubhouse, fitness center, tennis courts, multiple playgrounds, and scenic picnic areas around the picturesque lake. Located just minutes from Disney World, Universal Studios, premium shopping, and I-4, this home offers the perfect combination of Florida lifestyle and investment opportunity. Move-in ready and fully equipped—just grab your keys and start living or earning rental income immediately. Don’t miss your chance to own in Lake Berkley Resort, where every day feels like a vacation!
Listing Information
Property Type: Residential, Townhouse
Status: Active
Bedrooms: 3
Bathrooms: 3
Lot Size: 0.03 Acres
Square Feet: 1,291 sq ft
Year Built: 2002
Stories: 2 Story
Construction: Block,Stucco
Subdivision: Lake Berkley Resort Villas Ph 2
Foundation: Other
County: Osceola
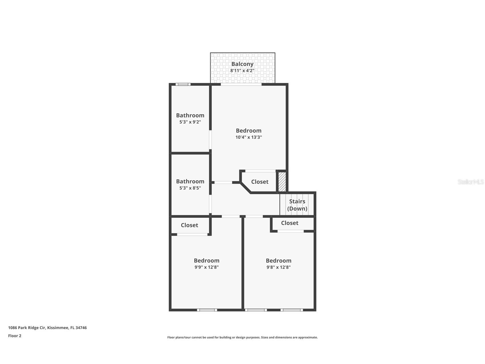
Room Information
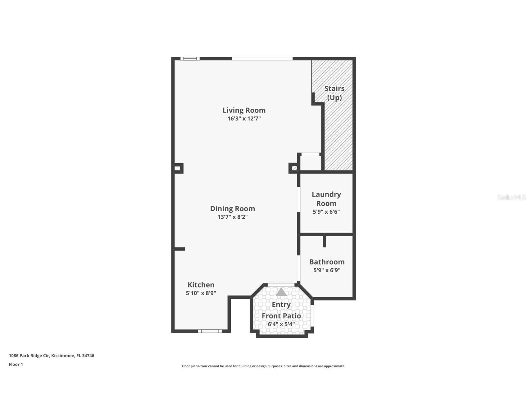
Main Floor
Dining Room:
Living Room:
Kitchen:
Upper Floor
Bedroom 3:
Bedroom 2:
Primary Bedroom:
Bathrooms
Full Baths: 2
1/2 Baths: 1
Additonal Room Information
Laundry: Inside
Interior Features
Appliances: Washer, Range, Refrigerator, Dishwasher, Dryer, Microwave
Flooring: Carpet,Tile
Additional Interior Features: Living/Dining Room, Open Floorplan, Upper Level Primary
Utilities
Water: Public
Sewer: Public Sewer
Other Utilities: Municipal Utilities
Cooling: Other
Heating: Other
Exterior / Lot Features
Roof: Tile
Pool: Community
Community Features
Community Features: Pool, Tennis Court(s), Playground, Gated, Fitness
Security Features: Gated Community, Gated with Guard
HOA Dues Include: Security, Recreation Facilities, Maintenance Structure, Pool(s)
Homeowners Association: Yes
HOA Dues: $460 / Monthly
Driving Directions
FL-417 Toll S, Take exit 3 for Osceola Pkwy, take the ramp to Florida's Turnpike E, Turn left onto W Osceola Pkwy, Take the ramp to N Poinciana Turn left onto Oren Brown Rd, Turn right onto N Roma Way, Turn right onto Ormskirt Blvd, Turn right onto Park Ridge Cir, Turn left to stay on Park Ridge Cir, Destination will be on the right.
Financial Considerations
Terms: Cash,Conventional,FHA
Tax/Property ID: 24-25-28-3759-0017-0020
Tax Amount: 3506
Tax Year: 2025
A broker reciprocity listing courtesy: EXP REALTY LLC
Based on information provided by Stellar MLS as distributed by the MLS GRID. Information from the Internet Data Exchange is provided exclusively for consumers’ personal, non-commercial use, and such information may not be used for any purpose other than to identify prospective properties consumers may be interested in purchasing. This data is deemed reliable but is not guaranteed to be accurate by Edina Realty, Inc., or by the MLS. Edina Realty, Inc., is not a multiple listing service (MLS), nor does it offer MLS access.
Copyright 2026 Stellar MLS as distributed by the MLS GRID. All Rights Reserved.
Payment Calculator
Interest rate and annual percentage rate (APR) are based on current market conditions, are for informational purposes only, are subject to change without notice and may be subject to pricing add-ons related to property type, loan amount, loan-to-value, credit score and other variables. Estimated closing costs used in the APR calculation are assumed to be paid by the borrower at closing. If the closing costs are financed, the loan, APR and payment amounts will be higher. If the down payment is less than 20%, mortgage insurance may be required and could increase the monthly payment and APR. Contact us for details. Additional loan programs may be available. Accuracy is not guaranteed, and all products may not be available in all borrower's geographical areas and are based on their individual situation. This is not a credit decision or a commitment to lend.
Sales History & Tax Summary for 1086 Park Ridge Circle
Sales History
| Date | Price | |
|---|---|---|
| Currently not available. | ||
Tax Summary
| Tax Year | Estimated Market Value | Total Tax |
|---|---|---|
| Currently not available. | ||
Data powered by ATTOM Data Solutions. Copyright© 2026. Information deemed reliable but not guaranteed.
Schools
Schools nearby 1086 Park Ridge Circle
| Schools in attendance boundaries | Grades | Distance | Rating |
|---|---|---|---|
| Loading... | |||
| Schools nearby | Grades | Distance | Rating |
|---|---|---|---|
| Loading... | |||
Data powered by ATTOM Data Solutions. Copyright© 2026. Information deemed reliable but not guaranteed.
The schools shown represent both the assigned schools and schools by distance based on local school and district attendance boundaries. Attendance boundaries change based on various factors and proximity does not guarantee enrollment eligibility. Please consult your real estate agent and/or the school district to confirm the schools this property is zoned to attend. Information is deemed reliable but not guaranteed.
SchoolDigger ® Rating
The SchoolDigger rating system is a 1-5 scale with 5 as the highest rating. SchoolDigger ranks schools based on test scores supplied by each state's Department of Education. They calculate an average standard score by normalizing and averaging each school's test scores across all tests and grades.
Coming soon properties will soon be on the market, but are not yet available for showings.