10932 44th Avenue E Palmetto, FL 34221
For Sale MLS# A4672018
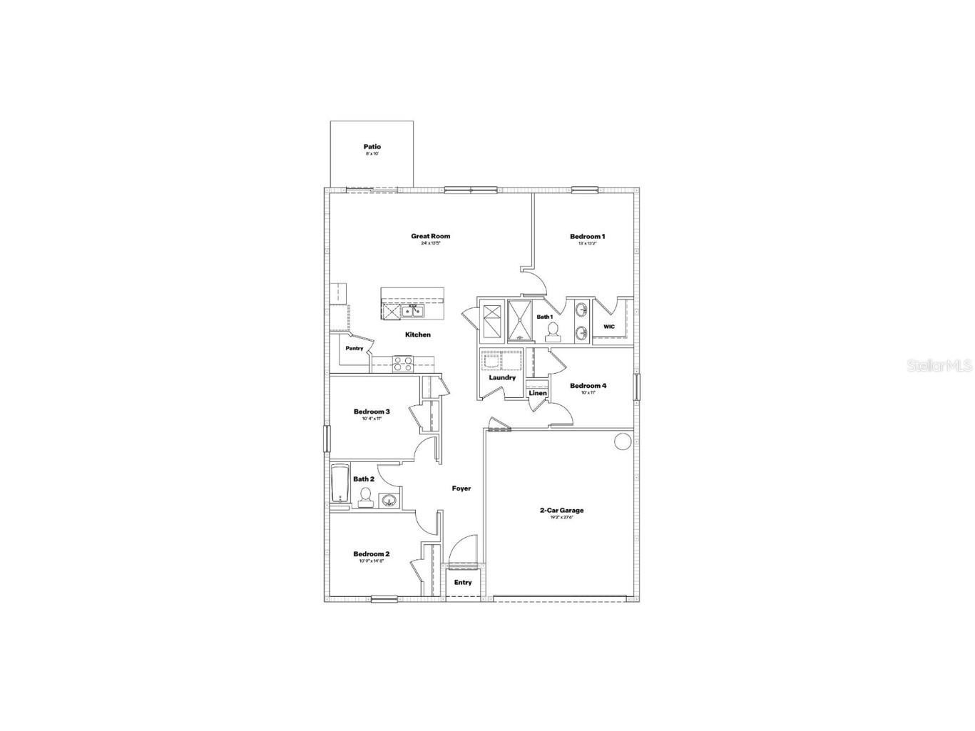
4 beds 2 baths 1,498 sq ft Single Family
Details for 10932 44th Avenue E
MLS# A4672018
Description for 10932 44th Avenue E, Palmetto, FL, 34221
Under Construction. Receive up to $35,000 towards Closing Costs & Flex Cash and Special Interest Rates with the use of our preferred lender - Now through Dec. 31st. This all-concrete block constructed, one-story layout optimizes living space with an open concept kitchen overlooking the living area, dining room, and covered lanai. The well-appointed kitchen comes with all appliances, including refrigerator, built-in dishwasher, electric range, and microwave. The Bedroom 1, located at the back of the home for privacy, includes Bathroom 1. Two additional bedrooms share a second bathroom. The laundry room comes equipped with included washer and dryer. Pictures, photographs, colors, features, and sizes are for illustration purposes only and will vary from the homes as built. Home and community information including pricing, included features, terms, availability and amenities are subject to change and prior sale at any time without notice or obligation.
Listing Information
Property Type: Residential, Single Family Residence
Status: Active
Bedrooms: 4
Bathrooms: 2
Lot Size: 0.15 Acres
Square Feet: 1,498 sq ft
Year Built: 2026
Garage: Yes
Stories: 1 Story
Construction: Block,Concrete
Construction Display: New Construction
Subdivision: Mandarin Grove
Builder: D.R. Horton
Foundation: Slab
County: Manatee
Construction Status: Under Construction
School Information
Elementary: James Tillman Elementary
Middle: Buffalo Creek Middle
High: Palmetto High
Room Information
Main Floor
Bedroom 4:
Great Room: 16x15
Dining Room: 10x11
Kitchen: 11x18
Bedroom 3: 11x10
Bedroom 2: 11x10
Primary Bedroom: 15x12
Bathrooms
Full Baths: 2
Additonal Room Information
Laundry: Laundry Closet, Laundry Room
Interior Features
Appliances: Electric Water Heater, Exhaust Fan, Washer, Dishwasher, Disposal, Dryer, Microwave, Range, Refrigerator
Flooring: Carpet,Luxury Vinyl
Doors/Windows: Blinds, Double Pane Windows, Window Treatments
Additional Interior Features: Walk-In Closet(s), Window Treatments, Upper Level Primary, Open Floorplan
Utilities
Water: Public
Sewer: Public Sewer
Other Utilities: Electricity Available,Sewer Connected
Cooling: Central Air
Heating: Electric
Exterior / Lot Features
Attached Garage: Attached Garage
Garage Spaces: 2
Parking Description: Garage, Garage Door Opener, driveway
Roof: Shingle
Pool: Community
Additional Exterior/Lot Features: Storm/Security Shutters, Sprinkler/Irrigation, Lighting, Covered, Landscaped
Community Features
Community Features: Pool, Sidewalks, Clubhouse
Security Features: Fire Sprinkler System, Fire Alarm, Secured Garage/Parking, Smoke Detector(s)
Association Amenities: Maintenance Grounds, Clubhouse
HOA Dues Include: Pool(s)
Homeowners Association: Yes
HOA Dues: $56 / Quarterly
Driving Directions
From I-75 S to 97th St E/Moccasin Wallow Rd in Manatee County. Take exit 229 from I-75 S, continue to 97th St E/Moccasin Wallow Rd. Drive 2.1 miles to 36th Ave E/Bud Rhoden Rd. Head north onto 36th Ave E/Bud Rhoden Rd. Community will be on the right.
Financial Considerations
Terms: Cash,Conventional,FHA,VA Loan
Tax/Property ID: 612311409
Tax Year: 2025
A broker reciprocity listing courtesy: D.R. HORTON REALTY OF SARASOTA
Based on information provided by Stellar MLS as distributed by the MLS GRID. Information from the Internet Data Exchange is provided exclusively for consumers’ personal, non-commercial use, and such information may not be used for any purpose other than to identify prospective properties consumers may be interested in purchasing. This data is deemed reliable but is not guaranteed to be accurate by Edina Realty, Inc., or by the MLS. Edina Realty, Inc., is not a multiple listing service (MLS), nor does it offer MLS access.
Copyright 2025 Stellar MLS as distributed by the MLS GRID. All Rights Reserved.
Payment Calculator
Interest rate and annual percentage rate (APR) are based on current market conditions, are for informational purposes only, are subject to change without notice and may be subject to pricing add-ons related to property type, loan amount, loan-to-value, credit score and other variables. Estimated closing costs used in the APR calculation are assumed to be paid by the borrower at closing. If the closing costs are financed, the loan, APR and payment amounts will be higher. If the down payment is less than 20%, mortgage insurance may be required and could increase the monthly payment and APR. Contact us for details. Additional loan programs may be available. Accuracy is not guaranteed, and all products may not be available in all borrower's geographical areas and are based on their individual situation. This is not a credit decision or a commitment to lend.
Sales History & Tax Summary for 10932 44th Avenue E
Sales History
| Date | Price | Change |
|---|---|---|
| Currently not available. | ||
Tax Summary
| Tax Year | Estimated Market Value | Total Tax |
|---|---|---|
| Currently not available. | ||
Data powered by ATTOM Data Solutions. Copyright© 2025. Information deemed reliable but not guaranteed.
Schools
Schools nearby 10932 44th Avenue E
| Schools in attendance boundaries | Grades | Distance | Rating |
|---|---|---|---|
| Loading... | |||
| Schools nearby | Grades | Distance | Rating |
|---|---|---|---|
| Loading... | |||
Data powered by ATTOM Data Solutions. Copyright© 2025. Information deemed reliable but not guaranteed.
The schools shown represent both the assigned schools and schools by distance based on local school and district attendance boundaries. Attendance boundaries change based on various factors and proximity does not guarantee enrollment eligibility. Please consult your real estate agent and/or the school district to confirm the schools this property is zoned to attend. Information is deemed reliable but not guaranteed.
SchoolDigger ® Rating
The SchoolDigger rating system is a 1-5 scale with 5 as the highest rating. SchoolDigger ranks schools based on test scores supplied by each state's Department of Education. They calculate an average standard score by normalizing and averaging each school's test scores across all tests and grades.
Coming soon properties will soon be on the market, but are not yet available for showings.