$275,000
10935 Gable Dig Loop San Antonio, FL 33576
For Sale MLS# TB8435207
2 beds 2 baths 1,625 sq ft Single Family
Details for 10935 Gable Dig Loop
MLS# TB8435207
Description for 10935 Gable Dig Loop, San Antonio, FL, 33576
Location, Location, Location! Just steps away from the Clubhouse and Amenity Center! This pristine Pottery Barn inspired Villa with wonderful POND LOT in Medley Active Adult. For those better than 55 years young, presents an exceptional lifestyle just beyond the confines of your home. As a resident, you'll enjoy exclusive Clubhouse access with a full calendar of events daily! You will also enjoy a restaurant & bar, heated pool w/cabanas, ballroom, billiards room, card room, state of the art fitness center, pickleball & tennis courts, bocce ball, yoga, line dancing and private active adult events. PLUS included in your HOA is a 15-acre lagoon membership w/soft, sandy beaches including a swim-up bar, kayaking, paddleboarding, obstacle course, waterslides, corn hole games, and tons of community events! Be sure & invite friends or family to come along with you as you may gift them passes or pay a deeply discounted rate! This immaculate villa will please even the most selective buyers! Comprised of 2 spacious bedrooms, 2 Full Baths + an office/den, and 1 car garage. Your new home includes lots of upgrades including crown molding, quartz countertops throughout, plenty of lighting, stainless appliances and white cabinetry. Sliding glass doors lead to your Lania with a wonderful pond view and extra space between villas. Great spot to sit and relax and enjoy a cup of coffee or glass of wine! As you step inside, you'll be greeted by a seamless flow of open living spaces, making it ideal for both relaxation and entertaining. Get ready to make memories that will last a lifetime! Your dream home awaits; you will be enjoying the CAREFREE FLORIDA RESORT LIFESTYLE in your new home as quickly as you are able to move in! Gorgeous curb appeal on this block villa! Enjoy 42" Cabinets, and Walk-in Pantry in this gorgeous kitchen. Primary Suite includes ensuite bath, dual sinks, and Walk-in Closet to keep you organized, and ceiling fans to keep you cool. High-speed (ULTRAFI) internet, premium cable, yard maintenance & exterior painting and homeowners' insurance for structure are covered by HOA. The location of this residence is equally remarkable, situated in close proximity to premier shopping destinations, and an array of dining options, you'll find yourself immersed in a vibrant community that strikes a perfect balance between exclusivity and convenience. Ride your Golf Cart to the Clubhouse, Publix, restaurants, Farmers Market, Chick-fil-A, Banks, Starbucks, Nail Shops, and more! Close to Advent Health Hospitals, BayCare Hospital, Florida Medical Clinic, Wire Grass Mall, Tampa Premium Outlet Mall, Krate at the Grove, Sam's Club, Costco, Golf Courses & Movie Theater. Easy access to I75, 275, T
Listing Information
Property Type: Residential, Villa
Status: Active
Bedrooms: 2
Bathrooms: 2
Lot Size: 0.10 Acres
Square Feet: 1,625 sq ft
Year Built: 2024
Garage: Yes
Stories: 1 Story
Construction: Stucco
Subdivision: Mirada Active Adult Ph 2b
Foundation: Slab
County: Pasco
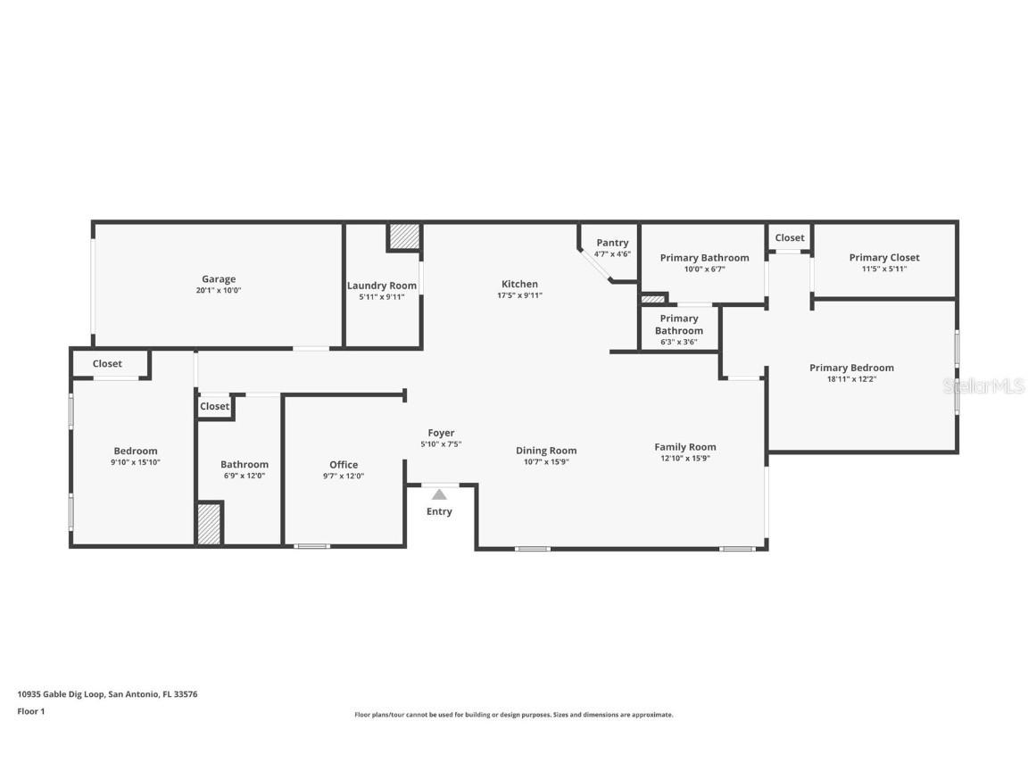
Room Information
Main Floor
Dining Room: 15.6x10
Living Room: 15.6x13
Kitchen:
Office: 12x10
Primary Bedroom: 15.8x19
Bedroom 2: 15.7x10
Bathrooms
Full Baths: 2
Additonal Room Information
Laundry: Inside, Laundry Room
Interior Features
Appliances: Built-In Oven, Exhaust Fan, Washer, Electric Water Heater, Microwave, Range, Refrigerator, Dishwasher, Disposal, Dryer
Flooring: Carpet,Tile
Doors/Windows: Window Treatments
Additional Interior Features: Split Bedrooms, Walk-In Closet(s), Window Treatments, Ceiling Fan(s), Main Level Primary, Crown Molding, Built-in Features, Open Floorplan, Kitchen/Family Room Combo, Stone Counters, Wood Cabinets
Utilities
Water: Public
Sewer: Public Sewer
Other Utilities: Cable Connected,Electricity Connected,Sewer Connected,Underground Utilities,Water Connected
Cooling: Ceiling Fan(s), Central Air
Heating: Electric, Central
Exterior / Lot Features
Attached Garage: Attached Garage
Garage Spaces: 1
Roof: Tile
Pool: Community, Association
Lot View: Pond,Water
Additional Exterior/Lot Features: Sprinkler/Irrigation
Community Features
Community Features: Sidewalks, Pool, Tennis Court(s), Playground, Clubhouse, Street Lights, Dog Park, Gated, Park, Restaurant, Fitness, Golf Carts OK, Community Mailbox
Security Features: Fire Hydrant(s), Gated Community
Association Amenities: Pool, Cable TV, Fitness Center, Clubhouse, Playground, Tennis Court(s), Recreation Facilities, Gated, Trail(s), Pickleball, Park
HOA Dues Include: Pool(s), Maintenance Structure, Maintenance Grounds, Cable TV, Internet
Homeowners Association: Yes
HOA Dues: $267 / Monthly
Driving Directions
E on SR 52 from I75, turn Right on Mirada Blvd, Right on Rider Creek, Left on Cannon Rush, Left on Fiddle Rock Way, Left on Gable Dig, property will be on Right.
Financial Considerations
Terms: Cash,Conventional,FHA,VA Loan
Tax/Property ID: 15-25-20-0190-00000-1800
Tax Amount: 1741.52
Tax Year: 2024
A broker reciprocity listing courtesy: FUTURE HOME REALTY INC
Based on information provided by Stellar MLS as distributed by the MLS GRID. Information from the Internet Data Exchange is provided exclusively for consumers’ personal, non-commercial use, and such information may not be used for any purpose other than to identify prospective properties consumers may be interested in purchasing. This data is deemed reliable but is not guaranteed to be accurate by Edina Realty, Inc., or by the MLS. Edina Realty, Inc., is not a multiple listing service (MLS), nor does it offer MLS access.
Copyright 2025 Stellar MLS as distributed by the MLS GRID. All Rights Reserved.
Payment Calculator
Interest rate and annual percentage rate (APR) are based on current market conditions, are for informational purposes only, are subject to change without notice and may be subject to pricing add-ons related to property type, loan amount, loan-to-value, credit score and other variables. Estimated closing costs used in the APR calculation are assumed to be paid by the borrower at closing. If the closing costs are financed, the loan, APR and payment amounts will be higher. If the down payment is less than 20%, mortgage insurance may be required and could increase the monthly payment and APR. Contact us for details. Additional loan programs may be available. Accuracy is not guaranteed, and all products may not be available in all borrower's geographical areas and are based on their individual situation. This is not a credit decision or a commitment to lend.
Sales History & Tax Summary for 10935 Gable Dig Loop
Sales History
| Date | Price | Change |
|---|---|---|
| Currently not available. | ||
Tax Summary
| Tax Year | Estimated Market Value | Total Tax |
|---|---|---|
| Currently not available. | ||
Data powered by ATTOM Data Solutions. Copyright© 2025. Information deemed reliable but not guaranteed.
Schools
Schools nearby 10935 Gable Dig Loop
| Schools in attendance boundaries | Grades | Distance | Rating |
|---|---|---|---|
| Loading... | |||
| Schools nearby | Grades | Distance | Rating |
|---|---|---|---|
| Loading... | |||
Data powered by ATTOM Data Solutions. Copyright© 2025. Information deemed reliable but not guaranteed.
The schools shown represent both the assigned schools and schools by distance based on local school and district attendance boundaries. Attendance boundaries change based on various factors and proximity does not guarantee enrollment eligibility. Please consult your real estate agent and/or the school district to confirm the schools this property is zoned to attend. Information is deemed reliable but not guaranteed.
SchoolDigger ® Rating
The SchoolDigger rating system is a 1-5 scale with 5 as the highest rating. SchoolDigger ranks schools based on test scores supplied by each state's Department of Education. They calculate an average standard score by normalizing and averaging each school's test scores across all tests and grades.
Coming soon properties will soon be on the market, but are not yet available for showings.