$249,900
Off-Market Date: 02/10/202610948 181st Lane NW Elk River, MN 55330
Pending MLS# 7007368
2 beds 2 baths 1,351 sq ft Townhouse/Twinhome
Details for 10948 181st Lane NW
MLS# 7007368
Description for 10948 181st Lane NW, Elk River, MN, 55330
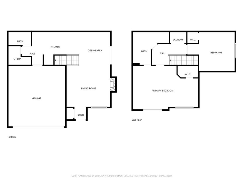
Welcome to easy living in Trout Brook Farm! This sunny 2-bedroom, 2-bath end-unit home offers great nature views and neighborhood amenities in a convenient Elk River location! The living room features a huge picture window and a cozy gas fireplace, perfect for Minnesota winters. The dining area opens to a large and private patio. Newer stainless steel appliances, abundant cabinetry, and a functional breakfast bar anchor this kitchen as the home’s hub—and the main-level half bath adds everyday convenience. Upstairs, you’ll find two generous bedrooms including a spacious primary retreat with room for an office or sitting area. The upper-level also features a handy laundry closet and a walk-through full bath with a separate tub and shower—a rare perk at this price point. Updates include new carpet throughout, new flooring in the kitchen, and a brand-new furnace. Located in Elk River’s Trout Brook Farm development, you’ll enjoy easy access to parks, trails, shopping, and Highway 169.
Listing Information
Property Type: Residential, Side by Side
Status: Pending
Bedrooms: 2
Bathrooms: 2
Lot Size: 0.03 Acres
Square Feet: 1,351 sq ft
Year Built: 2001
Foundation: 1,039 sq ft
Garage: Yes
Stories: 2 Stories
Property Attached: Yes
Subdivision: Cic #12 Trout Brook Condo
County: Sherburne
Days On Market: 30
Construction Status: Previously Owned
School Information
District: 728 - Elk River
Room Information
Main Floor
Dining Room: 11x10
Kitchen: 15x11
Living Room: 14x14
Upper Floor
Bedroom 1: 21x14
Bedroom 2: 15x13
Bathrooms
Full Baths: 1
1/2 Baths: 1
Additonal Room Information
Dining: Breakfast Bar,Informal Dining Room
Laundry: Laundry Closet, Upper Level
Bath Description: Main Floor 1/2 Bath,Primary Walk-Thru,Upper Level Full Bath
Interior Features
Square Footage above: 1,351 sq ft
Appliances: Washer, Stainless Steel Appliances, Range, Refrigerator, Dishwasher, Disposal, Dryer, Microwave
Fireplaces: 1, Living Room, Gas Burning
Additional Interior Features: Ceiling Fan(s), 2nd Floor Laundry, Vaulted Ceiling(s), Washer/Dryer Hookup, Walk-In Closet
Utilities
Water: City Water/Connected
Sewer: City Sewer/Connected
Cooling: Central
Heating: Natural Gas, Forced Air
Exterior / Lot Features
Attached Garage: Attached Garage
Garage Spaces: 2
Parking Description: Attached Garage, Garage Dimensions - 19x20, Garage Sq Ft - 399.0
Exterior: Vinyl
Roof: Age Over 8 Years, Asphalt Shingles
Lot Dimensions: common
Zoning: Residential-Single Family
Additional Exterior/Lot Features: Patio, End Unit, Tree Coverage - Light, Road Frontage - Private
Community Features
HOA Dues Include: Building Exterior, Sanitation, Water, Sewer, Outside Maintenance, Hazard Insurance, Lawn Care, Professional Mgmt
Pets Allowed: Yes
Homeowners Association: Yes
Association Name: Gaughan Companies
HOA Dues: $315 / Monthly
Driving Directions
Hwy 169 to Main St Exit, East to Left on Twin Lakes Pkwy, Right on 181st, Right on 181st Ln, Right on 1st Driveway
Financial Considerations
Covenants/Deed Restrictions: Pets - Number Limit, Pets - Dogs Allowed, Pets - Cats Allowed
Tax/Property ID: 75006550003
Tax Amount: 2860
Tax Year: 2025
HomeStead Description: Homesteaded
A broker reciprocity listing courtesy: BRIX Real Estate
The data relating to real estate for sale on this web site comes in part from the Broker Reciprocity℠ Program of the Regional Multiple Listing Service of Minnesota, Inc. Real estate listings held by brokerage firms other than Edina Realty, Inc. are marked with the Broker Reciprocity℠ logo or the Broker Reciprocity℠ thumbnail and detailed information about them includes the name of the listing brokers. Edina Realty, Inc. is not a Multiple Listing Service (MLS), nor does it offer MLS access. This website is a service of Edina Realty, Inc., a broker Participant of the Regional Multiple Listing Service of Minnesota, Inc. IDX information is provided exclusively for consumers personal, non-commercial use and may not be used for any purpose other than to identify prospective properties consumers may be interested in purchasing. Open House information is subject to change without notice. Information deemed reliable but not guaranteed.
Copyright 2026 Regional Multiple Listing Service of Minnesota, Inc. All Rights Reserved.
Sales History & Tax Summary for 10948 181st Lane NW
Sales History
| Date | Price | |
|---|---|---|
| Currently not available. | ||
Tax Summary
| Tax Year | Estimated Market Value | Total Tax |
|---|---|---|
| Currently not available. | ||
Data powered by ATTOM Data Solutions. Copyright© 2026. Information deemed reliable but not guaranteed.
Schools
Schools nearby 10948 181st Lane NW
| Schools in attendance boundaries | Grades | Distance | Rating |
|---|---|---|---|
| Loading... | |||
| Schools nearby | Grades | Distance | Rating |
|---|---|---|---|
| Loading... | |||
Data powered by ATTOM Data Solutions. Copyright© 2026. Information deemed reliable but not guaranteed.
The schools shown represent both the assigned schools and schools by distance based on local school and district attendance boundaries. Attendance boundaries change based on various factors and proximity does not guarantee enrollment eligibility. Please consult your real estate agent and/or the school district to confirm the schools this property is zoned to attend. Information is deemed reliable but not guaranteed.
SchoolDigger ® Rating
The SchoolDigger rating system is a 1-5 scale with 5 as the highest rating. SchoolDigger ranks schools based on test scores supplied by each state's Department of Education. They calculate an average standard score by normalizing and averaging each school's test scores across all tests and grades.
Coming soon properties will soon be on the market, but are not yet available for showings.