$70,000
11 Hawaiian Way Leesburg, FL 34788
For Sale MLS# G5104970
2 beds 1 baths 672 sq ft Single Family
Details for 11 Hawaiian Way
MLS# G5104970
Description for 11 Hawaiian Way, Leesburg, FL, 34788
This 2-bedroom, 1-bathroom home is perfectly sized for a new homeowner in the 55+ Molokai Co-Op community, where you own the land with no lot rent. The home features updated flooring throughout and new cabinetry in the kitchen. The inviting Florida Room is ideal for relaxing and enjoying the beautiful Florida surroundings. While you’re here, be sure to explore the community amenities, including the clubhouse, pool, and a variety of clubs you can join to make the most of life in the park.
Listing Information
Property Type: Residential, Mobile Home
Status: Active
Bedrooms: 2
Bathrooms: 1
Lot Size: 0.11 Acres
Square Feet: 672 sq ft
Year Built: 1976
Stories: 1 Story
Construction: Metal Frame,Wood Frame
Construction Display: New Construction
Subdivision: Molokai Mhp Lt 02-Ha
Foundation: Crawlspace
County: Lake
Construction Status: New Construction
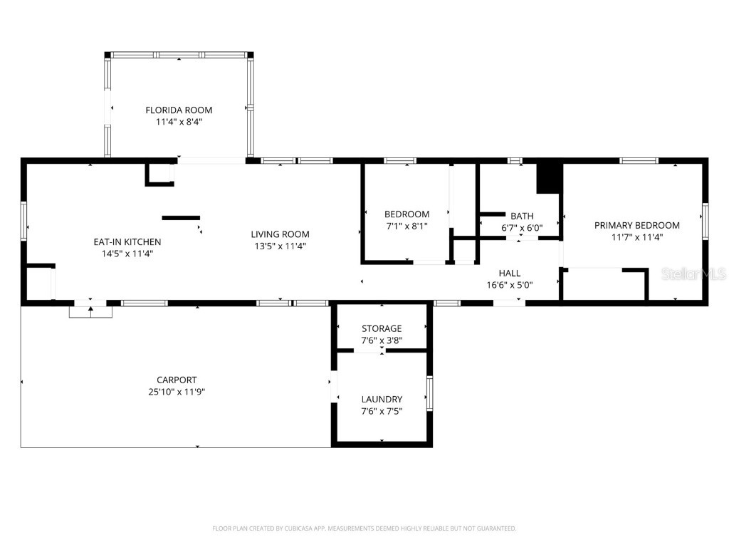
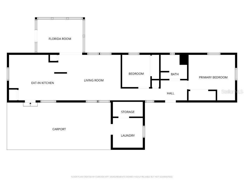
Room Information
Main Floor
Laundry: 7x7
Florida Room: 8x11
Bedroom 2: 8x7
Primary Bathroom: 6x6
Primary Bedroom: 11x11
Kitchen: 11x14
Living Room: 11x13
Bathrooms
Full Baths: 1
Additonal Room Information
Laundry: Washer Hookup, Electric Dryer Hookup, Other
Interior Features
Appliances: Refrigerator, Washer, Microwave, Dishwasher, Dryer, Cooktop, Range Hood, Electric Water Heater
Flooring: Carpet,Laminate,Tile
Basement: Crawl Space
Doors/Windows: Window Treatments, Blinds
Accessibility: Wheelchair Access
Additional Interior Features: Open Floorplan, Window Treatments, Eat-In Kitchen, Ceiling Fan(s)
Utilities
Water: Private
Sewer: Private Sewer
Other Utilities: Cable Available,Cable Connected,Electricity Available,Electricity Connected,High Speed Internet Available,Municipal Utilities,Sewer Available,Sewer Connected,Underground Utilities,Water Available,Water Connected
Cooling: Ceiling Fan(s), Central Air, Wall/Window Unit(s)
Heating: Electric, Central
Exterior / Lot Features
Parking Description: driveway, on street, Covered
Roof: Metal
Pool: Association, Community
Additional Exterior/Lot Features: Storage, Rain Gutters, Side Porch, Enclosed, Screened, Covered, Flat, Level, Buyer Approval Required, Outside City Limits
Out Buildings: Storage
Community Features
Community Features: Community Mailbox, Golf Carts OK, Recreation Area, Pool, Clubhouse, Handicap Access
Security Features: Smoke Detector(s)
Association Amenities: Storage, Pool, Cable TV, Shuffleboard Court, Clubhouse, Laundry
HOA Dues Include: Association Management, Maintenance Grounds, Reserve Fund, Pool(s), Maintenance Structure, Common Areas, Cable TV, Internet, Water, Trash, Sewer, Taxes
Homeowners Association: Yes
HOA Dues: $215 / Monthly
Driving Directions
HWY 441, Turn North on 473 (Creek Road), Turn Left onto Diamond Head Drive, Turn Right onto Hawaiian Way, Destination is on Left
Financial Considerations
Terms: Cash,Other
Tax/Property ID: 13-19-25-1800-000-011HA
Tax Amount: 1551
Tax Year: 2025
A broker reciprocity listing courtesy: BHHS FLORIDA REALTY
Based on information provided by Stellar MLS as distributed by the MLS GRID. Information from the Internet Data Exchange is provided exclusively for consumers’ personal, non-commercial use, and such information may not be used for any purpose other than to identify prospective properties consumers may be interested in purchasing. This data is deemed reliable but is not guaranteed to be accurate by Edina Realty, Inc., or by the MLS. Edina Realty, Inc., is not a multiple listing service (MLS), nor does it offer MLS access.
Copyright 2025 Stellar MLS as distributed by the MLS GRID. All Rights Reserved.
Payment Calculator
Interest rate and annual percentage rate (APR) are based on current market conditions, are for informational purposes only, are subject to change without notice and may be subject to pricing add-ons related to property type, loan amount, loan-to-value, credit score and other variables. Estimated closing costs used in the APR calculation are assumed to be paid by the borrower at closing. If the closing costs are financed, the loan, APR and payment amounts will be higher. If the down payment is less than 20%, mortgage insurance may be required and could increase the monthly payment and APR. Contact us for details. Additional loan programs may be available. Accuracy is not guaranteed, and all products may not be available in all borrower's geographical areas and are based on their individual situation. This is not a credit decision or a commitment to lend.
Sales History & Tax Summary for 11 Hawaiian Way
Sales History
| Date | Price | Change |
|---|---|---|
| Currently not available. | ||
Tax Summary
| Tax Year | Estimated Market Value | Total Tax |
|---|---|---|
| Currently not available. | ||
Data powered by ATTOM Data Solutions. Copyright© 2025. Information deemed reliable but not guaranteed.
Schools
Schools nearby 11 Hawaiian Way
| Schools in attendance boundaries | Grades | Distance | Rating |
|---|---|---|---|
| Loading... | |||
| Schools nearby | Grades | Distance | Rating |
|---|---|---|---|
| Loading... | |||
Data powered by ATTOM Data Solutions. Copyright© 2025. Information deemed reliable but not guaranteed.
The schools shown represent both the assigned schools and schools by distance based on local school and district attendance boundaries. Attendance boundaries change based on various factors and proximity does not guarantee enrollment eligibility. Please consult your real estate agent and/or the school district to confirm the schools this property is zoned to attend. Information is deemed reliable but not guaranteed.
SchoolDigger ® Rating
The SchoolDigger rating system is a 1-5 scale with 5 as the highest rating. SchoolDigger ranks schools based on test scores supplied by each state's Department of Education. They calculate an average standard score by normalizing and averaging each school's test scores across all tests and grades.
Coming soon properties will soon be on the market, but are not yet available for showings.