$420,000
11 Lateen Sail Drive Placida, FL 33946
For Sale MLS# D6144289
3 beds 2 baths 2,112 sq ft Single Family
Details for 11 Lateen Sail Drive
MLS# D6144289
Description for 11 Lateen Sail Drive, Placida, FL, 33946
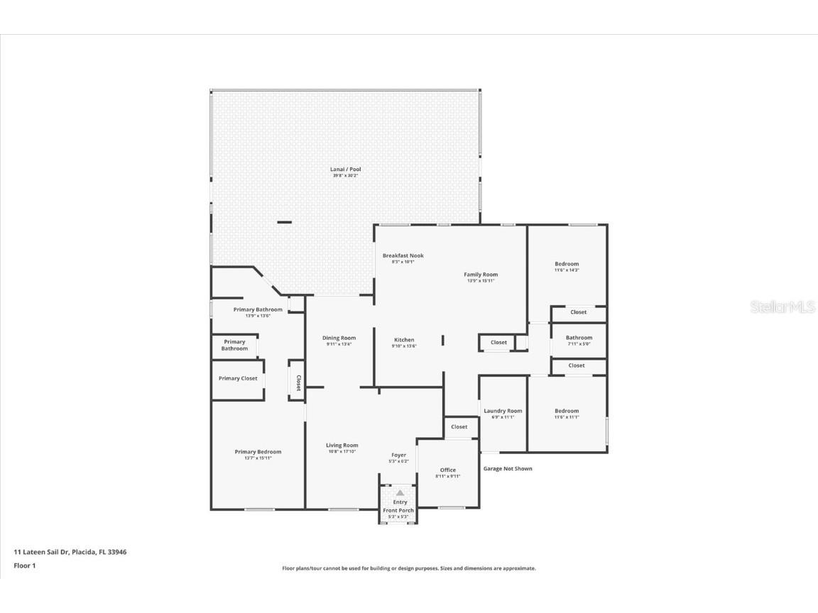
Spacious Pool Home on a Double Lot in Rotonda Sands — Featuring a 2020 Pool Addition & Optional 4th Bedroom Welcome to this beautifully maintained and versatile home offering 4 bedrooms (or 3 plus den), 2 baths, and a 2-car garage, thoughtfully designed for both comfort and functionality. The flex room includes a closet, allowing it to easily serve as a fourth bedroom, private guest suite, or home office. The desirable split floor plan provides excellent privacy, while the open living and family room areas flow seamlessly—perfect for entertaining or everyday living. Step outside to your private outdoor retreat featuring a pool and lanai added in 2020, surrounded by lush tropical landscaping. A fenced section of the yard offers a safe space for pets, and the double lot provides exceptional privacy and room to enjoy Florida’s outdoor lifestyle. Located just moments from Rotonda West and minutes from five championship golf courses, this popular community offers a peaceful setting away from the hustle and bustle—yet remains close to shopping, dining, farmers markets, and everyday conveniences. Enjoy quick access to the stunning Gulf beaches of Manasota Key and Boca Grande, Pioneer Walking Trail and sports enthusiasts will appreciate the short drive to two Major League Baseball spring training facilities. This home delivers the ideal blend of space, flexibility, and location—and is ready for immediate enjoyment. Don’t miss this rare opportunity to own your piece of paradise. Be sure to explore the 360° walkthrough tour or schedule your private showing today.
Listing Information
Property Type: Residential, Single Family Residence
Status: Active
Bedrooms: 3
Bathrooms: 2
Lot Size: 0.38 Acres
Square Feet: 2,112 sq ft
Year Built: 2006
Garage: Yes
Stories: 1 Story
Construction: Brick,Stucco
Subdivision: Rotonda Sands
Foundation: Slab
County: Charlotte
School Information
Elementary: Myakka River Elementary
Middle: L.A. Ainger Middle
High: Lemon Bay High
Room Information
Main Floor
Laundry: 8x8
Family Room: 11x16
Office: 11x11
Bathroom 3: 12x11
Bedroom 2: 11x11
Primary Bedroom: 16x15
Kitchen: 16x15
Dining Room: 13x17
Living Room: 14x17
Bathrooms
Full Baths: 2
Additonal Room Information
Laundry: Inside, Laundry Room
Interior Features
Appliances: Dishwasher, Disposal, Microwave, Range, Refrigerator
Flooring: Carpet,Laminate,Tile
Doors/Windows: Window Treatments
Additional Interior Features: Eat-In Kitchen, Ceiling Fan(s), Main Level Primary, High Ceilings, Split Bedrooms, Window Treatments
Utilities
Water: Public
Sewer: Public Sewer
Other Utilities: Electricity Connected,High Speed Internet Available,Municipal Utilities,Phone Available,Water Connected
Cooling: Ceiling Fan(s), Central Air
Heating: Central, Electric
Exterior / Lot Features
Attached Garage: Attached Garage
Garage Spaces: 2
Roof: Shingle
Pool: Heated, Gunite, Salt Water, Screen Enclosure
Lot View: Pool
Fencing: Chain Link
Additional Exterior/Lot Features: Dog Run, Storm/Security Shutters, Screened, Rear Porch, Landscaped, Oversized Lot, Near Golf Course
Out Buildings: Kennel/Dog Run
Community Features
Community Features: Lake
Security Features: Security System
HOA Dues Include: Taxes, Common Areas
Homeowners Association: Yes
HOA Dues: $100 / Annually
Driving Directions
FROM BOUNDRY BLVD TO BRIG ST MILE, RIGHT ON BRIG CIRCLE W, LEFT ON LATEEN SAIL DR. HOME IS ON RIGHT SIDE EXTRA LOT IS TO RIGHT OF HOME
Financial Considerations
Terms: Cash,Conventional,FHA,Trade,VA Loan
Tax/Property ID: 412130380006
Tax Amount: 4933
Tax Year: 2024
A broker reciprocity listing courtesy: MICHAEL SAUNDERS & COMPANY
Based on information provided by Stellar MLS as distributed by the MLS GRID. Information from the Internet Data Exchange is provided exclusively for consumers’ personal, non-commercial use, and such information may not be used for any purpose other than to identify prospective properties consumers may be interested in purchasing. This data is deemed reliable but is not guaranteed to be accurate by Edina Realty, Inc., or by the MLS. Edina Realty, Inc., is not a multiple listing service (MLS), nor does it offer MLS access.
Copyright 2025 Stellar MLS as distributed by the MLS GRID. All Rights Reserved.
Payment Calculator
Interest rate and annual percentage rate (APR) are based on current market conditions, are for informational purposes only, are subject to change without notice and may be subject to pricing add-ons related to property type, loan amount, loan-to-value, credit score and other variables. Estimated closing costs used in the APR calculation are assumed to be paid by the borrower at closing. If the closing costs are financed, the loan, APR and payment amounts will be higher. If the down payment is less than 20%, mortgage insurance may be required and could increase the monthly payment and APR. Contact us for details. Additional loan programs may be available. Accuracy is not guaranteed, and all products may not be available in all borrower's geographical areas and are based on their individual situation. This is not a credit decision or a commitment to lend.
Sales History & Tax Summary for 11 Lateen Sail Drive
Sales History
| Date | Price | Change |
|---|---|---|
| Currently not available. | ||
Tax Summary
| Tax Year | Estimated Market Value | Total Tax |
|---|---|---|
| Currently not available. | ||
Data powered by ATTOM Data Solutions. Copyright© 2025. Information deemed reliable but not guaranteed.
Schools
Schools nearby 11 Lateen Sail Drive
| Schools in attendance boundaries | Grades | Distance | Rating |
|---|---|---|---|
| Loading... | |||
| Schools nearby | Grades | Distance | Rating |
|---|---|---|---|
| Loading... | |||
Data powered by ATTOM Data Solutions. Copyright© 2025. Information deemed reliable but not guaranteed.
The schools shown represent both the assigned schools and schools by distance based on local school and district attendance boundaries. Attendance boundaries change based on various factors and proximity does not guarantee enrollment eligibility. Please consult your real estate agent and/or the school district to confirm the schools this property is zoned to attend. Information is deemed reliable but not guaranteed.
SchoolDigger ® Rating
The SchoolDigger rating system is a 1-5 scale with 5 as the highest rating. SchoolDigger ranks schools based on test scores supplied by each state's Department of Education. They calculate an average standard score by normalizing and averaging each school's test scores across all tests and grades.
Coming soon properties will soon be on the market, but are not yet available for showings.