1101 Elmwood Street #1101 Orlando, FL 32801
For Sale MLS# O6352918
3 beds 3 baths 1,646 sq ft Townhouse/Twinhome
Details for 1101 Elmwood Street #1101
MLS# O6352918
Description for 1101 Elmwood Street #1101, Orlando, FL, 32801
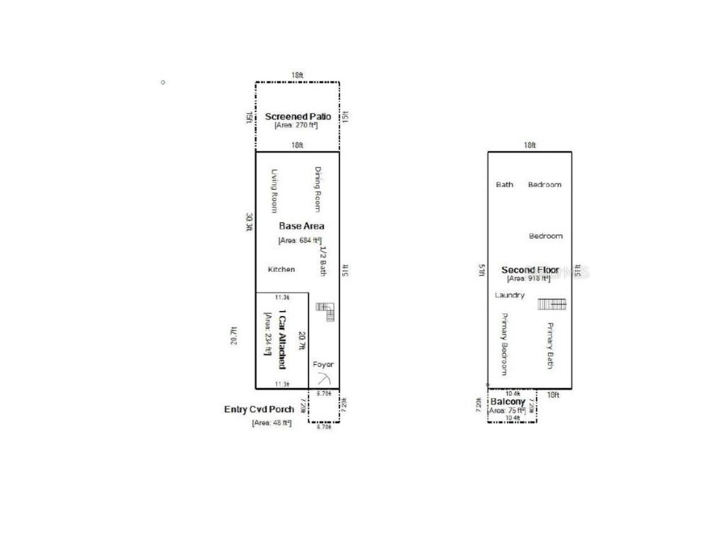
Motivated seller - price reduction! Any reasonable offer considered! Charming Mediterranean 3 bedroom / 2 bathroom downtown Orlando townhome in the highly desirable Lake Davis-Greenwood Historic District now available! Built in 2005 and since updated, this modern two-story 1646 sq ft (PLUS garage, 2nd floor south-facing balcony, and extended and screened back patio with spa) home features wood floors in most spaces and tile floors in the bathrooms and laundry (Berber carpet on stairs only) with high ceilings, crown molding, and abundant natural light. *** Be sure to check out the video tour and 3D layout of the home for this listing! (If where you are viewing this property online does not show the video tour or the 3D floor plan, contact your Realtor for those today!) *** The 1st floor open-concept living area opens to the screened patio and well-manicured back yard, creating a wonderful combined space for entertaining. The open kitchen has stainless steel appliances, granite countertops, tall wood cabinets, and a breakfast bar seating four (high bar stools included). A half bathroom is located downstairs. The bedrooms and two full bathrooms are located upstairs, along with the laundry room (full size washer and dryer included). The primary suite features a walk-in closet and French doors leading to a balcony spacious enough for owners to enjoy morning coffee or evening glass of wine. The primary bathroom has a large vanity and a shower separate from the garden tub. The 2nd and 3rd bedrooms have spacious closets and the 2nd full bathroom are separated from the primary suite, providing a split bedroom floorplan feel that helps make this townhome distinct. *** The outdoor space is a must-see, showcasing a 250+ sq ft screened patio (spa included!) and another 250+ sq ft paver extension into the fully fenced back yard with a gorgeous new urn fountain and tiled reservoir. The landscape was redesigned to be relatively low-maintenance, and lighting was added. Irrigation system has its own control box specifically for this property. *** The major items for a homeowner are fairly new: Roof (2021), Ruud HVAC (2023), Rheem water heater (2023), PEX plumbing and interior and exterior painted (2019), downstairs windows, front door, stairwell window (2024), middle bedroom window prior to that - one year warranty on newer windows upon transfer by new owner. *** Convenient to I-4 and FL-408 E. Walkable/bikeable to Lake Eola Park, Downtown Entertainment Area, Dr Phillips Center for the Performing Arts, and the Downtown Connector Trail / Corridor Art Trail.
Listing Information
Property Type: Residential, Townhouse
Status: Active
Bedrooms: 3
Bathrooms: 3
Lot Size: 0.02 Acres
Square Feet: 1,646 sq ft
Year Built: 2005
Garage: Yes
Stories: 2 Story
Construction: Block,Stucco
Property Attached: Yes
Construction Display: New Construction
Subdivision: Acropolis/Orlando Condo
Foundation: Slab
County: Orange
Construction Status: New Construction
School Information
Elementary: Blankner Elem
Middle: Blankner School (K-8)
High: Boone High
Room Information
Main Floor
Kitchen: 10.5x9.5
Dining Room:
Living Room:
Porch:
Foyer: 9x6.25
Bathroom 3: 3x7.25
Upper Floor
Porch:
Bathroom 2: 8x6
Bedroom 3: 11x11.25
Bedroom 2: 11x10.5
Primary Bathroom: 6.25x12.5
Primary Bedroom: 14.5x11
Bathrooms
Full Baths: 2
1/2 Baths: 1
Additonal Room Information
Laundry: Inside, Washer Hookup, Laundry Room, Upper Level, Electric Dryer Hookup
Interior Features
Appliances: Exhaust Fan, Electric Water Heater, Washer, Range, Refrigerator, Microwave, Dishwasher, Disposal, Dryer
Flooring: Engineered Hardwood,Tile
Doors/Windows: Rods, Blinds, Window Treatments, Drapes
Additional Interior Features: Split Bedrooms, Eat-In Kitchen, Ceiling Fan(s), Walk-In Closet(s), Window Treatments, Built-in Features, High Ceilings, Living/Dining Room, Upper Level Primary, Crown Molding, Solid Surface Counters, Stone Counters, Open Floorplan, Wood Cabinets
Utilities
Water: Public
Sewer: Public Sewer
Other Utilities: Cable Connected,Electricity Connected,High Speed Internet Available,Municipal Utilities,Sewer Connected,Water Connected
Cooling: Ceiling Fan(s), Central Air
Heating: Central, Electric
Exterior / Lot Features
Attached Garage: Attached Garage
Garage Spaces: 1
Parking Description: Garage Door Opener, driveway, Off Street, Garage, on street
Roof: Other, Shingle
Fencing: fenced, Vinyl, Wood
Additional Exterior/Lot Features: Rain Gutters, French Patio Doors, Sprinkler/Irrigation, Balcony, Lighting, Balcony, Patio, Screened, Front Porch, Rear Porch, Level, Flat, Landscaped, City Lot
Community Features
Community Features: Sidewalks, Street Lights
Security Features: Security System, Fire Alarm, Smoke Detector(s), Security Lights
HOA Dues Include: Other
Homeowners Association: Yes
HOA Dues: $600 / Quarterly
Driving Directions
From the intersection of I-4 and FL-408, take FL-408 E for approximately .7 miles. Exit 11B towards Mills Ave. In approximately .2 miles, turn right (south) onto S Mills Ave. Take the first right (west). Property is on the right.
Financial Considerations
Terms: Cash,Conventional,FHA,VA Loan
Tax/Property ID: 36-22-29-0011-01-101
Tax Amount: 5796.24
Tax Year: 2024
A broker reciprocity listing courtesy: HEIRLOOM REALTY INTERNATIONAL
Based on information provided by Stellar MLS as distributed by the MLS GRID. Information from the Internet Data Exchange is provided exclusively for consumers’ personal, non-commercial use, and such information may not be used for any purpose other than to identify prospective properties consumers may be interested in purchasing. This data is deemed reliable but is not guaranteed to be accurate by Edina Realty, Inc., or by the MLS. Edina Realty, Inc., is not a multiple listing service (MLS), nor does it offer MLS access.
Copyright 2025 Stellar MLS as distributed by the MLS GRID. All Rights Reserved.
Payment Calculator
Interest rate and annual percentage rate (APR) are based on current market conditions, are for informational purposes only, are subject to change without notice and may be subject to pricing add-ons related to property type, loan amount, loan-to-value, credit score and other variables. Estimated closing costs used in the APR calculation are assumed to be paid by the borrower at closing. If the closing costs are financed, the loan, APR and payment amounts will be higher. If the down payment is less than 20%, mortgage insurance may be required and could increase the monthly payment and APR. Contact us for details. Additional loan programs may be available. Accuracy is not guaranteed, and all products may not be available in all borrower's geographical areas and are based on their individual situation. This is not a credit decision or a commitment to lend.
Sales History & Tax Summary for 1101 Elmwood Street #1101
Sales History
| Date | Price | Change |
|---|---|---|
| Currently not available. | ||
Tax Summary
| Tax Year | Estimated Market Value | Total Tax |
|---|---|---|
| Currently not available. | ||
Data powered by ATTOM Data Solutions. Copyright© 2025. Information deemed reliable but not guaranteed.
Schools
Schools nearby 1101 Elmwood Street #1101
| Schools in attendance boundaries | Grades | Distance | Rating |
|---|---|---|---|
| Loading... | |||
| Schools nearby | Grades | Distance | Rating |
|---|---|---|---|
| Loading... | |||
Data powered by ATTOM Data Solutions. Copyright© 2025. Information deemed reliable but not guaranteed.
The schools shown represent both the assigned schools and schools by distance based on local school and district attendance boundaries. Attendance boundaries change based on various factors and proximity does not guarantee enrollment eligibility. Please consult your real estate agent and/or the school district to confirm the schools this property is zoned to attend. Information is deemed reliable but not guaranteed.
SchoolDigger ® Rating
The SchoolDigger rating system is a 1-5 scale with 5 as the highest rating. SchoolDigger ranks schools based on test scores supplied by each state's Department of Education. They calculate an average standard score by normalizing and averaging each school's test scores across all tests and grades.
Coming soon properties will soon be on the market, but are not yet available for showings.