11015 Martha Avenue Port Richey, FL 34668
For Sale MLS# TB8440262
2 beds 1 baths 768 sq ft Single Family
Details for 11015 Martha Avenue
MLS# TB8440262
Description for 11015 Martha Avenue, Port Richey, FL, 34668
Welcome to your charming Florida retreat! This delightful 2-bedroom, 1-bath home offers approximately 768 sq. ft. of cozy living space on a 6,000 sq. ft. lot in the heart of Port Richey. Featuring a spacious living room with an inviting open layout, two comfortable bedrooms, a well-sized kitchen ready for your personal touch, and a one-car attached garage with additional off-street parking, this home is designed for comfort and convenience. The generous fenced backyard is perfect for pets, play, or future expansion, while the solid 1968 construction offers timeless Florida charm. Located in the desirable Brown Acres neighborhood, you'll enjoy quick access to US-19, shopping, dining, and beautiful coastal recreation. Whether you're a first-time buyer, investor, or looking for a low-maintenance lifestyle, this property offers a rare opportunity to own an affordable, versatile home with plenty of potential.
Listing Information
Property Type: Residential, Single Family Residence
Status: Active
Bedrooms: 2
Bathrooms: 1
Lot Size: 0.14 Acres
Square Feet: 768 sq ft
Year Built: 1968
Garage: Yes
Stories: 1 Story
Construction: Block,Stucco
Subdivision: Brown Acres
Foundation: Slab
County: Pasco
School Information
Elementary: Gulf Highland Elementary
Middle: Bayonet Point Middle-Po
High: Fivay High-Po
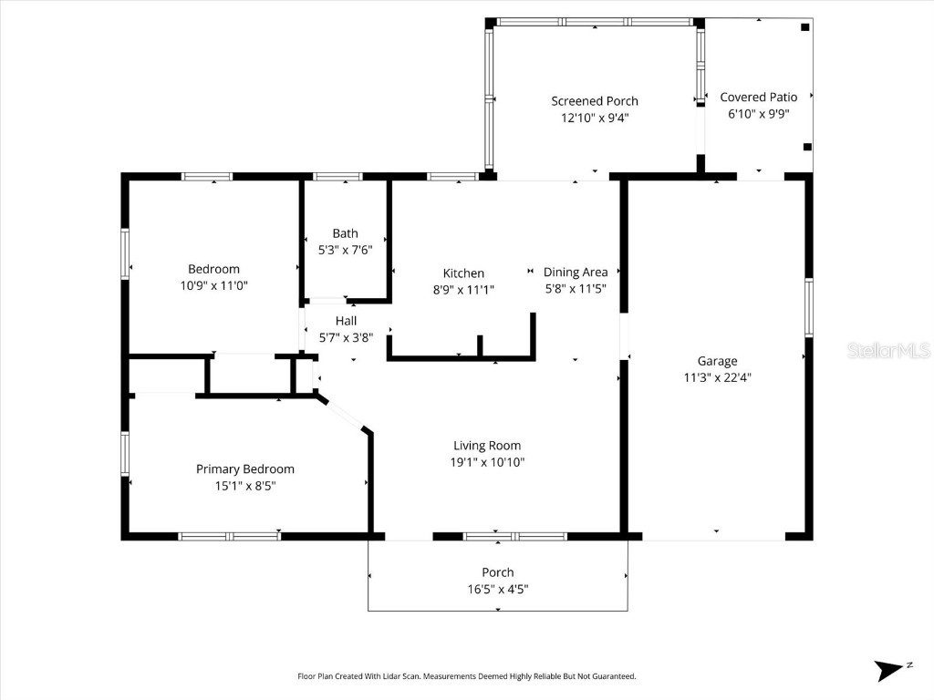
Room Information
Main Floor
Bathroom 1: 10x10
Living Room: 10x19
Primary Bedroom: 8x15
Kitchen: 11x8
Bathrooms
Full Baths: 1
Additonal Room Information
Laundry: In Garage
Interior Features
Appliances: Range Hood, Range
Flooring: Ceramic Tile
Additional Interior Features: Ceiling Fan(s)
Utilities
Water: Public
Sewer: Public Sewer
Other Utilities: High Speed Internet Available
Cooling: Ceiling Fan(s), Central Air
Heating: Central
Exterior / Lot Features
Attached Garage: Attached Garage
Garage Spaces: 1
Parking Description: Garage, Garage Door Opener
Roof: Shingle
Fencing: fenced
Additional Exterior/Lot Features: Awning(s)
Community Features
Community Features: Sidewalks
Driving Directions
Head west on Ridge Rd, turn right (north) onto US-19, then turn right onto Ranch Rd and left onto Martha Ave—the property will be on your left.
Financial Considerations
Terms: Cash,Conventional,FHA,Other,VA Loan
Tax/Property ID: 16-25-10-008.0-000.00-045.0
Tax Amount: 1967.28
Tax Year: 2024
A broker reciprocity listing courtesy: IMPACT REALTY TAMPA BAY
Based on information provided by Stellar MLS as distributed by the MLS GRID. Information from the Internet Data Exchange is provided exclusively for consumers’ personal, non-commercial use, and such information may not be used for any purpose other than to identify prospective properties consumers may be interested in purchasing. This data is deemed reliable but is not guaranteed to be accurate by Edina Realty, Inc., or by the MLS. Edina Realty, Inc., is not a multiple listing service (MLS), nor does it offer MLS access.
Copyright 2025 Stellar MLS as distributed by the MLS GRID. All Rights Reserved.
Payment Calculator
Interest rate and annual percentage rate (APR) are based on current market conditions, are for informational purposes only, are subject to change without notice and may be subject to pricing add-ons related to property type, loan amount, loan-to-value, credit score and other variables. Estimated closing costs used in the APR calculation are assumed to be paid by the borrower at closing. If the closing costs are financed, the loan, APR and payment amounts will be higher. If the down payment is less than 20%, mortgage insurance may be required and could increase the monthly payment and APR. Contact us for details. Additional loan programs may be available. Accuracy is not guaranteed, and all products may not be available in all borrower's geographical areas and are based on their individual situation. This is not a credit decision or a commitment to lend.
Sales History & Tax Summary for 11015 Martha Avenue
Sales History
| Date | Price | Change |
|---|---|---|
| Currently not available. | ||
Tax Summary
| Tax Year | Estimated Market Value | Total Tax |
|---|---|---|
| Currently not available. | ||
Data powered by ATTOM Data Solutions. Copyright© 2025. Information deemed reliable but not guaranteed.
Schools
Schools nearby 11015 Martha Avenue
| Schools in attendance boundaries | Grades | Distance | Rating |
|---|---|---|---|
| Loading... | |||
| Schools nearby | Grades | Distance | Rating |
|---|---|---|---|
| Loading... | |||
Data powered by ATTOM Data Solutions. Copyright© 2025. Information deemed reliable but not guaranteed.
The schools shown represent both the assigned schools and schools by distance based on local school and district attendance boundaries. Attendance boundaries change based on various factors and proximity does not guarantee enrollment eligibility. Please consult your real estate agent and/or the school district to confirm the schools this property is zoned to attend. Information is deemed reliable but not guaranteed.
SchoolDigger ® Rating
The SchoolDigger rating system is a 1-5 scale with 5 as the highest rating. SchoolDigger ranks schools based on test scores supplied by each state's Department of Education. They calculate an average standard score by normalizing and averaging each school's test scores across all tests and grades.
Coming soon properties will soon be on the market, but are not yet available for showings.