1104 24th Avenue NE Minneapolis, MN 55418
Pending MLS# 6745696
3 beds 2 baths 1,642 sq ft Single Family
Details for 1104 24th Avenue NE
MLS# 6745696
Description for 1104 24th Avenue NE, Minneapolis, MN, 55418
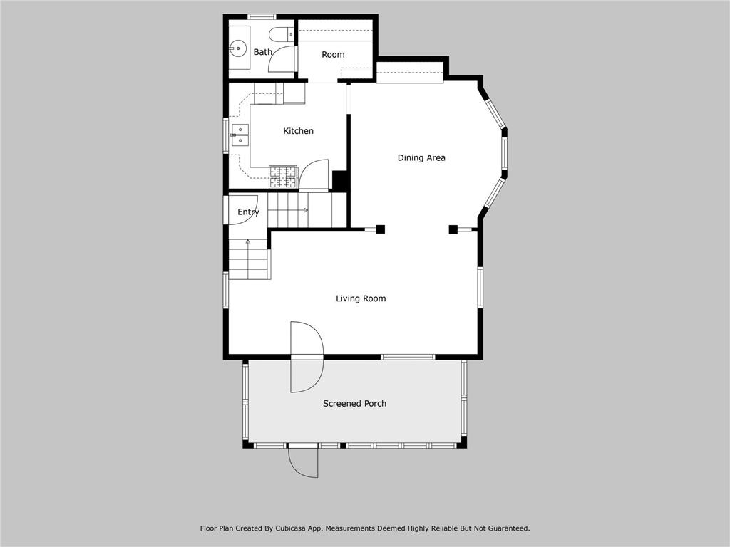
Fantastic home in fantastic area! This 3BR, 2BA home has all its original charm. Original woodwork and hardwood floors under carpet. Fresh paint and new carpet throughout. When you approach the front of the home you are greeted by a wonderful enclosed porch, great for morning coffee or relaxing in the evening. You enter the home into a spacious LR with all the original woodwork and beautiful stained-glass windows. As you pass through the LR into the formal DR, notice the large bay window beautiful built-in buffet and original woodwork. The DR will lead you to the updated kitchen and butler's pantry offering tons of storage space. Also on the main level is an 1/2 bath, also updated. The second level offers 3BR and an updated full BA. Walk in closets offer plenty of storage space. The 3rd BR does have washer/Dryer hookups should you want to have the laundry there rather than the bsment or maybe you want both. You may want to keep your eyes open for the secret room in the BA. The back yard is fenced and offers access to an attached shed for additional storage. Off street parking with a newer 2 car (21x21) heated and insulated garage with additional parking next to the garage. No odd/even days here. Updated electrical w/200 amp service and most windows have been replaced. All of this and still close to downtown, shopping and bus service. You will not want to miss this one!
Listing Information
Property Type: Residential, Single Family
Status: Pending
Bedrooms: 3
Bathrooms: 2
Lot Size: 0.07 Acres
Square Feet: 1,642 sq ft
Year Built: 1913
Foundation: 666 sq ft
Garage: Yes
Stories: 2 Stories
Subdivision: East Side Add
County: Hennepin
Days On Market: 145
Construction Status: Previously Owned
School Information
District: Minneapolis
Room Information
Main Floor
Dining Room: 13X12
Kitchen: 10X9.5
Pantry (Walk-In): 7X5.5
Three Season Porch: 21X8
Upper Floor
Bedroom 1: 15X11.5
Bedroom 2: 12X11.5
Bedroom 3: 11X9.5
Bathrooms
Full Baths: 1
1/2 Baths: 1
Additonal Room Information
Dining: Separate/Formal Dining Room
Laundry: In Basement
Bath Description: Main Floor 1/2 Bath,Upper Level Full Bath
Interior Features
Square Footage above: 1,642 sq ft
Appliances: Dishwasher, Dryer, Washer, Range, Refrigerator
Basement: Concrete Block, Full
Additional Interior Features: 2nd Floor Laundry, Washer/Dryer Hookup, Walk-In Closet, Natural Woodwork, Ceiling Fan(s), Kitchen Window, Hardwood Floors
Utilities
Water: City Water/Connected
Sewer: City Sewer/Connected
Cooling: Window
Heating: Boiler, Natural Gas
Exterior / Lot Features
Garage Spaces: 2
Parking Description: Electric, Driveway - Concrete, Garage Door Opener, Heated Garage, Insulated Garage, Detached Garage, Garage Dimensions - 21x21, Garage Sq Ft - 441.0
Exterior: Stucco
Roof: Age Over 8 Years, Architectural Shingle
Lot Dimensions: 40x81
Zoning: Residential-Single Family
Fencing: Vinyl, Chain Link
Additional Exterior/Lot Features: Patio, Porch, Public Transit (w/in 6 blks), Road Frontage - City
Driving Directions
CENTRAL AVE NE TO 24TH AVE, EAST TO HOME
Financial Considerations
Tax/Property ID: 1202924320041
Tax Amount: 4440
Tax Year: 2025
HomeStead Description: Homesteaded
A broker reciprocity listing courtesy: EPIC Realty, Inc
The data relating to real estate for sale on this web site comes in part from the Broker Reciprocity℠ Program of the Regional Multiple Listing Service of Minnesota, Inc. Real estate listings held by brokerage firms other than Edina Realty, Inc. are marked with the Broker Reciprocity℠ logo or the Broker Reciprocity℠ thumbnail and detailed information about them includes the name of the listing brokers. Edina Realty, Inc. is not a Multiple Listing Service (MLS), nor does it offer MLS access. This website is a service of Edina Realty, Inc., a broker Participant of the Regional Multiple Listing Service of Minnesota, Inc. IDX information is provided exclusively for consumers personal, non-commercial use and may not be used for any purpose other than to identify prospective properties consumers may be interested in purchasing. Open House information is subject to change without notice. Information deemed reliable but not guaranteed.
Copyright 2025 Regional Multiple Listing Service of Minnesota, Inc. All Rights Reserved.
Sales History & Tax Summary for 1104 24th Avenue NE
Sales History
| Date | Price | Change |
|---|---|---|
| Currently not available. | ||
Tax Summary
| Tax Year | Estimated Market Value | Total Tax |
|---|---|---|
| Currently not available. | ||
Data powered by ATTOM Data Solutions. Copyright© 2025. Information deemed reliable but not guaranteed.
Schools
Schools nearby 1104 24th Avenue NE
| Schools in attendance boundaries | Grades | Distance | Rating |
|---|---|---|---|
| Loading... | |||
| Schools nearby | Grades | Distance | Rating |
|---|---|---|---|
| Loading... | |||
Data powered by ATTOM Data Solutions. Copyright© 2025. Information deemed reliable but not guaranteed.
The schools shown represent both the assigned schools and schools by distance based on local school and district attendance boundaries. Attendance boundaries change based on various factors and proximity does not guarantee enrollment eligibility. Please consult your real estate agent and/or the school district to confirm the schools this property is zoned to attend. Information is deemed reliable but not guaranteed.
SchoolDigger ® Rating
The SchoolDigger rating system is a 1-5 scale with 5 as the highest rating. SchoolDigger ranks schools based on test scores supplied by each state's Department of Education. They calculate an average standard score by normalizing and averaging each school's test scores across all tests and grades.
Coming soon properties will soon be on the market, but are not yet available for showings.