111 17th Street Belleair Beach, FL 33786
For Sale MLS# TB8442655
3 beds 2 baths 1,955 sq ft Single Family
Details for 111 17th Street
MLS# TB8442655
Description for 111 17th Street, Belleair Beach, FL, 33786
Welcome to an exceptional coastal retreat in the heart of Belleair Beach. This timeless 3-bedroom, 2-bath pool home artfully, blends classic Florida architecture with elegant modern touches, offering the perfect balance of comfort, sophistication, and seaside living. Situated just moments from the Intracoastal Waterway and the Gulf’s pristine white-sand beaches, the residence is surrounded by lush tropical landscaping that enhances its serene curb appeal. Inside, a bright open floor plan showcases tile flooring, a spacious family room anchored by a cozy electric fireplace, and abundant natural light throughout. The kitchen is both functional and inviting, featuring generous counter space, a breakfast bar for casual dining, and updated stainless appliances including a dishwasher, disposal, range, refrigerator. The seamless flow between indoor and outdoor living makes this home ideal for entertaining or relaxing in complete privacy. The primary suite offers a peaceful sanctuary with built-in storage, and a spa-inspired bath highlighted by dual shower heads, a soaking tub. Two additional bedrooms provide versatility for guests, family, or office use. Step through elegant French doors to your private backyard oasis, where a heated pool is surrounded by mature landscaping, creating a resort-like atmosphere perfect for year-round enjoyment. Additional features include an oversized one-car garage with guest parking, irrigation system, rain gutters, and PVC fenced yard. This property sits on a 75x110 lot within the sought-after Belleair Beach community and includes public water and sewer service, cable and electric connections, and no HOA fees. Its desirable location offers convenient access to local parks, marinas, shopping, dining, and world-class beaches while maintaining the quiet charm and exclusivity Belleair Beach has to offer. Refined yet inviting, this residence captures the essence of coastal Florida living—where timeless design, modern comfort, and natural beauty converge just steps from the water.
Listing Information
Property Type: Residential, Single Family Residence
Status: Active
Bedrooms: 3
Bathrooms: 2
Lot Size: 0.19 Acres
Square Feet: 1,955 sq ft
Year Built: 1966
Garage: Yes
Stories: 1 Story
Construction: Block,Stucco
Property Attached: Yes
Construction Display: New Construction
Subdivision: Belleair Beach
Foundation: Slab
County: Pinellas
Construction Status: New Construction
School Information
Elementary: Mildred Helms Elementary-Pn
Middle: Largo Middle-Pn
High: Largo High-Pn
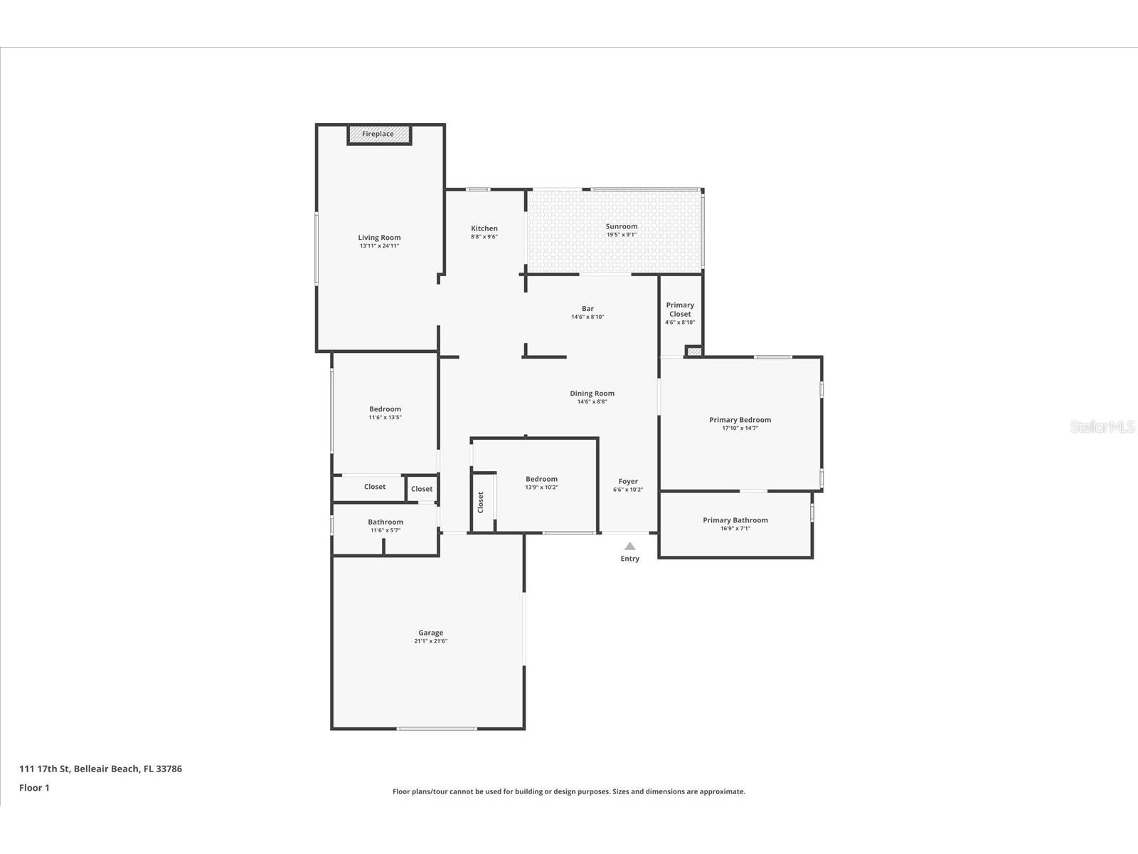
Room Information
Main Floor
Florida Room: 9x19
Bedroom 3: 10x13
Bedroom 2: 11x13
Primary Bedroom: 14x17
Kitchen: 8x9
Dining Room: 8x14
Living Room: 12x12
Bathrooms
Full Baths: 2
Additonal Room Information
Laundry: Washer Hookup, Electric Dryer Hookup, In Garage
Interior Features
Appliances: Electric Water Heater, Washer, Water Softener, Range, Refrigerator, Dishwasher, Disposal, Dryer
Flooring: Ceramic Tile,Tile,Vinyl
Doors/Windows: Window Treatments, Insulated Windows, Double Pane Windows
Fireplaces: Living Room, Electric, Insert
Accessibility: Accessibility Features
Additional Interior Features: Split Bedrooms, Eat-In Kitchen, Ceiling Fan(s), Walk-In Closet(s), Window Treatments, Attic, Built-in Features, Living/Dining Room, Open Floorplan, Solid Surface Counters, Wood Cabinets, Main Level Primary, Dry Bar
Utilities
Water: Public
Sewer: Public Sewer
Other Utilities: Cable Connected,Electricity Connected,Phone Available,Sewer Connected,Water Connected
Cooling: Ceiling Fan(s), Central Air
Heating: Electric, Central
Exterior / Lot Features
Attached Garage: Attached Garage
Garage Spaces: 1
Parking Description: Garage, Garage Door Opener, Golf Cart Garage, Guest, driveway, Deeded
Roof: Tile
Pool: Tile, Heated, In Ground, Gunite
Lot View: Pool
Lot Dimensions: 75.0X110.0
Fencing: Vinyl, fenced
Additional Exterior/Lot Features: Sprinkler/Irrigation, French Patio Doors, Rain Gutters, Lighting, Covered, Patio, Porch, Front Porch, Enclosed, Flat, Level, Landscaped, Cul-de-Sac, Cleared, Near Public Transit, City Lot, Dead End, Flood Zone, Near Golf Course
Waterfront Details
Water Front Features: Gulf Access
Community Features
Community Features: Fishing, Fitness, Street Lights, Playground, Dock
Security Features: Closed Circuit Camera(s), Security Lights, Fire Hydrant(s)
Association Amenities: Fitness Center, Playground
Driving Directions
West Bay over the bridge to Gulf Blvd right to 17th right to address
Financial Considerations
Terms: Cash,Conventional,VA Loan
Tax/Property ID: 31-29-15-06534-018-0060
Tax Amount: 7569
Tax Year: 2024
A broker reciprocity listing courtesy: EXP REALTY LLC
Based on information provided by Stellar MLS as distributed by the MLS GRID. Information from the Internet Data Exchange is provided exclusively for consumers’ personal, non-commercial use, and such information may not be used for any purpose other than to identify prospective properties consumers may be interested in purchasing. This data is deemed reliable but is not guaranteed to be accurate by Edina Realty, Inc., or by the MLS. Edina Realty, Inc., is not a multiple listing service (MLS), nor does it offer MLS access.
Copyright 2026 Stellar MLS as distributed by the MLS GRID. All Rights Reserved.
Payment Calculator
Interest rate and annual percentage rate (APR) are based on current market conditions, are for informational purposes only, are subject to change without notice and may be subject to pricing add-ons related to property type, loan amount, loan-to-value, credit score and other variables. Estimated closing costs used in the APR calculation are assumed to be paid by the borrower at closing. If the closing costs are financed, the loan, APR and payment amounts will be higher. If the down payment is less than 20%, mortgage insurance may be required and could increase the monthly payment and APR. Contact us for details. Additional loan programs may be available. Accuracy is not guaranteed, and all products may not be available in all borrower's geographical areas and are based on their individual situation. This is not a credit decision or a commitment to lend.
Sales History & Tax Summary for 111 17th Street
Sales History
| Date | Price | Change |
|---|---|---|
| Currently not available. | ||
Tax Summary
| Tax Year | Estimated Market Value | Total Tax |
|---|---|---|
| Currently not available. | ||
Data powered by ATTOM Data Solutions. Copyright© 2026. Information deemed reliable but not guaranteed.
Schools
Schools nearby 111 17th Street
| Schools in attendance boundaries | Grades | Distance | Rating |
|---|---|---|---|
| Loading... | |||
| Schools nearby | Grades | Distance | Rating |
|---|---|---|---|
| Loading... | |||
Data powered by ATTOM Data Solutions. Copyright© 2026. Information deemed reliable but not guaranteed.
The schools shown represent both the assigned schools and schools by distance based on local school and district attendance boundaries. Attendance boundaries change based on various factors and proximity does not guarantee enrollment eligibility. Please consult your real estate agent and/or the school district to confirm the schools this property is zoned to attend. Information is deemed reliable but not guaranteed.
SchoolDigger ® Rating
The SchoolDigger rating system is a 1-5 scale with 5 as the highest rating. SchoolDigger ranks schools based on test scores supplied by each state's Department of Education. They calculate an average standard score by normalizing and averaging each school's test scores across all tests and grades.
Coming soon properties will soon be on the market, but are not yet available for showings.