$79,900
111 Newton Street Mankato, MN 56001
For Sale MLS# 6814067
3 beds 2 baths 1,280 sq ft Single Family
Details for 111 Newton Street
MLS# 6814067
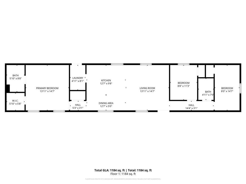
Description for 111 Newton Street, Mankato, MN, 56001
This well-maintained 3-bedroom, 2-full-bath single-wide home is located in University Park Mobil Home Community. The layout features a split-bedroom design for added privacy, with an open-concept living area that connects the kitchen and dining space. Ideal for everyday living and entertaining. Interior highlights include updated flooring, ample cabinet storage, and a dedicated laundry area. The primary suite offers a full private bath. The home has two additional bedrooms plus a second full bath. Outside, the property includes a yard and off-street parking. University Park offers a convenient location with access to nearby amenities, shopping, schools, and major roadways. This home is move-in ready. Schedule your showing today.
Listing Information
Property Type: Residential, Single Family
Status: Active
Bedrooms: 3
Bathrooms: 2
Square Feet: 1,280 sq ft
Year Built: 2012
Foundation: 1,280 sq ft
Stories: 1 Story
County: Blue Earth
Days On Market: 131
Construction Status: Previously Owned
School Information
District: 77 - Mankato
Room Information
Main Floor
Bedroom 1:
Bedroom 2:
Bedroom 3:
Kitchen:
Laundry:
Living Room:
Bathrooms
Full Baths: 2
Additonal Room Information
Family: Main Level
Dining: Breakfast Bar
Laundry: Washer Hookup, Electric Dryer Hookup, Main Level
Bath Description: Full Primary,Main Floor Full Bath
Interior Features
Square Footage above: 1,280 sq ft
Appliances: Washer, Gas Water Heater, Dryer, Microwave, Range, Refrigerator
Additional Interior Features: Ceiling Fan(s), Hardwood Floors, Kitchen Window, Washer/Dryer Hookup, Walk-In Closet
Utilities
Water: City Water/Connected
Sewer: City Sewer/Connected
Cooling: Central
Heating: Natural Gas, Forced Air
Exterior / Lot Features
Open Parking: 2
Parking Description: Driveway - Asphalt
Exterior: Vinyl
Roof: Age Over 8 Years
Zoning: Residential-Single Family
Additional Exterior/Lot Features: Deck
Out Buildings: Shed - Storage
Driving Directions
From the center of Mankato-near the intersection of Riverfront Drive and East Main Street-head south on Riverfront Drive. Turn left onto W Cherry St. and continue about 1 mile. Turn right on Monks Ave, left on Stadium, right on Heron.
Financial Considerations
Tax/Property ID: M010700560200
Tax Amount: 232
Tax Year: 2025
HomeStead Description: Homesteaded
A broker reciprocity listing courtesy: True Real Estate
The data relating to real estate for sale on this web site comes in part from the Broker Reciprocity℠ Program of the Regional Multiple Listing Service of Minnesota, Inc. Real estate listings held by brokerage firms other than Edina Realty, Inc. are marked with the Broker Reciprocity℠ logo or the Broker Reciprocity℠ thumbnail and detailed information about them includes the name of the listing brokers. Edina Realty, Inc. is not a Multiple Listing Service (MLS), nor does it offer MLS access. This website is a service of Edina Realty, Inc., a broker Participant of the Regional Multiple Listing Service of Minnesota, Inc. IDX information is provided exclusively for consumers personal, non-commercial use and may not be used for any purpose other than to identify prospective properties consumers may be interested in purchasing. Open House information is subject to change without notice. Information deemed reliable but not guaranteed.
Copyright 2026 Regional Multiple Listing Service of Minnesota, Inc. All Rights Reserved.
Payment Calculator
Interest rate and annual percentage rate (APR) are based on current market conditions, are for informational purposes only, are subject to change without notice and may be subject to pricing add-ons related to property type, loan amount, loan-to-value, credit score and other variables. Estimated closing costs used in the APR calculation are assumed to be paid by the borrower at closing. If the closing costs are financed, the loan, APR and payment amounts will be higher. If the down payment is less than 20%, mortgage insurance may be required and could increase the monthly payment and APR. Contact us for details. Additional loan programs may be available. Accuracy is not guaranteed, and all products may not be available in all borrower's geographical areas and are based on their individual situation. This is not a credit decision or a commitment to lend.
Sales History & Tax Summary for 111 Newton Street
Sales History
| Date | Price | |
|---|---|---|
| Currently not available. | ||
Tax Summary
| Tax Year | Estimated Market Value | Total Tax |
|---|---|---|
| Currently not available. | ||
Data powered by ATTOM Data Solutions. Copyright© 2026. Information deemed reliable but not guaranteed.
Schools
Schools nearby 111 Newton Street
| Schools in attendance boundaries | Grades | Distance | Rating |
|---|---|---|---|
| Loading... | |||
| Schools nearby | Grades | Distance | Rating |
|---|---|---|---|
| Loading... | |||
Data powered by ATTOM Data Solutions. Copyright© 2026. Information deemed reliable but not guaranteed.
The schools shown represent both the assigned schools and schools by distance based on local school and district attendance boundaries. Attendance boundaries change based on various factors and proximity does not guarantee enrollment eligibility. Please consult your real estate agent and/or the school district to confirm the schools this property is zoned to attend. Information is deemed reliable but not guaranteed.
SchoolDigger ® Rating
The SchoolDigger rating system is a 1-5 scale with 5 as the highest rating. SchoolDigger ranks schools based on test scores supplied by each state's Department of Education. They calculate an average standard score by normalizing and averaging each school's test scores across all tests and grades.
Coming soon properties will soon be on the market, but are not yet available for showings.