1115 29th Street NW Winter Haven, FL 33881
For Sale MLS# L4956589
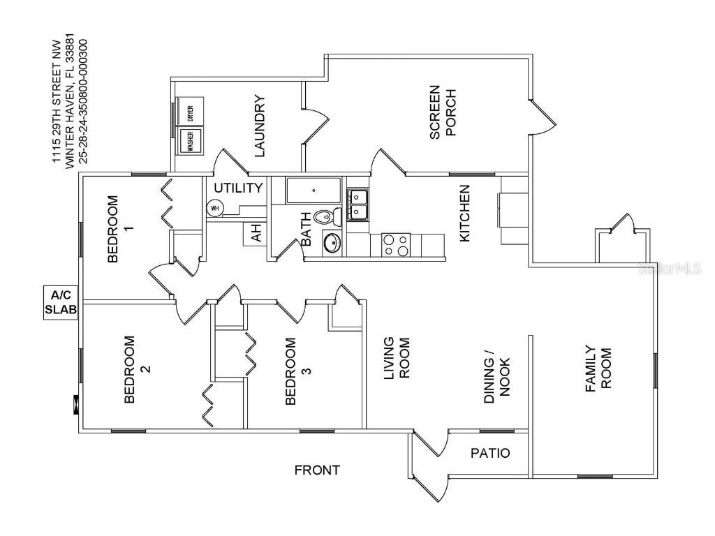
3 beds 1 baths 1,129 sq ft Single Family
Details for 1115 29th Street NW
MLS# L4956589
Description for 1115 29th Street NW, Winter Haven, FL, 33881
SELLER PAID 2-1 TEMPORARY INTEREST RATE BUYDOWN AVAILABLE - See attachment for monthly payment details with preferred lender. Welcome to this newly renovated 3-bedroom, 1-bath home conveniently located near Lake Cannon and just minutes from all the dining, shopping, and entertainment that Winter Haven and Auburndale have to offer! Step through the front door to find fresh interior paint, new carpet in all bedrooms, and inviting living spaces. The kitchen has been refreshed with brand-new appliances, provides plenty of cabinetry storage and counter space, and has a convenient layout for everyday cooking and entertaining. The bathroom is your own personal retreat featuring a new vanity and a walk-in shower with a dual shower head system. Major updates include a new roof and a newer A/C unit, giving you peace of mind and comfort year-round. Outside, the property is truly unique. Enjoy mornings on your screened-in front porch, or host gatherings on the spacious screened-in back porch complete with an attached utility room. The fenced backyard offers plenty of space for pets or play, and comes complete with a firepit, detached shed, and extra covered storage. There is also an extra wide driveway providing plenty of off-street parking. This home is the perfect blend of comfort, outdoor space, and accessibility to the amenities near you. Don’t miss your chance to see this one!
Listing Information
Property Type: Residential, Single Family Residence
Status: Active
Bedrooms: 3
Bathrooms: 1
Lot Size: 0.22 Acres
Square Feet: 1,129 sq ft
Year Built: 1955
Stories: 1 Story
Construction: Block
Subdivision: Rosewood Manor
Foundation: Slab
County: Polk
Room Information
Main Floor
Living Room:
Primary Bedroom:
Kitchen:
Bathrooms
Full Baths: 1
Additonal Room Information
Laundry: Other
Interior Features
Appliances: Microwave, Range, Refrigerator, Electric Water Heater
Flooring: Carpet,Laminate,Tile
Additional Interior Features: Ceiling Fan(s)
Utilities
Water: Public
Sewer: Septic Tank
Other Utilities: Electricity Connected,Municipal Utilities,Water Connected
Cooling: Ceiling Fan(s), Central Air
Heating: Central
Exterior / Lot Features
Roof: Shingle
Lot Dimensions: 72x135
Fencing: Chain Link
Additional Exterior/Lot Features: Other, Storage, Porch, Covered, Screened, Front Porch, Rear Porch, Landscaped
Out Buildings: Storage, Other, Shed(s)
Driving Directions
From SR-544/Havendale Blvd, head south on NW 28th Ave until avenue M. On Ave M make a right and then a quick left onto 29th Ave, house will be on right.
Financial Considerations
Terms: Cash,Conventional,FHA,VA Loan
Tax/Property ID: 25-28-24-350800-000300
Tax Amount: 785
Tax Year: 2025
A broker reciprocity listing courtesy: PORCHLIGHT HOMES LLC
Based on information provided by Stellar MLS as distributed by the MLS GRID. Information from the Internet Data Exchange is provided exclusively for consumers’ personal, non-commercial use, and such information may not be used for any purpose other than to identify prospective properties consumers may be interested in purchasing. This data is deemed reliable but is not guaranteed to be accurate by Edina Realty, Inc., or by the MLS. Edina Realty, Inc., is not a multiple listing service (MLS), nor does it offer MLS access.
Copyright 2025 Stellar MLS as distributed by the MLS GRID. All Rights Reserved.
Payment Calculator
Interest rate and annual percentage rate (APR) are based on current market conditions, are for informational purposes only, are subject to change without notice and may be subject to pricing add-ons related to property type, loan amount, loan-to-value, credit score and other variables. Estimated closing costs used in the APR calculation are assumed to be paid by the borrower at closing. If the closing costs are financed, the loan, APR and payment amounts will be higher. If the down payment is less than 20%, mortgage insurance may be required and could increase the monthly payment and APR. Contact us for details. Additional loan programs may be available. Accuracy is not guaranteed, and all products may not be available in all borrower's geographical areas and are based on their individual situation. This is not a credit decision or a commitment to lend.
Sales History & Tax Summary for 1115 29th Street NW
Sales History
| Date | Price | Change |
|---|---|---|
| Currently not available. | ||
Tax Summary
| Tax Year | Estimated Market Value | Total Tax |
|---|---|---|
| Currently not available. | ||
Data powered by ATTOM Data Solutions. Copyright© 2025. Information deemed reliable but not guaranteed.
Schools
Schools nearby 1115 29th Street NW
| Schools in attendance boundaries | Grades | Distance | Rating |
|---|---|---|---|
| Loading... | |||
| Schools nearby | Grades | Distance | Rating |
|---|---|---|---|
| Loading... | |||
Data powered by ATTOM Data Solutions. Copyright© 2025. Information deemed reliable but not guaranteed.
The schools shown represent both the assigned schools and schools by distance based on local school and district attendance boundaries. Attendance boundaries change based on various factors and proximity does not guarantee enrollment eligibility. Please consult your real estate agent and/or the school district to confirm the schools this property is zoned to attend. Information is deemed reliable but not guaranteed.
SchoolDigger ® Rating
The SchoolDigger rating system is a 1-5 scale with 5 as the highest rating. SchoolDigger ranks schools based on test scores supplied by each state's Department of Education. They calculate an average standard score by normalizing and averaging each school's test scores across all tests and grades.
Coming soon properties will soon be on the market, but are not yet available for showings.