11162 Ledgement Lane Windermere, FL 34786
For Sale MLS# O6346461
4 beds 4 baths 3,248 sq ft Single Family
Details for 11162 Ledgement Lane
MLS# O6346461
Description for 11162 Ledgement Lane, Windermere, FL, 34786
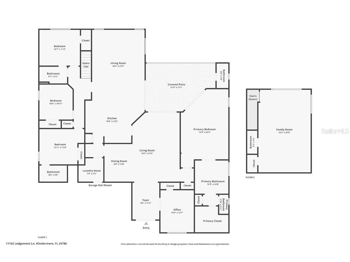
NEW TILE ROOF INSTALLED BEFORE CLOSING! Welcome to Glenmuir—one of Windermere’s most sought-after gated communities. This 4 bedroom, 3 full bath, plus 2 half bath home includes a dedicated office and an upstairs bonus room within a primarily single-story layout—a thoughtful blend of functionality and comfort. Double doors open to a bright foyer with immediate views of the custom 2021 saltwater pool and serene greenspace—no rear neighbors. A private office with French doors and a closet sits just off the foyer. The formal living and dining rooms open directly to the covered lanai and pool, offering seamless indoor–outdoor living. The kitchen provides abundant cabinetry, extensive counter space, a butler’s pantry, and a café area overlooking the pool and outdoor spaces. The kitchen and dining nook flow into a spacious family room—an ideal gathering place. The family room provides lots of windows for natural light. The primary suite is a true retreat with direct pool access and a spa-style bath featuring dual vanities, a soaking tub, a walk-in shower, and an oversized walk-in closet. On the opposite wing, three secondary bedrooms and two full baths— including one en suite—offer excellent flexibility for family or guests. Upstairs, a large bonus room with a half bath functions beautifully as a game room, media space, lounge, or studio. Outdoor living shines with the 2021 custom saltwater pool and generous patio space to enjoy evening views of the Disney fireworks. A dedicated exterior half bath for pool access adds convenient hospitality. The fully fenced yard offers privacy and ample room for pets, gardening, or play. A three-car garage and extended driveway provide generous parking. A new tile roof will be installed prior to closing. Recent updates include two new A/C units (Nov 2024), a new water heater (2025), a new irrigation timer and well pump, fresh exterior paint, and a newly painted garage floor. Glenmuir offers a park, playground, basketball court, and picnic pavilion. Zoned for Windermere Elementary, Bridgewater Middle, and Windermere High, and convenient to Windermere Prep. Prime location near the Lake Butler public boat ramp (Butler Chain of Lakes), SR-429, the Florida Turnpike, and nearby shopping, dining, and world-class attractions including Disney, Universal, and SeaWorld. Schedule your private tour today!
Listing Information
Property Type: Residential, Single Family Residence
Status: Active
Bedrooms: 4
Bathrooms: 4
Lot Size: 0.33 Acres
Square Feet: 3,248 sq ft
Year Built: 2002
Garage: Yes
Stories: 2 Story
Construction: Block,Stucco
Subdivision: Glenmuir Ut 02 51 42
Foundation: Slab
County: Orange
School Information
Elementary: Windermere Elem
Middle: Bridgewater Middle
High: Windermere High School
Room Information
Main Floor
Office: 13x10
Primary Bedroom: 15x24
Kitchen: 13x18
Bedroom 4: 11x13
Bedroom 3: 10x11
Bedroom 2: 13x11
Living Room: 10x11
Dining Room: 22x13
Family Room: 15x16
Upper Floor
Bonus Room: 16x26
Bathrooms
Full Baths: 3
1/2 Baths: 1
Additonal Room Information
Laundry: Laundry Room
Interior Features
Appliances: Washer, Water Softener, Electric Water Heater, Dishwasher, Disposal, Dryer, Microwave, Range, Refrigerator
Flooring: Carpet,Tile
Doors/Windows: Window Treatments
Additional Interior Features: Eat-In Kitchen, Window Treatments, Walk-In Closet(s), Ceiling Fan(s), Open Floorplan, Wood Cabinets, Living/Dining Room, Built-in Features, Main Level Primary, Kitchen/Family Room Combo
Utilities
Water: Public
Sewer: Septic Tank
Other Utilities: Cable Connected,Electricity Connected,Water Connected
Cooling: Ceiling Fan(s), Central Air
Heating: Central
Exterior / Lot Features
Attached Garage: Attached Garage
Garage Spaces: 3
Roof: Tile
Pool: In Ground
Additional Exterior/Lot Features: Sprinkler/Irrigation, Covered
Community Features
Community Features: Playground, Park
Homeowners Association: Yes
HOA Dues: $170 / Monthly
Driving Directions
From 535, turn onto Glenmuir Blvd. Enter through the gate. At the stop sign, turn right and then take your first right onto Ledgement Lane. The home will be on your right.
Financial Considerations
Terms: Cash,Conventional
Tax/Property ID: 19-23-28-3101-02-230
Tax Amount: 7747
Tax Year: 2024
A broker reciprocity listing courtesy: INFINITY REALTY GROUP LLC
Based on information provided by Stellar MLS as distributed by the MLS GRID. Information from the Internet Data Exchange is provided exclusively for consumers’ personal, non-commercial use, and such information may not be used for any purpose other than to identify prospective properties consumers may be interested in purchasing. This data is deemed reliable but is not guaranteed to be accurate by Edina Realty, Inc., or by the MLS. Edina Realty, Inc., is not a multiple listing service (MLS), nor does it offer MLS access.
Copyright 2026 Stellar MLS as distributed by the MLS GRID. All Rights Reserved.
Payment Calculator
Interest rate and annual percentage rate (APR) are based on current market conditions, are for informational purposes only, are subject to change without notice and may be subject to pricing add-ons related to property type, loan amount, loan-to-value, credit score and other variables. Estimated closing costs used in the APR calculation are assumed to be paid by the borrower at closing. If the closing costs are financed, the loan, APR and payment amounts will be higher. If the down payment is less than 20%, mortgage insurance may be required and could increase the monthly payment and APR. Contact us for details. Additional loan programs may be available. Accuracy is not guaranteed, and all products may not be available in all borrower's geographical areas and are based on their individual situation. This is not a credit decision or a commitment to lend.
Sales History & Tax Summary for 11162 Ledgement Lane
Sales History
| Date | Price | |
|---|---|---|
| Currently not available. | ||
Tax Summary
| Tax Year | Estimated Market Value | Total Tax |
|---|---|---|
| Currently not available. | ||
Data powered by ATTOM Data Solutions. Copyright© 2026. Information deemed reliable but not guaranteed.
Schools
Schools nearby 11162 Ledgement Lane
| Schools in attendance boundaries | Grades | Distance | Rating |
|---|---|---|---|
| Loading... | |||
| Schools nearby | Grades | Distance | Rating |
|---|---|---|---|
| Loading... | |||
Data powered by ATTOM Data Solutions. Copyright© 2026. Information deemed reliable but not guaranteed.
The schools shown represent both the assigned schools and schools by distance based on local school and district attendance boundaries. Attendance boundaries change based on various factors and proximity does not guarantee enrollment eligibility. Please consult your real estate agent and/or the school district to confirm the schools this property is zoned to attend. Information is deemed reliable but not guaranteed.
SchoolDigger ® Rating
The SchoolDigger rating system is a 1-5 scale with 5 as the highest rating. SchoolDigger ranks schools based on test scores supplied by each state's Department of Education. They calculate an average standard score by normalizing and averaging each school's test scores across all tests and grades.
Coming soon properties will soon be on the market, but are not yet available for showings.