$498,000
Off-Market Date: 09/23/202411183 N Vesta Point Dunnellon, FL 34434
Pending MLS# O6222708
3 beds 2 baths 1,350 sq ft Single Family
Details for 11183 N Vesta Point
MLS# O6222708
Description for 11183 N Vesta Point, Dunnellon, FL, 34434
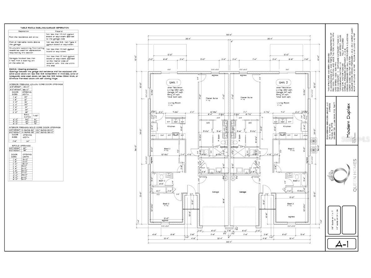
Under Construction. Under Construction. Preconstruction custom Modern Duplex !Financing available for primary residence with 3.5% down payment with fha, no money down for VA and 30% down for investors. This beautiful custom Modern Duplex is a dream come true for a beautiful family to enjoy and have the luxury to have an attached second unit as an investment or for investors looking to build their rental portfolio. It feautures 3 ample bedrooms and 2 bathrooms per unit with 1350 sqrft per side plus 1 car garage per unit. , 8 foot front and sliding doors, beautiful appointed pavers for your driveway and lanai , also we are one of the few builder in citrus spring who offers you FULL FOAM INSULATION in your ceiling so that your attic and home are the coolest home in the county. Solid wood 42 inch cabinets and granite countertops , also no plastic showers, your home comes with upgraded over size tile showers installed 10 feet high all the way to the top of the ceiling . The whole Duplex features 10 foot ceilings and the master showcases tray ceilings as well. This home is priced well and we have appraisal in hand for the full selling price. Warranty is important in Your new home ! While other builders don't offer a warranty we offer a full 2/10 home warranty, 2 years mechanical and 10 year structural warranty . Make an appt today with one of our queen home concierges to discover what Queen homes can do for you . We can also build in your lot in all 7 counties in central florida.
Listing Information
Property Type: Residential, Single Family Residence
Status: Pending
Bedrooms: 3
Bathrooms: 2
Lot Size: 0.33 Acres
Square Feet: 1,350 sq ft
Year Built: 2025
Garage: Yes
Stories: 1 Story
Construction: Block
Construction Display: New Construction
Subdivision: Citrus Spgs Unit 20
Builder: QUEEN HOMES
Foundation: Slab
County: Citrus
Construction Status: Under Construction
Room Information
Main Floor
Living Room:
Kitchen:
Primary Bedroom:
Bedroom 3:
Bedroom 2:
Bedroom 1:
Bathrooms
Full Baths: 2
Additonal Room Information
Laundry: Other
Interior Features
Appliances: Dishwasher, Microwave, Range, Refrigerator
Flooring: Tile
Additional Interior Features: Living/Dining Room
Utilities
Water: Public
Sewer: Public Sewer
Other Utilities: Other
Cooling: Central Air
Heating: Other
Exterior / Lot Features
Attached Garage: Attached Garage
Garage Spaces: 2
Roof: Membrane
Lot Dimensions: 248x122
Community Features
Community Features: Sidewalks
Driving Directions
Follow SW Hwy 484, FL-200 and E Withlacoochee Trail to N Vesta Point in Citrus County Turn left onto SW Hwy 484 Turn left onto FL-200 Turn right onto E Withlacoochee Trail Turn right onto W G Martinelli Blvd Turn left onto N Vesta Point
Financial Considerations
Terms: Cash,Conventional,FHA,VA Loan
Tax/Property ID: 18E-17S-10-0200-13300-0010
Tax Amount: 153.55
Tax Year: 2023
A broker reciprocity listing courtesy: LPT REALTY, LLC
Based on information provided by Stellar MLS as distributed by the MLS GRID. Information from the Internet Data Exchange is provided exclusively for consumers’ personal, non-commercial use, and such information may not be used for any purpose other than to identify prospective properties consumers may be interested in purchasing. This data is deemed reliable but is not guaranteed to be accurate by Edina Realty, Inc., or by the MLS. Edina Realty, Inc., is not a multiple listing service (MLS), nor does it offer MLS access.
Copyright 2026 Stellar MLS as distributed by the MLS GRID. All Rights Reserved.
Sales History & Tax Summary for 11183 N Vesta Point
Sales History
| Date | Price | |
|---|---|---|
| Currently not available. | ||
Tax Summary
| Tax Year | Estimated Market Value | Total Tax |
|---|---|---|
| Currently not available. | ||
Data powered by ATTOM Data Solutions. Copyright© 2026. Information deemed reliable but not guaranteed.
Schools
Schools nearby 11183 N Vesta Point
| Schools in attendance boundaries | Grades | Distance | Rating |
|---|---|---|---|
| Loading... | |||
| Schools nearby | Grades | Distance | Rating |
|---|---|---|---|
| Loading... | |||
Data powered by ATTOM Data Solutions. Copyright© 2026. Information deemed reliable but not guaranteed.
The schools shown represent both the assigned schools and schools by distance based on local school and district attendance boundaries. Attendance boundaries change based on various factors and proximity does not guarantee enrollment eligibility. Please consult your real estate agent and/or the school district to confirm the schools this property is zoned to attend. Information is deemed reliable but not guaranteed.
SchoolDigger ® Rating
The SchoolDigger rating system is a 1-5 scale with 5 as the highest rating. SchoolDigger ranks schools based on test scores supplied by each state's Department of Education. They calculate an average standard score by normalizing and averaging each school's test scores across all tests and grades.
Coming soon properties will soon be on the market, but are not yet available for showings.