$245,000
1121 Trillium Park Lane Sanford, FL 32773
For Sale MLS# O6391398
2 beds 3 baths 1,056 sq ft Townhouse/Twinhome
Details for 1121 Trillium Park Lane
MLS# O6391398
Description for 1121 Trillium Park Lane, Sanford, FL, 32773
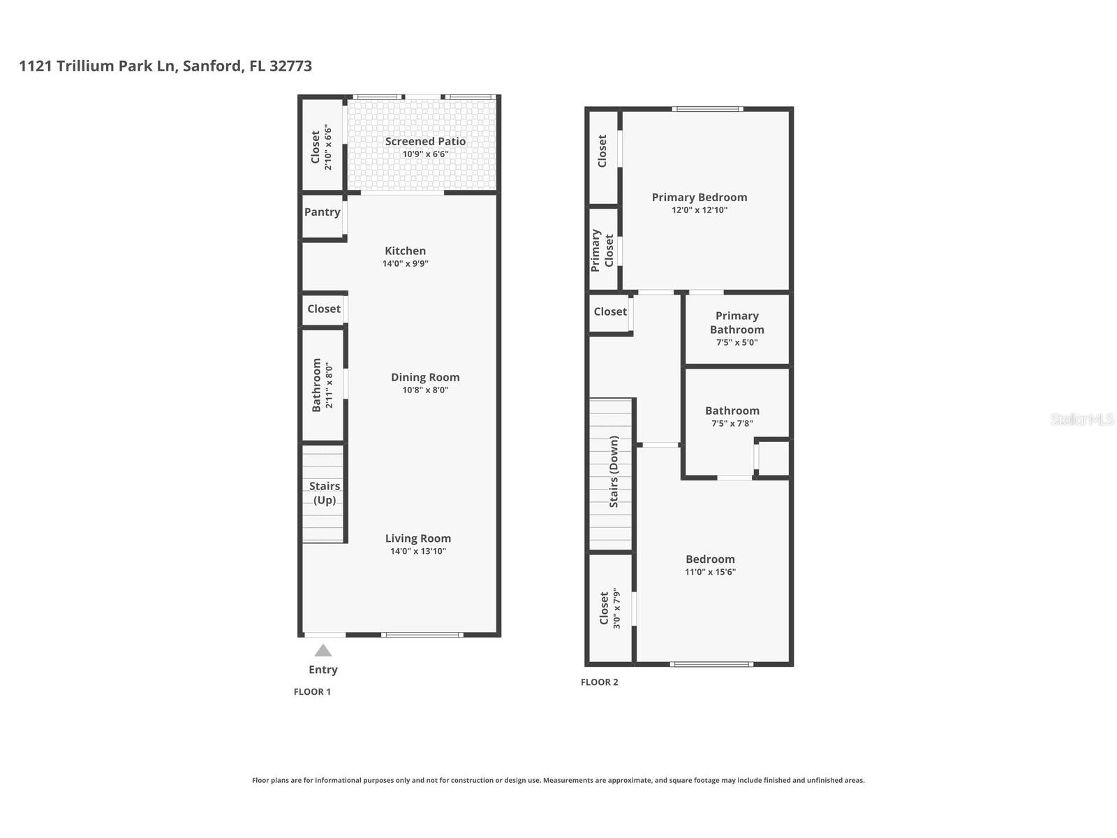
Welcome to low-maintenance living in a prime Sanford location! This beautifully maintained 2-bedroom, 2.5-bath townhome is located in the gated community of Windsor Lake and offers the perfect blend of comfort, convenience, and lifestyle. Step inside to an open and airy floor plan designed for both everyday living and entertaining, complete with a convenient first-floor powder bath. The kitchen features stainless steel appliances and overlooks the spacious living and dining areas, creating a seamless flow throughout the home. Enjoy your morning coffee or unwind in the evening on the private screened-in patio. Upstairs, you’ll find two generously sized bedrooms—each with its own en-suite bathroom—offering ideal privacy for residents or guests. Ideally situated just minutes from SR-417, Historic Downtown Sanford, and a variety of shopping and dining options including Publix and Target, this home offers exceptional convenience with easy access to Lake Mary and surrounding areas. Zoned for highly rated schools including Lake Mary High School and Greenwood Lakes Elementary. Windsor Lake residents enjoy a gated entrance, community pool, playground, and the added value of cable TV and internet included in the monthly HOA. Move-in ready and perfectly located—schedule your private showing today!
Listing Information
Property Type: Residential, Townhouse
Status: Active
Bedrooms: 2
Bathrooms: 3
Lot Size: 0.02 Acres
Square Feet: 1,056 sq ft
Year Built: 2013
Stories: 2 Story
Construction: Stucco
Subdivision: Windsor Lake Twnhms East
Foundation: Slab
County: Seminole
School Information
Elementary: Pine Crest Elementary
Middle: Greenwood Lakes Middle
High: Lake Mary High
Room Information
Main Floor
Living Room:
Kitchen:
Upper Floor
Primary Bedroom: 11x16
Bathrooms
Full Baths: 2
1/2 Baths: 1
Additonal Room Information
Laundry: Inside
Interior Features
Appliances: Electric Water Heater, Microwave, Dishwasher, Dryer, Washer, Range
Flooring: Carpet,Tile
Doors/Windows: Blinds
Additional Interior Features: Solid Surface Counters
Utilities
Water: Public
Sewer: Public Sewer
Other Utilities: Municipal Utilities
Cooling: Central Air
Heating: Electric
Exterior / Lot Features
Roof: Shingle
Pool: Community, Association, Other
Lot View: Garden
Additional Exterior/Lot Features: Other, Patio
Community Features
Community Features: Pool, Clubhouse, Gated
Security Features: Gated Community, Security System Owned
Association Amenities: Cable TV, Pool, Clubhouse
HOA Dues Include: Pool(s), Trash, Cable TV, Internet
Homeowners Association: Yes
HOA Dues: $300 / Monthly
Driving Directions
right onto Windleshore Way, left onto Trillium Park Lane
Financial Considerations
Terms: Cash,Conventional,FHA,VA Loan
Tax/Property ID: 20-30-12-515-0000-2400
Tax Amount: 3771.47
Tax Year: 2025
A broker reciprocity listing courtesy: COMPASS FLORIDA LLC
Based on information provided by Stellar MLS as distributed by the MLS GRID. Information from the Internet Data Exchange is provided exclusively for consumers’ personal, non-commercial use, and such information may not be used for any purpose other than to identify prospective properties consumers may be interested in purchasing. This data is deemed reliable but is not guaranteed to be accurate by Edina Realty, Inc., or by the MLS. Edina Realty, Inc., is not a multiple listing service (MLS), nor does it offer MLS access.
Copyright 2026 Stellar MLS as distributed by the MLS GRID. All Rights Reserved.
Payment Calculator
Interest rate and annual percentage rate (APR) are based on current market conditions, are for informational purposes only, are subject to change without notice and may be subject to pricing add-ons related to property type, loan amount, loan-to-value, credit score and other variables. Estimated closing costs used in the APR calculation are assumed to be paid by the borrower at closing. If the closing costs are financed, the loan, APR and payment amounts will be higher. If the down payment is less than 20%, mortgage insurance may be required and could increase the monthly payment and APR. Contact us for details. Additional loan programs may be available. Accuracy is not guaranteed, and all products may not be available in all borrower's geographical areas and are based on their individual situation. This is not a credit decision or a commitment to lend.
Sales History & Tax Summary for 1121 Trillium Park Lane
Sales History
| Date | Price | |
|---|---|---|
| Currently not available. | ||
Tax Summary
| Tax Year | Estimated Market Value | Total Tax |
|---|---|---|
| Currently not available. | ||
Data powered by ATTOM Data Solutions. Copyright© 2026. Information deemed reliable but not guaranteed.
Schools
Schools nearby 1121 Trillium Park Lane
| Schools in attendance boundaries | Grades | Distance | Rating |
|---|---|---|---|
| Loading... | |||
| Schools nearby | Grades | Distance | Rating |
|---|---|---|---|
| Loading... | |||
Data powered by ATTOM Data Solutions. Copyright© 2026. Information deemed reliable but not guaranteed.
The schools shown represent both the assigned schools and schools by distance based on local school and district attendance boundaries. Attendance boundaries change based on various factors and proximity does not guarantee enrollment eligibility. Please consult your real estate agent and/or the school district to confirm the schools this property is zoned to attend. Information is deemed reliable but not guaranteed.
SchoolDigger ® Rating
The SchoolDigger rating system is a 1-5 scale with 5 as the highest rating. SchoolDigger ranks schools based on test scores supplied by each state's Department of Education. They calculate an average standard score by normalizing and averaging each school's test scores across all tests and grades.
Coming soon properties will soon be on the market, but are not yet available for showings.