$220,000
Off-Market Date: 02/03/20261124 Salina Avenue Port Charlotte, FL 33948
Pending MLS# C7513570
3 beds 2 baths 1,304 sq ft Single Family
Details for 1124 Salina Avenue
MLS# C7513570
Description for 1124 Salina Avenue, Port Charlotte, FL, 33948
Beautiful, well-maintained 3 bedrooms, 2 bathrooms, home located in a quiet neighborhood. Why rent when you can own for less? The gorgeous kitchen offers all new wood cabinets with soft-close drawers, stainless steel appliances, sparkling granite countertops, a breakfast bar, and pantry. The spacious living room features a charming electric fireplace and mantel. This home has ceramic tile throughout. There is a nice finished detached garage that could be used as a 4th bedroom, office, craft room, workout space, workshop, or extra storage. NEW METAL ROOF. New Impact Windows. New water heater. Washer and dryer included. Newer air conditioner. Pick your own fresh fruit right from your backyard. There is also a large shed in the spacious fenced backyard. Underground electric from the pole to home. Conveniently located near I-75, shopping, restaurants, hospitals, and a short drive to Gulf Beaches. “Virtual Tour 1” to view the 3-D Tour and Floor Plan. "Video Tour 2" to view video tour.
Listing Information
Property Type: Residential, Single Family Residence
Status: Pending
Bedrooms: 3
Bathrooms: 2
Lot Size: 0.23 Acres
Square Feet: 1,304 sq ft
Year Built: 1987
Stories: 1 Story
Construction: Stucco,Wood Frame
Subdivision: Port Charlotte Sec 008
Foundation: Slab
County: Charlotte
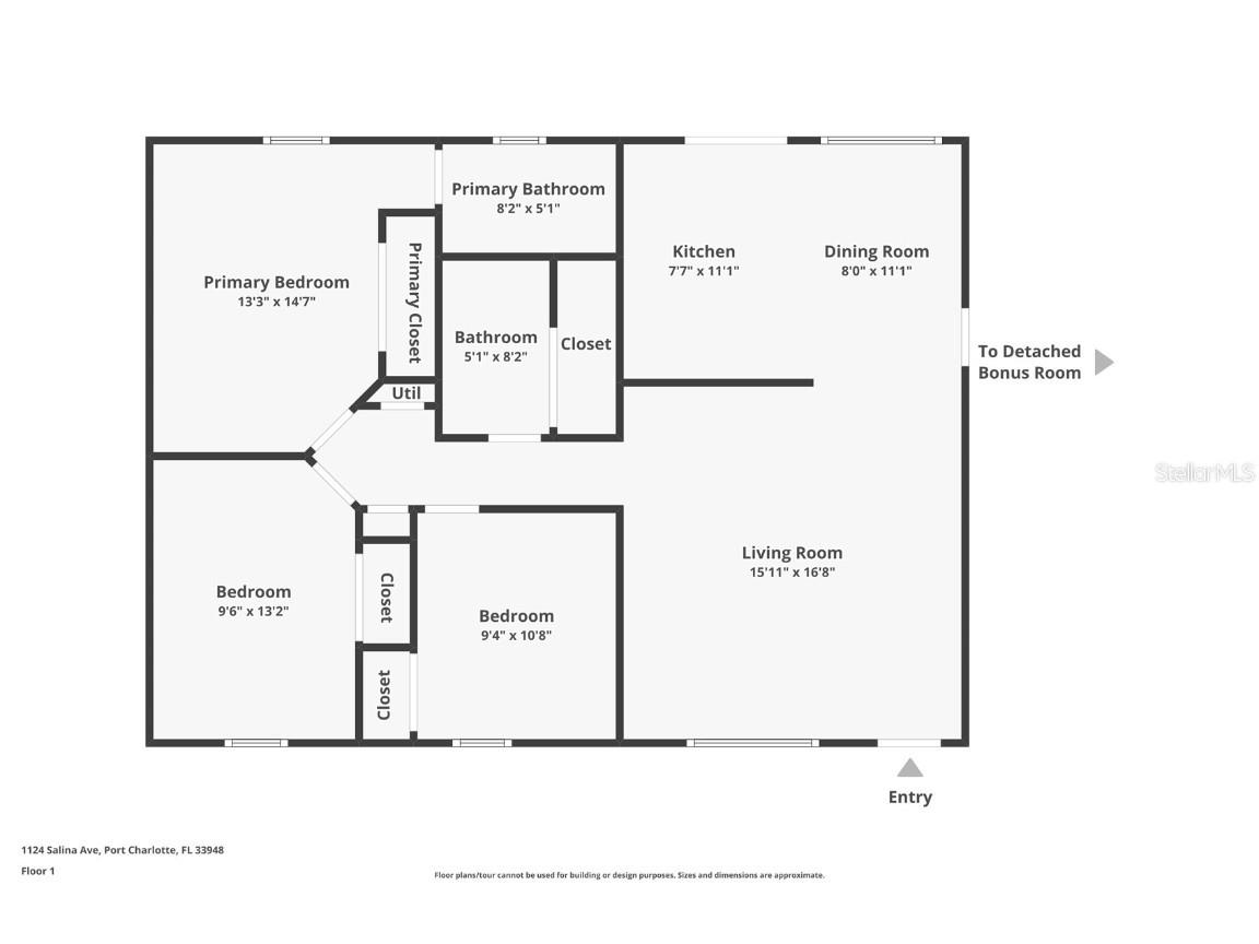
Room Information
Main Floor
Bonus Room: 11x16
Bathroom 2: 5x8
Bedroom 3: 8.1x10.2
Bedroom 2: 9.5x12.6
Primary Bathroom: 5x8
Primary Bedroom: 10.5x14.2
Living Room: 15.6x16
Dinette: 5.5x11
Kitchen: 10x10.8
Bathrooms
Full Baths: 2
Additonal Room Information
Laundry: Inside
Interior Features
Appliances: Range Hood, Dishwasher, Disposal, Dryer, Microwave, Refrigerator, Washer
Flooring: Ceramic Tile
Doors/Windows: Drapes, Rods
Fireplaces: Electric
Additional Interior Features: Eat-In Kitchen, Ceiling Fan(s), Stone Counters, Wood Cabinets, Built-in Features
Utilities
Water: Public
Sewer: Septic Tank
Other Utilities: Cable Available,Municipal Utilities,Underground Utilities
Cooling: Ceiling Fan(s), Central Air
Heating: Electric
Exterior / Lot Features
Parking Description: Off Street, driveway
Roof: Metal
Lot Dimensions: 80x125
Additional Exterior/Lot Features: Rain Gutters, Rear Porch, Side Porch, Landscaped, City Lot
Out Buildings: Shed(s)
Community Features
Security Features: Fire Alarm
Driving Directions
From 41 Heading South towards Port Charlotte, Turn Right on Cochran Blvd. Turn left onto Lakeview Blvd, then Right on Chevy Chase St. Continue onto Rock Creek Dr and turn left on Salina Ave. The home is on the left.
Financial Considerations
Terms: Cash,Conventional,FHA,VA Loan
Tax/Property ID: 402220328010
Tax Amount: 2526.72
Tax Year: 2024
A broker reciprocity listing courtesy: COLDWELL BANKER REALTY
Based on information provided by Stellar MLS as distributed by the MLS GRID. Information from the Internet Data Exchange is provided exclusively for consumers’ personal, non-commercial use, and such information may not be used for any purpose other than to identify prospective properties consumers may be interested in purchasing. This data is deemed reliable but is not guaranteed to be accurate by Edina Realty, Inc., or by the MLS. Edina Realty, Inc., is not a multiple listing service (MLS), nor does it offer MLS access.
Copyright 2026 Stellar MLS as distributed by the MLS GRID. All Rights Reserved.
Sales History & Tax Summary for 1124 Salina Avenue
Sales History
| Date | Price | |
|---|---|---|
| Currently not available. | ||
Tax Summary
| Tax Year | Estimated Market Value | Total Tax |
|---|---|---|
| Currently not available. | ||
Data powered by ATTOM Data Solutions. Copyright© 2026. Information deemed reliable but not guaranteed.
Schools
Schools nearby 1124 Salina Avenue
| Schools in attendance boundaries | Grades | Distance | Rating |
|---|---|---|---|
| Loading... | |||
| Schools nearby | Grades | Distance | Rating |
|---|---|---|---|
| Loading... | |||
Data powered by ATTOM Data Solutions. Copyright© 2026. Information deemed reliable but not guaranteed.
The schools shown represent both the assigned schools and schools by distance based on local school and district attendance boundaries. Attendance boundaries change based on various factors and proximity does not guarantee enrollment eligibility. Please consult your real estate agent and/or the school district to confirm the schools this property is zoned to attend. Information is deemed reliable but not guaranteed.
SchoolDigger ® Rating
The SchoolDigger rating system is a 1-5 scale with 5 as the highest rating. SchoolDigger ranks schools based on test scores supplied by each state's Department of Education. They calculate an average standard score by normalizing and averaging each school's test scores across all tests and grades.
Coming soon properties will soon be on the market, but are not yet available for showings.