1126 Villa Lane #91 Apopka, FL 32712
For Sale MLS# O6315088
2 beds 2 baths 980 sq ft Condo
Details for 1126 Villa Lane #91
MLS# O6315088
Description for 1126 Villa Lane #91, Apopka, FL, 32712
Welcome to your peaceful retreat in Errol Estates! This charming 2-bedroom, 2-bath villa is full of character and designed for easy, low-maintenance living. From the moment you arrive, the lush landscaping and curb appeal invite you in... and it only gets better from there! Inside, the soaring tongue-and-groove wood ceilings and rich wood floors create a warm, open vibe that feels like home. The kitchen offers plenty of prep space, a breakfast bar, and an effortless flow into the dining and living areas. Sliding doors open to a spacious Florida room and private outdoor patio - perfect for morning coffee or evening wine. Updates include a newer roof (2019), HVAC (2017), and water heater (2020), offering peace of mind for years to come. Nestled on a quiet street, yet close to local shops, dining, and Wekiwa Springs for weekend adventures, this home blends comfort, convenience, and community. Don’t miss this incredible opportunity to own a home in this gorgeous community. Schedule your showing today!
Listing Information
Property Type: Residential, Condominium
Status: Active
Bedrooms: 2
Bathrooms: 2
Lot Size: 0.07 Acres
Square Feet: 980 sq ft
Year Built: 1973
Stories: 1 Story
Construction: Block,Concrete,Stucco
Property Attached: Yes
Construction Display: New Construction
Subdivision: Errol Club Villas 03
Foundation: Slab
County: Orange
Construction Status: New Construction
School Information
Elementary: Apopka Elem
Middle: Apopka Middle
High: Apopka High
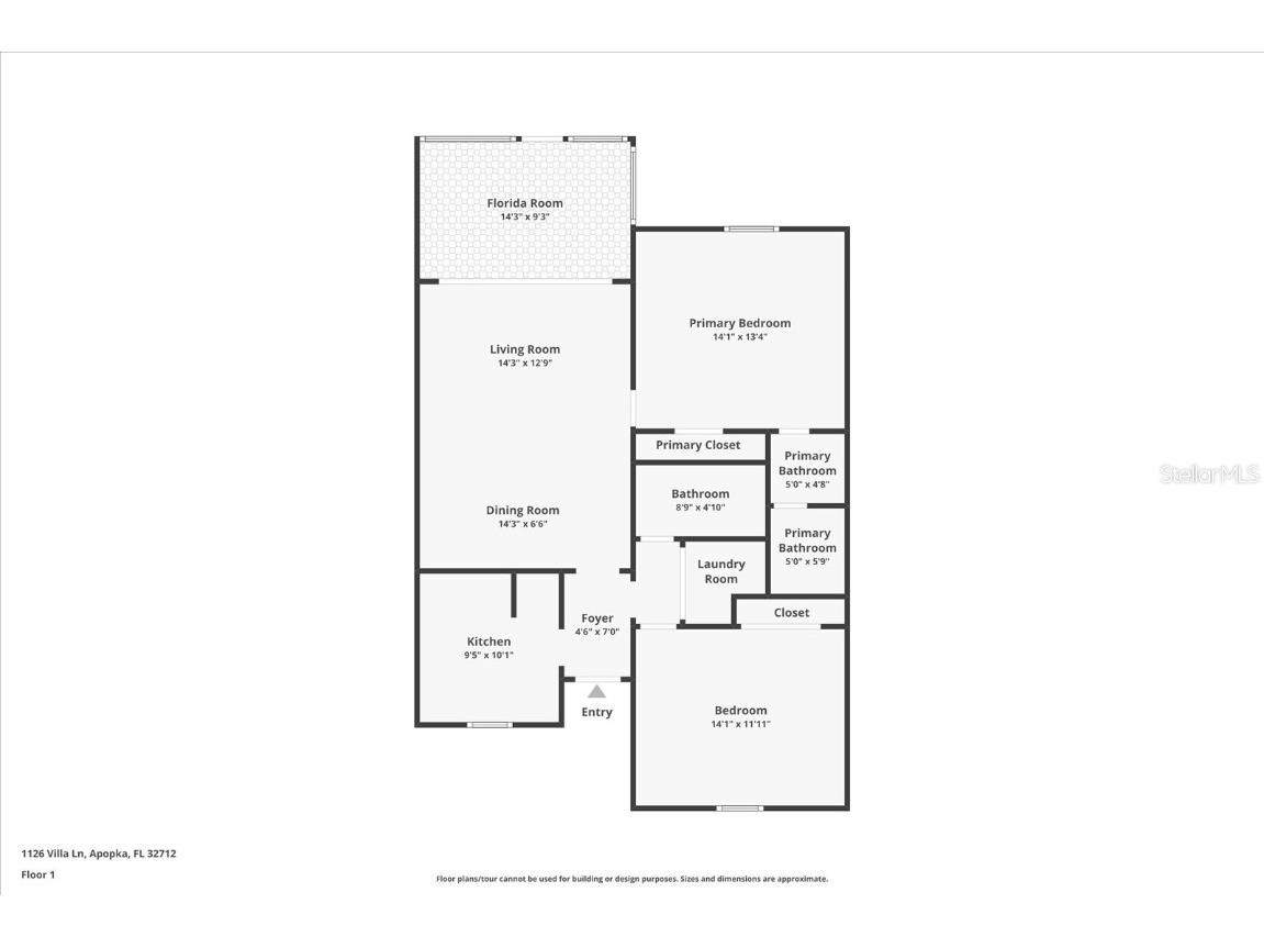
Room Information
Main Floor
Florida Room:
Bathroom 2:
Bedroom 2:
Primary Bathroom: 12x15
Primary Bedroom: 13x15
Living Room: 14x27
Kitchen: 8x10
Bathrooms
Full Baths: 2
Additonal Room Information
Laundry: Inside, Laundry Closet
Interior Features
Appliances: Range Hood, Washer, Range, Refrigerator, Cooktop, Dishwasher, Dryer, Microwave
Flooring: Carpet,Tile,Wood
Doors/Windows: Blinds
Additional Interior Features: Split Bedrooms, High Ceilings, Open Floorplan, Ceiling Fan(s), Vaulted Ceiling(s), Main Level Primary, Kitchen/Family Room Combo
Utilities
Sewer: Public Sewer
Other Utilities: Cable Available,Cable Connected,Electricity Available,Electricity Connected,Sewer Available,Sewer Connected,Water Not Available
Cooling: Ceiling Fan(s), Central Air
Heating: Central, Electric
Exterior / Lot Features
Roof: Shingle
Pool: Association
Additional Exterior/Lot Features: Patio, Covered, Rear Porch, Enclosed, Screened, Buyer Approval Required
Community Features
Community Features: Golf Carts OK, Community Mailbox, Sidewalks
Association Amenities: Pool
HOA Dues Include: Maintenance Structure, Maintenance Grounds, Pest Control
Driving Directions
From 441, enter Errol Pkwy, continue just pass country club entrance, take right on Golf Course Dr, stay right until you have to go left on Villa Ln., (one way) keep going until you reach parking lot. from 441 Orange Blossom Trail, Turn onto Errol Pkwy, Turn right onto Golf Course Dr., Keep left at the fork to continue on Golf Course Dr., Turn right to stay on Golf Course Dr., Turn left onto Villa Ln., Villa 95 is at the bottom of parking lot C. Take the steps down the path, stay to your left and you will fine #91. You may park in lots A,B, or C before 6pm. Cars without a parking decal are subject to towing after 6. Once you pass parking lot C, there are two 20 minute parking spaces you may use.
Financial Considerations
Terms: Cash,Conventional
Tax/Property ID: 32-20-28-2514-00-091
Tax Amount: 567.3
Tax Year: 2024
A broker reciprocity listing courtesy: MAINFRAME REAL ESTATE
Based on information provided by Stellar MLS as distributed by the MLS GRID. Information from the Internet Data Exchange is provided exclusively for consumers’ personal, non-commercial use, and such information may not be used for any purpose other than to identify prospective properties consumers may be interested in purchasing. This data is deemed reliable but is not guaranteed to be accurate by Edina Realty, Inc., or by the MLS. Edina Realty, Inc., is not a multiple listing service (MLS), nor does it offer MLS access.
Copyright 2025 Stellar MLS as distributed by the MLS GRID. All Rights Reserved.
Payment Calculator
Interest rate and annual percentage rate (APR) are based on current market conditions, are for informational purposes only, are subject to change without notice and may be subject to pricing add-ons related to property type, loan amount, loan-to-value, credit score and other variables. Estimated closing costs used in the APR calculation are assumed to be paid by the borrower at closing. If the closing costs are financed, the loan, APR and payment amounts will be higher. If the down payment is less than 20%, mortgage insurance may be required and could increase the monthly payment and APR. Contact us for details. Additional loan programs may be available. Accuracy is not guaranteed, and all products may not be available in all borrower's geographical areas and are based on their individual situation. This is not a credit decision or a commitment to lend.
Sales History & Tax Summary for 1126 Villa Lane #91
Sales History
| Date | Price | Change |
|---|---|---|
| Currently not available. | ||
Tax Summary
| Tax Year | Estimated Market Value | Total Tax |
|---|---|---|
| Currently not available. | ||
Data powered by ATTOM Data Solutions. Copyright© 2025. Information deemed reliable but not guaranteed.
Schools
Schools nearby 1126 Villa Lane #91
| Schools in attendance boundaries | Grades | Distance | Rating |
|---|---|---|---|
| Loading... | |||
| Schools nearby | Grades | Distance | Rating |
|---|---|---|---|
| Loading... | |||
Data powered by ATTOM Data Solutions. Copyright© 2025. Information deemed reliable but not guaranteed.
The schools shown represent both the assigned schools and schools by distance based on local school and district attendance boundaries. Attendance boundaries change based on various factors and proximity does not guarantee enrollment eligibility. Please consult your real estate agent and/or the school district to confirm the schools this property is zoned to attend. Information is deemed reliable but not guaranteed.
SchoolDigger ® Rating
The SchoolDigger rating system is a 1-5 scale with 5 as the highest rating. SchoolDigger ranks schools based on test scores supplied by each state's Department of Education. They calculate an average standard score by normalizing and averaging each school's test scores across all tests and grades.
Coming soon properties will soon be on the market, but are not yet available for showings.