113 Norfolk Drive Davenport, FL 33896
For Sale MLS# O6363903
4 beds 3 baths 1,839 sq ft Single Family
Details for 113 Norfolk Drive
MLS# O6363903
Description for 113 Norfolk Drive, Davenport, FL, 33896
TURNKEY VACATION POOL HOME! This fully-furnished 4BR/3BA pool home has been gently used as a second home, and is ideally located in the peaceful gated community of The Shire at WestHaven. Just minutes from Disney World® in the ChampionsGate area, this great home is tucked away in between I-4 and Hwy 27, providing quick access to the airports, all of the theme parks, and shopping malls. Yet, as you relax in your spa you'll forget all of that is so close. Tastefully decorated with quality Tommy Bahama-style furniture and decor, this can be a fantastic home to live in, to spend vacations with family, or to add an instant income-producing investment opportunity to your portfolio! Make an appointment today to make it yours! (***blocked out until 4.18.26, and then from 4.20.26-5.17.26, and again 5.20.26->***)
Listing Information
Property Type: Residential, Single Family Residence
Status: Active
Bedrooms: 4
Bathrooms: 3
Lot Size: 0.16 Acres
Square Feet: 1,839 sq ft
Year Built: 2007
Garage: Yes
Stories: 1 Story
Construction: Block,Stucco
Construction Display: New Construction
Subdivision: Shire At West Haven Ph 01
Foundation: Slab
County: Polk
Construction Status: New Construction
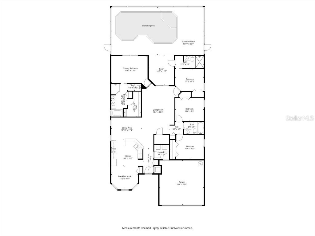
Room Information
Main Floor
Porch: 12.9x10.8
Living Room: 26.4x16.4
Dining Room: 11.4x12.1
Kitchen: 11.5x13.9
Dinette: 9.11x11.3
Foyer: 10.4x4.3
Laundry: 6.2x6.4
Bedroom 4: 10.3x11.8
Bathroom 3: 5.1x8.3
Bedroom 3: 9.9x12
Bathroom 2: 5.1x12
Bedroom 2: 9.5x12
Primary Bathroom: 13.1x12.2
Primary Bedroom: 13.4x16.1
Bathrooms
Full Baths: 3
Additonal Room Information
Laundry: Laundry Room, Inside
Interior Features
Appliances: Dishwasher, Disposal, Dryer, Range, Refrigerator, Microwave, Washer, Electric Water Heater
Flooring: Carpet,Ceramic Tile
Doors/Windows: Blinds, Double Pane Windows, Window Treatments, Aluminum Frames
Additional Interior Features: Window Treatments, Ceiling Fan(s), Eat-In Kitchen, Split Bedrooms, Main Level Primary, Separate/Formal Dining Room, Open Floorplan
Utilities
Water: Public
Sewer: Public Sewer
Other Utilities: Cable Connected,Electricity Connected,Municipal Utilities,Sewer Connected,Underground Utilities,Water Connected
Cooling: Ceiling Fan(s), Central Air
Heating: Electric
Exterior / Lot Features
Attached Garage: Attached Garage
Garage Spaces: 2
Parking Description: driveway
Roof: Shingle
Pool: Association, Other, Heated, Community, In Ground, Gunite
Lot View: Pool
Fencing: Masonry
Additional Exterior/Lot Features: Private Yard, Sprinkler/Irrigation, Rear Porch, Screened, Flat, Level, Private, Landscaped
Community Features
Community Features: Sidewalks, Street Lights
Association Amenities: Trail(s), Pickleball, Gated, Playground, Pool, Tennis Court(s)
HOA Dues Include: Recreation Facilities, Maintenance Grounds, Reserve Fund, Road Maintenance, Pool(s)
Homeowners Association: Yes
HOA Dues: $892 / Quarterly
Driving Directions
From Orlando, take I-4 West to Exit 58 (ChampionsGate). Take ChampionsGate Blvd. West for 0.9 mile to Ronald Reagan Parkway. Turn right onto Ronald Reagan Pkwy and continue west for 1.2 mile. WestHaven will be on the left. Turn left onto May Fair Blvd. and continue for 0.3 mile to circle and follow around to Buckingham Dr. (2nd right). Once on Buckingham, The Shire will be the 1st gate on the left. After getting gate access, turn right onto Norfolk Dr. and #113 will be on your right. From Tampa, take I-4 East to Exit 55 (Hwy 27) north. Continue on Hwy 27 North 1.7 miles to Ronald Reagan Parkway. Turn right onto Ronald Reagan Pkwy and continue east for 1 mile. WestHaven will be on the right. Turn right onto May Fair Blvd. and continue for 0.3 mile to circle and follow around to Buckingham Dr. (2nd right). Once on Buckingham, The Shire will be the 1st gate on the left. After getting gate access, turn right onto Norfolk Dr. and #113 will be on your right.
Financial Considerations
Terms: Cash,Conventional,FHA,Trade,VA Loan
Tax/Property ID: 27-26-05-701150-000030
Tax Amount: 4659.53
Tax Year: 2024
A broker reciprocity listing courtesy: KUNKLE REALTY GROUP
Based on information provided by Stellar MLS as distributed by the MLS GRID. Information from the Internet Data Exchange is provided exclusively for consumers’ personal, non-commercial use, and such information may not be used for any purpose other than to identify prospective properties consumers may be interested in purchasing. This data is deemed reliable but is not guaranteed to be accurate by Edina Realty, Inc., or by the MLS. Edina Realty, Inc., is not a multiple listing service (MLS), nor does it offer MLS access.
Copyright 2026 Stellar MLS as distributed by the MLS GRID. All Rights Reserved.
Payment Calculator
Interest rate and annual percentage rate (APR) are based on current market conditions, are for informational purposes only, are subject to change without notice and may be subject to pricing add-ons related to property type, loan amount, loan-to-value, credit score and other variables. Estimated closing costs used in the APR calculation are assumed to be paid by the borrower at closing. If the closing costs are financed, the loan, APR and payment amounts will be higher. If the down payment is less than 20%, mortgage insurance may be required and could increase the monthly payment and APR. Contact us for details. Additional loan programs may be available. Accuracy is not guaranteed, and all products may not be available in all borrower's geographical areas and are based on their individual situation. This is not a credit decision or a commitment to lend.
Sales History & Tax Summary for 113 Norfolk Drive
Sales History
| Date | Price | |
|---|---|---|
| Currently not available. | ||
Tax Summary
| Tax Year | Estimated Market Value | Total Tax |
|---|---|---|
| Currently not available. | ||
Data powered by ATTOM Data Solutions. Copyright© 2026. Information deemed reliable but not guaranteed.
Schools
Schools nearby 113 Norfolk Drive
| Schools in attendance boundaries | Grades | Distance | Rating |
|---|---|---|---|
| Loading... | |||
| Schools nearby | Grades | Distance | Rating |
|---|---|---|---|
| Loading... | |||
Data powered by ATTOM Data Solutions. Copyright© 2026. Information deemed reliable but not guaranteed.
The schools shown represent both the assigned schools and schools by distance based on local school and district attendance boundaries. Attendance boundaries change based on various factors and proximity does not guarantee enrollment eligibility. Please consult your real estate agent and/or the school district to confirm the schools this property is zoned to attend. Information is deemed reliable but not guaranteed.
SchoolDigger ® Rating
The SchoolDigger rating system is a 1-5 scale with 5 as the highest rating. SchoolDigger ranks schools based on test scores supplied by each state's Department of Education. They calculate an average standard score by normalizing and averaging each school's test scores across all tests and grades.
Coming soon properties will soon be on the market, but are not yet available for showings.