113 W Evans Street Orlando, FL 32804
For Sale MLS# O6366747
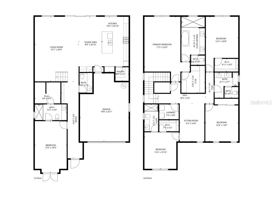
5 beds 5 baths 3,470 sq ft Single Family
Details for 113 W Evans Street
MLS# O6366747
Description for 113 W Evans Street, Orlando, FL, 32804
Brand-new luxury construction by LUIH Homes in the heart of College Park—modern design, high-end finishes, and a resort-style backyard all in one rare offering. Exquisite new build featuring a statement chef’s kitchen with professional Thermador appliances, European-style cabinetry, dramatic quartz countertops, and a waterfall-edge island. The open layout flows effortlessly into the dining and living areas, where soaring ceilings, designer lighting, and large glass sliders bring in incredible natural light. A first-floor primary suite feels like a private retreat with a spa-inspired bath, freestanding tub, oversized walk-in shower, dual vanities, and a boutique-style custom closet with LED lighting. An additional primary suite upstairs features an oversized room, walk in closet and dreamy bathroom with dual shower heads. The home also features custom millwork throughout and a sleek wet bar with built-in wine refrigeration—perfect for entertaining. Step outside to your resort-style oasis with a sparkling pool and sun shelf, covered lanai, and full summer kitchen. All just steps from Edgewater Drive’s shops, cafes, and restaurants, and minutes from the new Packing District. A rare opportunity to own a luxury LUIH home in one of Orlando’s most desirable neighborhoods.
Listing Information
Property Type: Residential, Single Family Residence
Status: Active
Bedrooms: 5
Bathrooms: 5
Lot Size: 0.17 Acres
Square Feet: 3,470 sq ft
Year Built: 2025
Garage: Yes
Stories: 2 Story
Construction: Brick,Block,Stucco
Construction Display: New Construction
Subdivision: College Park
Foundation: Slab
County: Orange
Construction Status: New Construction
Room Information
Main Floor
Living Room:
Kitchen:
Upper Floor
Primary Bedroom:
Bathrooms
Full Baths: 4
1/2 Baths: 1
Additonal Room Information
Laundry: Inside, Laundry Room
Interior Features
Appliances: Washer, Cooktop, Dishwasher, Dryer, Microwave, Range, Refrigerator
Flooring: Laminate,Tile
Accessibility: Accessibility Features
Additional Interior Features: Eat-In Kitchen, Ceiling Fan(s), Kitchen/Family Room Combo, Walk-In Closet(s), Living/Dining Room
Utilities
Water: Public
Sewer: Public Sewer
Other Utilities: Municipal Utilities
Cooling: Ceiling Fan(s), Central Air
Heating: Central
Exterior / Lot Features
Attached Garage: Attached Garage
Garage Spaces: 2
Roof: Shingle
Pool: In Ground
Fencing: Vinyl
Additional Exterior/Lot Features: Outdoor Kitchen, Rain Gutters, Rear Porch, Covered
Community Features
Community Features: Sidewalks
Driving Directions
From FL-429 S, take exit 22 for Florida's Turnpike toward Miami. Use any lane to take the Florida's Turnpike ramp to Miami/FL-408 E. Merge onto Florida's Turnpike. Use the right 2 lanes to take exit 265 for FL-408 toward Orland/Titusville. Use the 2nd from the right lane to take exit 10A for I-4 E. Use the left lane to take the I-4 E ramp to Daytona Beach. Use the 2nd from the right lane to take exit 85 for Princeton St. Use the 2nd from the left lane to take the ramp to FL-438 N/Princeton St. Use the right lane to turn left onto FL-438 N/Princeton St. Turn right onto Formosa Ave. Turn left onto Evans St.
Financial Considerations
Terms: Cash,Conventional,FHA,VA Loan
Tax/Property ID: 14-22-29-5633-00-260
Tax Amount: 6155.39
Tax Year: 2024
A broker reciprocity listing courtesy: REAL BROKER, LLC
Based on information provided by Stellar MLS as distributed by the MLS GRID. Information from the Internet Data Exchange is provided exclusively for consumers’ personal, non-commercial use, and such information may not be used for any purpose other than to identify prospective properties consumers may be interested in purchasing. This data is deemed reliable but is not guaranteed to be accurate by Edina Realty, Inc., or by the MLS. Edina Realty, Inc., is not a multiple listing service (MLS), nor does it offer MLS access.
Copyright 2026 Stellar MLS as distributed by the MLS GRID. All Rights Reserved.
Payment Calculator
Interest rate and annual percentage rate (APR) are based on current market conditions, are for informational purposes only, are subject to change without notice and may be subject to pricing add-ons related to property type, loan amount, loan-to-value, credit score and other variables. Estimated closing costs used in the APR calculation are assumed to be paid by the borrower at closing. If the closing costs are financed, the loan, APR and payment amounts will be higher. If the down payment is less than 20%, mortgage insurance may be required and could increase the monthly payment and APR. Contact us for details. Additional loan programs may be available. Accuracy is not guaranteed, and all products may not be available in all borrower's geographical areas and are based on their individual situation. This is not a credit decision or a commitment to lend.
Sales History & Tax Summary for 113 W Evans Street
Sales History
| Date | Price | |
|---|---|---|
| Currently not available. | ||
Tax Summary
| Tax Year | Estimated Market Value | Total Tax |
|---|---|---|
| Currently not available. | ||
Data powered by ATTOM Data Solutions. Copyright© 2026. Information deemed reliable but not guaranteed.
Schools
Schools nearby 113 W Evans Street
| Schools in attendance boundaries | Grades | Distance | Rating |
|---|---|---|---|
| Loading... | |||
| Schools nearby | Grades | Distance | Rating |
|---|---|---|---|
| Loading... | |||
Data powered by ATTOM Data Solutions. Copyright© 2026. Information deemed reliable but not guaranteed.
The schools shown represent both the assigned schools and schools by distance based on local school and district attendance boundaries. Attendance boundaries change based on various factors and proximity does not guarantee enrollment eligibility. Please consult your real estate agent and/or the school district to confirm the schools this property is zoned to attend. Information is deemed reliable but not guaranteed.
SchoolDigger ® Rating
The SchoolDigger rating system is a 1-5 scale with 5 as the highest rating. SchoolDigger ranks schools based on test scores supplied by each state's Department of Education. They calculate an average standard score by normalizing and averaging each school's test scores across all tests and grades.
Coming soon properties will soon be on the market, but are not yet available for showings.