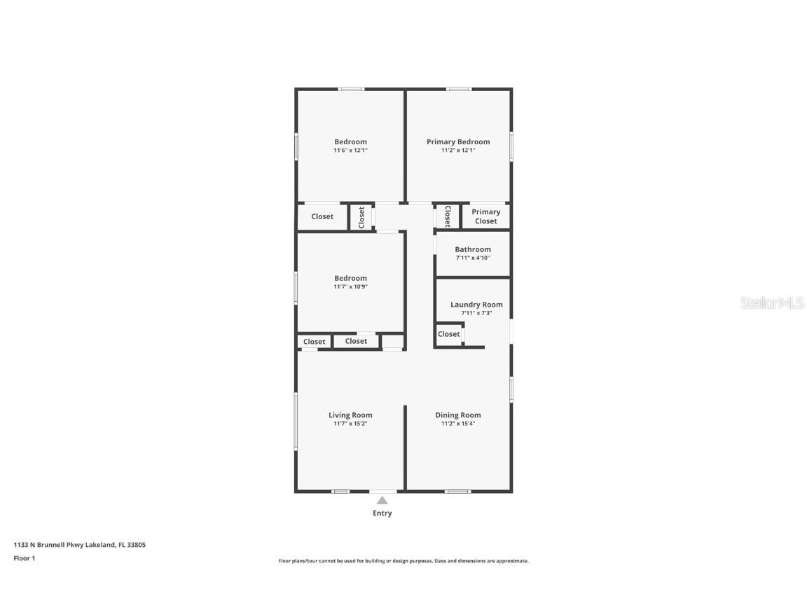
1133 N Brunnell Parkway Lakeland, FL 33805
For Sale MLS# L4950041
3 beds 1 baths 1,056 sq ft Single Family
Details for 1133 N Brunnell Parkway
MLS# L4950041
Description for 1133 N Brunnell Parkway, Lakeland, FL, 33805
Cash or FHA 203k loan recommended due to condition of home. Sold AS-IS, offering an incredible chance for investors or buyers willing to add their personal touch. With some updates, the home has the potential to reach its RVM value in the $220K range — making it an extremely under-market deal with instant equity potential. This 3 bedroom, 1 bath single-family home, sits on a deep lot and features a 4-car carport, a fenced-in yard, and two large screened-in rooms located at the front and rear. The property includes a newer kitchen with granite countertops, stainless steel appliances, and a shower stall that was all updated in 2020. The home sustained wind damage from Hurricane Milton—impacting the carport cover, separating the rear screened room from the home, and blowing off some shingles. The roof and HVAC are 5 years old and HVAC was serviced, including cleaning out the vents, in December 2024. There are some soft spots in the flooring. Prime location! The north side is less than 10 minutes away, while the south side is just 12-15 minutes. Tampa is about 20 minutes, depending on traffic, and the popular Bonnet Springs Park is only 2 miles away. Plus, you’ll have easy access to restaurants on both the north and south ends. This property is ideal for investors or buyers ready to customize it to their vision. Sold AS-IS—schedule your showing today to see the potential for yourself.
Listing Information
Property Type: Residential, Single Family Residence
Status: Active
Bedrooms: 3
Bathrooms: 1
Lot Size: 0.15 Acres
Square Feet: 1,056 sq ft
Year Built: 1972
Stories: 1 Story
Construction: Wood Siding,Wood Frame
Subdivision: Weswego Sub
Foundation: Crawlspace
County: Polk
Room Information
Main Floor
Laundry: 7x7
Bathroom 1: 4x7
Bedroom 3: 10x11
Bedroom 2: 12x11
Primary Bedroom: 12x11
Kitchen: 15x11
Living Room: 15x11
Bathrooms
Full Baths: 1
Additonal Room Information
Laundry: Inside, Laundry Room
Interior Features
Appliances: Electric Water Heater, Dryer, Microwave, Washer, Range, Refrigerator
Flooring: Carpet,Vinyl
Basement: Crawl Space
Additional Interior Features: Eat-In Kitchen, Stone Counters
Utilities
Water: Public
Sewer: Septic Tank
Other Utilities: Electricity Available,High Speed Internet Available,Municipal Utilities,Water Available
Cooling: Central Air
Heating: Electric
Exterior / Lot Features
Parking Description: Covered, driveway, Oversized
Roof: Shingle
Lot Dimensions: 50x130
Fencing: Chain Link, fenced
Additional Exterior/Lot Features: Front Porch, Rear Porch, Screened, Porch, Covered
Out Buildings: Other
Community Features
Community Features: Sidewalks
Driving Directions
From W Memorial Blvd turn onto N Brunnell Parkway, continue straight past W 2nd St, and the home will be on your Right.
Financial Considerations
Terms: Cash
Tax/Property ID: 23-28-11-033500-007080
Tax Amount: 1242.5
Tax Year: 2023
A broker reciprocity listing courtesy: LIVE FLORIDA REALTY
Based on information provided by Stellar MLS as distributed by the MLS GRID. Information from the Internet Data Exchange is provided exclusively for consumers’ personal, non-commercial use, and such information may not be used for any purpose other than to identify prospective properties consumers may be interested in purchasing. This data is deemed reliable but is not guaranteed to be accurate by Edina Realty, Inc., or by the MLS. Edina Realty, Inc., is not a multiple listing service (MLS), nor does it offer MLS access.
Copyright 2025 Stellar MLS as distributed by the MLS GRID. All Rights Reserved.
Payment Calculator
Interest rate and annual percentage rate (APR) are based on current market conditions, are for informational purposes only, are subject to change without notice and may be subject to pricing add-ons related to property type, loan amount, loan-to-value, credit score and other variables. Estimated closing costs used in the APR calculation are assumed to be paid by the borrower at closing. If the closing costs are financed, the loan, APR and payment amounts will be higher. If the down payment is less than 20%, mortgage insurance may be required and could increase the monthly payment and APR. Contact us for details. Additional loan programs may be available. Accuracy is not guaranteed, and all products may not be available in all borrower's geographical areas and are based on their individual situation. This is not a credit decision or a commitment to lend.
Sales History & Tax Summary for 1133 N Brunnell Parkway
Sales History
| Date | Price | Change |
|---|---|---|
| Currently not available. | ||
Tax Summary
| Tax Year | Estimated Market Value | Total Tax |
|---|---|---|
| Currently not available. | ||
Data powered by ATTOM Data Solutions. Copyright© 2025. Information deemed reliable but not guaranteed.
Schools
Schools nearby 1133 N Brunnell Parkway
| Schools in attendance boundaries | Grades | Distance | Rating |
|---|---|---|---|
| Loading... | |||
| Schools nearby | Grades | Distance | Rating |
|---|---|---|---|
| Loading... | |||
Data powered by ATTOM Data Solutions. Copyright© 2025. Information deemed reliable but not guaranteed.
The schools shown represent both the assigned schools and schools by distance based on local school and district attendance boundaries. Attendance boundaries change based on various factors and proximity does not guarantee enrollment eligibility. Please consult your real estate agent and/or the school district to confirm the schools this property is zoned to attend. Information is deemed reliable but not guaranteed.
SchoolDigger ® Rating
The SchoolDigger rating system is a 1-5 scale with 5 as the highest rating. SchoolDigger ranks schools based on test scores supplied by each state's Department of Education. They calculate an average standard score by normalizing and averaging each school's test scores across all tests and grades.
Coming soon properties will soon be on the market, but are not yet available for showings.