1135 Park Ridge Circle Kissimmee, FL 34746
For Sale MLS# S5101269
3 beds 3 baths 1,277 sq ft Townhouse/Twinhome
Details for 1135 Park Ridge Circle
MLS# S5101269
Description for 1135 Park Ridge Circle, Kissimmee, FL, 34746
***MOTIVATED SELLERS***! Introducing a prime short-term rental opportunity - a stunning townhouse completed renovated boasting 3 bedrooms and 2.5 bathrooms. This exquisite property is perfect for those seeking a comfortable and convenient stay in the heart of the city. As you step inside, you are greeted by a spacious living area bathed in natural light. Conveniently located in a vibrant neighborhood, you will find an abundance of amenities and attractions within close proximity. Whether it's trendy restaurants, boutique shops, or lively entertainment options you seek, everything is just a stone's throw away. Don't miss out on this fantastic opportunity to experience stylish living. Enjoy!
Listing Information
Property Type: Residential, Townhouse
Status: Active
Bedrooms: 3
Bathrooms: 3
Lot Size: 0.04 Acres
Square Feet: 1,277 sq ft
Year Built: 2002
Stories: 2 Story
Construction: Block,Concrete,Stucco
Construction Display: New Construction
Subdivision: Lake Berkley Resort Villas Ph 2
Foundation: Slab
County: Osceola
Construction Status: New Construction
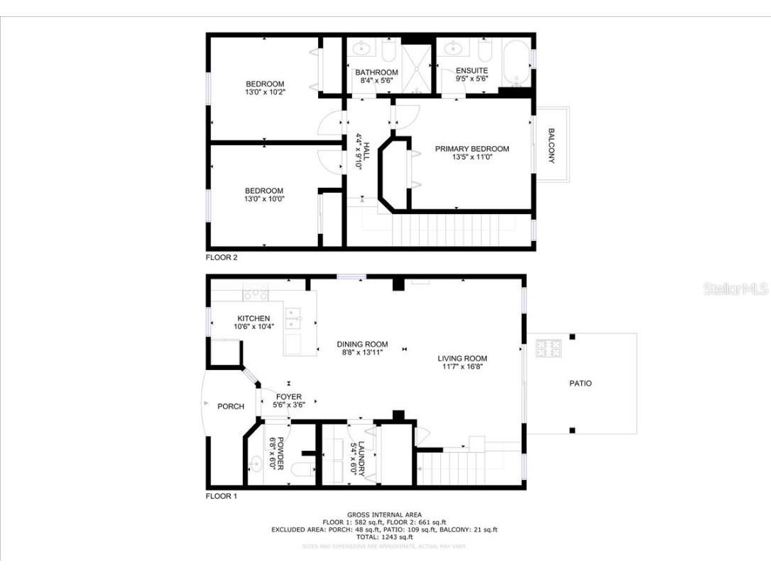
Room Information
Main Floor
Kitchen: 10x10
Great Room: 18x12
Upper Floor
Bedroom 3: 12x10
Bedroom 2: 12x10
Primary Bedroom: 14x12
Bathrooms
Full Baths: 2
1/2 Baths: 1
Additonal Room Information
Laundry: Laundry Room
Interior Features
Appliances: Range, Washer, Dishwasher, Dryer, Microwave
Flooring: Engineered Hardwood
Additional Interior Features: Cathedral Ceiling(s)
Utilities
Sewer: Public Sewer
Other Utilities: Other,Water Not Available
Cooling: Central Air
Heating: Electric
Exterior / Lot Features
Roof: Tile
Pool: Community
Lot View: Park/Greenbelt,Pool,Trees/Woods
Additional Exterior/Lot Features: Lighting, Balcony, Balcony, Corner Lot
Community Features
Community Features: Pool, Playground
HOA Dues Include: Pool(s)
Homeowners Association: Yes
HOA Dues: $460 / Monthly
Driving Directions
Take John Young Pkwy to M.L.K. Jr Blvd. Continue on M.L.K. Jr Blvd to US-192 W/W Vine St. Continue on US-192 W/W Vine St to N Roma Way. Drive to Park Ridge Cir.
Financial Considerations
Terms: Cash,Conventional
Tax/Property ID: 24-25-28-3759-0012-0010
Tax Amount: 3817.79
Tax Year: 2023
A broker reciprocity listing courtesy: LA ROSA REALTY KISSIMMEE
Based on information provided by Stellar MLS as distributed by the MLS GRID. Information from the Internet Data Exchange is provided exclusively for consumers’ personal, non-commercial use, and such information may not be used for any purpose other than to identify prospective properties consumers may be interested in purchasing. This data is deemed reliable but is not guaranteed to be accurate by Edina Realty, Inc., or by the MLS. Edina Realty, Inc., is not a multiple listing service (MLS), nor does it offer MLS access.
Copyright 2026 Stellar MLS as distributed by the MLS GRID. All Rights Reserved.
Payment Calculator
Interest rate and annual percentage rate (APR) are based on current market conditions, are for informational purposes only, are subject to change without notice and may be subject to pricing add-ons related to property type, loan amount, loan-to-value, credit score and other variables. Estimated closing costs used in the APR calculation are assumed to be paid by the borrower at closing. If the closing costs are financed, the loan, APR and payment amounts will be higher. If the down payment is less than 20%, mortgage insurance may be required and could increase the monthly payment and APR. Contact us for details. Additional loan programs may be available. Accuracy is not guaranteed, and all products may not be available in all borrower's geographical areas and are based on their individual situation. This is not a credit decision or a commitment to lend.
Sales History & Tax Summary for 1135 Park Ridge Circle
Sales History
| Date | Price | |
|---|---|---|
| Currently not available. | ||
Tax Summary
| Tax Year | Estimated Market Value | Total Tax |
|---|---|---|
| Currently not available. | ||
Data powered by ATTOM Data Solutions. Copyright© 2026. Information deemed reliable but not guaranteed.
Schools
Schools nearby 1135 Park Ridge Circle
| Schools in attendance boundaries | Grades | Distance | Rating |
|---|---|---|---|
| Loading... | |||
| Schools nearby | Grades | Distance | Rating |
|---|---|---|---|
| Loading... | |||
Data powered by ATTOM Data Solutions. Copyright© 2026. Information deemed reliable but not guaranteed.
The schools shown represent both the assigned schools and schools by distance based on local school and district attendance boundaries. Attendance boundaries change based on various factors and proximity does not guarantee enrollment eligibility. Please consult your real estate agent and/or the school district to confirm the schools this property is zoned to attend. Information is deemed reliable but not guaranteed.
SchoolDigger ® Rating
The SchoolDigger rating system is a 1-5 scale with 5 as the highest rating. SchoolDigger ranks schools based on test scores supplied by each state's Department of Education. They calculate an average standard score by normalizing and averaging each school's test scores across all tests and grades.
Coming soon properties will soon be on the market, but are not yet available for showings.