1135 Range Road Englewood, FL 34224
For Sale MLS# D6143941
2 beds 2 baths 1,319 sq ft Single Family
Details for 1135 Range Road
MLS# D6143941
Description for 1135 Range Road, Englewood, FL, 34224
Your Private Slice of Paradise! Imagine the privacy and possibilities on this expansive 1.29-acre property in Sarasota County. The charming 2-bedroom, 2-bath home features an updated kitchen and sits on a generous 231’ x 239’ lot with city water and sewer already in place. The fully fenced backyard provides peace of mind, while a circular driveway makes access a breeze. Bring all your toys—there’s plenty of room for RVs, boats, or even to add an in-law suite or detached garage. Storage is already abundant with two smaller sheds plus a 10x30 shed. With 3 vacant lots across the street (which are also owned by the seller), you’ll love the open, spacious feel. Just minutes from beaches, shopping, dining, and everything you need—this is your chance to make this home your own retreat!
Listing Information
Property Type: Residential, Single Family Residence
Status: Active
Bedrooms: 2
Bathrooms: 2
Lot Size: 1.29 Acres
Square Feet: 1,319 sq ft
Year Built: 1975
Garage: Yes
Stories: 1 Story
Construction: Block
Construction Display: New Construction
Subdivision: None
Foundation: Slab
County: Sarasota
Construction Status: New Construction
School Information
Elementary: Vineland Elementary
Middle: L.A. Ainger Middle
High: Lemon Bay High
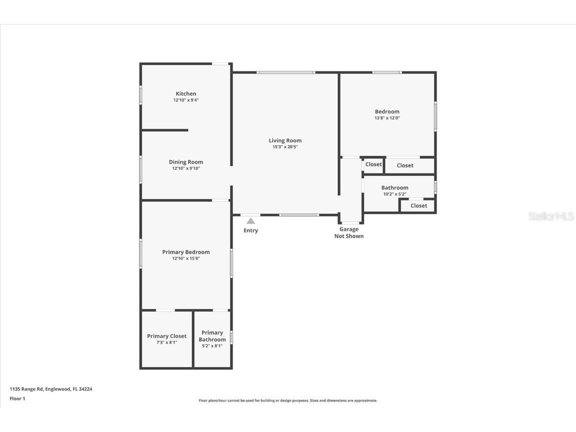
Room Information
Main Floor
Bedroom 2: 13x12
Bathroom 1: 4x8
Primary Bedroom: 12x16
Living Room: 16x22
Kitchen: 15x22
Bathrooms
Full Baths: 2
Additonal Room Information
Laundry: In Garage
Interior Features
Appliances: Electric Water Heater, Microwave, Range, Refrigerator, Dishwasher
Flooring: Carpet,Ceramic Tile
Additional Interior Features: Walk-In Closet(s), Built-in Features, Ceiling Fan(s), Central Vacuum, Solid Surface Counters, Stone Counters, Wood Cabinets
Utilities
Water: Public
Sewer: Public Sewer
Other Utilities: Electricity Connected,Municipal Utilities
Cooling: Ceiling Fan(s), Central Air
Heating: Central
Exterior / Lot Features
Attached Garage: Attached Garage
Garage Spaces: 1
Parking Description: Garage Door Opener, Garage, Golf Cart Garage
Roof: Shingle
Fencing: fenced
Additional Exterior/Lot Features: Storage, Lighting, Screened, Patio, Porch, Covered, Deck, Landscaped, Private Road, City Lot, Dead End, Oversized Lot, Flood Zone, Outside City Limits
Out Buildings: Shed(s), Storage, Barn(s)
Community Features
Security Features: Smoke Detector(s)
Driving Directions
From 776 turn onto Flamingo drive until it dead ends. Take a right, then first left onto Range Road, last house on the right. Sign in yard
Financial Considerations
Terms: Cash,Conventional
Tax/Property ID: 0858003026
Tax Amount: 1502
Tax Year: 2024
A broker reciprocity listing courtesy: PARADISE EXCLUSIVE INC
Based on information provided by Stellar MLS as distributed by the MLS GRID. Information from the Internet Data Exchange is provided exclusively for consumers’ personal, non-commercial use, and such information may not be used for any purpose other than to identify prospective properties consumers may be interested in purchasing. This data is deemed reliable but is not guaranteed to be accurate by Edina Realty, Inc., or by the MLS. Edina Realty, Inc., is not a multiple listing service (MLS), nor does it offer MLS access.
Copyright 2026 Stellar MLS as distributed by the MLS GRID. All Rights Reserved.
Payment Calculator
Interest rate and annual percentage rate (APR) are based on current market conditions, are for informational purposes only, are subject to change without notice and may be subject to pricing add-ons related to property type, loan amount, loan-to-value, credit score and other variables. Estimated closing costs used in the APR calculation are assumed to be paid by the borrower at closing. If the closing costs are financed, the loan, APR and payment amounts will be higher. If the down payment is less than 20%, mortgage insurance may be required and could increase the monthly payment and APR. Contact us for details. Additional loan programs may be available. Accuracy is not guaranteed, and all products may not be available in all borrower's geographical areas and are based on their individual situation. This is not a credit decision or a commitment to lend.
Sales History & Tax Summary for 1135 Range Road
Sales History
| Date | Price | |
|---|---|---|
| Currently not available. | ||
Tax Summary
| Tax Year | Estimated Market Value | Total Tax |
|---|---|---|
| Currently not available. | ||
Data powered by ATTOM Data Solutions. Copyright© 2026. Information deemed reliable but not guaranteed.
Schools
Schools nearby 1135 Range Road
| Schools in attendance boundaries | Grades | Distance | Rating |
|---|---|---|---|
| Loading... | |||
| Schools nearby | Grades | Distance | Rating |
|---|---|---|---|
| Loading... | |||
Data powered by ATTOM Data Solutions. Copyright© 2026. Information deemed reliable but not guaranteed.
The schools shown represent both the assigned schools and schools by distance based on local school and district attendance boundaries. Attendance boundaries change based on various factors and proximity does not guarantee enrollment eligibility. Please consult your real estate agent and/or the school district to confirm the schools this property is zoned to attend. Information is deemed reliable but not guaranteed.
SchoolDigger ® Rating
The SchoolDigger rating system is a 1-5 scale with 5 as the highest rating. SchoolDigger ranks schools based on test scores supplied by each state's Department of Education. They calculate an average standard score by normalizing and averaging each school's test scores across all tests and grades.
Coming soon properties will soon be on the market, but are not yet available for showings.