1149 S Beach Circle Kissimmee, FL 34746
For Sale MLS# S5123352
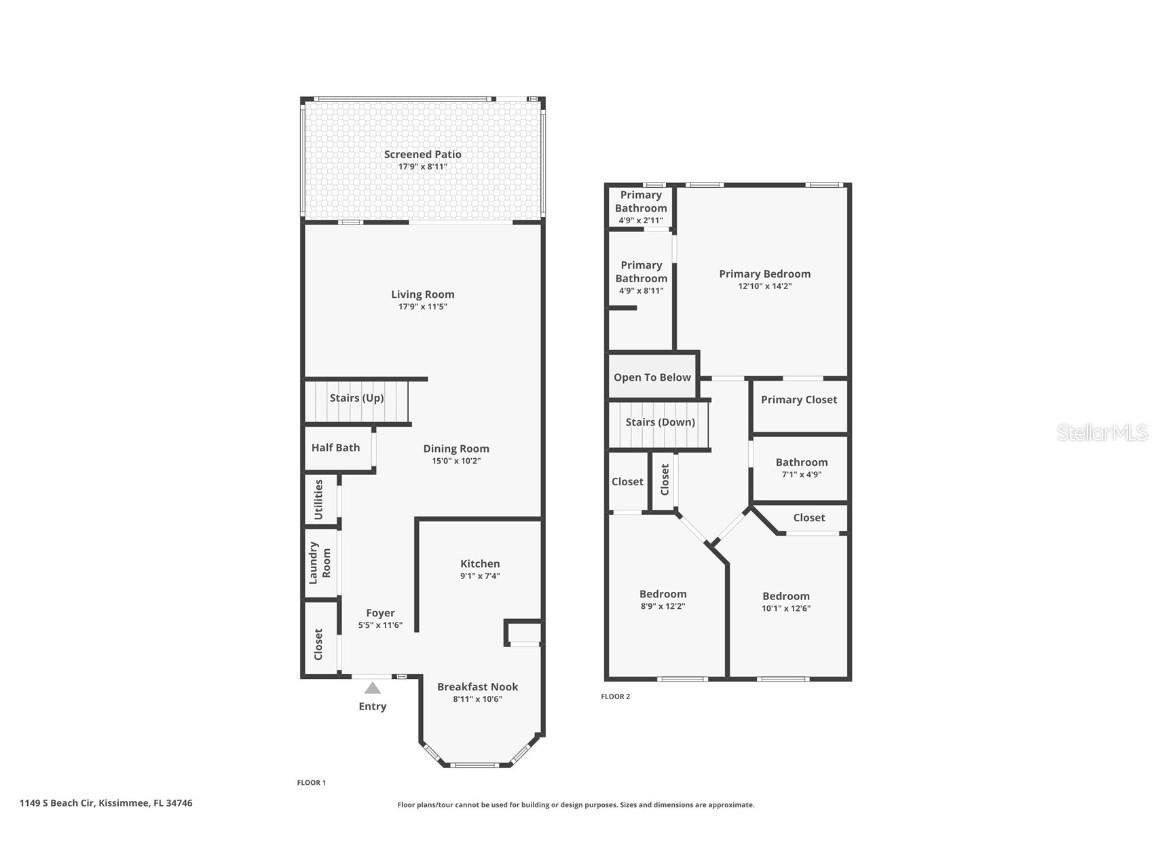
3 beds 3 baths 1,461 sq ft Townhouse/Twinhome
Details for 1149 S Beach Circle
MLS# S5123352
Description for 1149 S Beach Circle, Kissimmee, FL, 34746
This 3-bedroom, 2.5 bathroom fully furnished townhouse in the gated Fiesta Key resort community is a must see! Picture yourself sipping sunset drinks on your screened-in patio, gazing over the peaceful pond – pure magic! Forget the Florida heat; a brand-new AC, installed in December 2021, ensures cool comfort. Fiesta Key elevates your experience with a sparkling community pool, now featuring brand new poolside chairs, and a fitness center boasting new gym equipment. Add in the tennis courts and lively clubhouse, and you've got endless entertainment! Plus, you're just moments from Orlando's world-class attractions, delectable dining, and fantastic shopping. This isn't just a townhouse; it's your gateway to unforgettable vacations and a smart investment in sunshine and fun!
Listing Information
Property Type: Residential, Townhouse
Status: Active
Bedrooms: 3
Bathrooms: 3
Lot Size: 0.04 Acres
Square Feet: 1,461 sq ft
Year Built: 2006
Stories: 2 Story
Construction: Block,Concrete,Stucco
Subdivision: Fiesta Key
Foundation: Slab
County: Osceola
Room Information
Main Floor
Dining Room: 10x15
Living Room: 11x17
Kitchen: 7x9
Upper Floor
Bedroom 3: 12x8
Bedroom 2: 12x10
Primary Bedroom: 14x12
Bathrooms
Full Baths: 2
1/2 Baths: 1
Additonal Room Information
Laundry: Laundry Closet
Interior Features
Appliances: Washer, Dishwasher, Dryer, Microwave, Range, Refrigerator
Flooring: Carpet,Tile,Vinyl
Additional Interior Features: Ceiling Fan(s)
Utilities
Water: Public
Sewer: Public Sewer
Other Utilities: Cable Available,Electricity Available,High Speed Internet Available,Municipal Utilities,Phone Available,Water Available
Cooling: Ceiling Fan(s), Central Air
Heating: Central, Electric
Exterior / Lot Features
Roof: Tile
Pool: Community
Lot View: Pond,Water
Additional Exterior/Lot Features: Patio, Screened
Community Features
Community Features: Sidewalks, Pool, Tennis Court(s), Playground, Clubhouse
HOA Dues Include: Recreation Facilities, Maintenance Grounds
Homeowners Association: Yes
HOA Dues: $295 / Monthly
Driving Directions
Take I-4 W, FL-535 S and N Poinciana Blvd to Declaration Dr in Osceola County. Follow Declaration Dr to S Beach Cir in Kissimmee
Financial Considerations
Terms: Cash,Conventional,FHA,VA Loan
Tax/Property ID: 25-25-28-1425-0001-2120
Tax Amount: 3575
Tax Year: 2024
A broker reciprocity listing courtesy: TEAM DONOVAN
Based on information provided by Stellar MLS as distributed by the MLS GRID. Information from the Internet Data Exchange is provided exclusively for consumers’ personal, non-commercial use, and such information may not be used for any purpose other than to identify prospective properties consumers may be interested in purchasing. This data is deemed reliable but is not guaranteed to be accurate by Edina Realty, Inc., or by the MLS. Edina Realty, Inc., is not a multiple listing service (MLS), nor does it offer MLS access.
Copyright 2026 Stellar MLS as distributed by the MLS GRID. All Rights Reserved.
Payment Calculator
Interest rate and annual percentage rate (APR) are based on current market conditions, are for informational purposes only, are subject to change without notice and may be subject to pricing add-ons related to property type, loan amount, loan-to-value, credit score and other variables. Estimated closing costs used in the APR calculation are assumed to be paid by the borrower at closing. If the closing costs are financed, the loan, APR and payment amounts will be higher. If the down payment is less than 20%, mortgage insurance may be required and could increase the monthly payment and APR. Contact us for details. Additional loan programs may be available. Accuracy is not guaranteed, and all products may not be available in all borrower's geographical areas and are based on their individual situation. This is not a credit decision or a commitment to lend.
Sales History & Tax Summary for 1149 S Beach Circle
Sales History
| Date | Price | |
|---|---|---|
| Currently not available. | ||
Tax Summary
| Tax Year | Estimated Market Value | Total Tax |
|---|---|---|
| Currently not available. | ||
Data powered by ATTOM Data Solutions. Copyright© 2026. Information deemed reliable but not guaranteed.
Schools
Schools nearby 1149 S Beach Circle
| Schools in attendance boundaries | Grades | Distance | Rating |
|---|---|---|---|
| Loading... | |||
| Schools nearby | Grades | Distance | Rating |
|---|---|---|---|
| Loading... | |||
Data powered by ATTOM Data Solutions. Copyright© 2026. Information deemed reliable but not guaranteed.
The schools shown represent both the assigned schools and schools by distance based on local school and district attendance boundaries. Attendance boundaries change based on various factors and proximity does not guarantee enrollment eligibility. Please consult your real estate agent and/or the school district to confirm the schools this property is zoned to attend. Information is deemed reliable but not guaranteed.
SchoolDigger ® Rating
The SchoolDigger rating system is a 1-5 scale with 5 as the highest rating. SchoolDigger ranks schools based on test scores supplied by each state's Department of Education. They calculate an average standard score by normalizing and averaging each school's test scores across all tests and grades.
Coming soon properties will soon be on the market, but are not yet available for showings.