$484,000
1151 Creek Nine Drive North Port, FL 34291
For Sale MLS# N6143356
3 beds 2 baths 2,579 sq ft Single Family
Details for 1151 Creek Nine Drive
MLS# N6143356
Description for 1151 Creek Nine Drive, North Port, FL, 34291
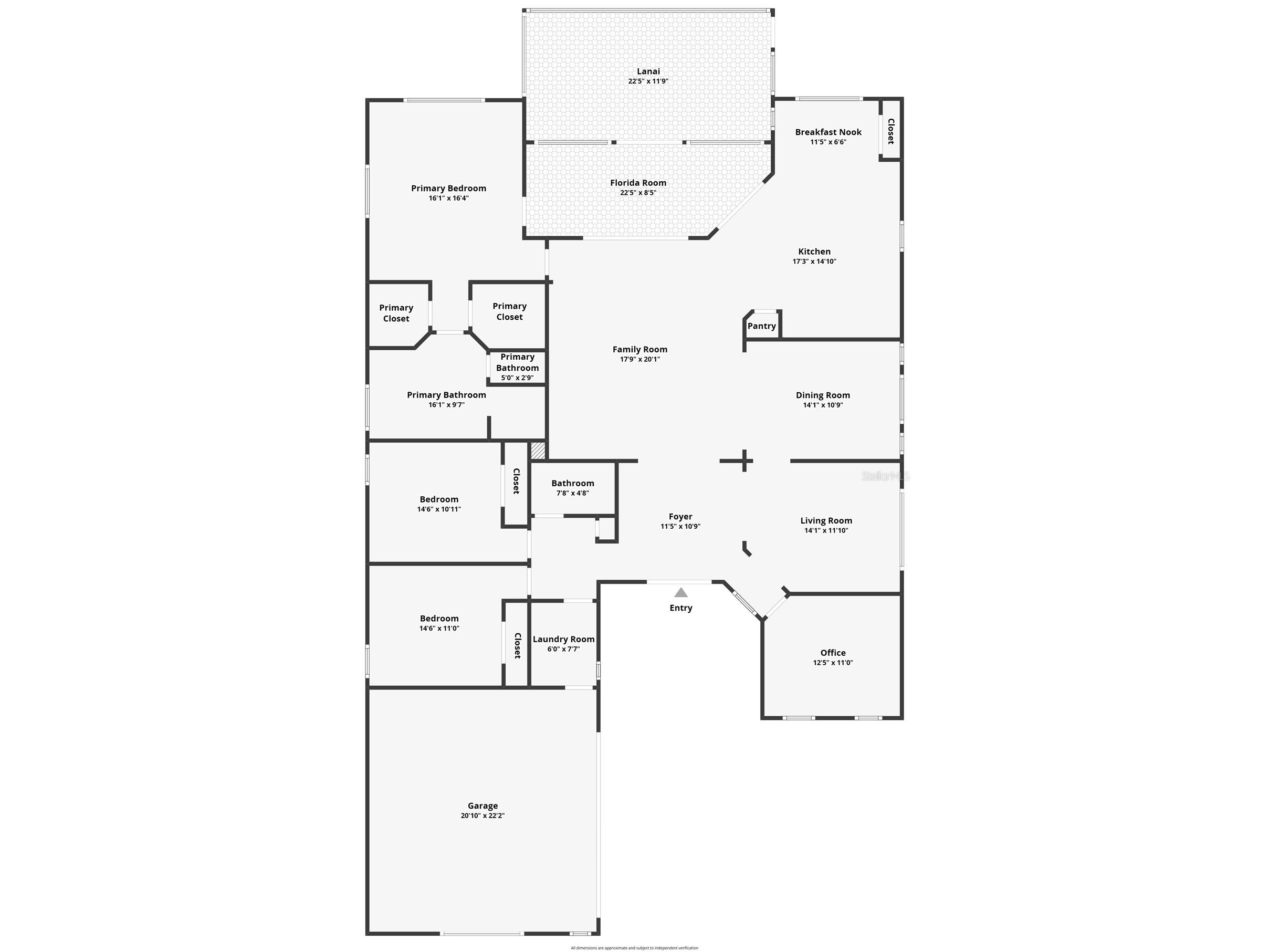
**HERON CREEK GOLF& CC ** Tranquility Found! This IMMACULATE 3BED + DEN 2579 SQ FT Estate Home is like a breath of fresh air, it is light & bright, neat as a pin and is situated on a homesite w/ Premier WATER & GOLF Views! **NEW TILE ROOF (2023) ** whole house GENERATOR ** FULL HURRICANE PROTECTION** FLOOD ZONE X (flood insurance mot required) This quality-built Ryland home has a thoughtfully designed floorplan that is well suited to easy living & entertaining alike. It features 3 BEDROOMS, 2 BATHS, a Large DEN that could be converted to a 4TH BEDROOM, a spacious Island kitchen, formal dining room, private primary bedroom with en suite, a central Great room, a fabulous 4 seasons FLORIDA ROOM, extended lanai &side load 2CAR GARAGE. With almost 2600 sqft of living space under air the OPEN CONCEPT design flows seamlessly making entertaining & relaxing effortless! This homes curb appeal is off the charts from the lushly landscaped lot to the new barrel tile roof to the high arched columned entry and a bevy of eye-catching architectural details this home will certainly turn the heads of even the most discerning buyers! Once you walk in through the double entry door it's like a Zen like calm envelopes you....because you feel welcomed, you feel at home! She’s full of good happy vibes and you can tell she’s been loved and meticulously maintained! This home is so light and bright and open, with high tray ceilings painted in watery blue, cool ceramic tile flooring through the main living areas, and crisp classic a neutral paint color that lets the decor set the scene for comfort & serenity. Upon entering the foyer, the den is to the right and makes a great home office or could be a hobby or craft room. There are 2 guest bedrooms w/shared bath that will make visitors feel right at home, there i a dedicated laundry room, a dining room that seats 8-10, an island kitchen w/ a breakfast bar & a sun filled dinette overlooking the lake & golf course! The island kitchen has classic light maple cabinets with pull-outs, 2 pantries, a convenient built in desk, newer appliances, (NATURAL GAS is available at range ) and classic solid surface counter tops. The Great Room Opens wide to the gorgeous all seasons FLORIDA ROOM complete with HIGH IMPACT GLASS bringing the outside in. There is a wonderful, screened lanai area off of the Florida room where you can lounge in the sun or spend an eve taking in a majestic sunset! The Primary bedroom also has access to the Florida room. The primary features easy care laminate flooring, tray ceilings, a picturesque stained glass clerestory window & walk-in closet. The en suite features a garden tub, spacious shower, & dual vanities. NOTE: There is ample room on the lot to build the pool of your dreams or simply enjoy the Club pool for carefree living! Heron Creek offers exceptional amenities including a 21,000 sq ft club house, 27 holes of Championship golf Arthur Hills design, resort style pool & spa,a robust social activity calendar, fitness center, Tennis courts & formal & casual dining options! Club Membership is required w/3 membership levels offered beginning at $276/month.*NO CDD FEES * LOW HOA FEES iINC: lawn care, trimming, mulching, irrigation, TV and FIBER OPTIC INTERNET & Gated entry, conveniently located w/easy access to I-75 &US-41, the Cocoa Plum Shopping , myakkahatchee trails,WELLEN PARK, Braves Stadium, COSTCO & just minutes to the 507 MILLION dollar Sarasota Memorial Hospital now under construction!
Listing Information
Property Type: Residential, Single Family Residence
Status: Active
Bedrooms: 3
Bathrooms: 2
Lot Size: 0.22 Acres
Square Feet: 2,579 sq ft
Year Built: 2004
Garage: Yes
Stories: 1 Story
Construction: Block
Subdivision: Heron Creek
Foundation: Slab
County: Sarasota
School Information
Elementary: Lamarque Elementary
Middle: Heron Creek Middle
High: North Port High
Room Information
Main Floor
Florida Room: 22x8
Dining Room: 14x11
Living Room: 14x12
Primary Bedroom: 16x14
Bedroom 2: 12x11
Bedroom 1: 12x11
Kitchen: 15x12
Office: 12x11
Dinette: 9x7
Foyer: 6x6
Family Room: 21x17
Bathrooms
Full Baths: 2
Additonal Room Information
Laundry: Inside, Laundry Room
Interior Features
Appliances: Gas Water Heater, Washer, Microwave, Range, Refrigerator, Dishwasher, Disposal, Dryer
Flooring: Laminate,Tile
Doors/Windows: Blinds
Additional Interior Features: Tray Ceiling(s), Built-in Features, High Ceilings, Walk-In Closet(s), Ceiling Fan(s), Eat-In Kitchen, Separate/Formal Dining Room, Open Floorplan, Separate/Formal Living Room, Solid Surface Counters, Kitchen/Family Room Combo, Wood Cabinets
Utilities
Water: Public
Sewer: Public Sewer
Other Utilities: Cable Connected,Electricity Connected,Natural Gas Available,Natural Gas Connected,Underground Utilities
Cooling: Ceiling Fan(s), Central Air, Attic Fan
Heating: Central, Electric
Exterior / Lot Features
Attached Garage: Attached Garage
Garage Spaces: 2
Parking Description: Garage, Garage Door Opener, Garage Faces Side
Roof: Tile
Pool: Community
Lot View: Lake,Water
Additional Exterior/Lot Features: Storm/Security Shutters, Landscaped
Waterfront Details
Water Front Features: Lake Front
Community Features
Community Features: Pool, Tennis Court(s), Sidewalks, Clubhouse, Golf, Street Lights, Gated, Fitness, Golf Carts OK
Security Features: Gated Community, Smoke Detector(s)
Association Amenities: Gated
HOA Dues Include: Maintenance Grounds, Road Maintenance, Cable TV, Internet
Homeowners Association: Yes
HOA Dues: $1,221 / Quarterly
Driving Directions
FROM 1 - 75 FOLLOW SOUTH ON SUMTER BLVD TO THE INTERSECTION OF CREEK NINE DRIVE AND STH SUMTER BLVD. TURN RIGHT ON CREEK NINE TO VISITORS GATE FOR HERON CREEK GOLF AND COUNTRY CLUB. FOLLOW CREEK NINE TO 1155 ON THE RIGHT
Financial Considerations
Terms: Cash,Conventional,VA Loan
Tax/Property ID: 0977040702
Tax Amount: 3031
Tax Year: 2025
A broker reciprocity listing courtesy: POINTE OF PALMS REAL ESTATE
Based on information provided by Stellar MLS as distributed by the MLS GRID. Information from the Internet Data Exchange is provided exclusively for consumers’ personal, non-commercial use, and such information may not be used for any purpose other than to identify prospective properties consumers may be interested in purchasing. This data is deemed reliable but is not guaranteed to be accurate by Edina Realty, Inc., or by the MLS. Edina Realty, Inc., is not a multiple listing service (MLS), nor does it offer MLS access.
Copyright 2026 Stellar MLS as distributed by the MLS GRID. All Rights Reserved.
Payment Calculator
Interest rate and annual percentage rate (APR) are based on current market conditions, are for informational purposes only, are subject to change without notice and may be subject to pricing add-ons related to property type, loan amount, loan-to-value, credit score and other variables. Estimated closing costs used in the APR calculation are assumed to be paid by the borrower at closing. If the closing costs are financed, the loan, APR and payment amounts will be higher. If the down payment is less than 20%, mortgage insurance may be required and could increase the monthly payment and APR. Contact us for details. Additional loan programs may be available. Accuracy is not guaranteed, and all products may not be available in all borrower's geographical areas and are based on their individual situation. This is not a credit decision or a commitment to lend.
Sales History & Tax Summary for 1151 Creek Nine Drive
Sales History
| Date | Price | |
|---|---|---|
| Currently not available. | ||
Tax Summary
| Tax Year | Estimated Market Value | Total Tax |
|---|---|---|
| Currently not available. | ||
Data powered by ATTOM Data Solutions. Copyright© 2026. Information deemed reliable but not guaranteed.
Schools
Schools nearby 1151 Creek Nine Drive
| Schools in attendance boundaries | Grades | Distance | Rating |
|---|---|---|---|
| Loading... | |||
| Schools nearby | Grades | Distance | Rating |
|---|---|---|---|
| Loading... | |||
Data powered by ATTOM Data Solutions. Copyright© 2026. Information deemed reliable but not guaranteed.
The schools shown represent both the assigned schools and schools by distance based on local school and district attendance boundaries. Attendance boundaries change based on various factors and proximity does not guarantee enrollment eligibility. Please consult your real estate agent and/or the school district to confirm the schools this property is zoned to attend. Information is deemed reliable but not guaranteed.
SchoolDigger ® Rating
The SchoolDigger rating system is a 1-5 scale with 5 as the highest rating. SchoolDigger ranks schools based on test scores supplied by each state's Department of Education. They calculate an average standard score by normalizing and averaging each school's test scores across all tests and grades.
Coming soon properties will soon be on the market, but are not yet available for showings.