11562 72nd Street NE Otsego, MN 55330
For Sale MLS# 7044414
5 beds 3 baths 2,505 sq ft Single Family
Details for 11562 72nd Street NE
MLS# 7044414
Description for 11562 72nd Street NE, Otsego, MN, 55330
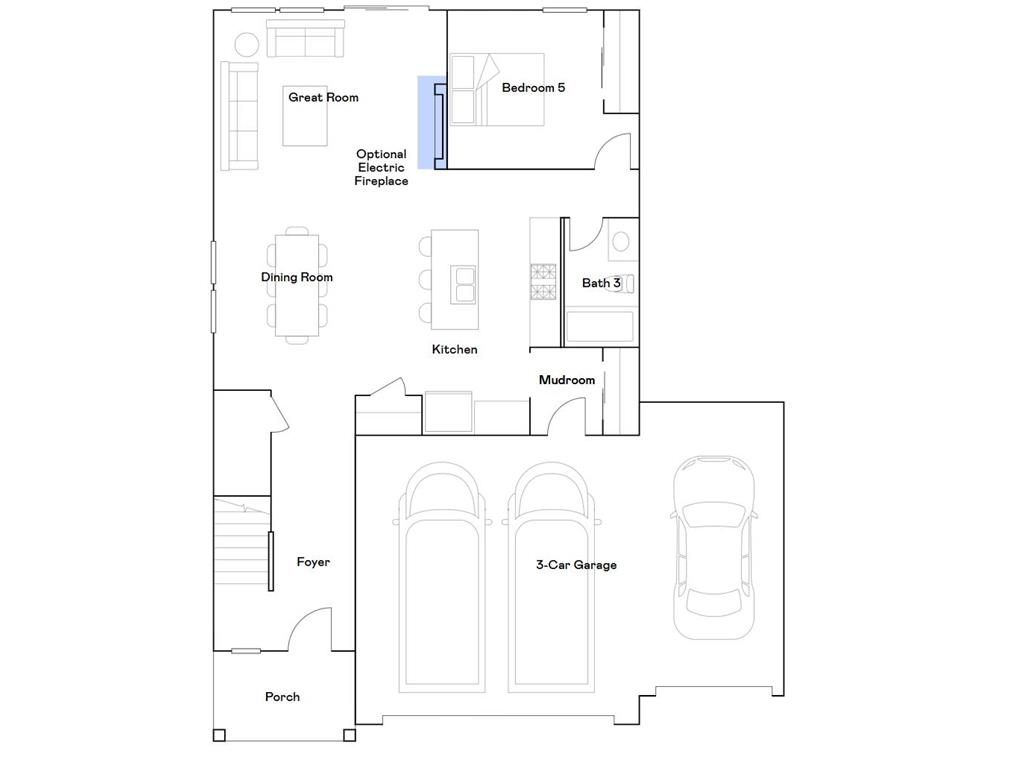
This home is under construction and will be completed in July! This two-story, 2,505-square-foot home offers standout living features for today’s buyers. Step inside to an inviting open layout where the spacious Great Room flows seamlessly into the dining area and modern kitchen, perfect for entertaining or quiet evenings in. An electric fireplace adds cozy ambiance, while a private office and convenient mudroom deliver everyday functionality. Upstairs, a central loft provides extra living space, joined by four bedrooms including a generous owner’s suite with walk-in closet and luxurious bath. With five bedrooms in total and a three-car garage for all your storage needs, this plan brings together comfort, versatility and style. Opportunities like this go quickly—schedule your visit before it’s gone!
Listing Information
Property Type: Residential, Single Family
Status: Active
Bedrooms: 5
Bathrooms: 3
Lot Size: 0.20 Acres
Square Feet: 2,505 sq ft
Year Built: 2026
Foundation: 1,055 sq ft
Garage: Yes
Stories: 2 Stories
Date Available: 7/9/2026
Construction Display: New Construction
Completion date: 2026-07-09T05:00:00Z
Subdivision: Prairie Crossing
Builder: LENNAR
County: Wright
Days On Market: 34
Construction Status: Under Construc/Spec Homes
School Information
District: 728 - Elk River
Room Information
Main Floor
Bedroom 5: 11x11
Dining Room: 14x15
Kitchen: 10x18
Living Room: 16x11
Upper Floor
Bedroom 1: 14x16
Bedroom 2: 11x11
Bedroom 3: 11x13
Bedroom 4: 14x11
Loft: 15x15
Bathrooms
Full Baths: 2
3/4 Baths: 1
Additonal Room Information
Family: 2 or More,Family Room,Loft,Main Level
Dining: Informal Dining Room,Kitchen/Dining Room,Living/Dining Room
Laundry: Washer Hookup, Laundry Room, Upper Level, Gas Dryer Hookup
Bath Description: 3/4 Primary,Main Floor Full Bath,Upper Level Full Bath
Interior Features
Square Footage above: 2,505 sq ft
Appliances: Stainless Steel Appliances, Tankless Water Heater, Range, Refrigerator, Washer, Microwave, Other, Dishwasher, Disposal, Dryer, Air-To-Air Exchanger
Fireplaces: 1, Living Room, Electric
Additional Interior Features: Washer/Dryer Hookup, Kitchen Center Island, Walk-In Closet, 3 BR on One Level, 4 BR on One Level, Main Floor Bedroom, Paneled Doors, 2nd Floor Laundry, Primary Bdr Suite
Utilities
Water: City Water/Connected
Sewer: City Sewer/Connected
Cooling: Central
Heating: Natural Gas, Fireplace, Forced Air
Exterior / Lot Features
Attached Garage: Attached Garage
Garage Spaces: 3
Parking Description: Attached Garage, Driveway - Asphalt, Garage Door Opener, Garage Sq Ft - 603.0
Exterior: Other, Vinyl
Roof: Asphalt Shingles, Age 8 Years or Less
Lot Dimensions: TBD
Zoning: Residential-Single Family
Additional Exterior/Lot Features: Porch, In-Ground Sprinkler, Sod Included in Price, Underground Utilities, Road Frontage - Paved Streets, Curbs, City
Driving Directions
Take I-94 W to 60th St NE/County Rd 137 NE in Albertville. Take the County Rd 137 exit from I-94 W. Take Maciver Ave NE to 70th St NE in Otsego
Financial Considerations
Tax/Property ID: TBD
Tax Year: 2026
HomeStead Description: Non-Homesteaded
A broker reciprocity listing courtesy: Lennar Sales Corp
The data relating to real estate for sale on this web site comes in part from the Broker Reciprocity℠ Program of the Regional Multiple Listing Service of Minnesota, Inc. Real estate listings held by brokerage firms other than Edina Realty, Inc. are marked with the Broker Reciprocity℠ logo or the Broker Reciprocity℠ thumbnail and detailed information about them includes the name of the listing brokers. Edina Realty, Inc. is not a Multiple Listing Service (MLS), nor does it offer MLS access. This website is a service of Edina Realty, Inc., a broker Participant of the Regional Multiple Listing Service of Minnesota, Inc. IDX information is provided exclusively for consumers personal, non-commercial use and may not be used for any purpose other than to identify prospective properties consumers may be interested in purchasing. Open House information is subject to change without notice. Information deemed reliable but not guaranteed.
Copyright 2026 Regional Multiple Listing Service of Minnesota, Inc. All Rights Reserved.
Payment Calculator
Interest rate and annual percentage rate (APR) are based on current market conditions, are for informational purposes only, are subject to change without notice and may be subject to pricing add-ons related to property type, loan amount, loan-to-value, credit score and other variables. Estimated closing costs used in the APR calculation are assumed to be paid by the borrower at closing. If the closing costs are financed, the loan, APR and payment amounts will be higher. If the down payment is less than 20%, mortgage insurance may be required and could increase the monthly payment and APR. Contact us for details. Additional loan programs may be available. Accuracy is not guaranteed, and all products may not be available in all borrower's geographical areas and are based on their individual situation. This is not a credit decision or a commitment to lend.
Sales History & Tax Summary for 11562 72nd Street NE
Sales History
| Date | Price | |
|---|---|---|
| Currently not available. | ||
Tax Summary
| Tax Year | Estimated Market Value | Total Tax |
|---|---|---|
| Currently not available. | ||
Data powered by ATTOM Data Solutions. Copyright© 2026. Information deemed reliable but not guaranteed.
Schools
Schools nearby 11562 72nd Street NE
| Schools in attendance boundaries | Grades | Distance | Rating |
|---|---|---|---|
| Loading... | |||
| Schools nearby | Grades | Distance | Rating |
|---|---|---|---|
| Loading... | |||
Data powered by ATTOM Data Solutions. Copyright© 2026. Information deemed reliable but not guaranteed.
The schools shown represent both the assigned schools and schools by distance based on local school and district attendance boundaries. Attendance boundaries change based on various factors and proximity does not guarantee enrollment eligibility. Please consult your real estate agent and/or the school district to confirm the schools this property is zoned to attend. Information is deemed reliable but not guaranteed.
SchoolDigger ® Rating
The SchoolDigger rating system is a 1-5 scale with 5 as the highest rating. SchoolDigger ranks schools based on test scores supplied by each state's Department of Education. They calculate an average standard score by normalizing and averaging each school's test scores across all tests and grades.
Coming soon properties will soon be on the market, but are not yet available for showings.