11590 Shipwatch Drive #848 Largo, FL 33774
For Sale MLS# TB8422220
2 beds 2 baths 1,445 sq ft Condo
Details for 11590 Shipwatch Drive #848
MLS# TB8422220
Description for 11590 Shipwatch Drive #848, Largo, FL, 33774
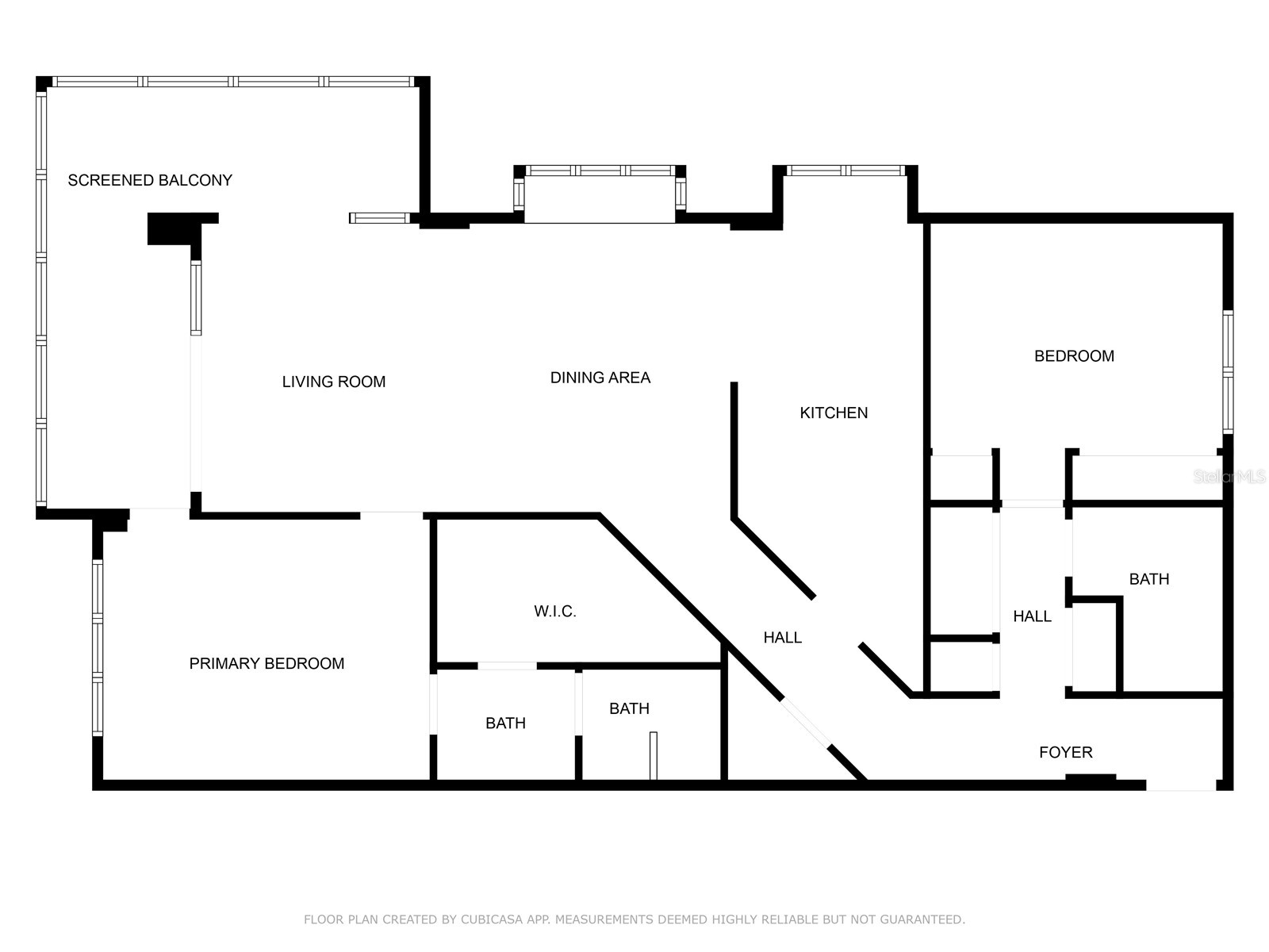
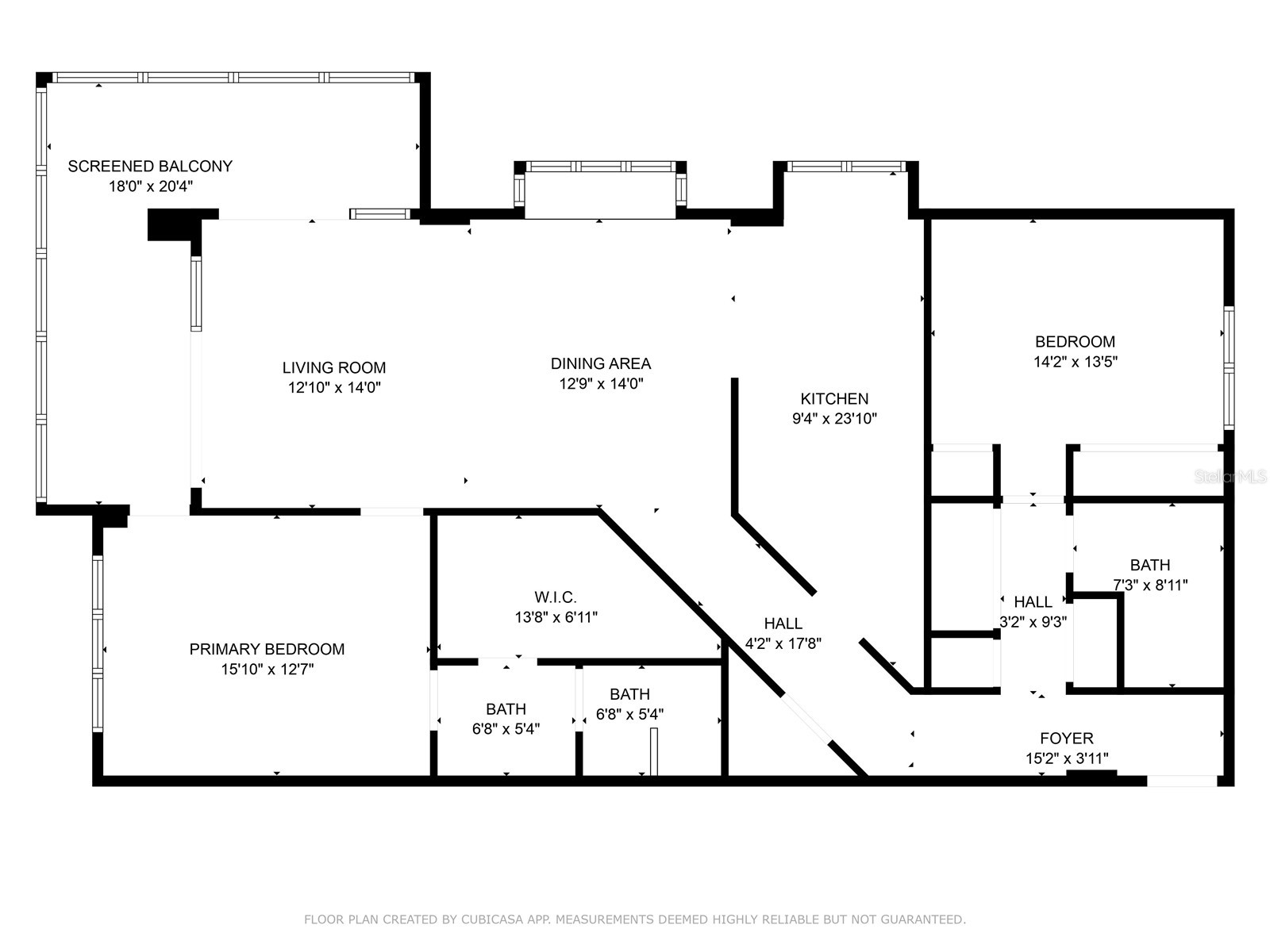
This stunning corner-unit penthouse epitomizes the ultimate Florida lifestyle. Perched on the top floor, it boasts unrivaled panoramic views of the Gulf of Mexico and the Intracoastal Waterway. Inside, the residence exudes sophistication with premium finishes, including Cambria blue quartz countertops, Italian porcelain flooring, and top-tier appliances. The open, light-filled floor plan creates a spacious and inviting atmosphere, perfect for modern living. Both bedrooms have extra storage cabinets, the 2nd bedroom has a beautiful built in Murphy bed and built in desk. A standout feature is the expansive wraparound balcony, ideal for basking in the sun, hosting gatherings, or savoring the breathtaking Gulf views with a book in hand. Nestled within a private 56-acre waterfront community, residents enjoy exclusive amenities, including two pools, two clubhouses, a 45-slip private marina, walking trails, an exercise room, hot tubs, saunas, and 11 top-rated Har-Tru clay tennis courts with a pro shop, on-site tennis pro, and massage therapist. Pickleball enthusiasts will love the vibrant scene, and nature lovers will appreciate the protected bird sanctuary. Located just steps from the sugar-soft sands of Indian Rocks Beach, with its vibrant restaurants and nightlife, this penthouse offers both luxury and convenience. The unit features countless designer upgrades, new impact windows and doors, a secured lobby, under-building parking, and a storage room. Seize your chance to live in paradise at Shipwatch. The community had no flooding or any issues from the storms in 2024.
Listing Information
Property Type: Residential, Condominium
Status: Active
Bedrooms: 2
Bathrooms: 2
Square Feet: 1,445 sq ft
Year Built: 1985
Stories: 1 Story
Construction: Block
Subdivision: Shipwatch
Foundation: Block
County: Pinellas
School Information
Elementary: Oakhurst Elementary-Pn
Middle: Seminole Middle-Pn
High: Seminole High-Pn
Room Information
Main Floor
Kitchen: 8x8
Bathroom 2: 3x2
Bedroom 2: 10x10
Primary Bathroom: 5x2
Primary Bedroom: 10x10
Dining Room: 12x12
Living Room: 12x12
Bathrooms
Full Baths: 2
Additonal Room Information
Laundry: Washer Hookup, Laundry Closet, Electric Dryer Hookup
Interior Features
Appliances: Bar Fridge, Built-In Oven, Refrigerator, Washer, Cooktop, Dishwasher, Dryer, Electric Water Heater
Flooring: Porcelain Tile
Doors/Windows: Storm Window(s)
Additional Interior Features: Ceiling Fan(s), Built-in Features, High Ceilings
Utilities
Water: Public
Sewer: Public Sewer
Other Utilities: Cable Available,High Speed Internet Available,Water Connected
Cooling: Central Air, Attic Fan, Ceiling Fan(s)
Heating: Central
Exterior / Lot Features
Parking Description: Guest
Roof: Built-Up
Pool: Community
Lot View: Pool,Water
Additional Exterior/Lot Features: Storm/Security Shutters, Storage, Balcony, Tennis Court(s), Balcony, Landscaped, Private Road, Buyer Approval Required, Near Golf Course
Community Features
Community Features: Water Access, Fishing, Fitness, Community Mailbox, Marina, Gated, Clubhouse, Waterfront, Boat Facilities, Pool, Tennis Court(s)
Security Features: Fire Sprinkler System, Gated Community, Gated with Guard
HOA Dues Include: Insurance, Maintenance Grounds, Common Areas, Pest Control, Reserve Fund, Road Maintenance, Pool(s), Maintenance Structure, Internet, Cable TV, Water, Trash, Taxes, Association Management, Sewer, Recreation Facilities
Driving Directions
Heading west on Indian Rocks Road turn left into the Shipwatch Community. Continue right all the way down the road, building is on the right. You will have to pass through a gate, but the gate will open as you slowly proceed forward.
Financial Considerations
Terms: Cash,Conventional,FHA
Tax/Property ID: 13-30-14-81165-000-0848
Tax Amount: 8380.77
Tax Year: 2024
A broker reciprocity listing courtesy: KELLER WILLIAMS REALTY- PALM H
Based on information provided by Stellar MLS as distributed by the MLS GRID. Information from the Internet Data Exchange is provided exclusively for consumers’ personal, non-commercial use, and such information may not be used for any purpose other than to identify prospective properties consumers may be interested in purchasing. This data is deemed reliable but is not guaranteed to be accurate by Edina Realty, Inc., or by the MLS. Edina Realty, Inc., is not a multiple listing service (MLS), nor does it offer MLS access.
Copyright 2026 Stellar MLS as distributed by the MLS GRID. All Rights Reserved.
Payment Calculator
Interest rate and annual percentage rate (APR) are based on current market conditions, are for informational purposes only, are subject to change without notice and may be subject to pricing add-ons related to property type, loan amount, loan-to-value, credit score and other variables. Estimated closing costs used in the APR calculation are assumed to be paid by the borrower at closing. If the closing costs are financed, the loan, APR and payment amounts will be higher. If the down payment is less than 20%, mortgage insurance may be required and could increase the monthly payment and APR. Contact us for details. Additional loan programs may be available. Accuracy is not guaranteed, and all products may not be available in all borrower's geographical areas and are based on their individual situation. This is not a credit decision or a commitment to lend.
Sales History & Tax Summary for 11590 Shipwatch Drive #848
Sales History
| Date | Price | |
|---|---|---|
| Currently not available. | ||
Tax Summary
| Tax Year | Estimated Market Value | Total Tax |
|---|---|---|
| Currently not available. | ||
Data powered by ATTOM Data Solutions. Copyright© 2026. Information deemed reliable but not guaranteed.
Schools
Schools nearby 11590 Shipwatch Drive #848
| Schools in attendance boundaries | Grades | Distance | Rating |
|---|---|---|---|
| Loading... | |||
| Schools nearby | Grades | Distance | Rating |
|---|---|---|---|
| Loading... | |||
Data powered by ATTOM Data Solutions. Copyright© 2026. Information deemed reliable but not guaranteed.
The schools shown represent both the assigned schools and schools by distance based on local school and district attendance boundaries. Attendance boundaries change based on various factors and proximity does not guarantee enrollment eligibility. Please consult your real estate agent and/or the school district to confirm the schools this property is zoned to attend. Information is deemed reliable but not guaranteed.
SchoolDigger ® Rating
The SchoolDigger rating system is a 1-5 scale with 5 as the highest rating. SchoolDigger ranks schools based on test scores supplied by each state's Department of Education. They calculate an average standard score by normalizing and averaging each school's test scores across all tests and grades.
Coming soon properties will soon be on the market, but are not yet available for showings.